Малинова Долина - ул. Едуард Генов


Енергийно ефективна, комфортна и луксозно изпълнена сграда, с пусков срок края на 2025г. и най-добрата схема на плащане - вижте в описанието.
VaklinGroup

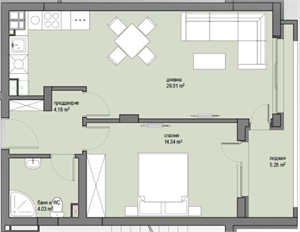
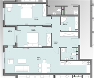
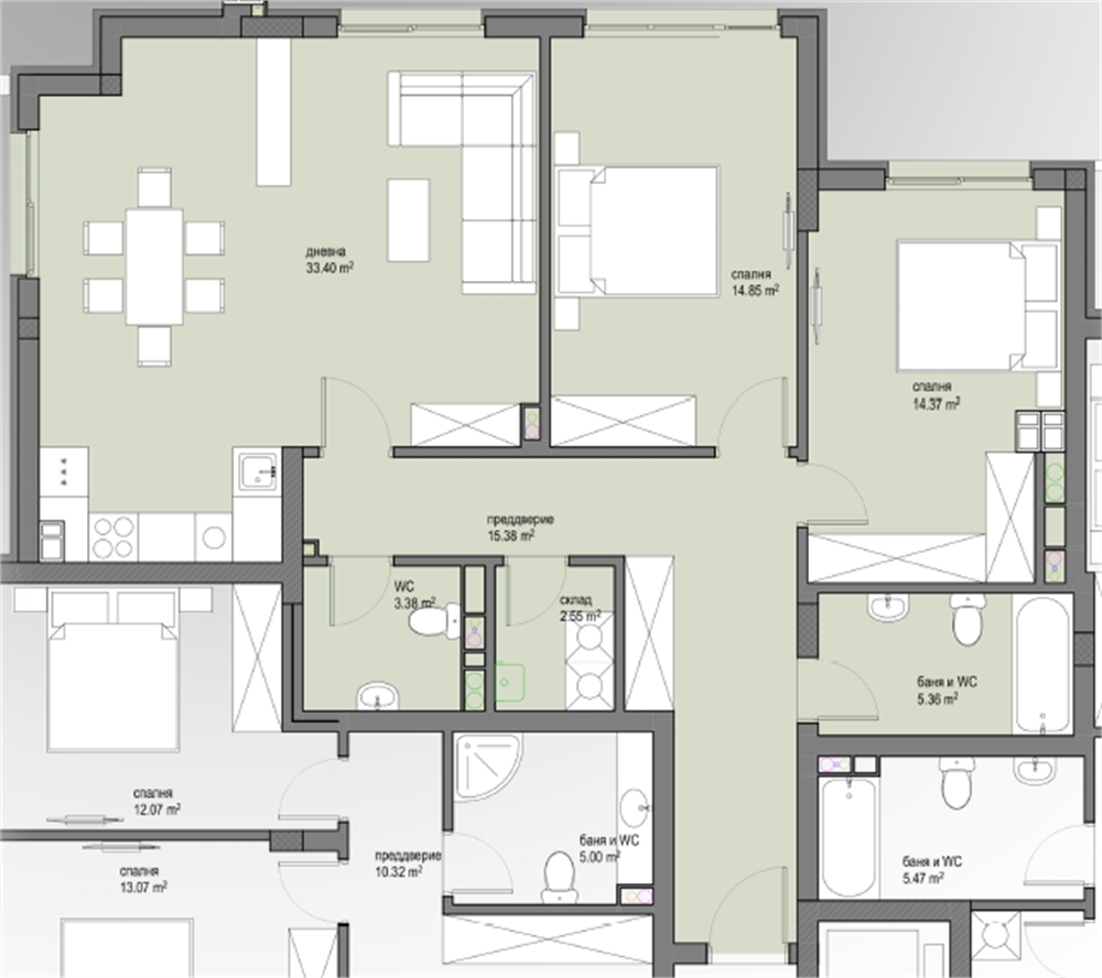
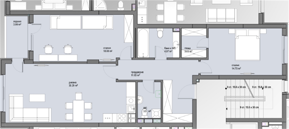
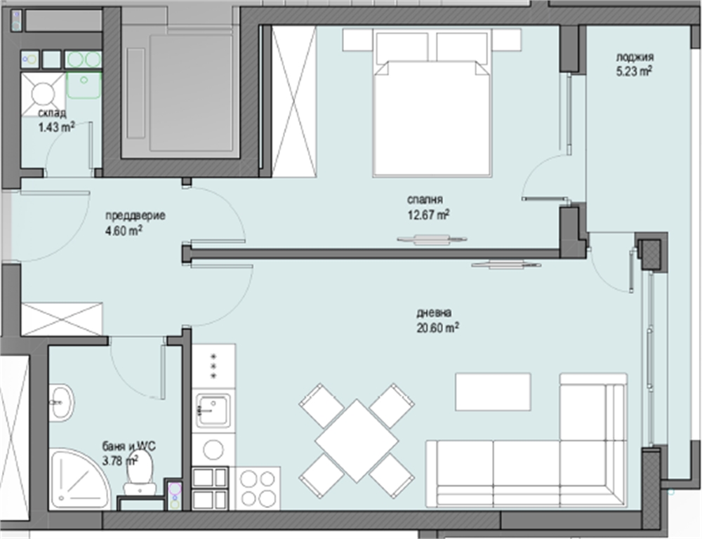
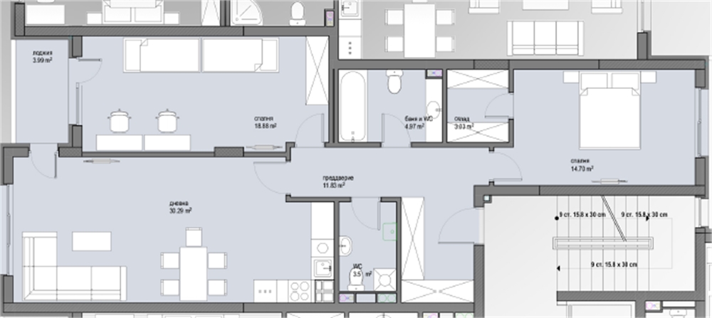
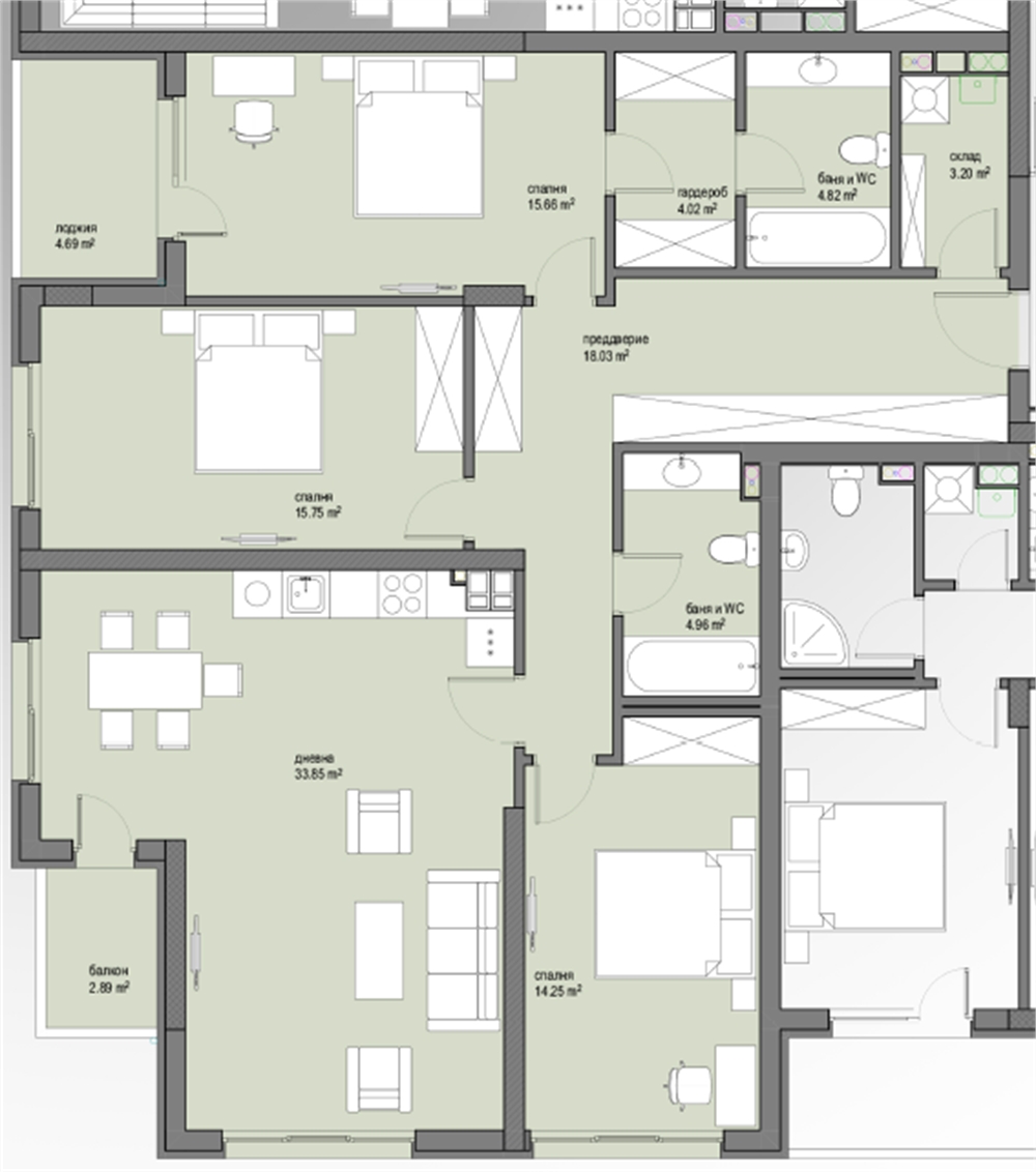
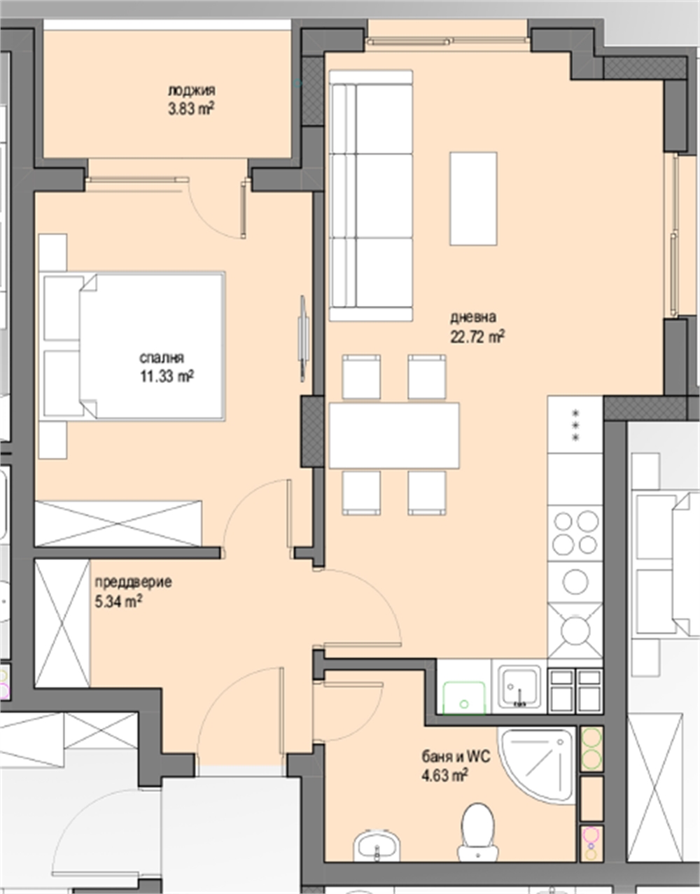
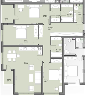
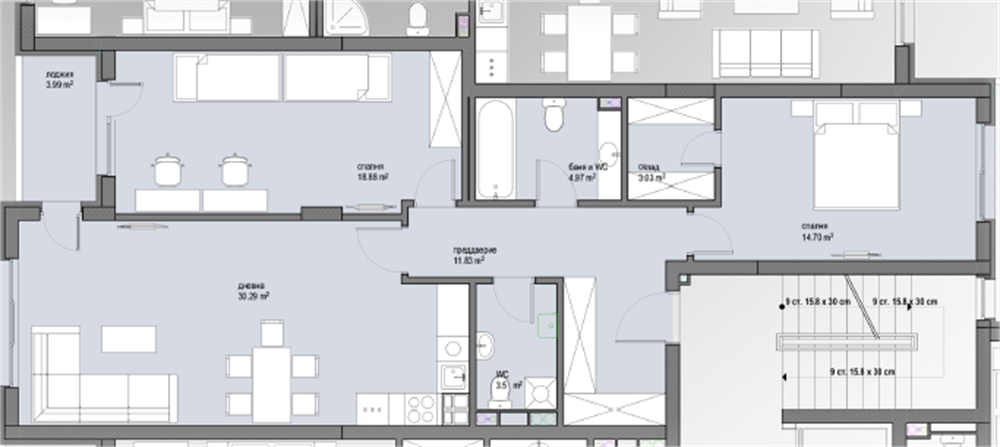
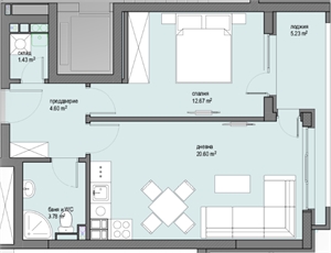
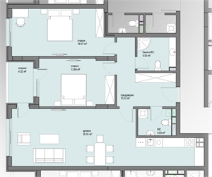
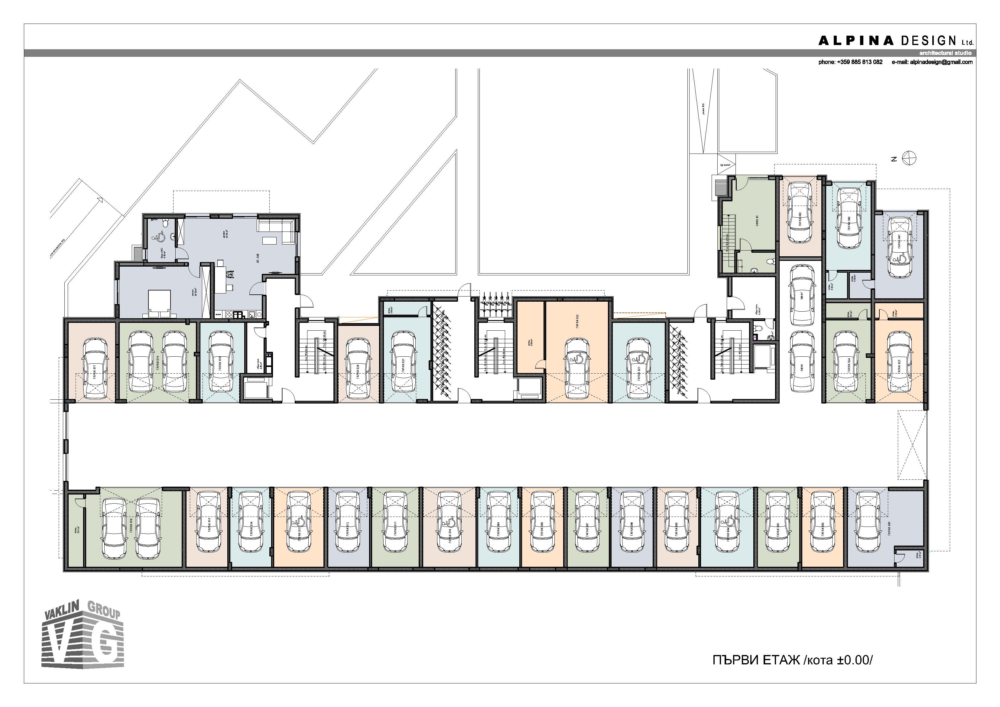
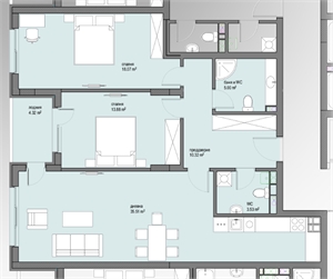
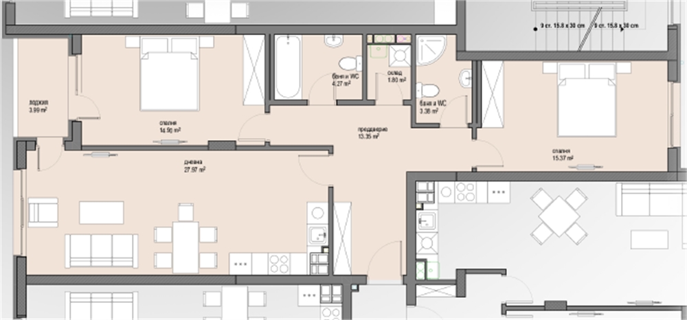
СХЕМА НА ПЛАЩАНЕ - 5000 Евро резервационен депозит и 100% плащане на акт 16 - най-добрата схема на плащане на пазара на имоти. Прекрасна сграда на етап груб строеж - Акт 15 се очаква до края на месец май 2025г. Вградена подова допълнителна топло- и шумоизолация, водно подово отопление с висок клас термопомпена система Loria Duo на Atlantic за всички три- и четиристайни жилища, луксозна окачена фасада. Енергийната ефективност е гарантирана както от отличната изолация и материали, така и от дограмата с троен стъклопакет със специални нискоемисионни стъкла, видеодомофонна система - енергиен сертификат клас "А". Естествен камък в общите части, по стените – мазилка „Zephyro“. Жилищата са изключително функционални, уютни и добре организирани като пространство, като се издават на шпакловка и замазка, с монтирани ключове и контакти, с радиатори и блиндирани външни врати. Околоблоковото пространство е изключително просторно, проектиран е детски кът и прекрасен озеленен двор, с автономна сензорна поливна система. Без посредници. Директно от инвеститор. Преференциални условия на кредитиране за клиенти на дружеството от Пощенска банка, ДСК и Уникредит Булбанк. За повече информация и свободни апартаменти на www.vaklingroup.bg или на тел.0884180451

Малинова Долина - ул. Едуард Генов
  Текущи проекти
Предходни проекти
Довършителни работи
Вноска "недвижим имот"
Мнения
НОВИНИ
Контакти

ЗАПАЗЕТЕ ЧАС
ЗА СРЕЩА С НАС