Житница 23


Домът, който сте търсили с години - гледка, градина, метростанция, подово отопление
VaklinGroup

Най-новият ни проект „Житница 23“ е наистина специален – в него ще намерите луксозен дом с безкрайна гледка към планината, която никога няма да се закрие, метростанция на крачка от комплекса, близост до центъра на града -само на 4,8 км. от Съдебната палата и разкошни зелени площи. Сградата е отличена с  награда за най-функционално и комфортно жилищно строителство на XV-то издание на Luxury property awards 2025г.

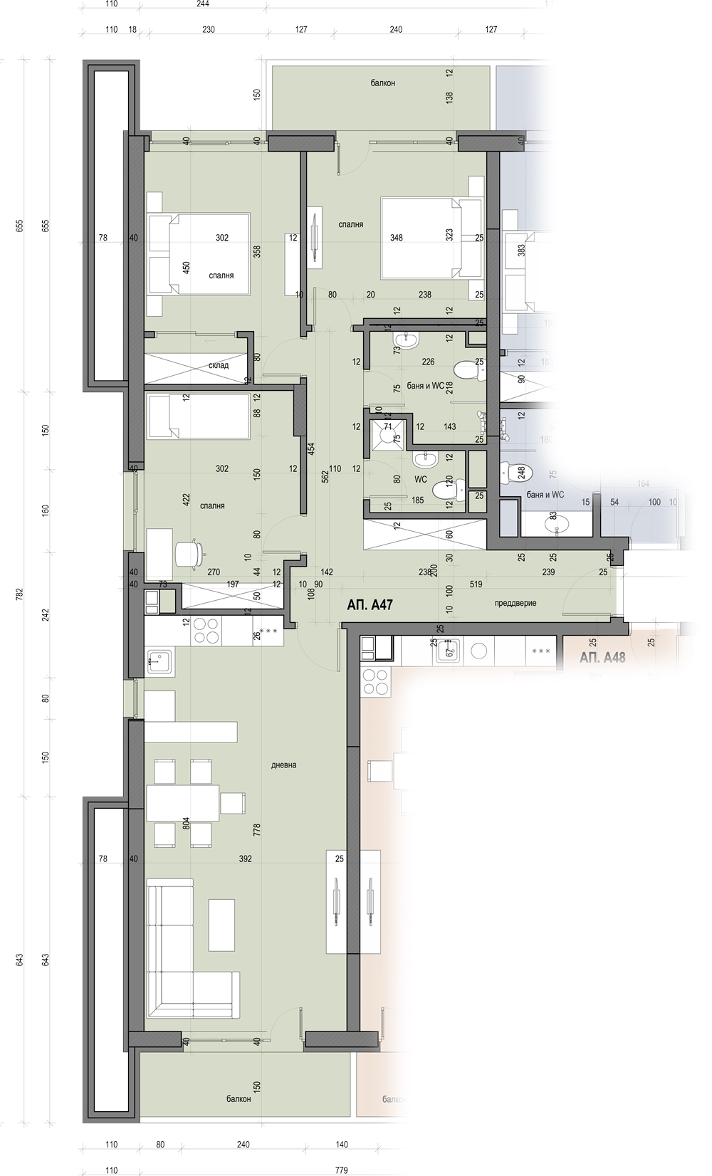
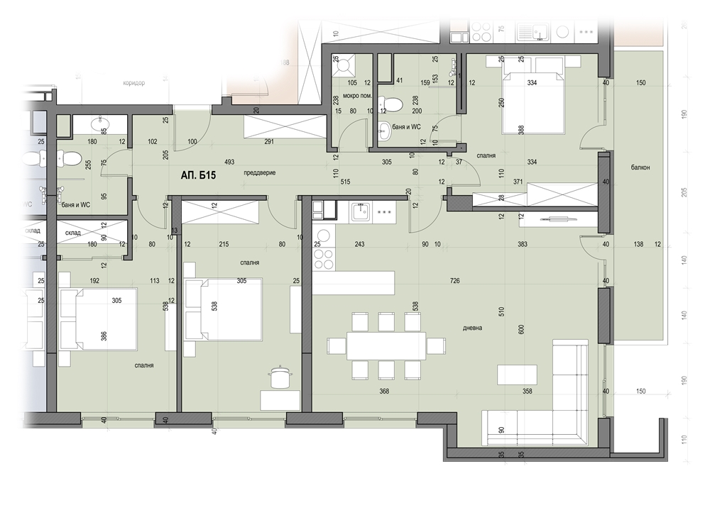
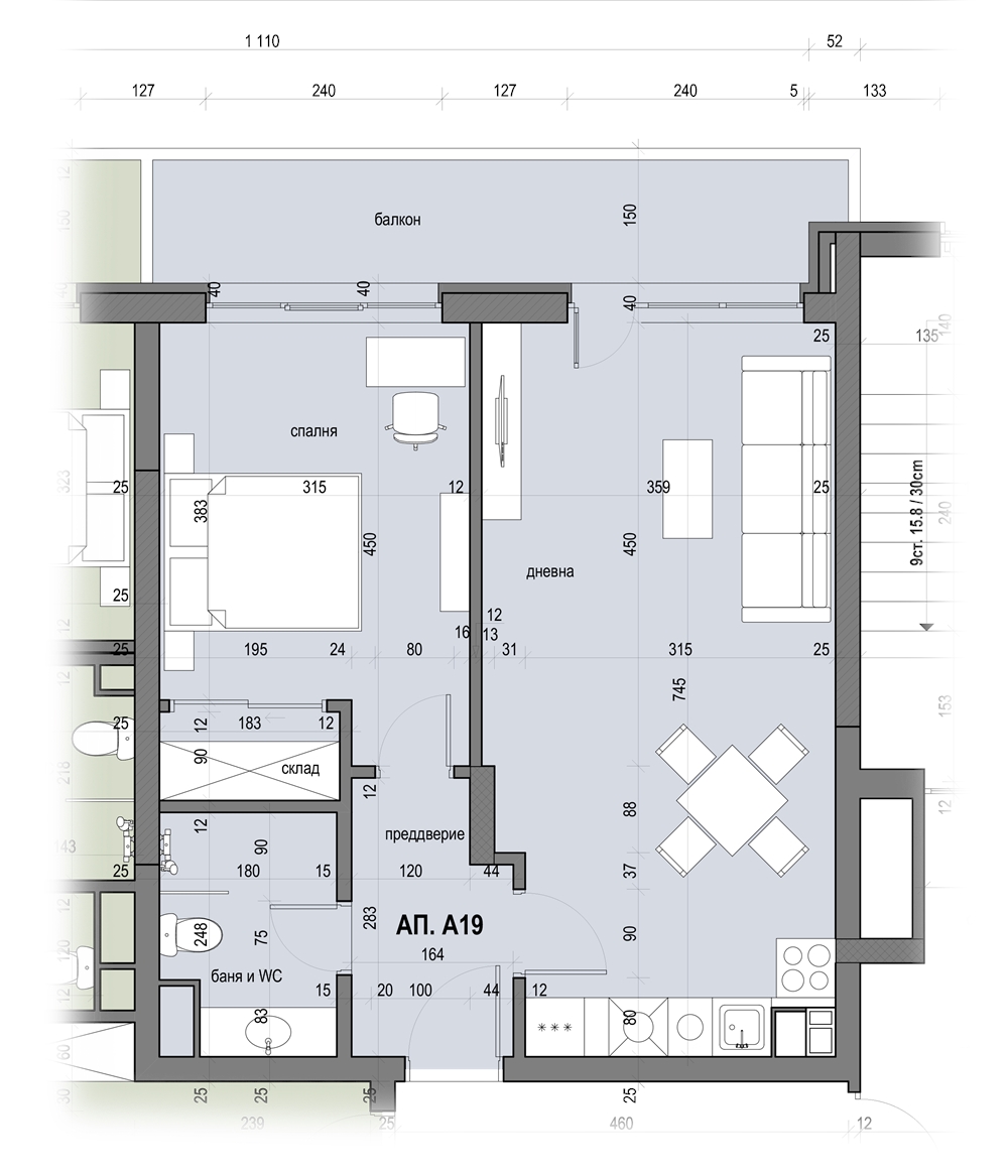
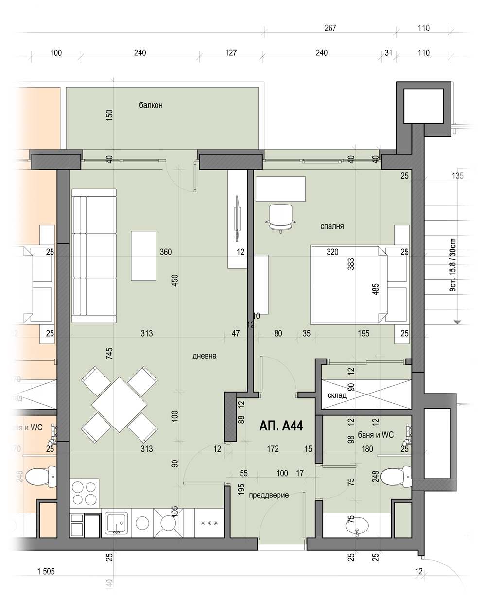
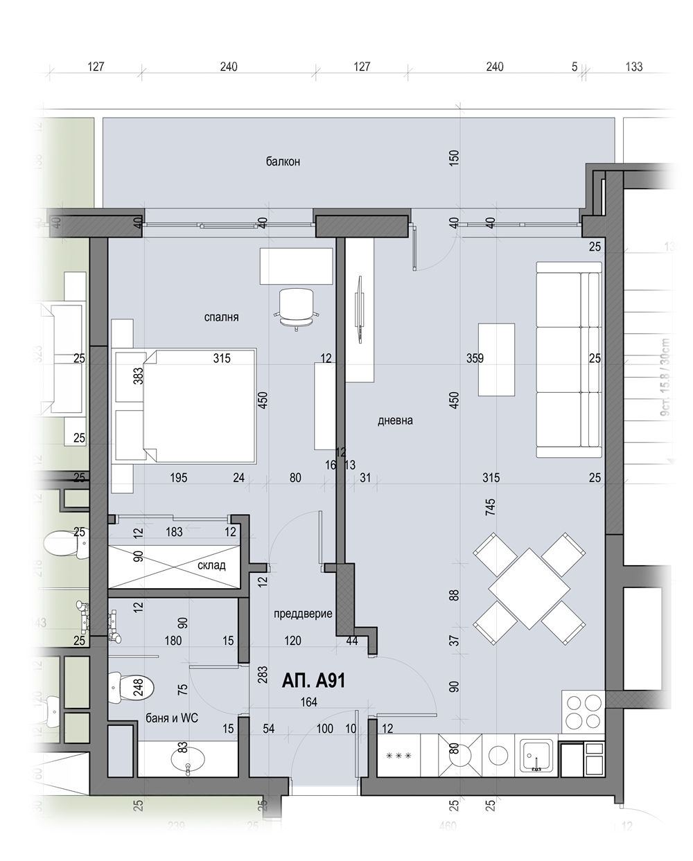
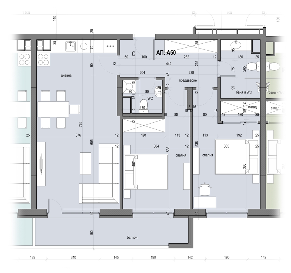
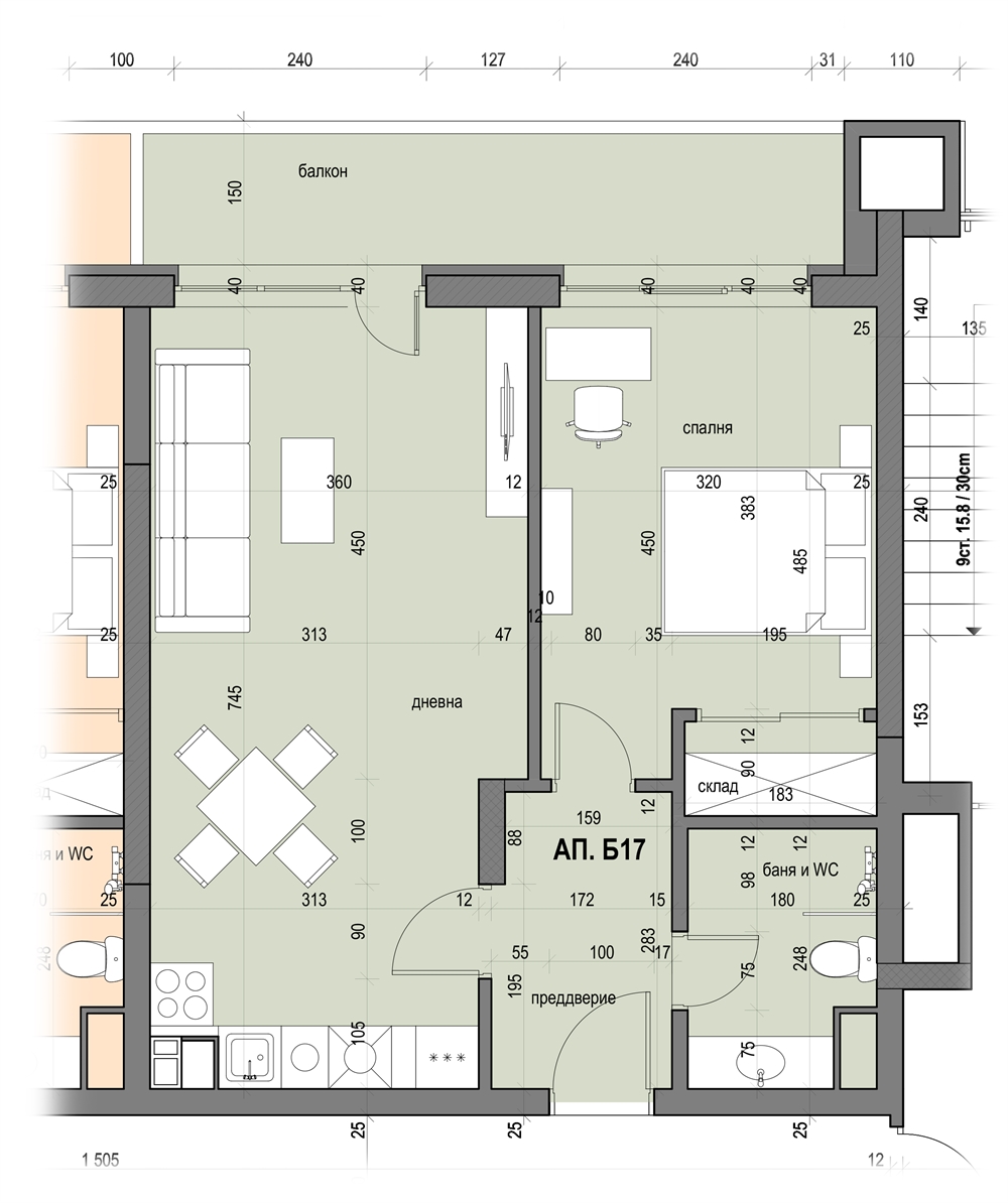
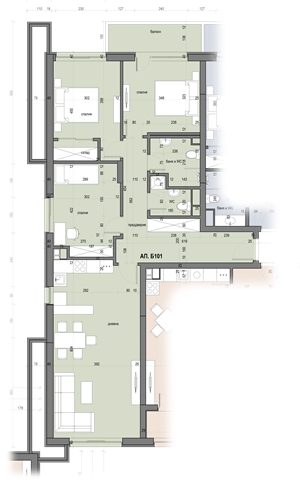
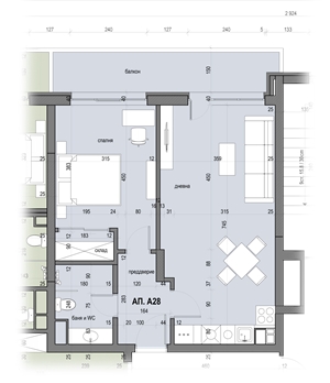
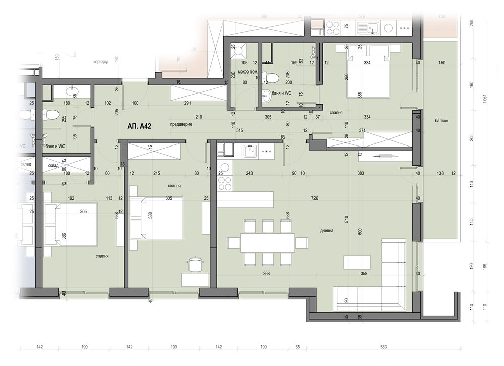
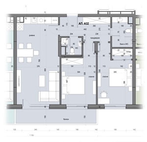
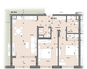
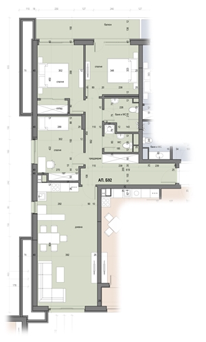
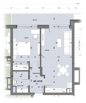
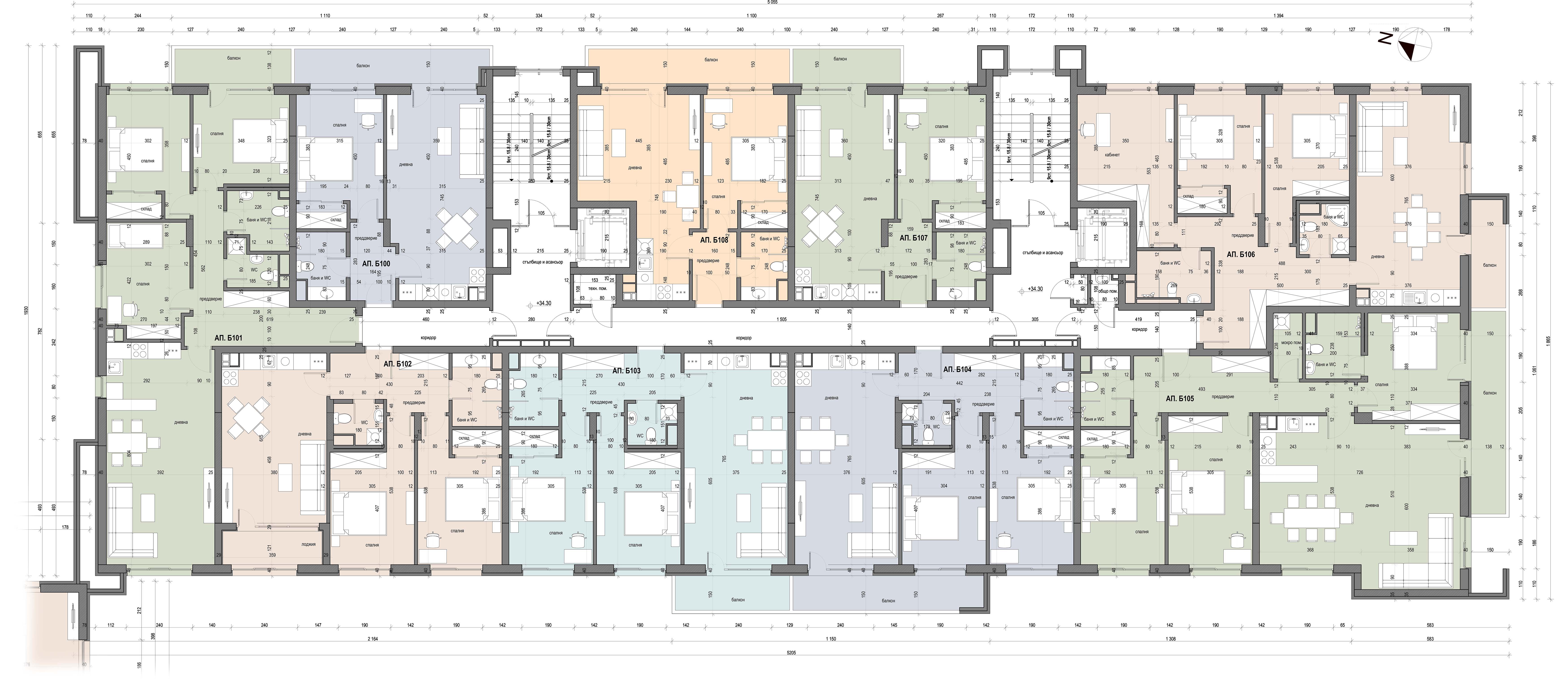
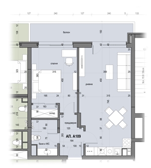
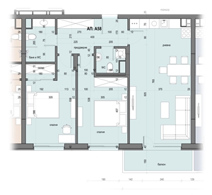
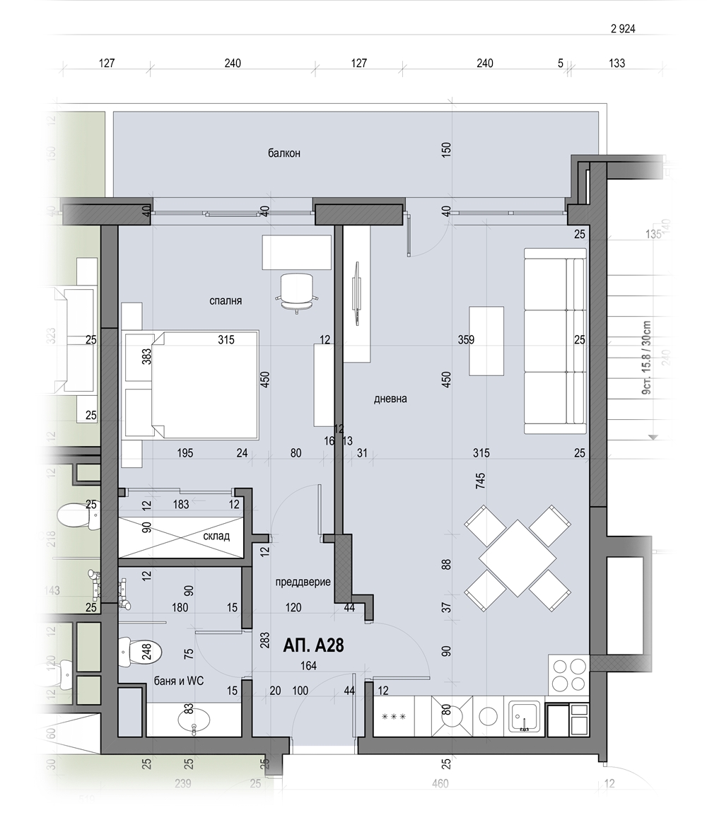
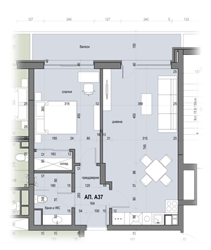
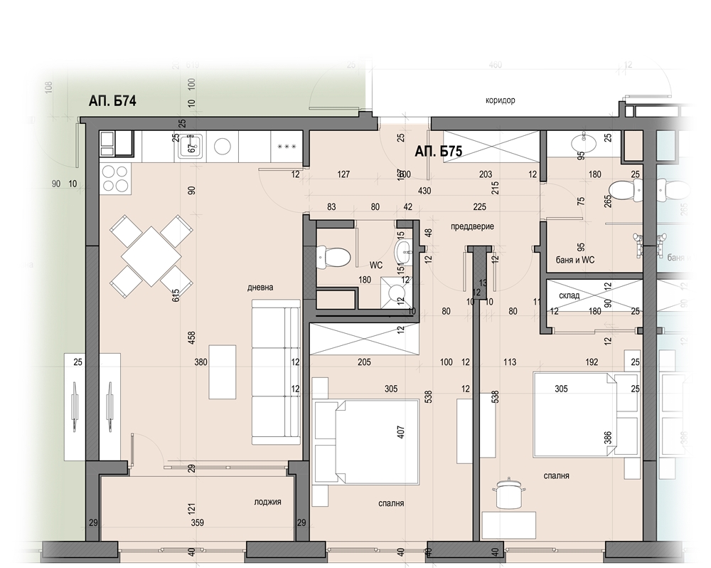
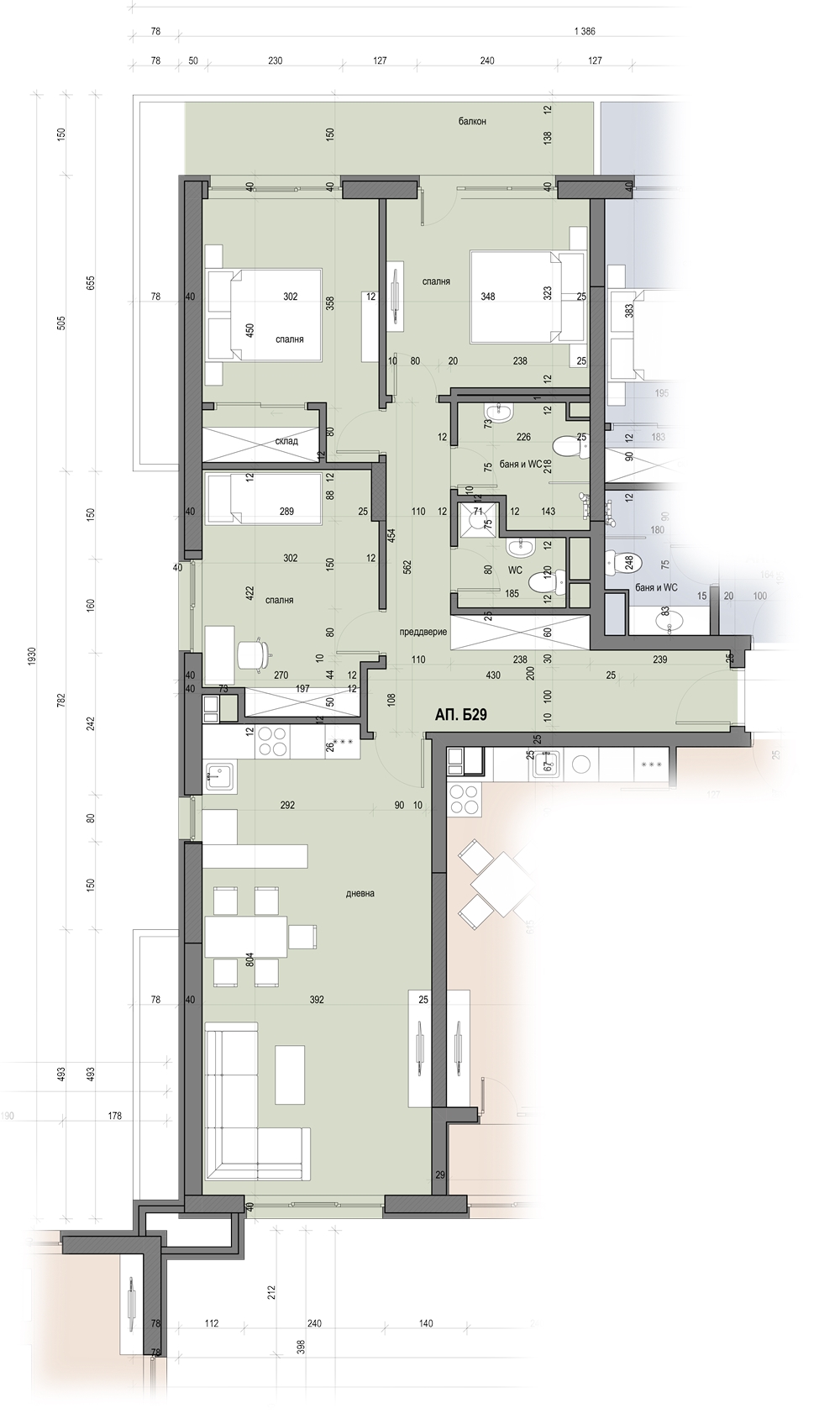
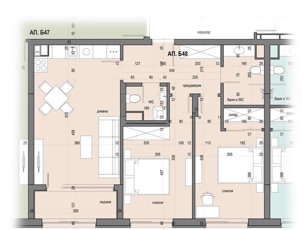
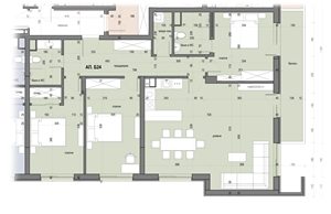
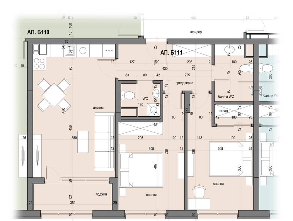
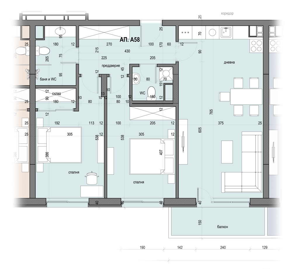
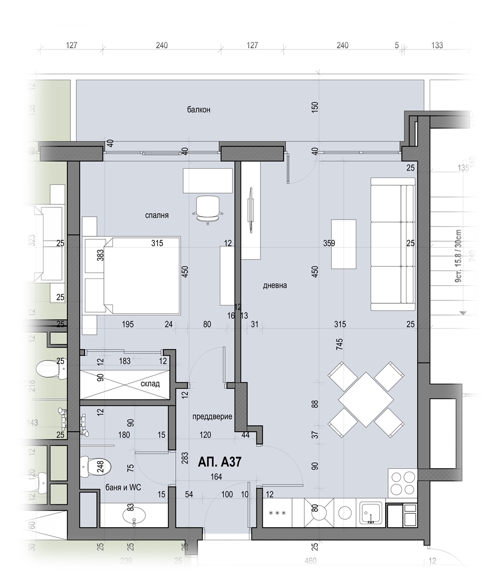
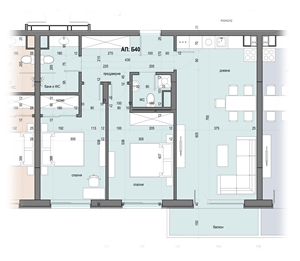
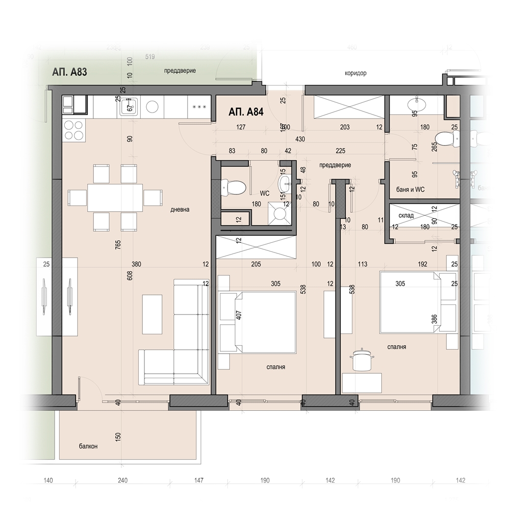
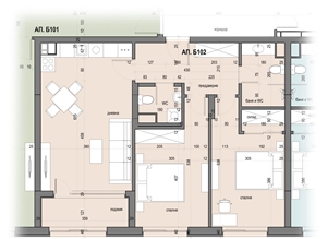
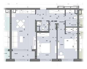
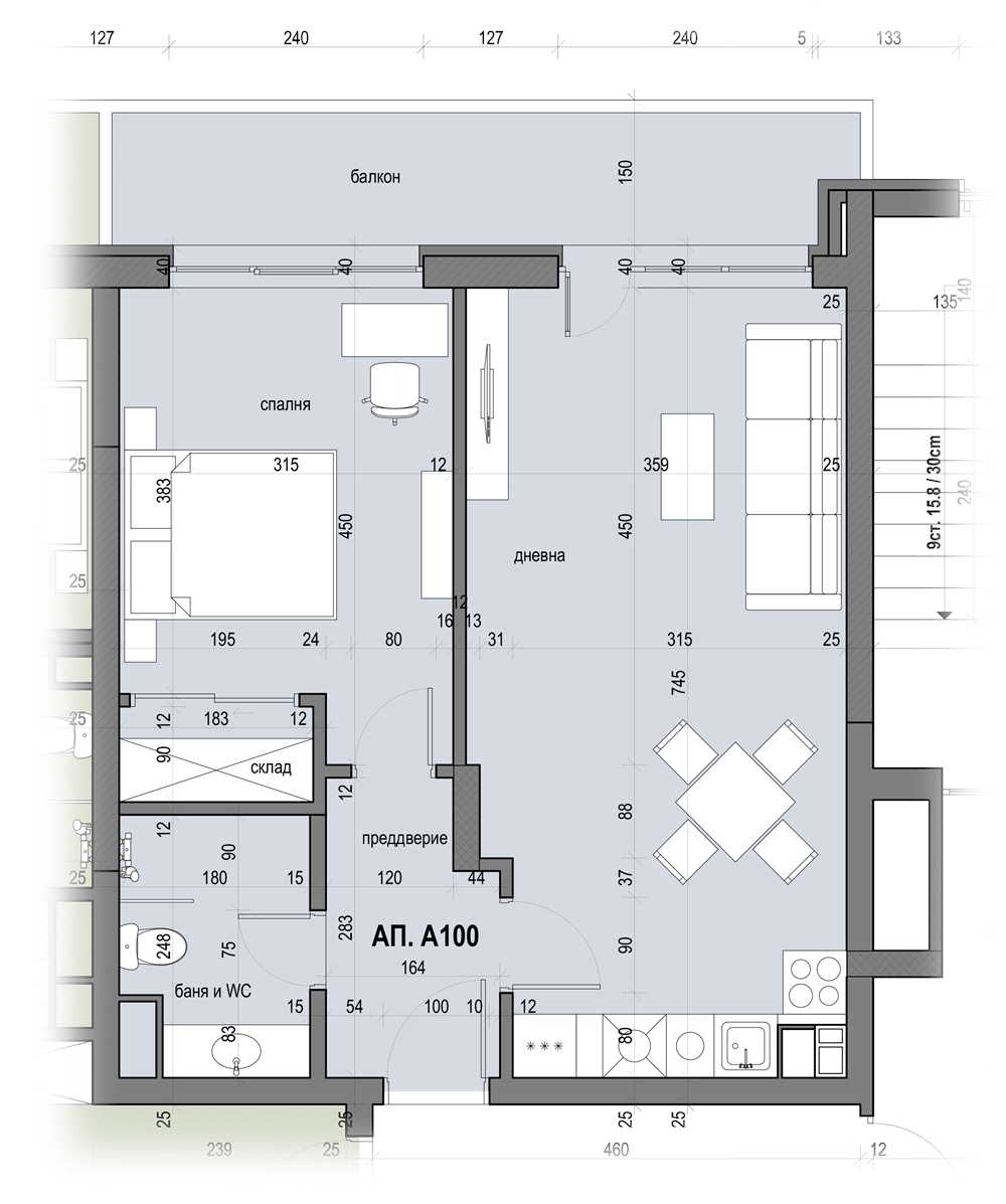
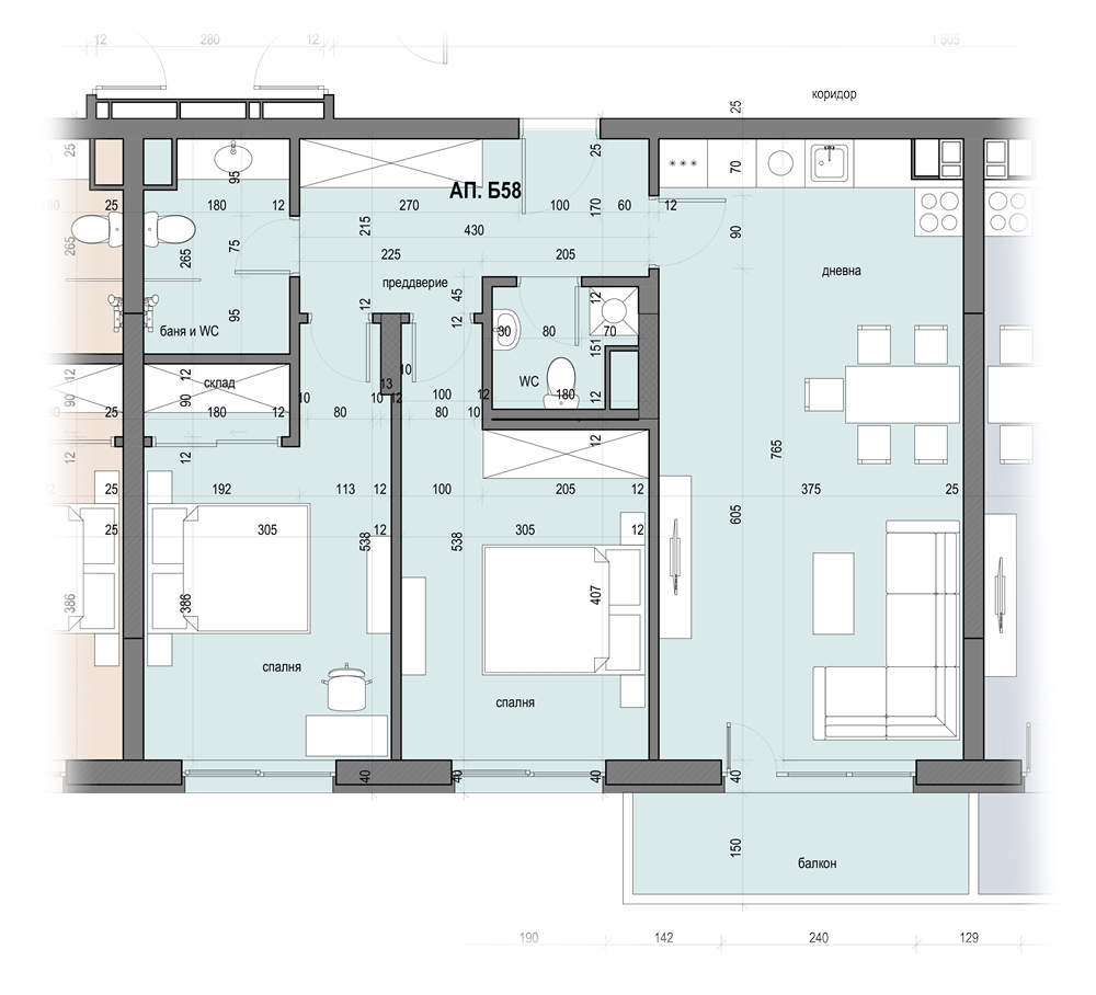
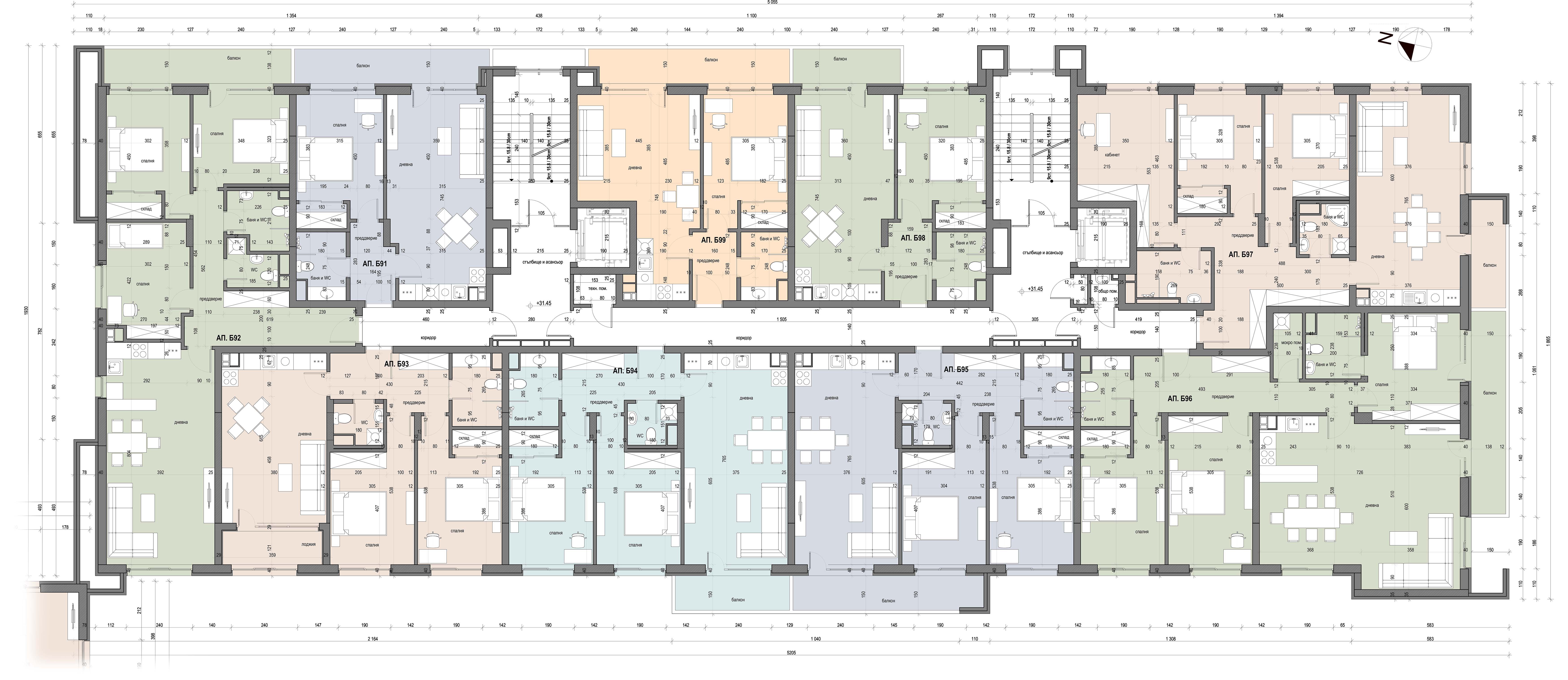
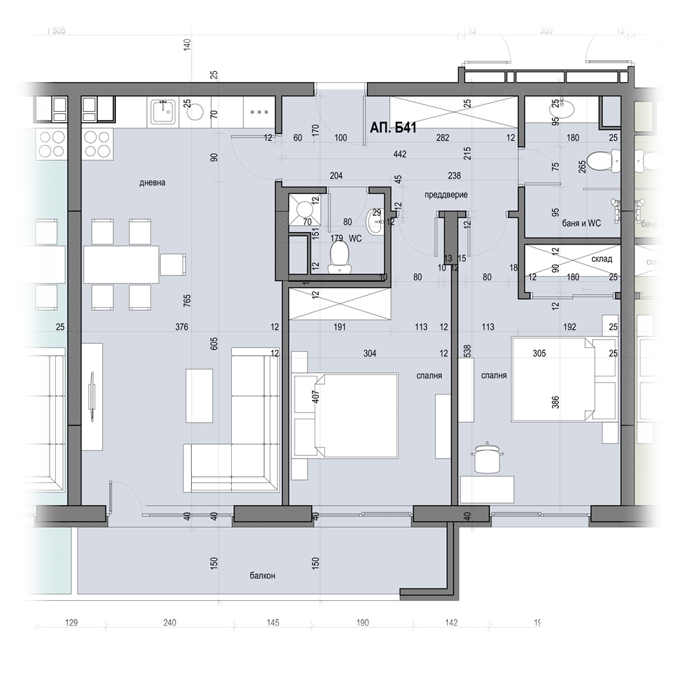
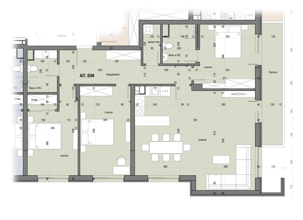
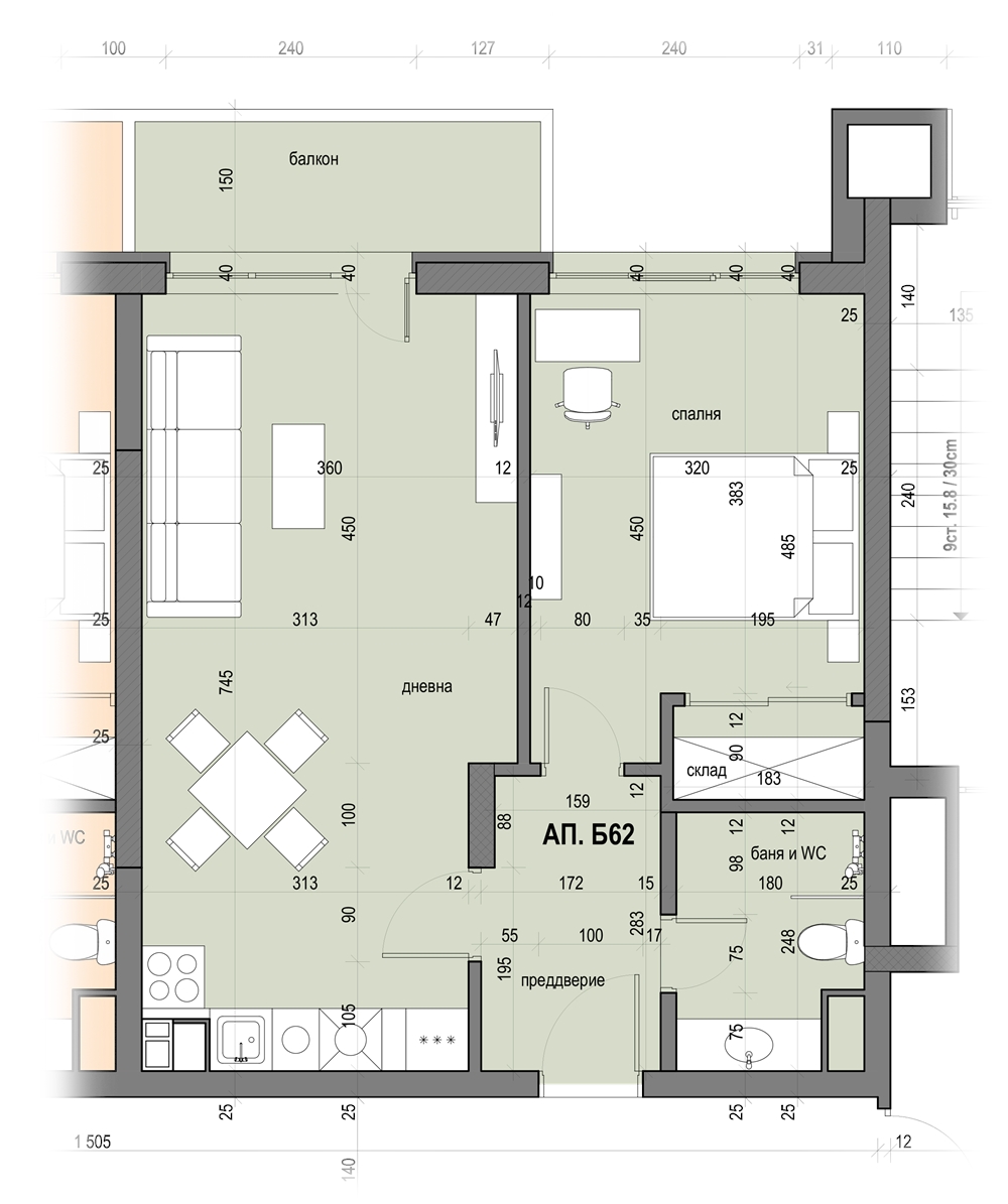
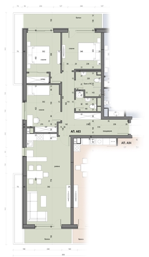
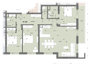
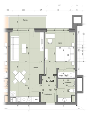
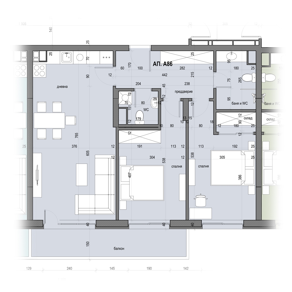
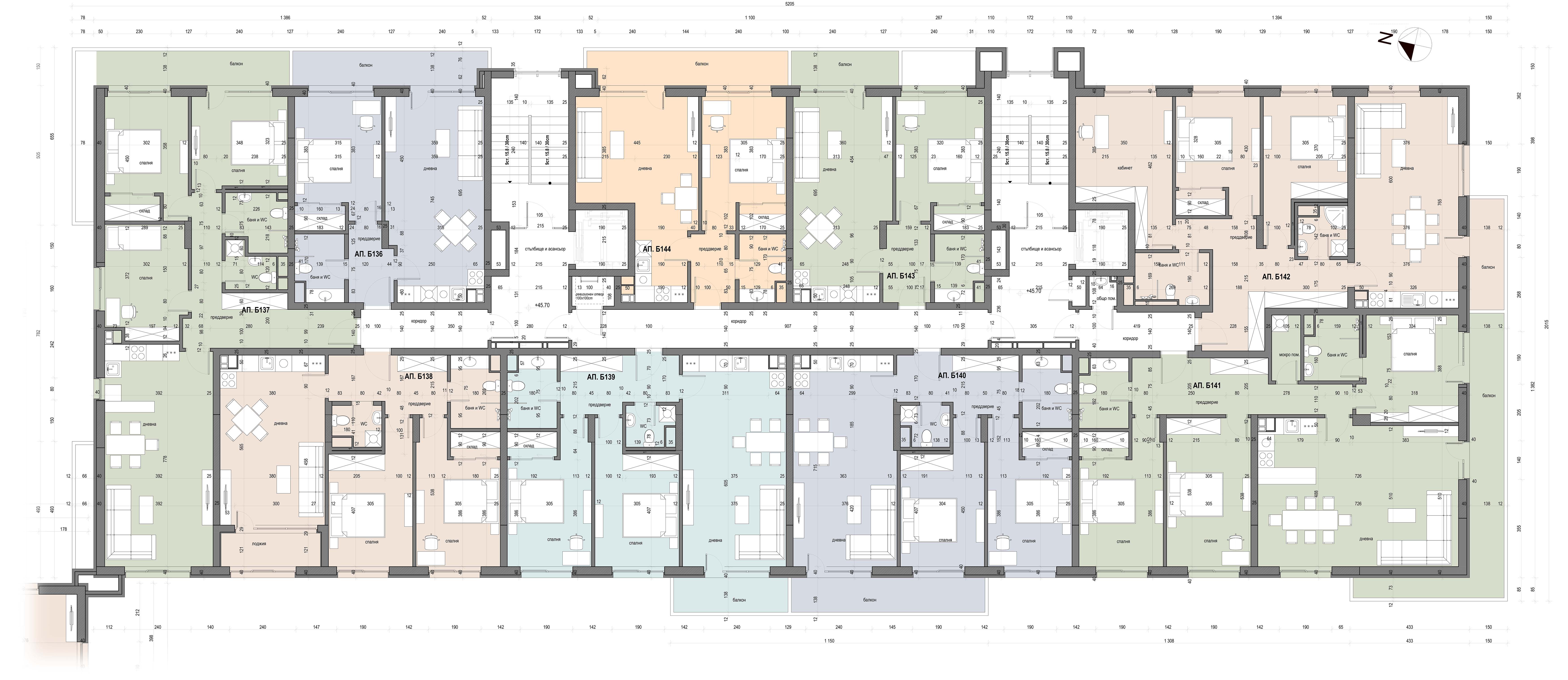
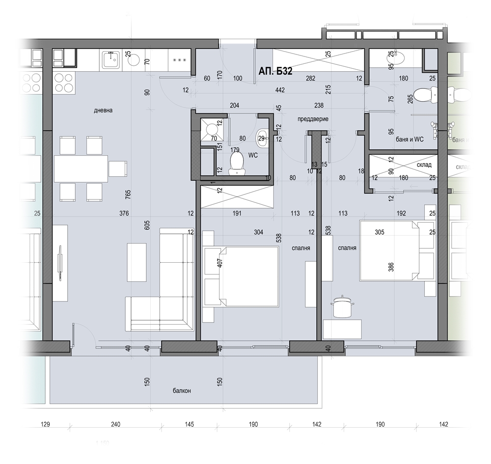
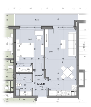
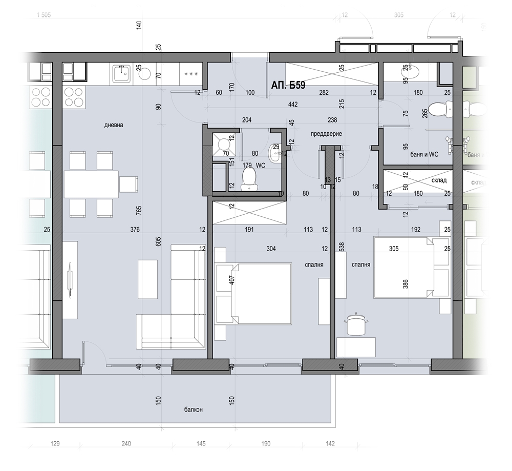
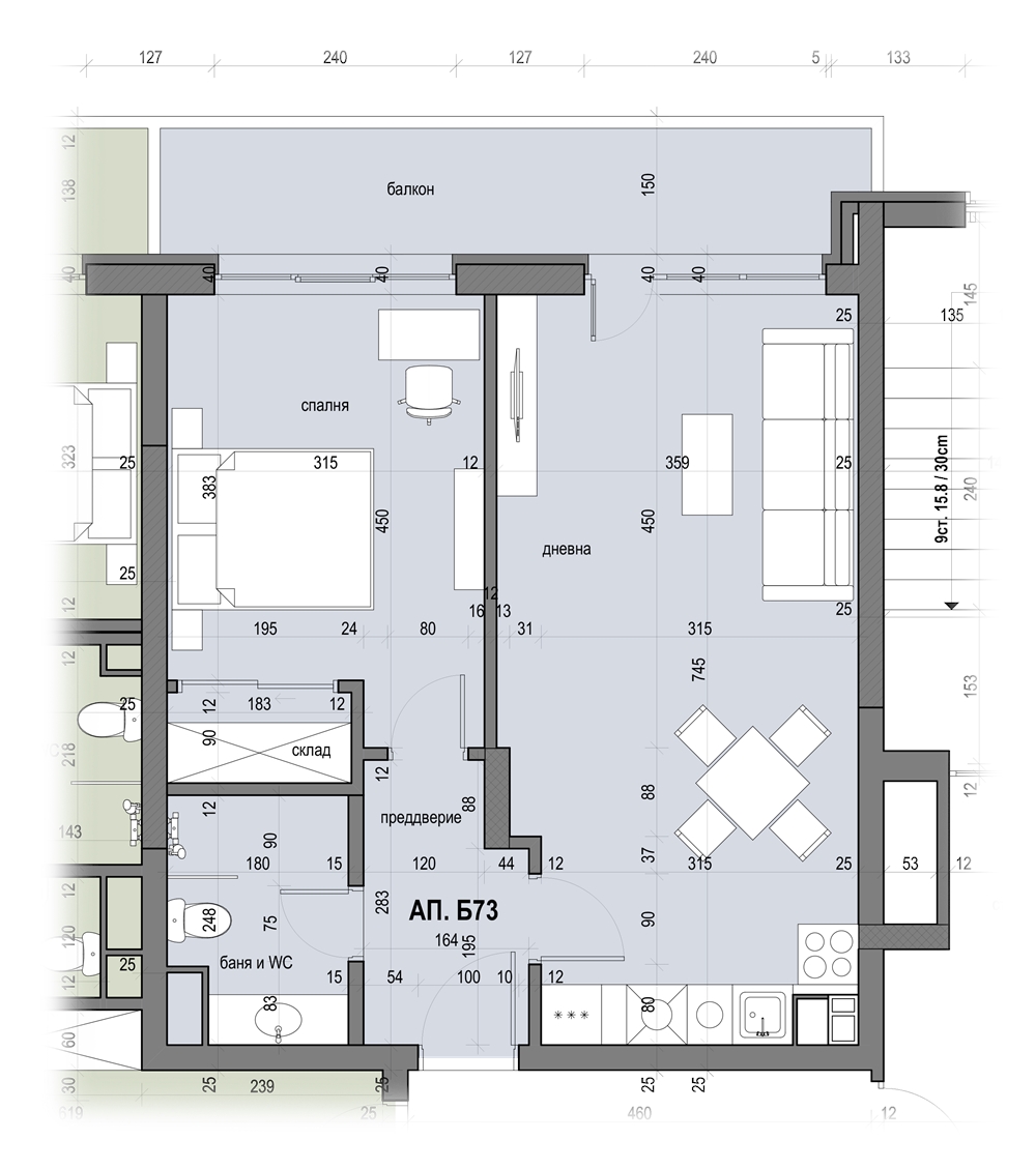
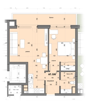
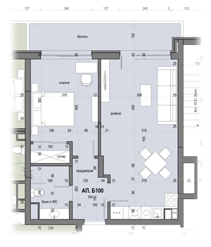
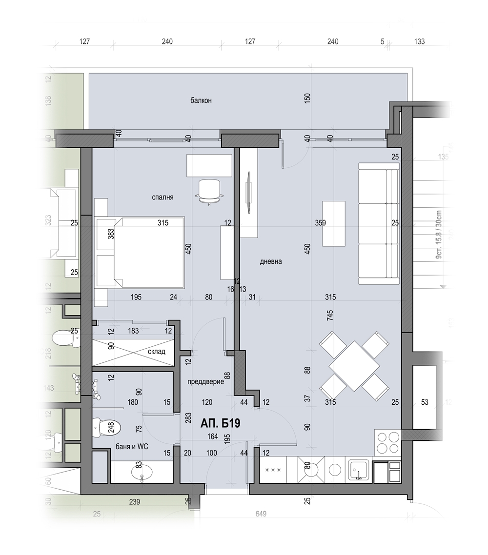
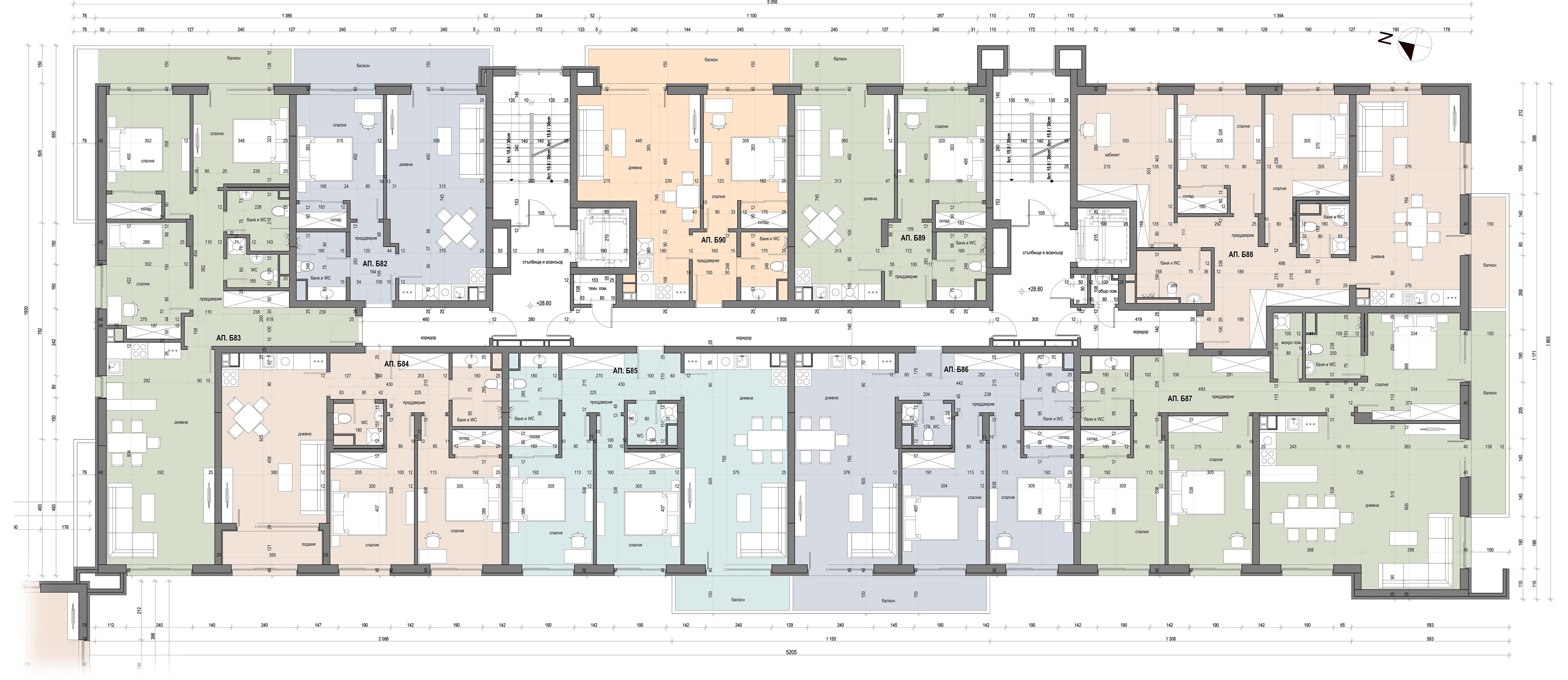
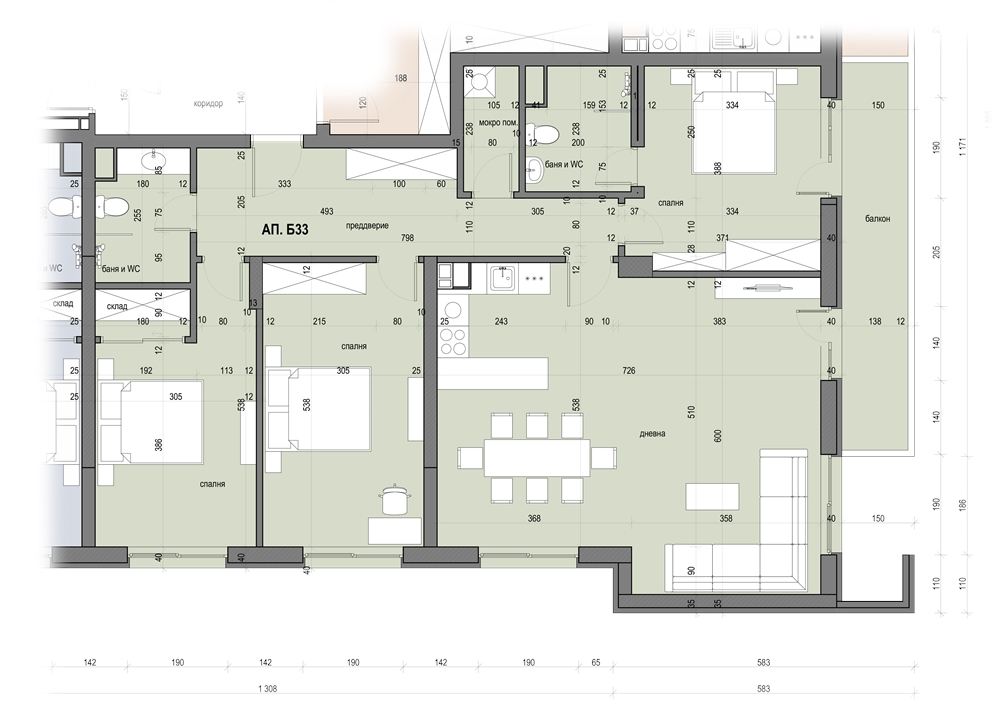
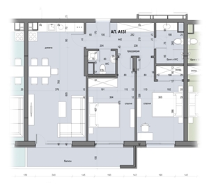
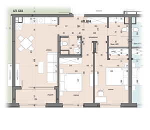
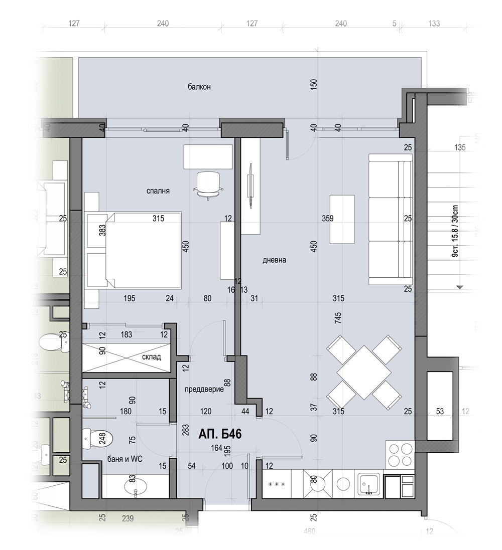
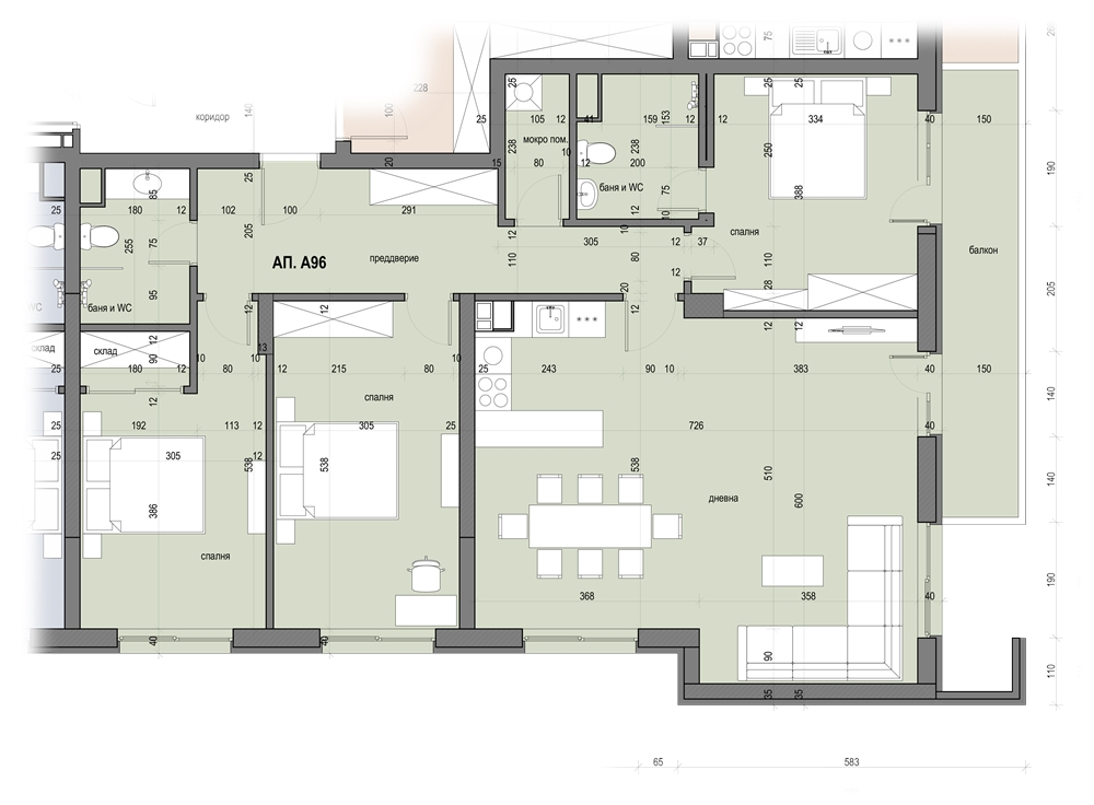
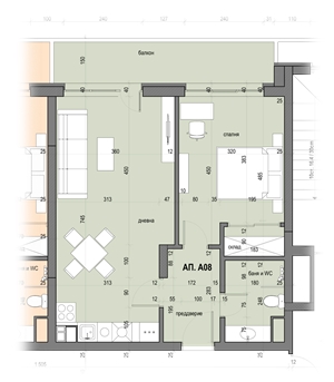
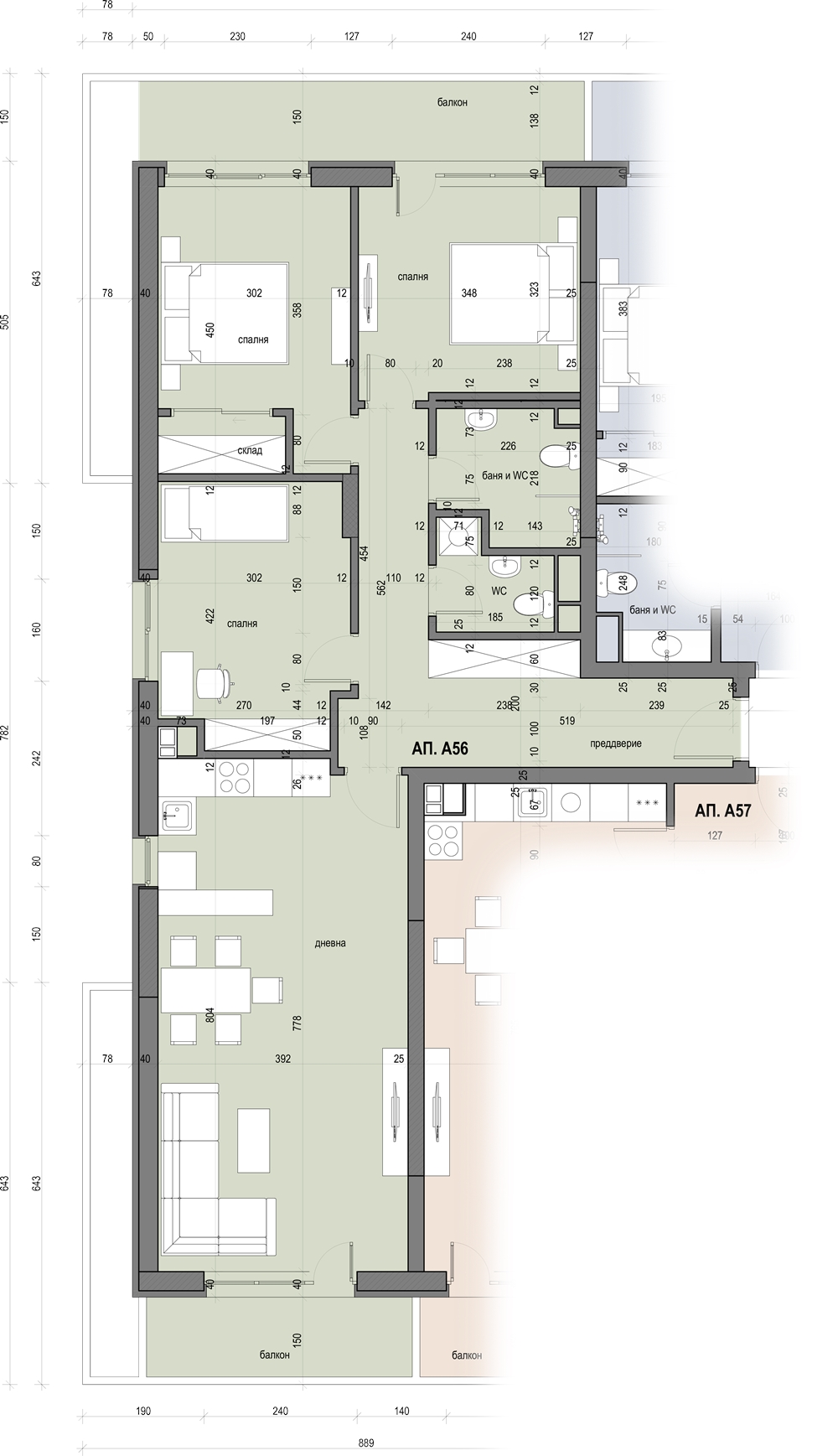
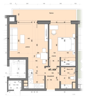
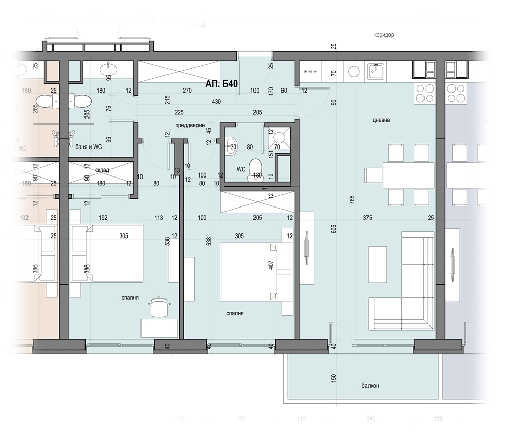
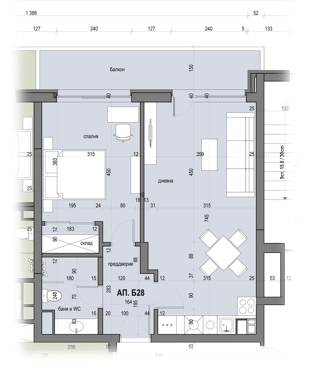
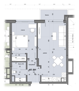
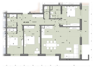
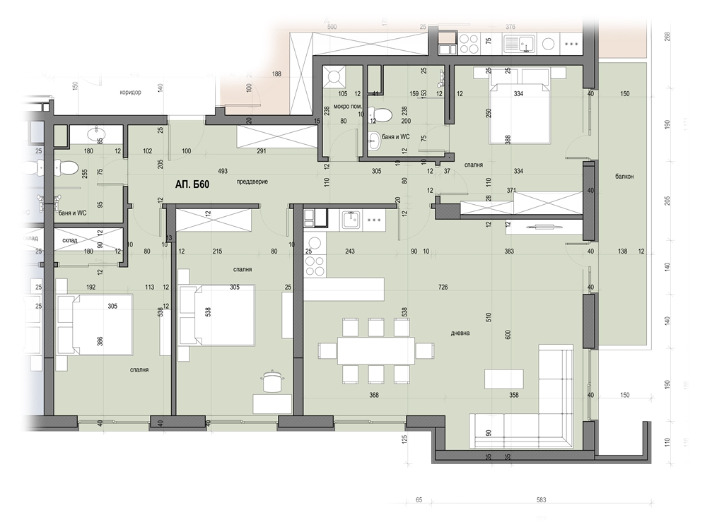
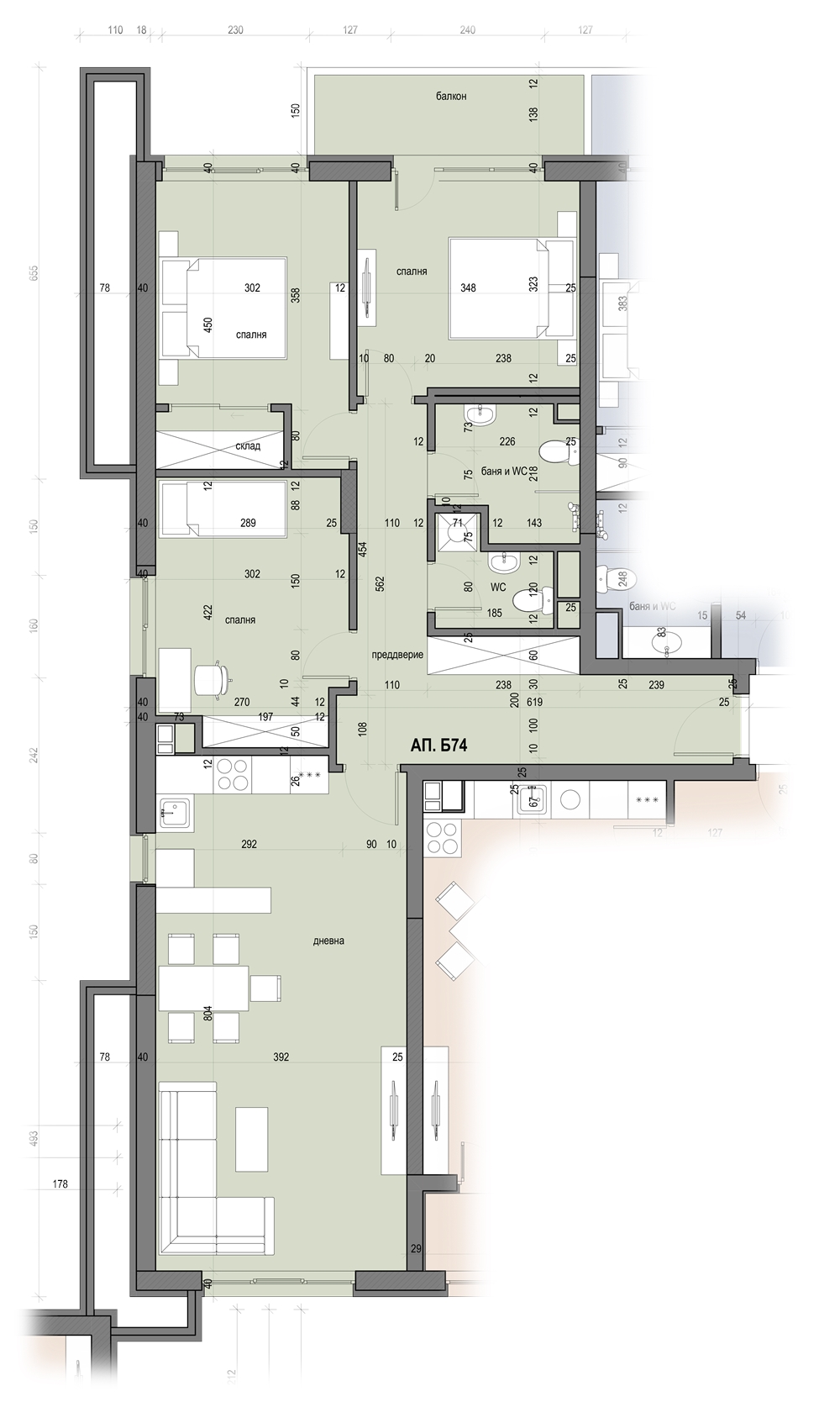
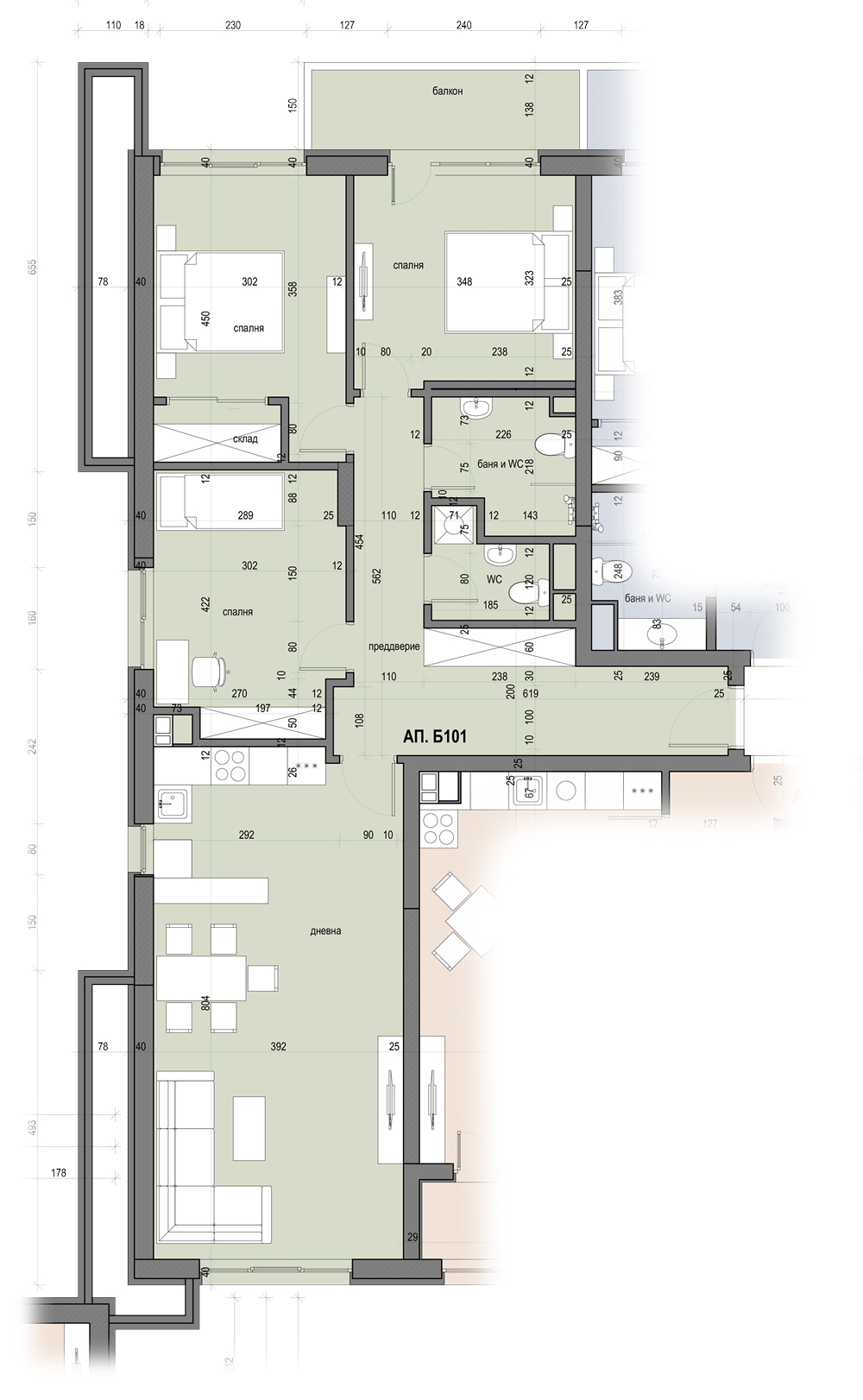
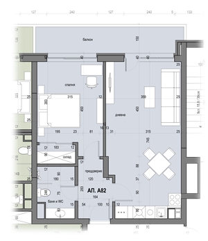
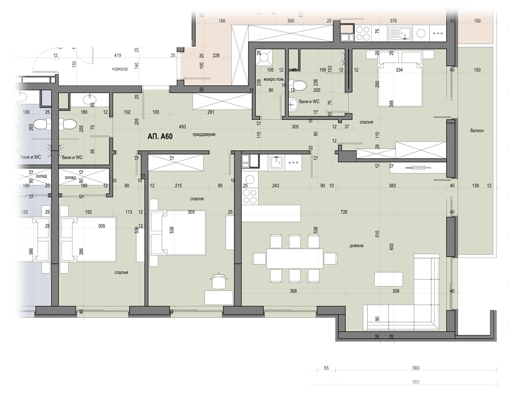
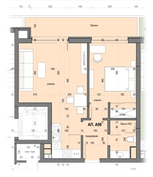
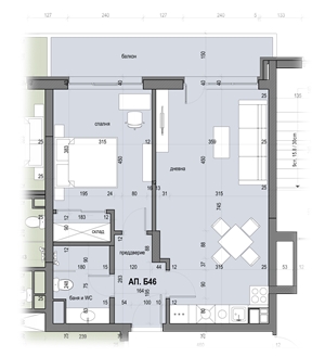
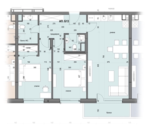
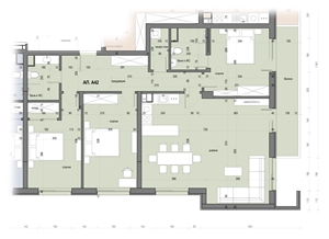
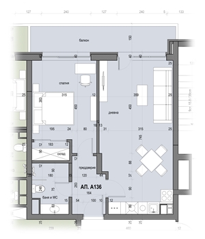
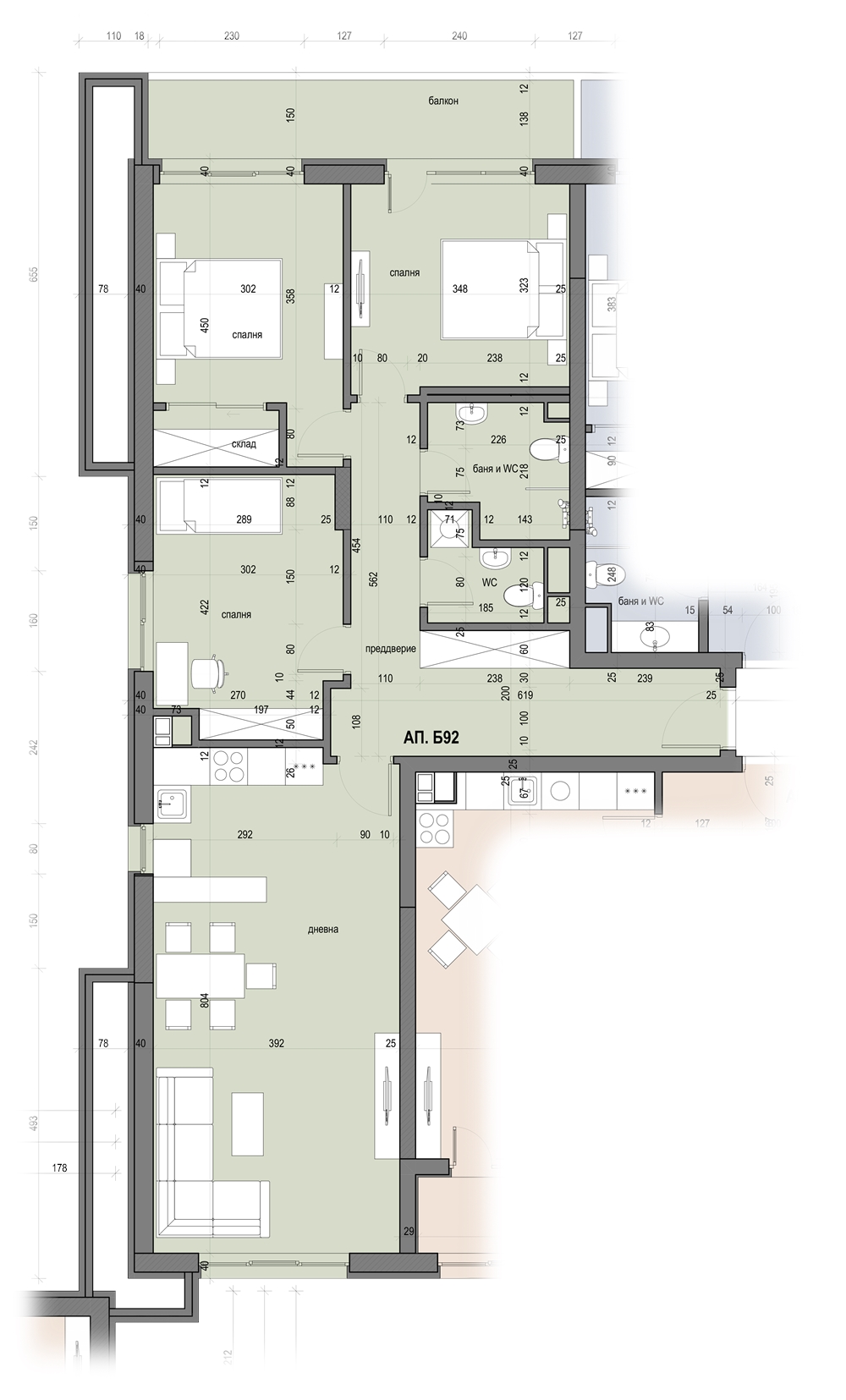
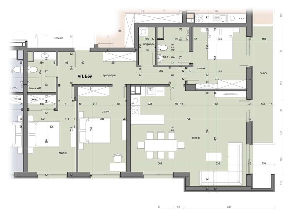
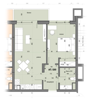
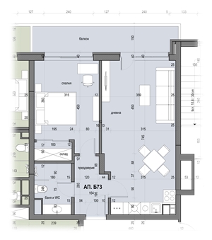
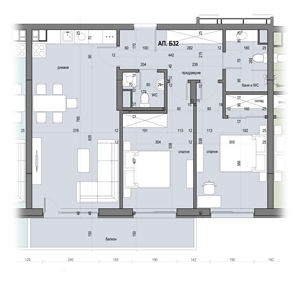
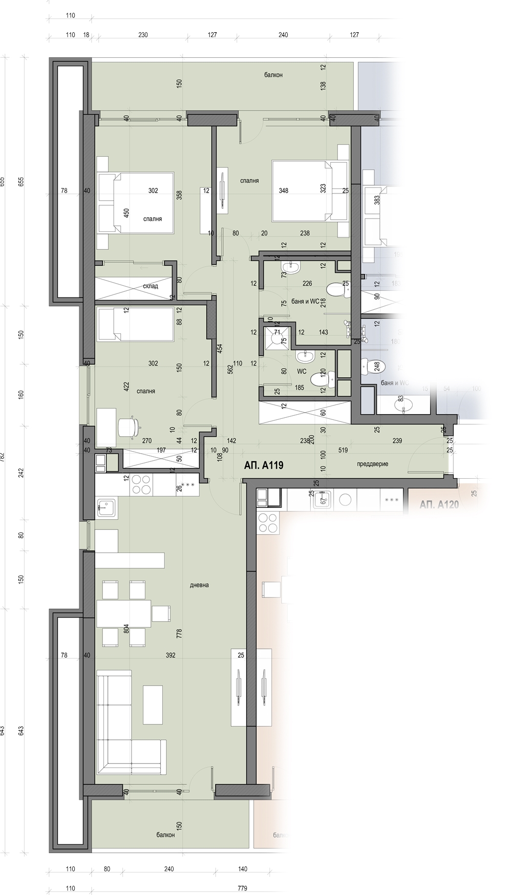
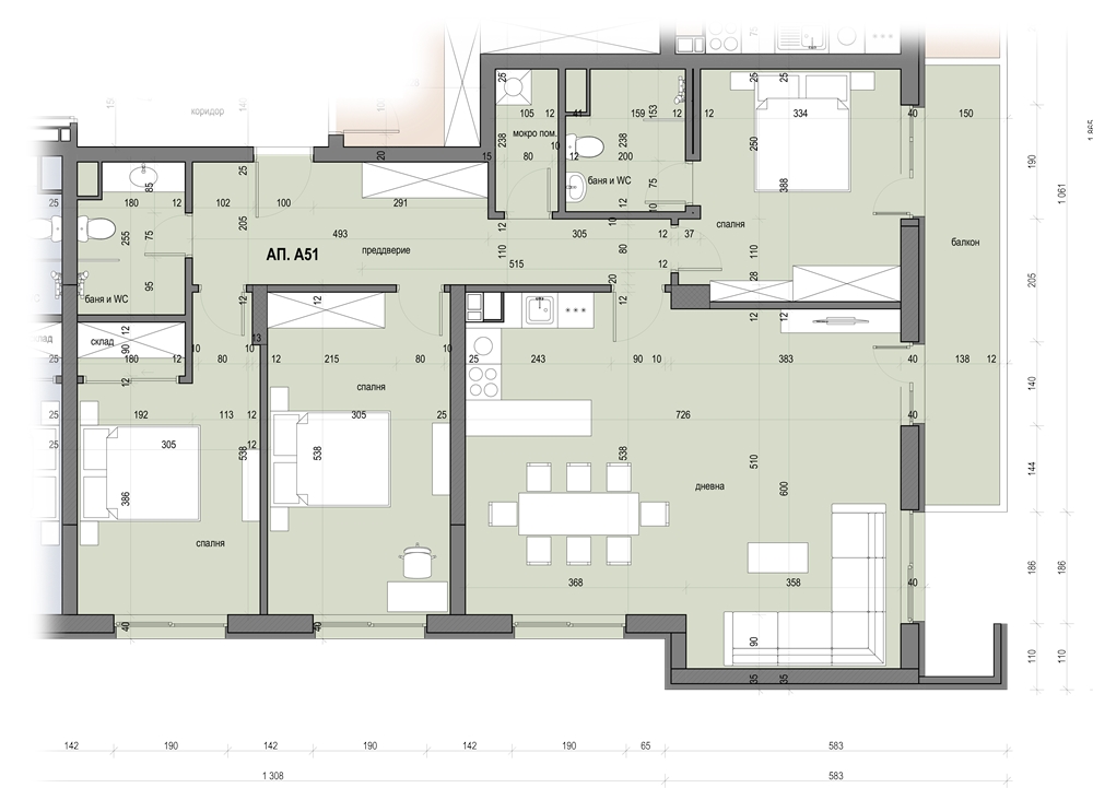
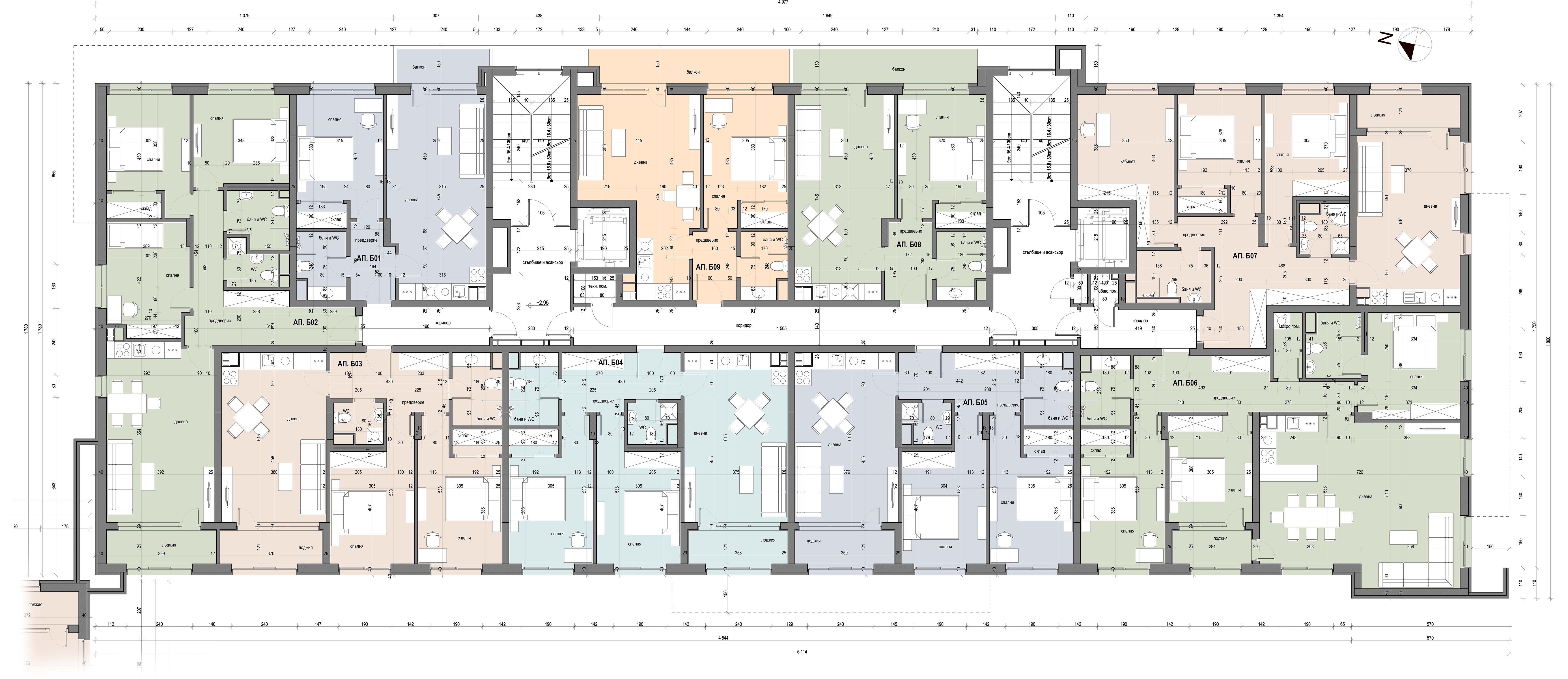
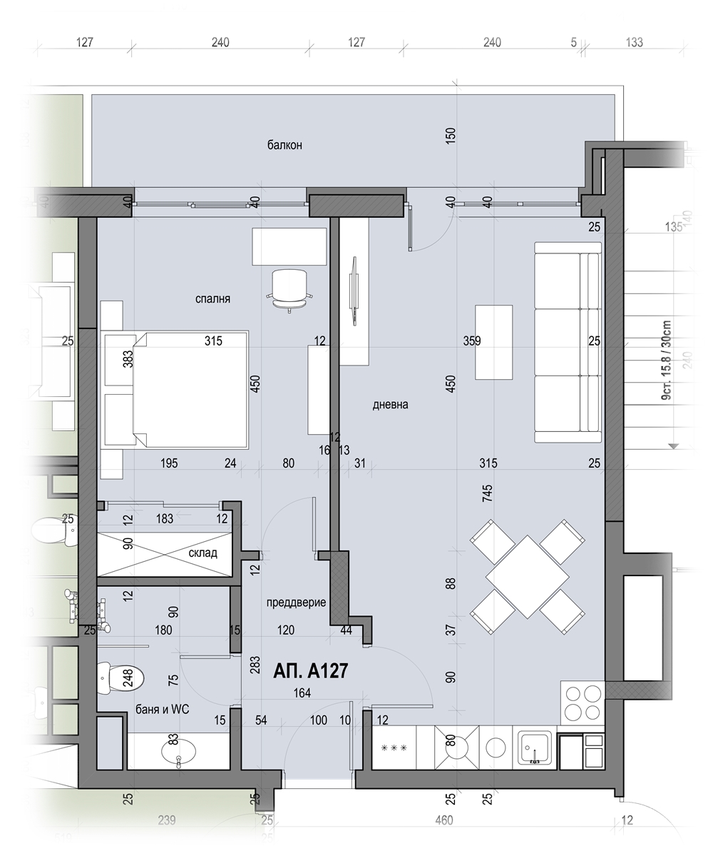
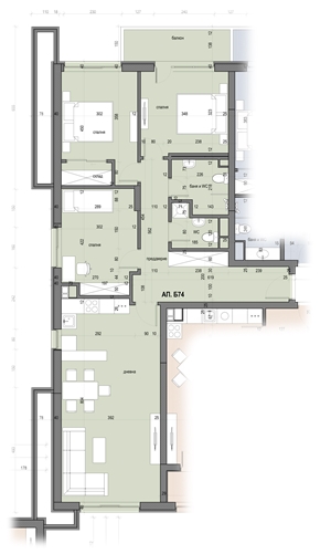
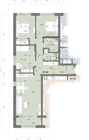
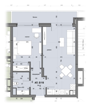
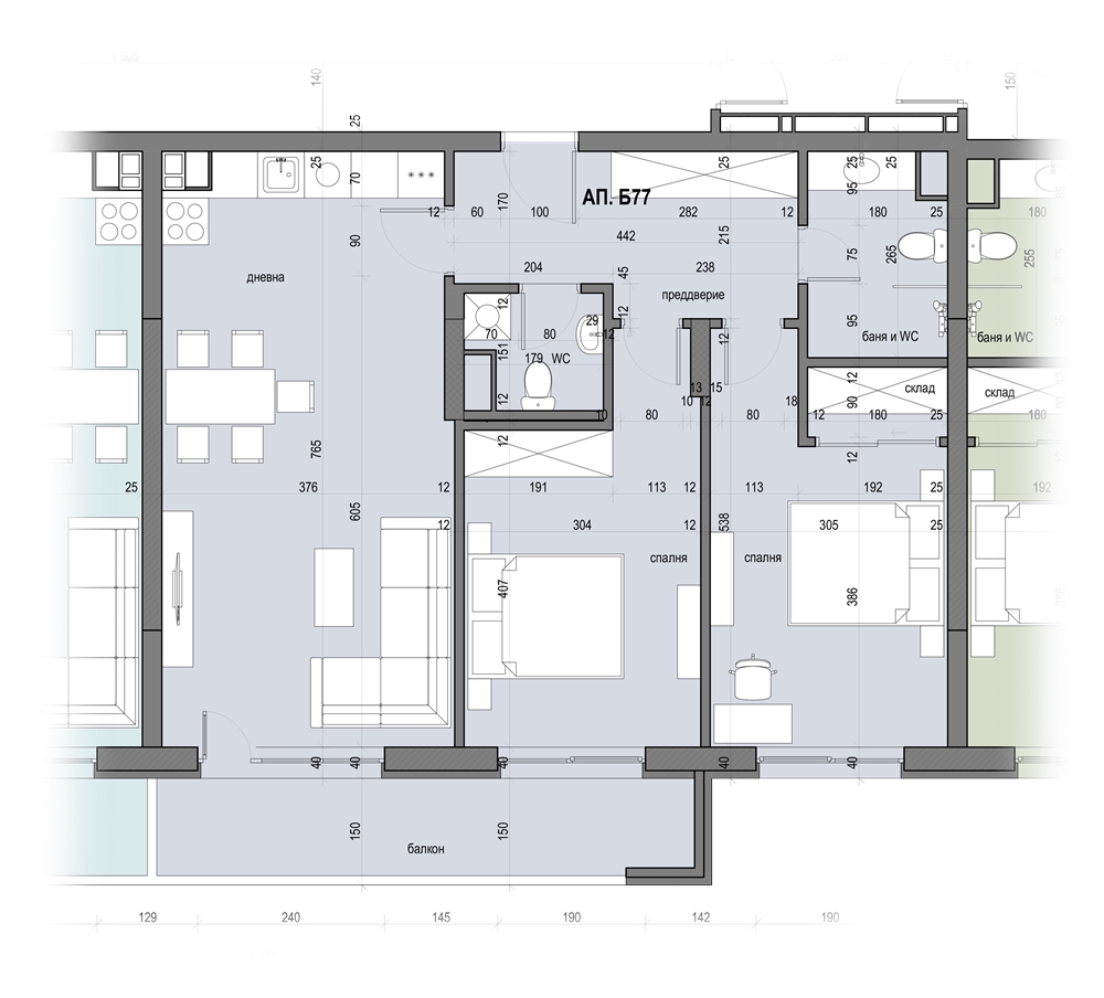
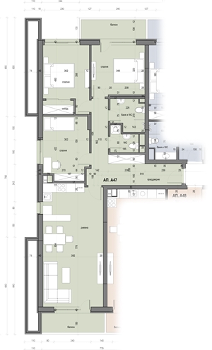
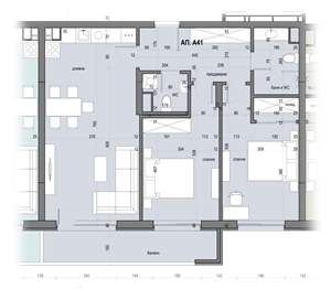
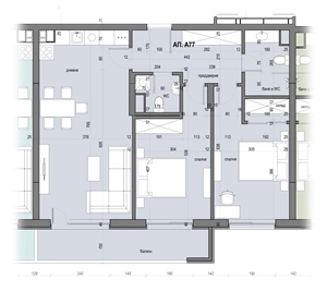
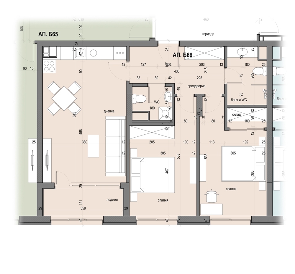
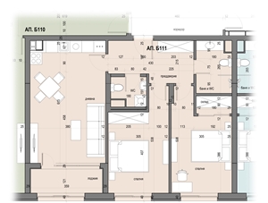
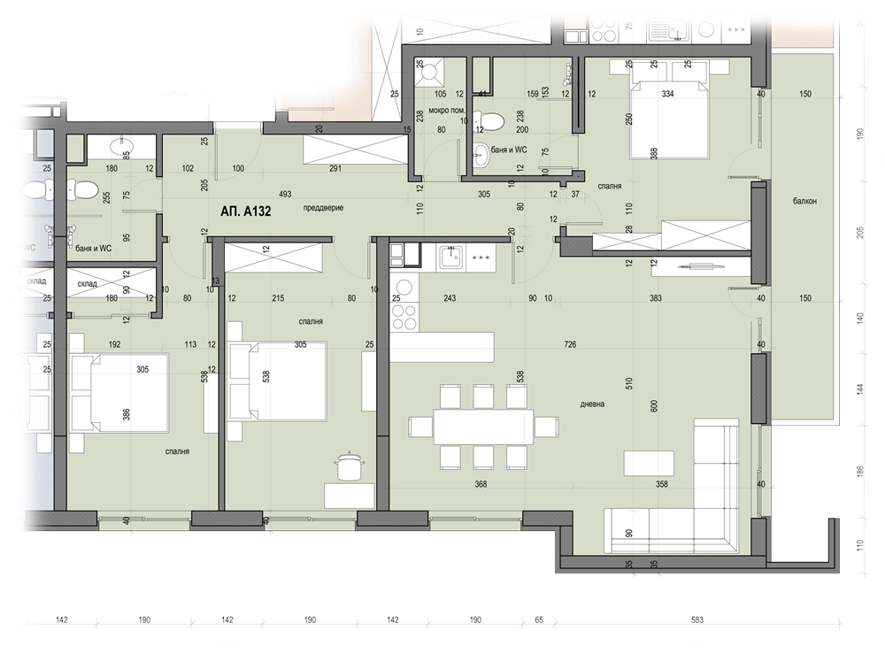
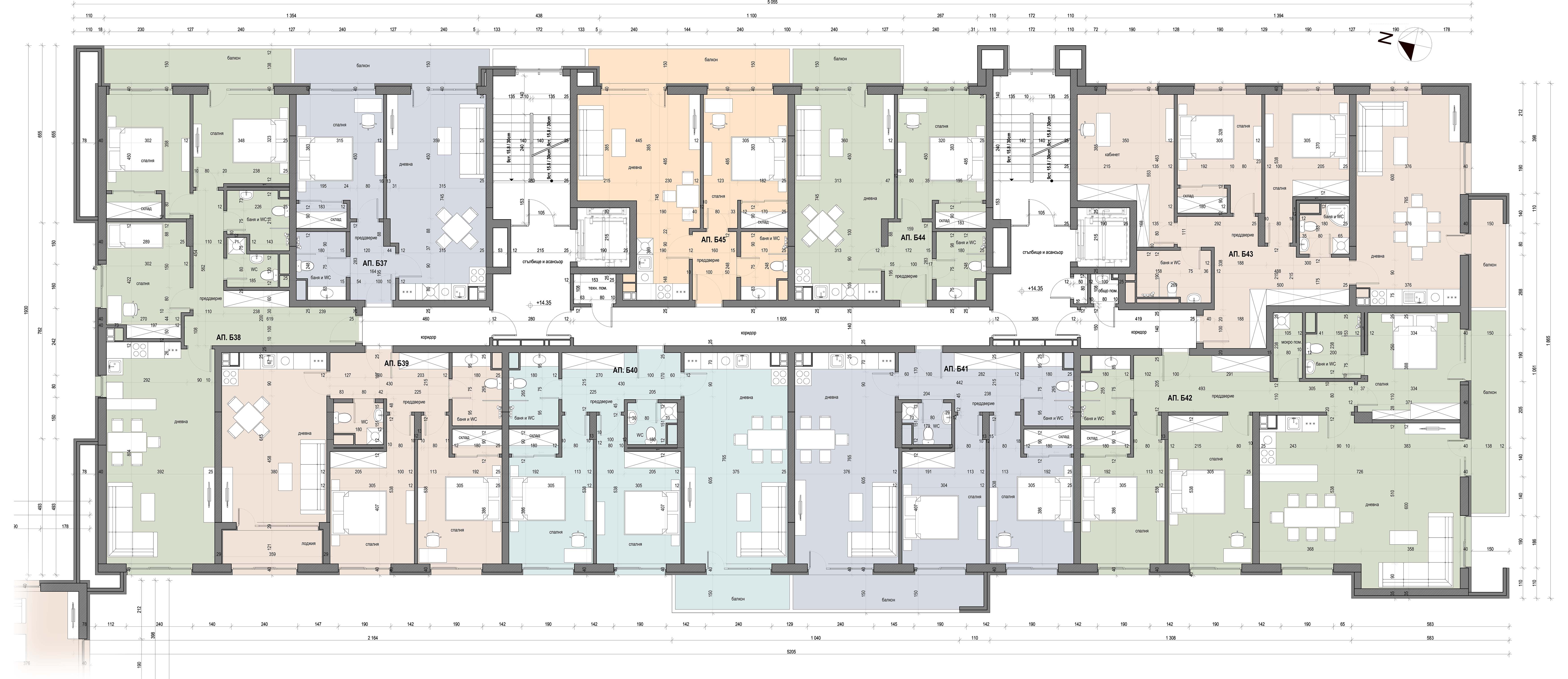
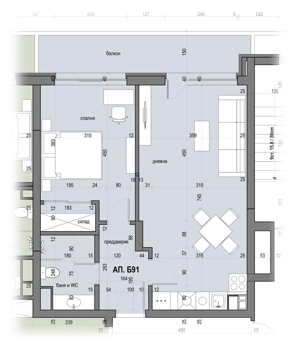
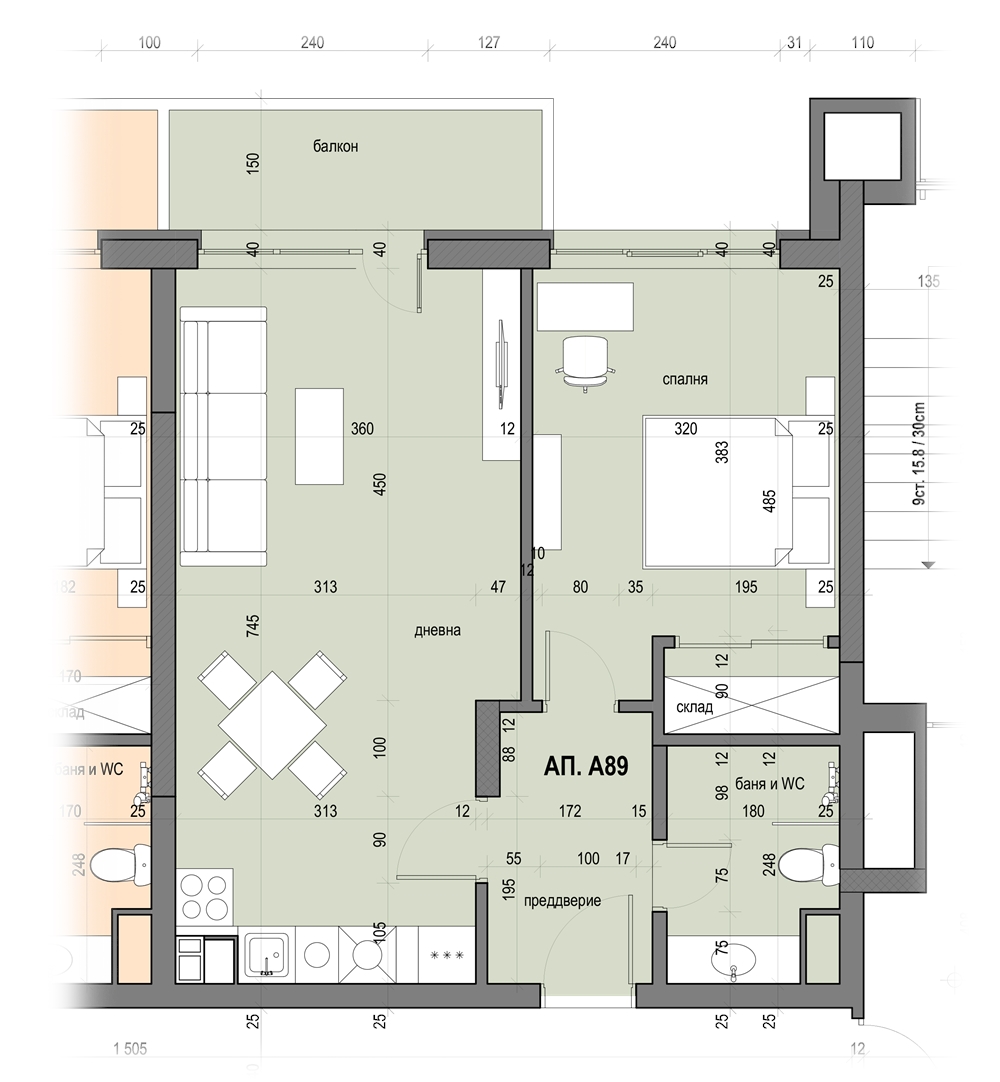
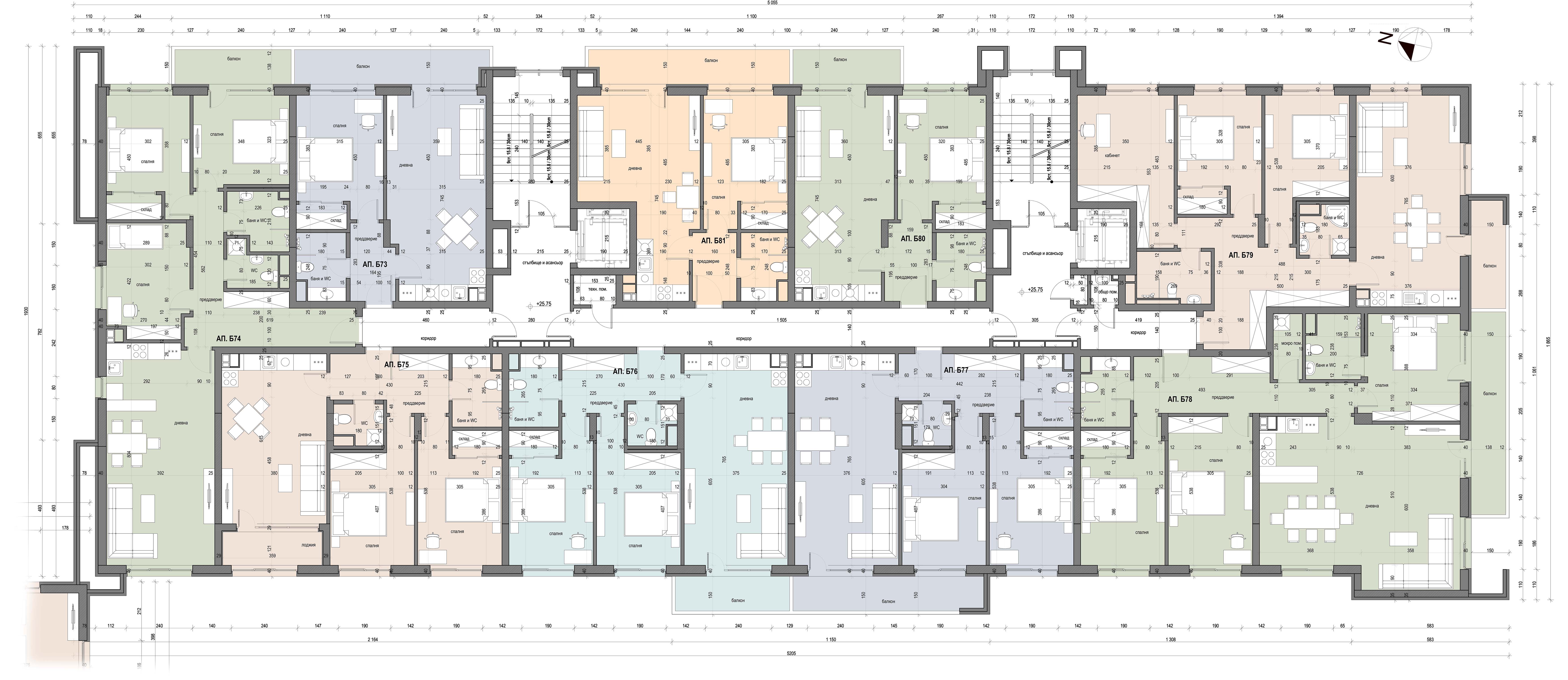
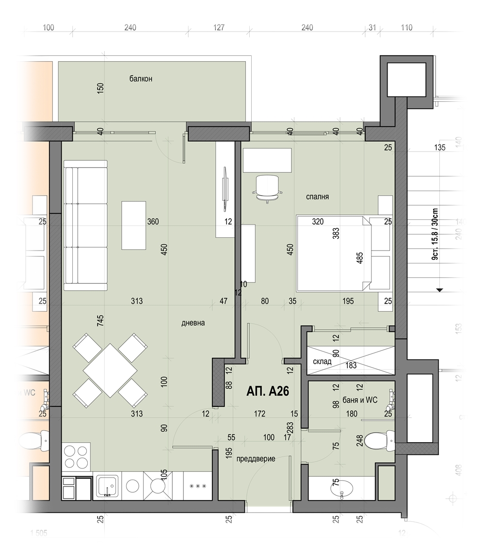
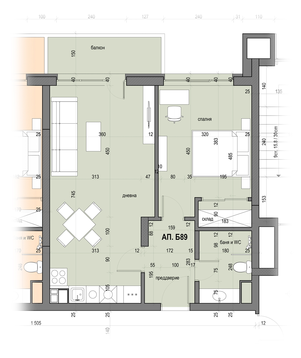
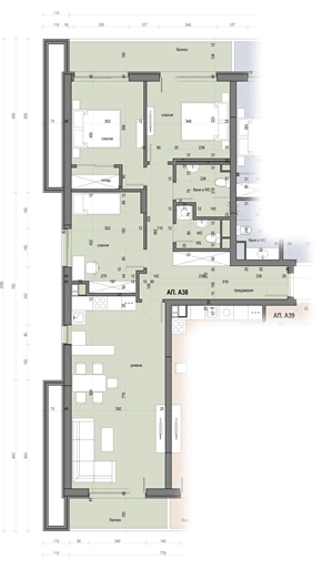
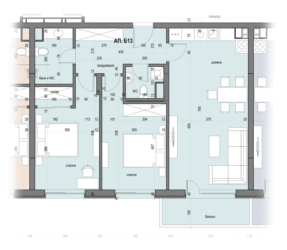
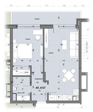
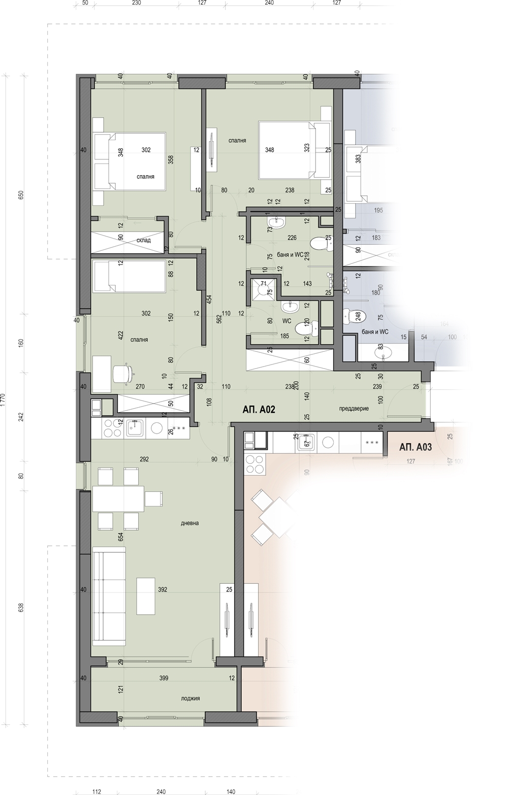
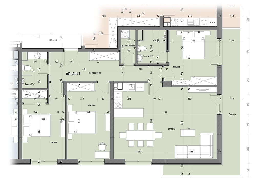
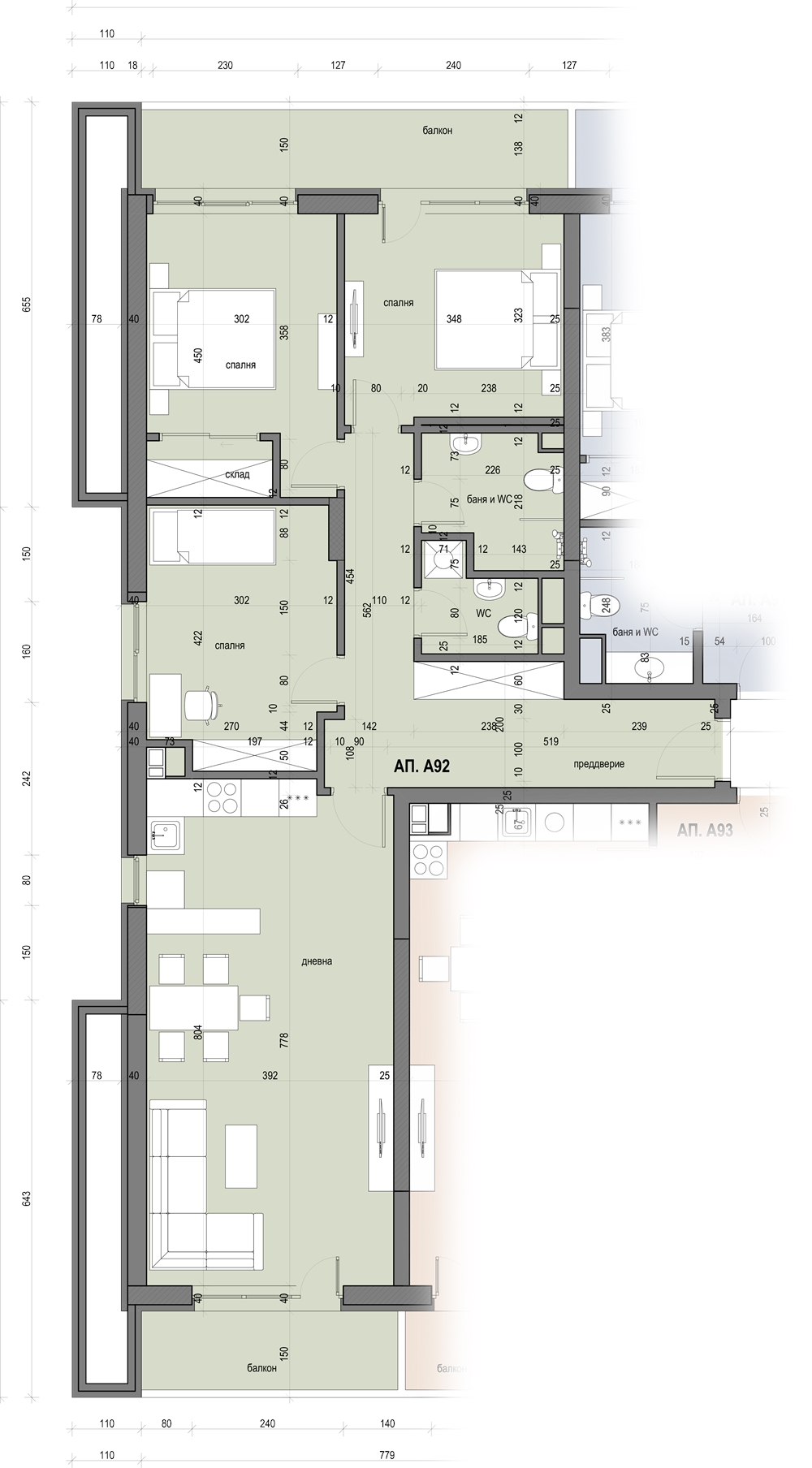
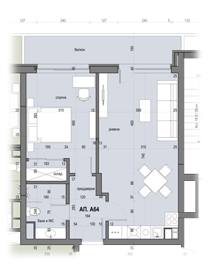
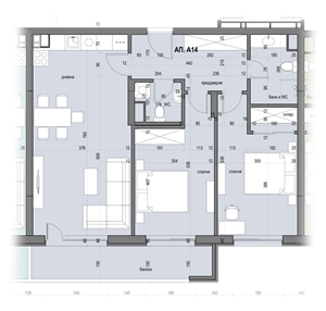
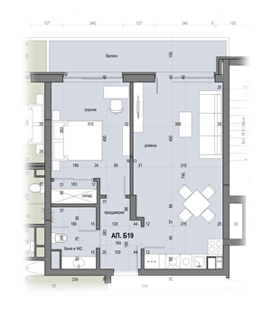
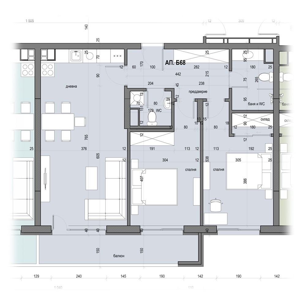
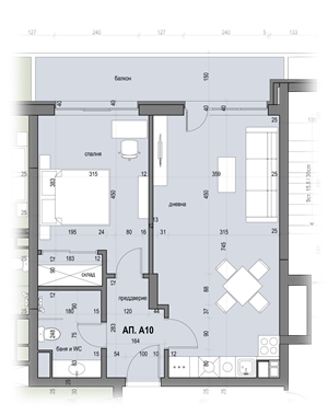
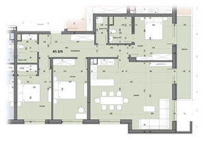
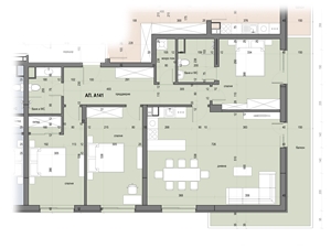
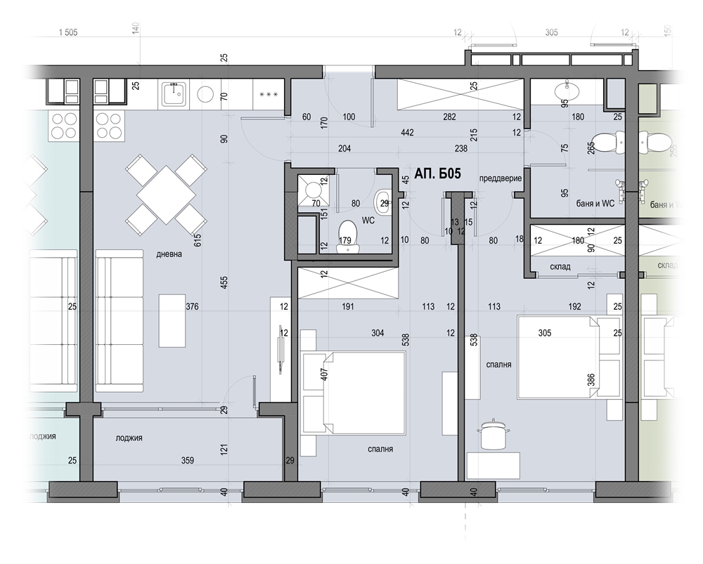
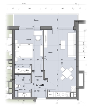
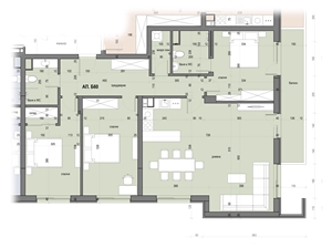
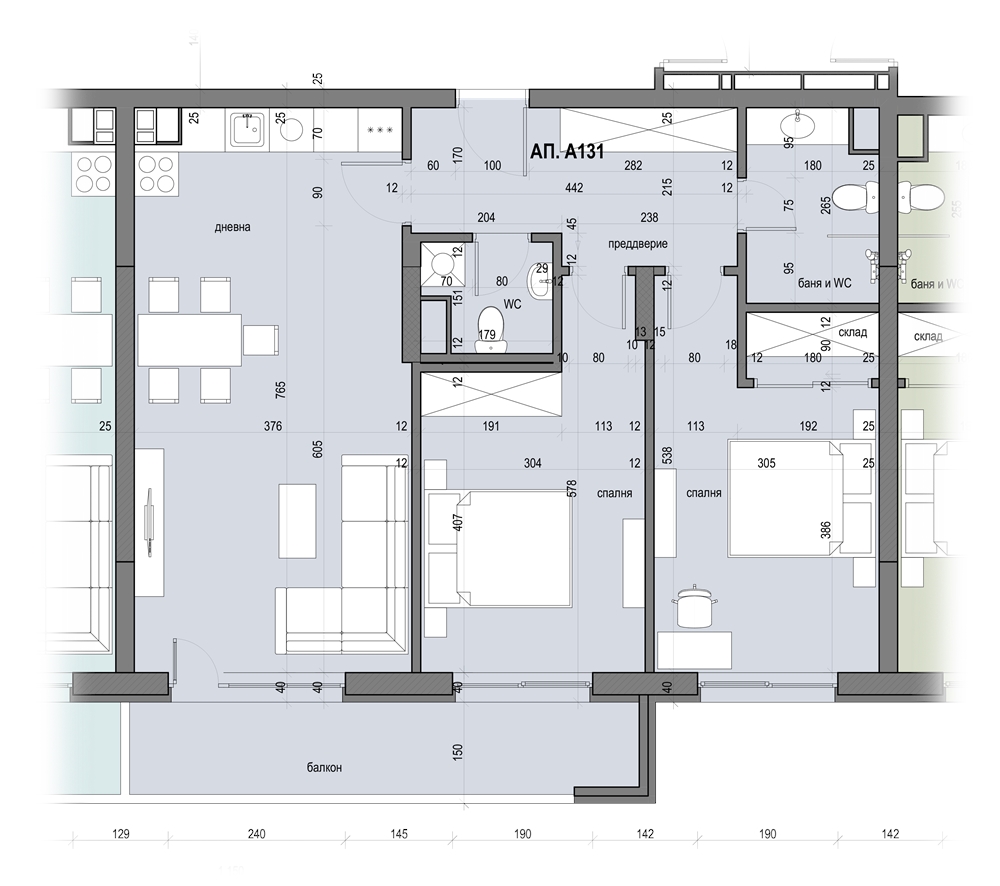
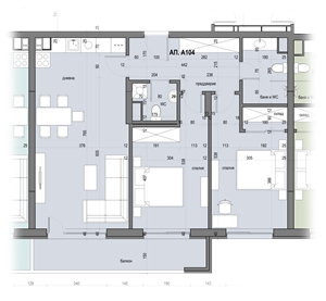
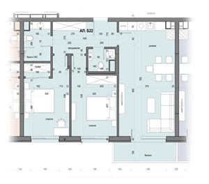
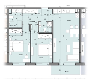
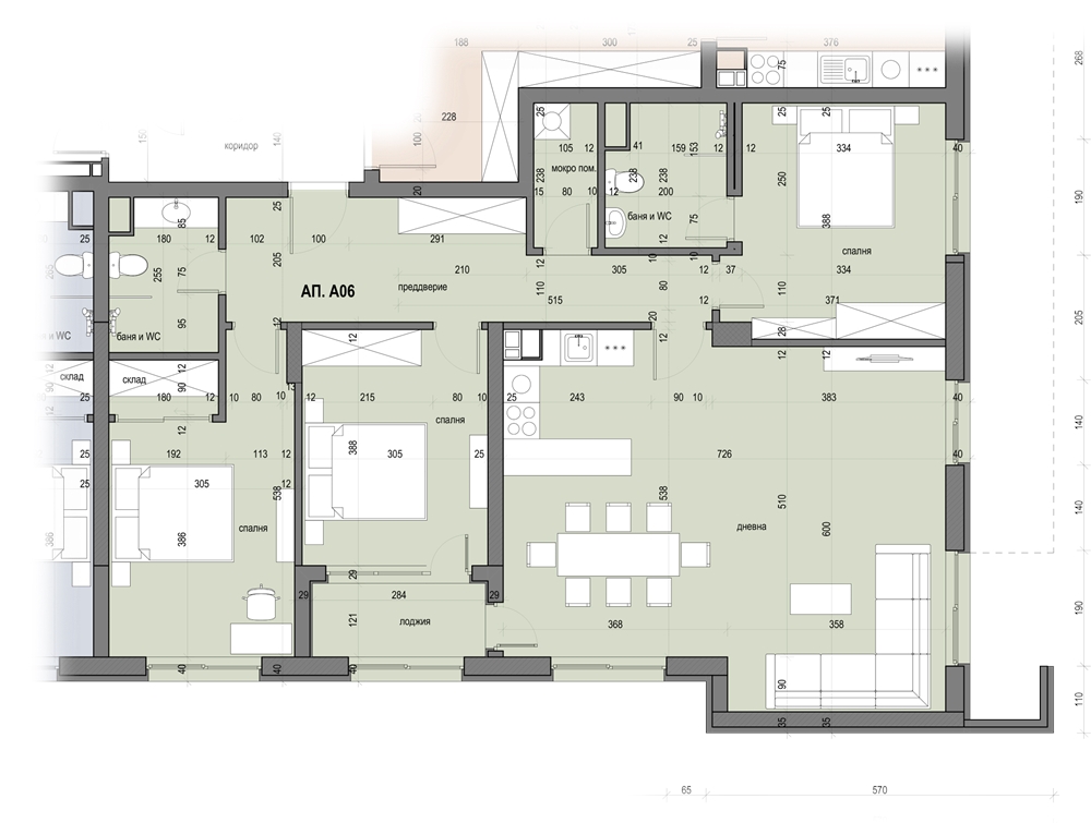
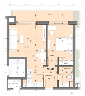
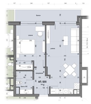
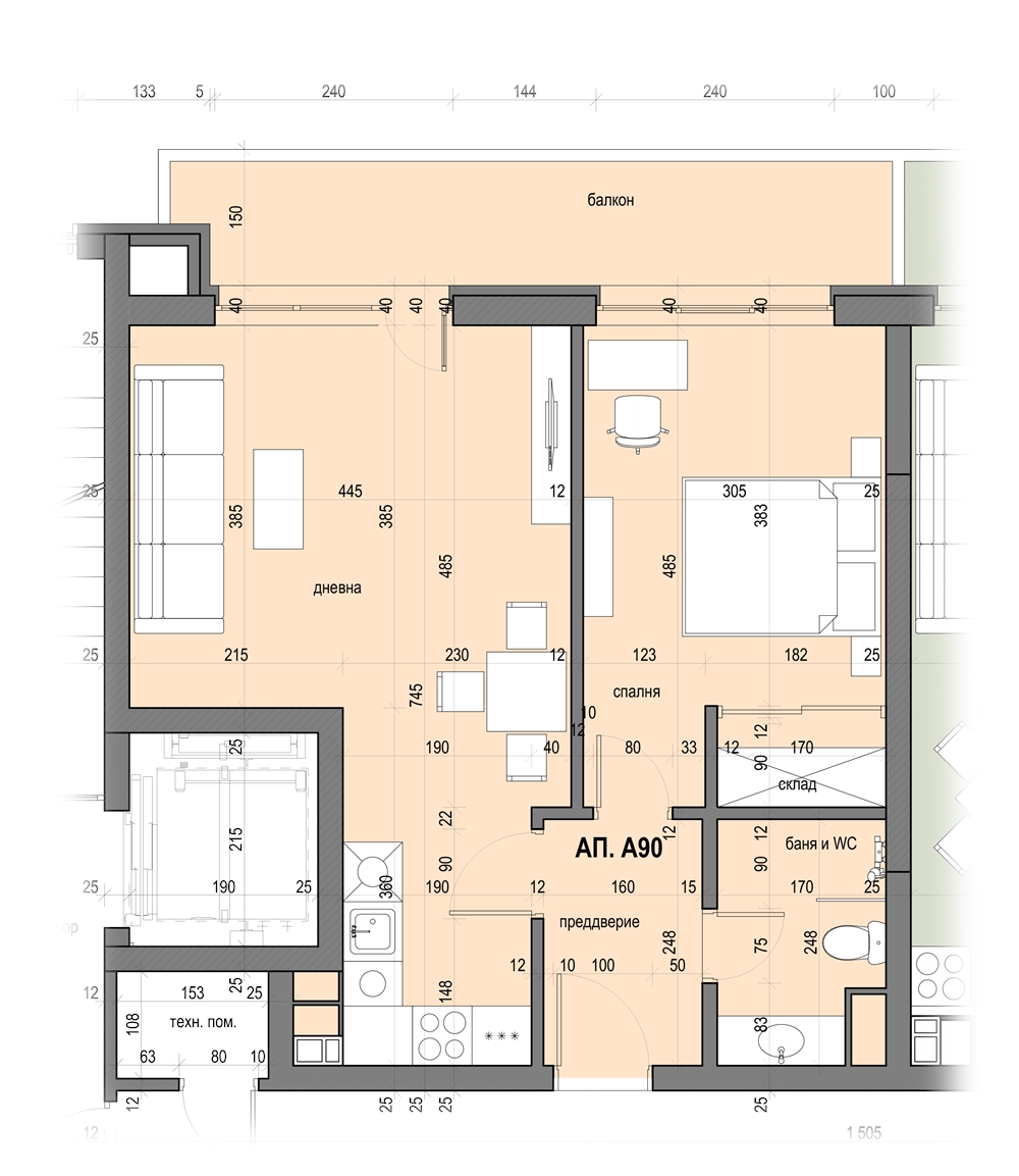
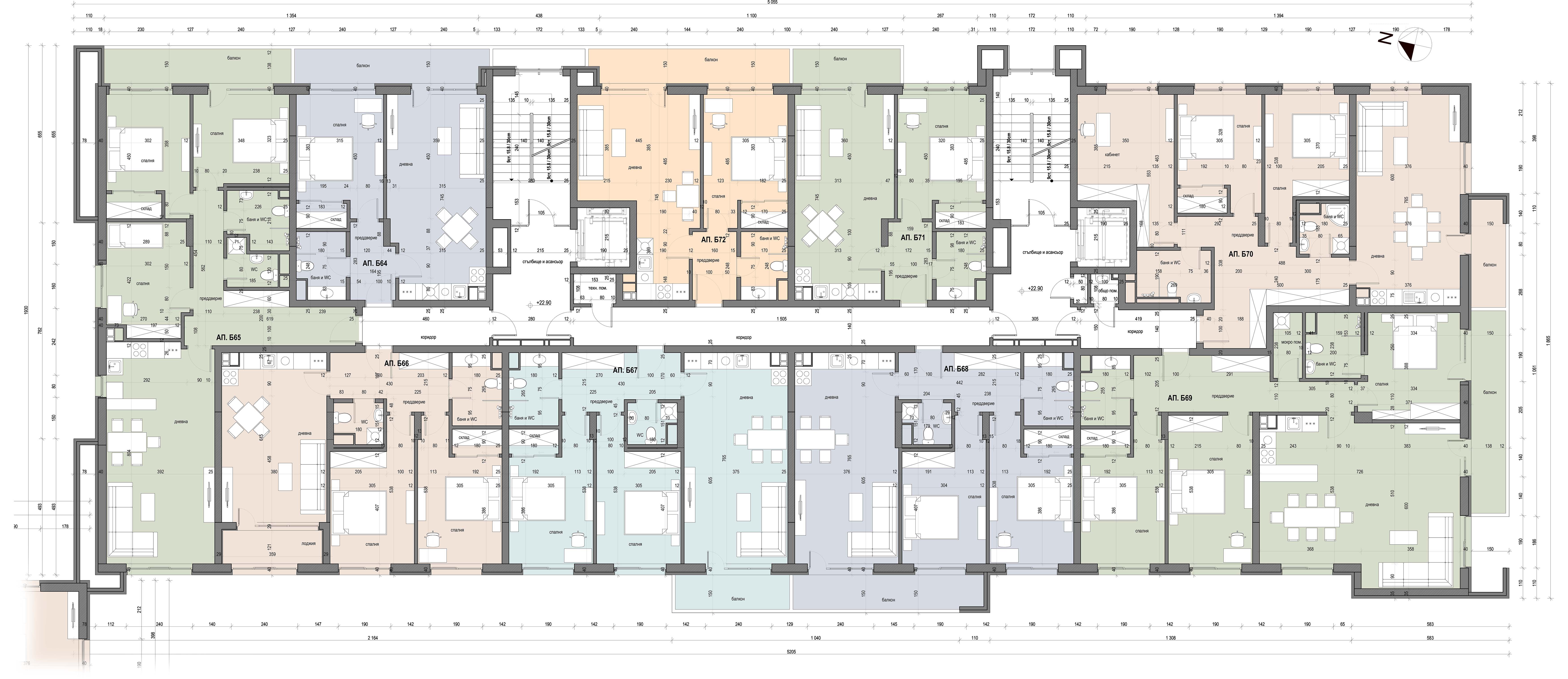
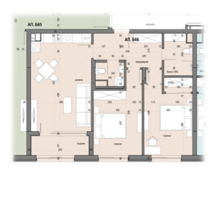
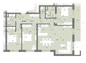
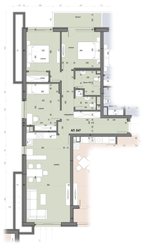
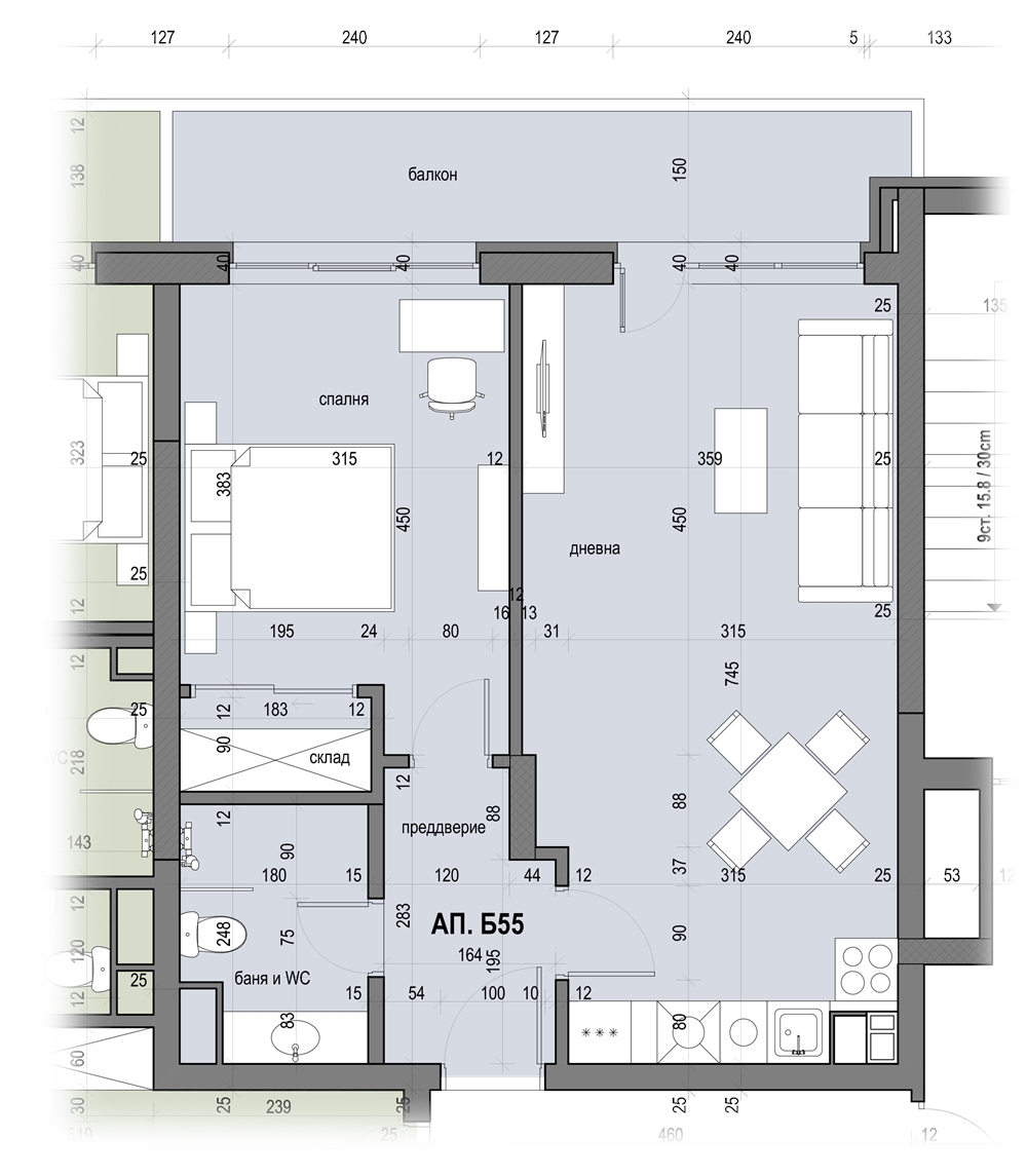
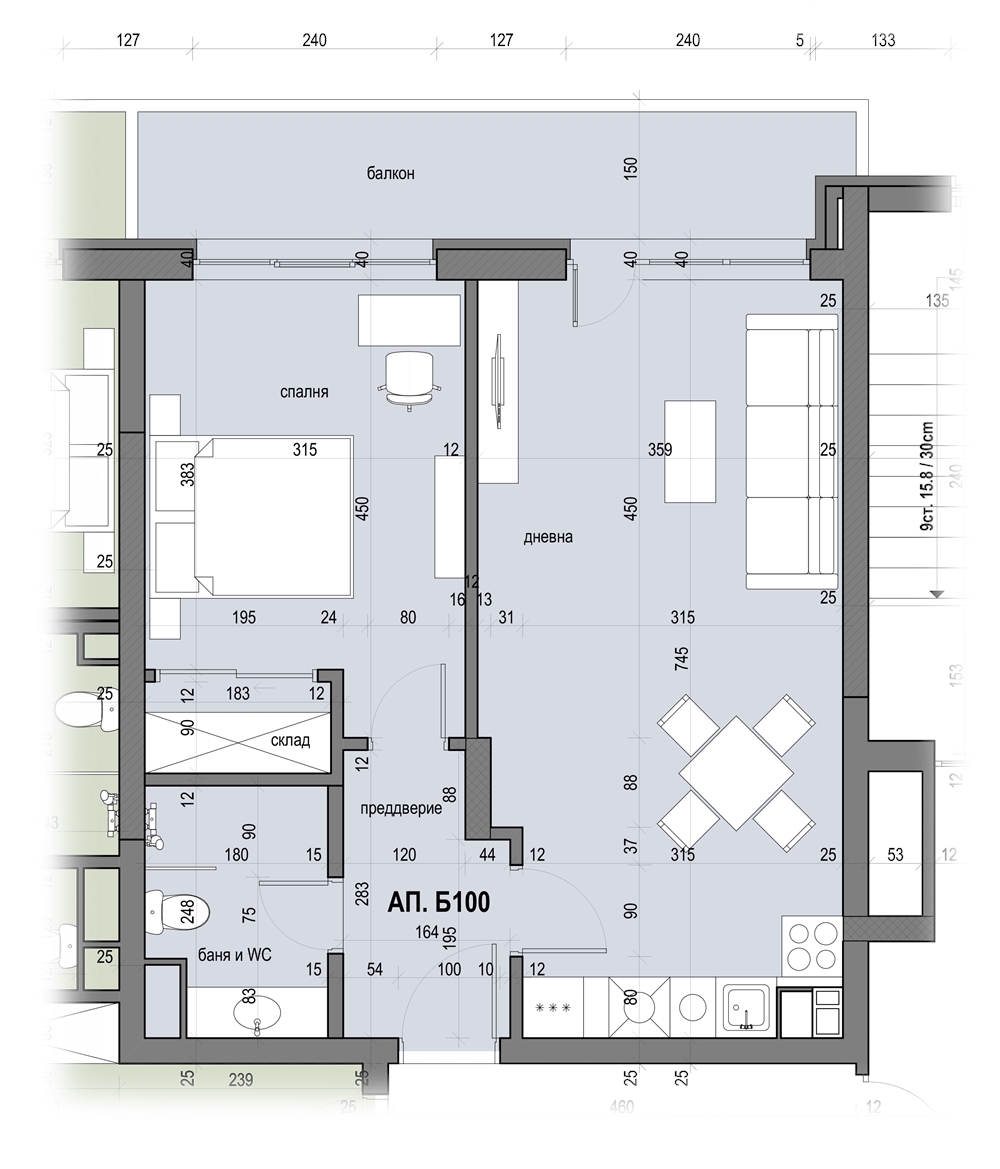
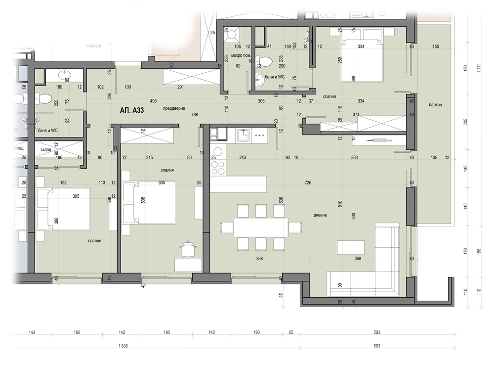
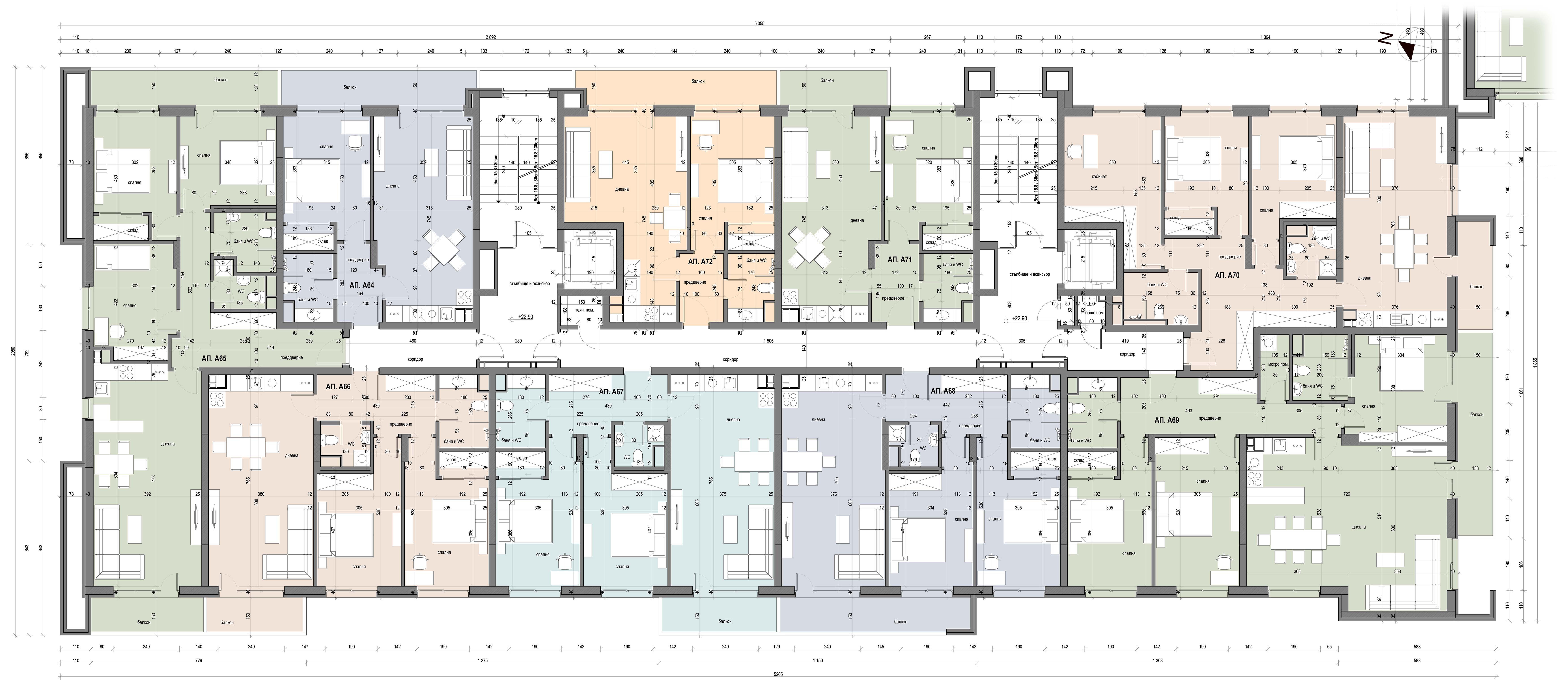
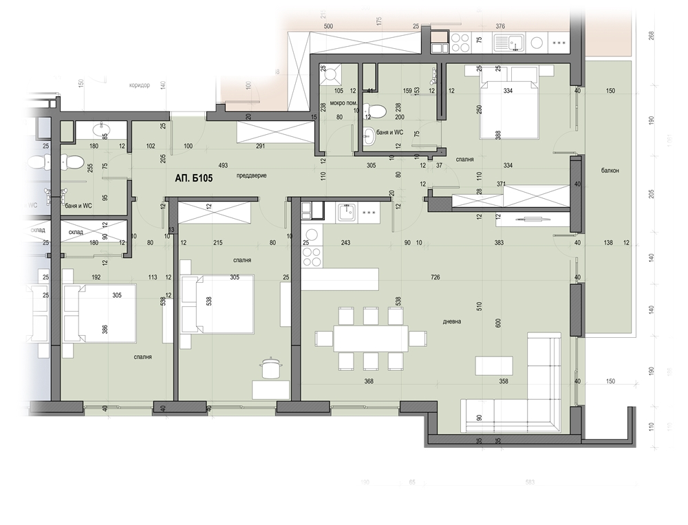
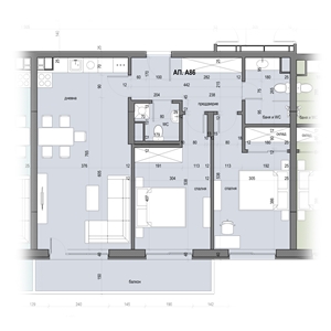
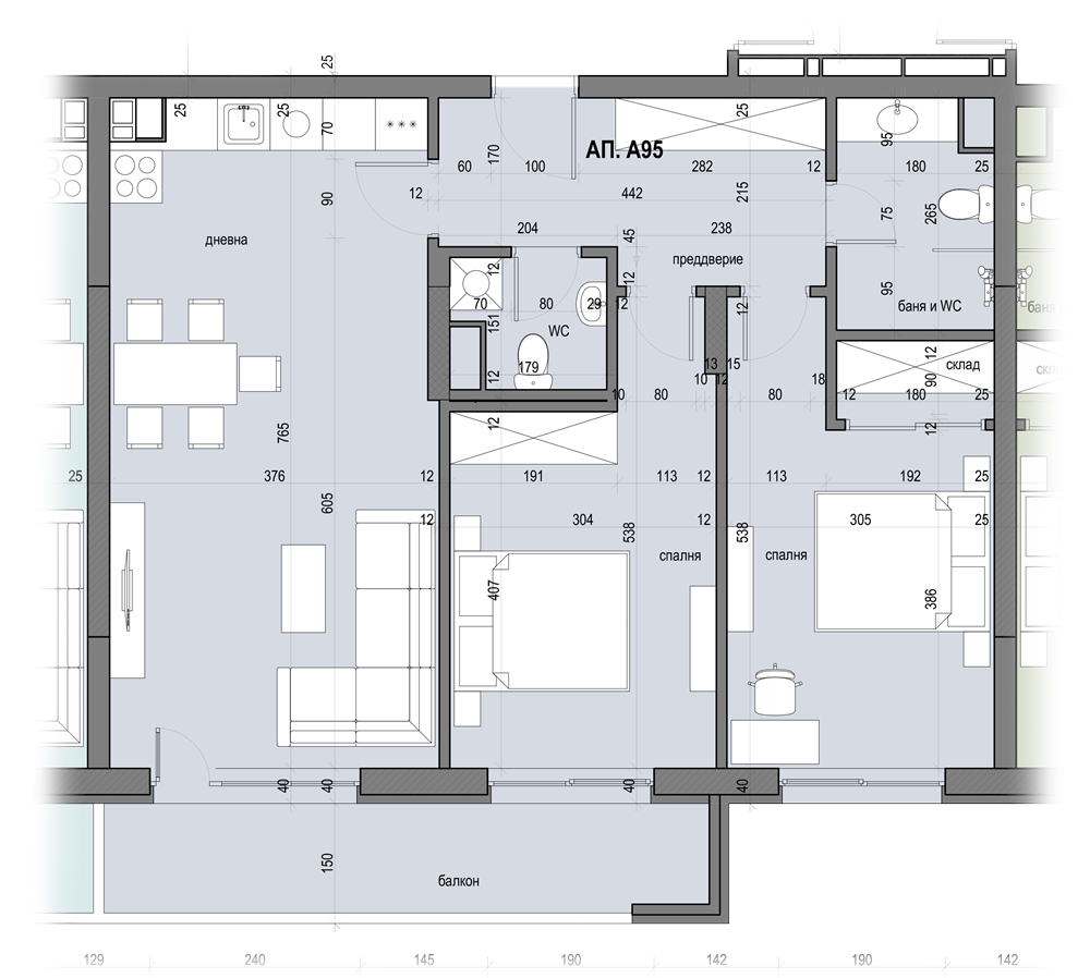
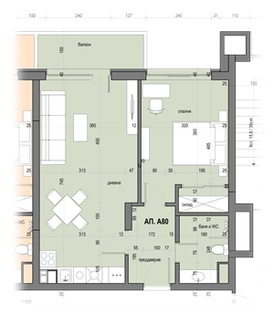
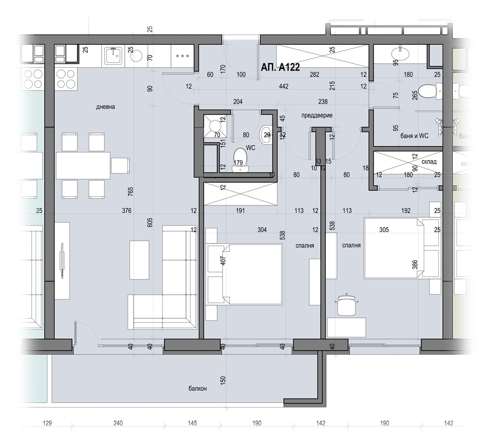
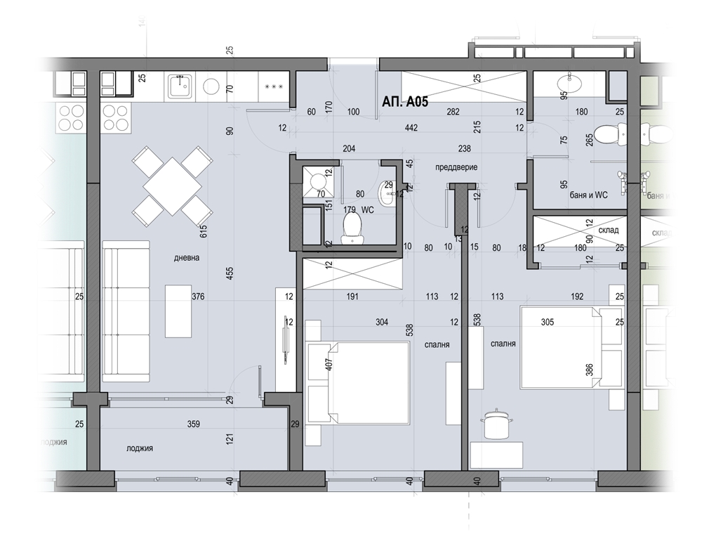
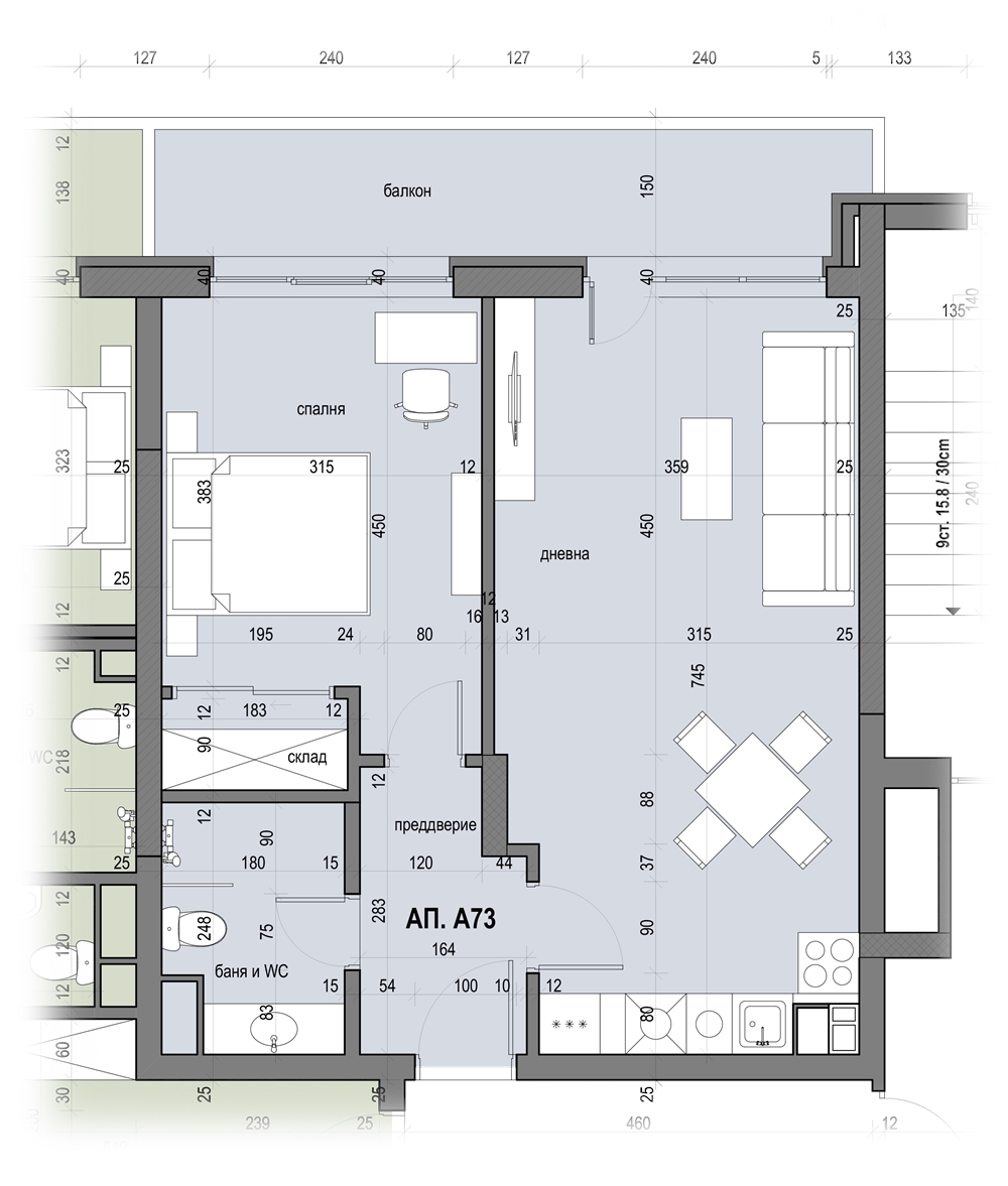
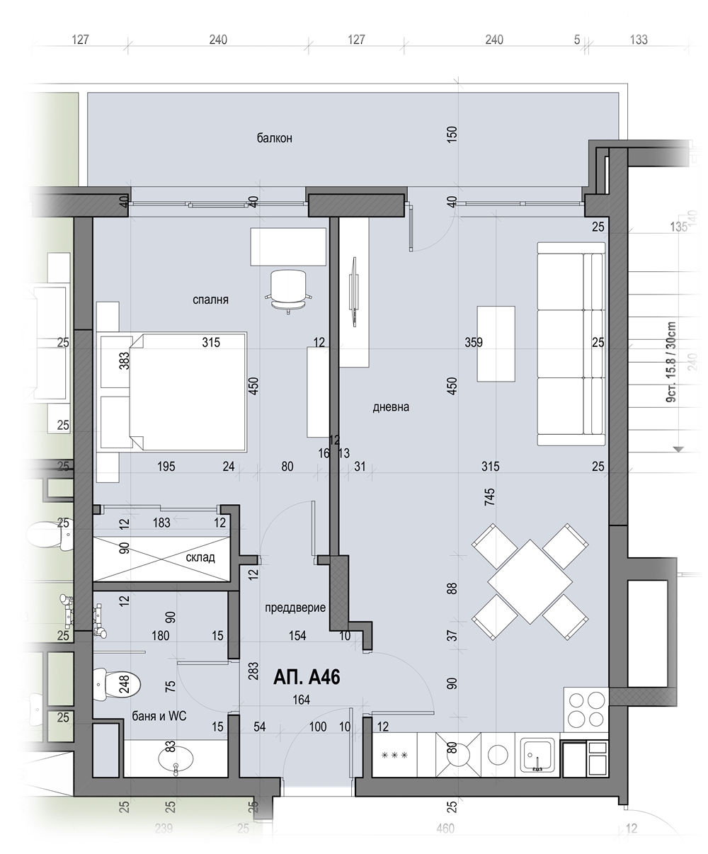
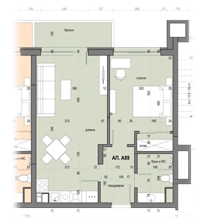
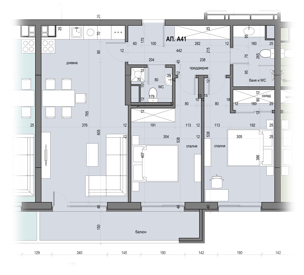
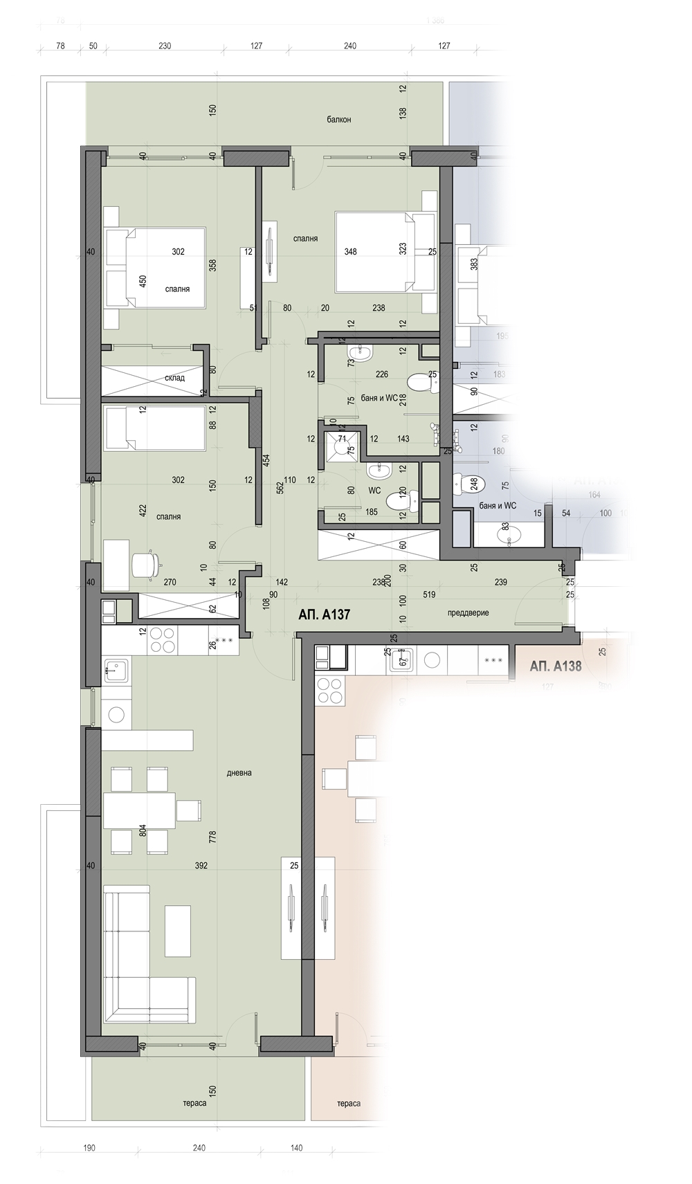
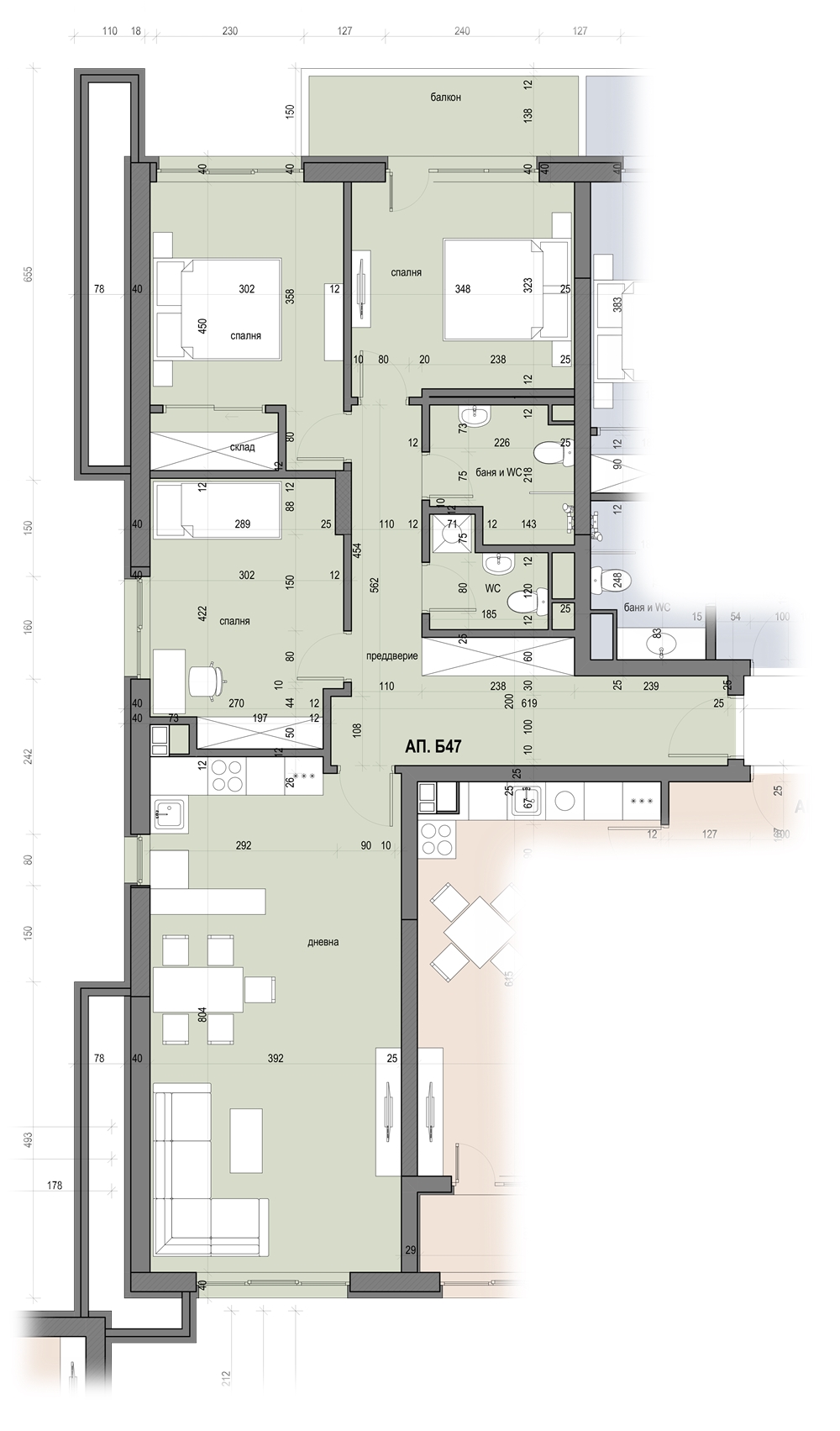
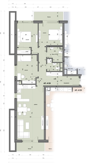
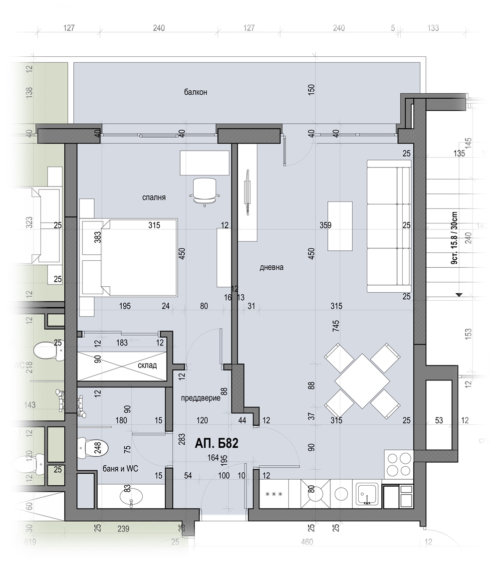
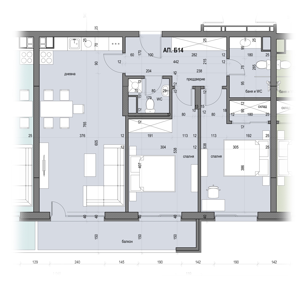
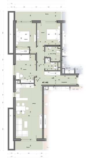
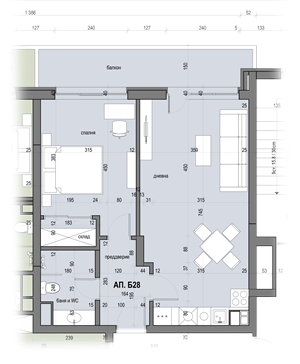
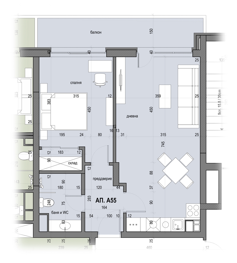
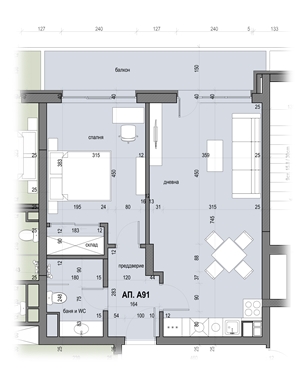
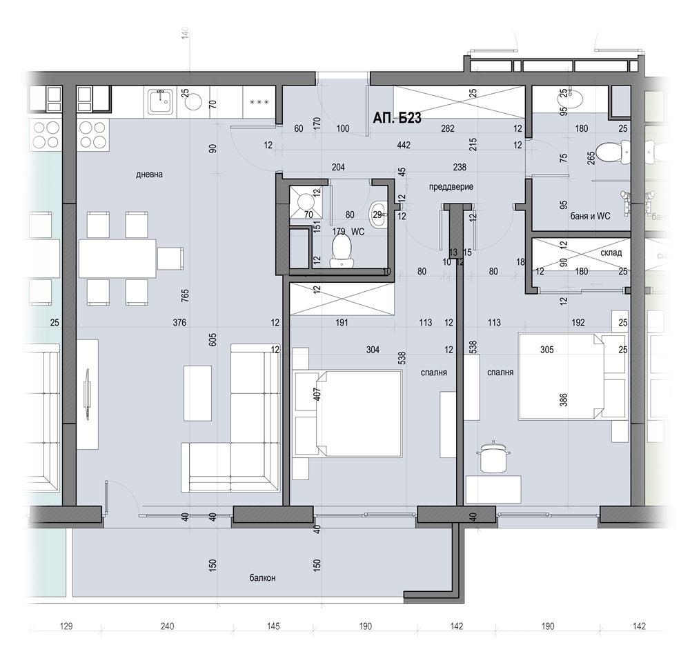
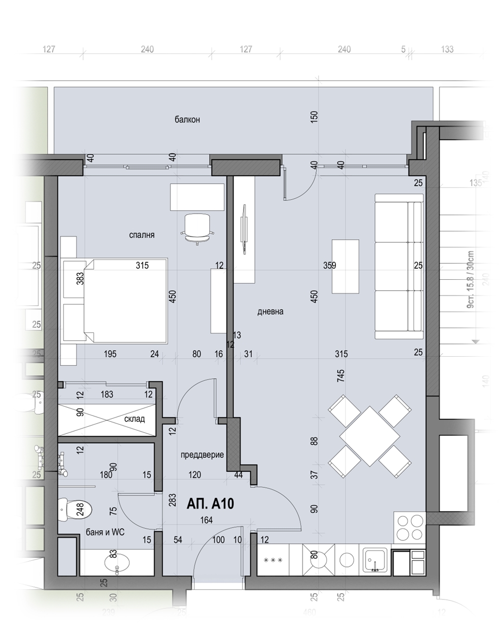
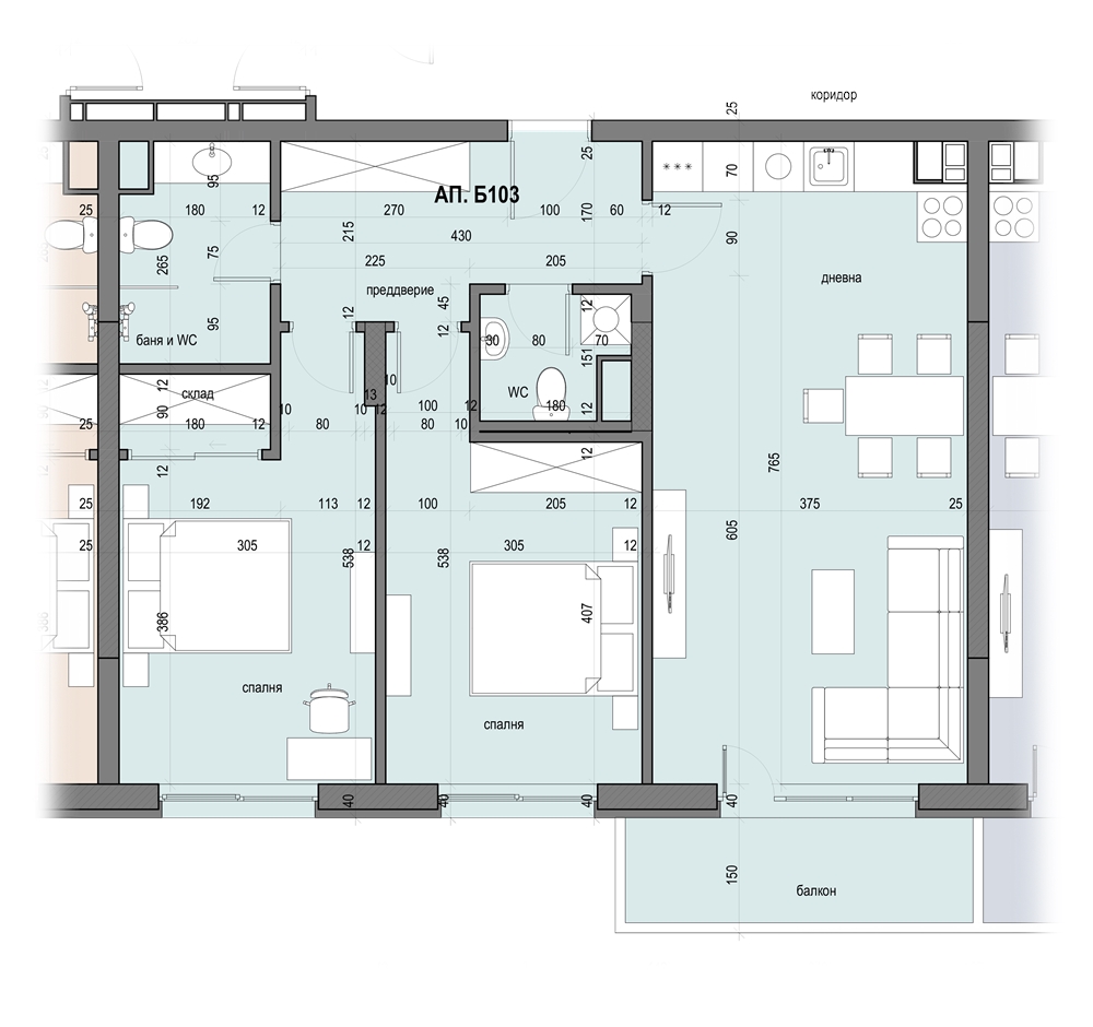
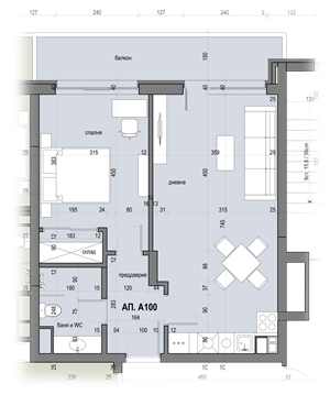
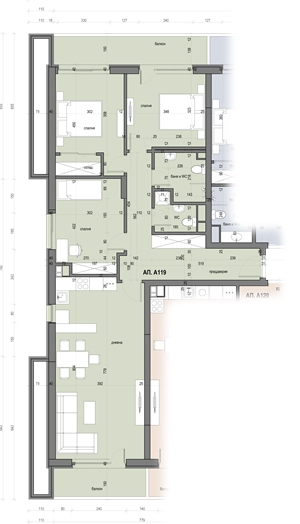
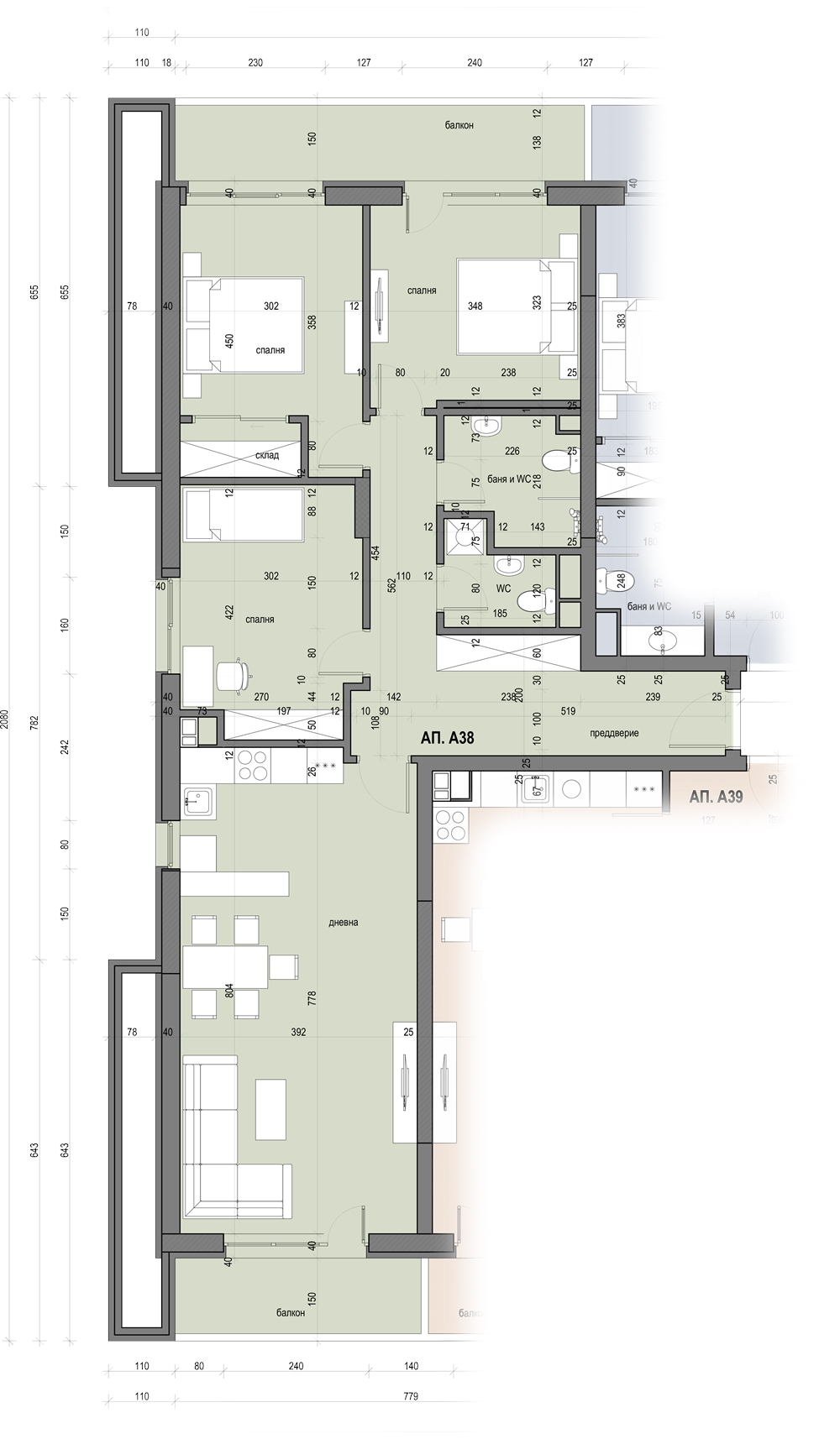
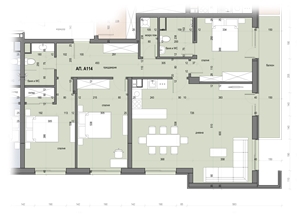
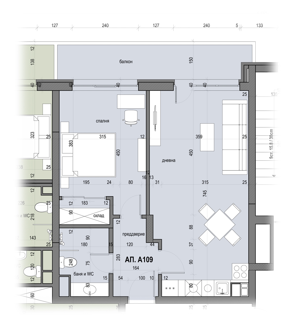
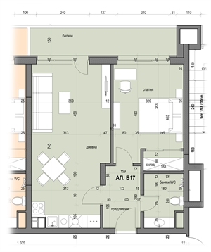
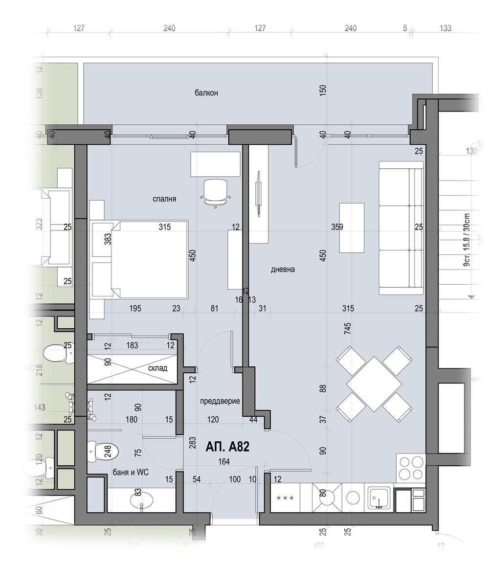
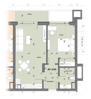
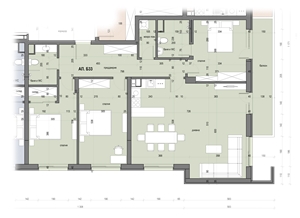
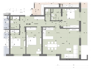
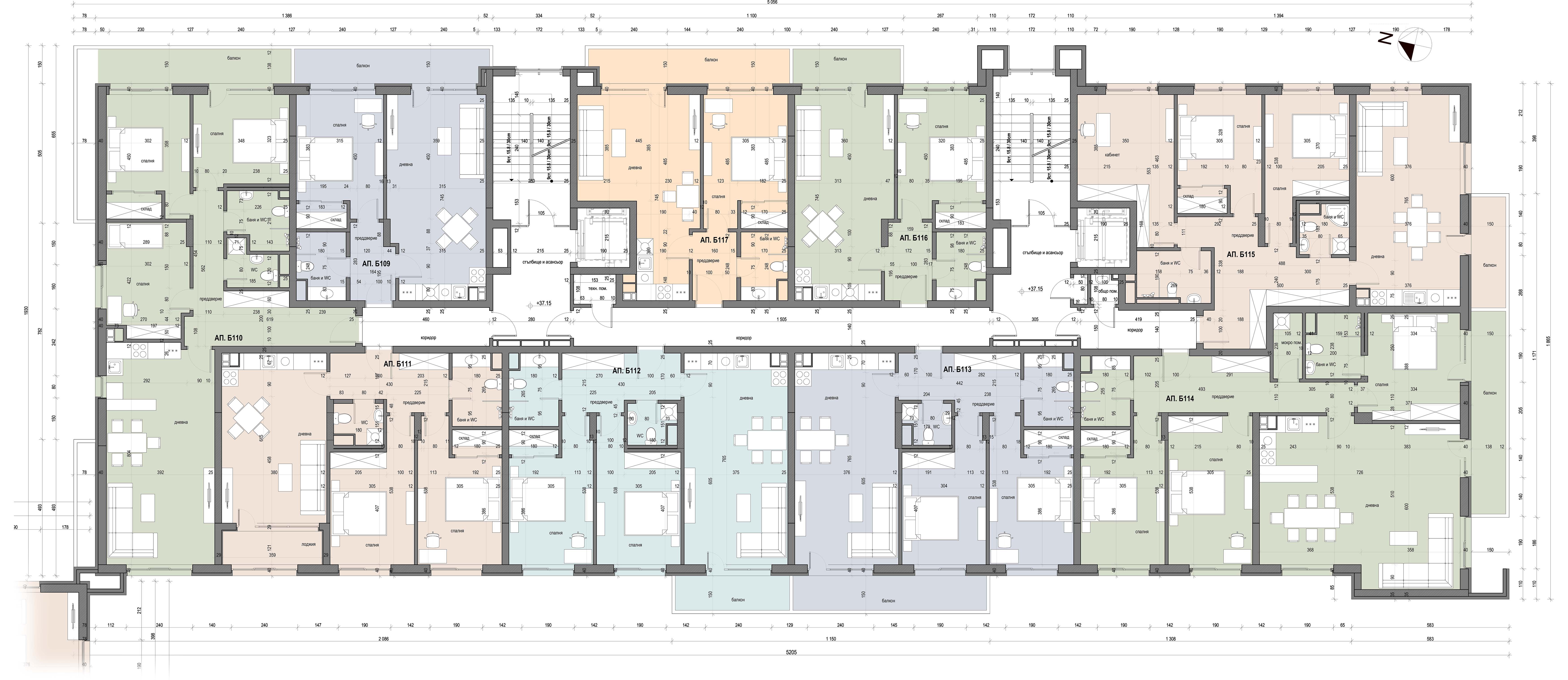
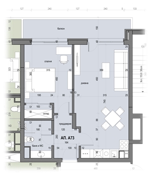
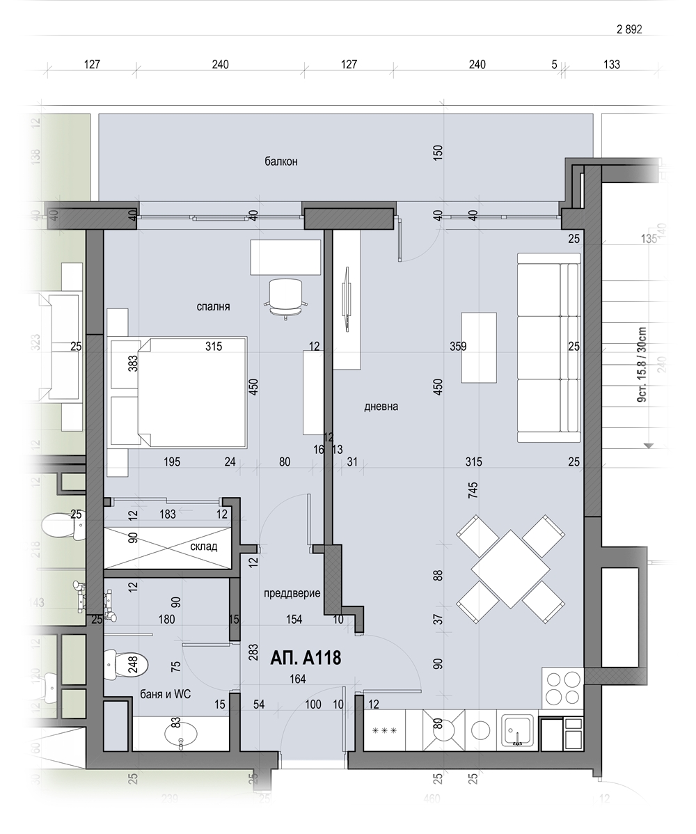
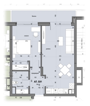
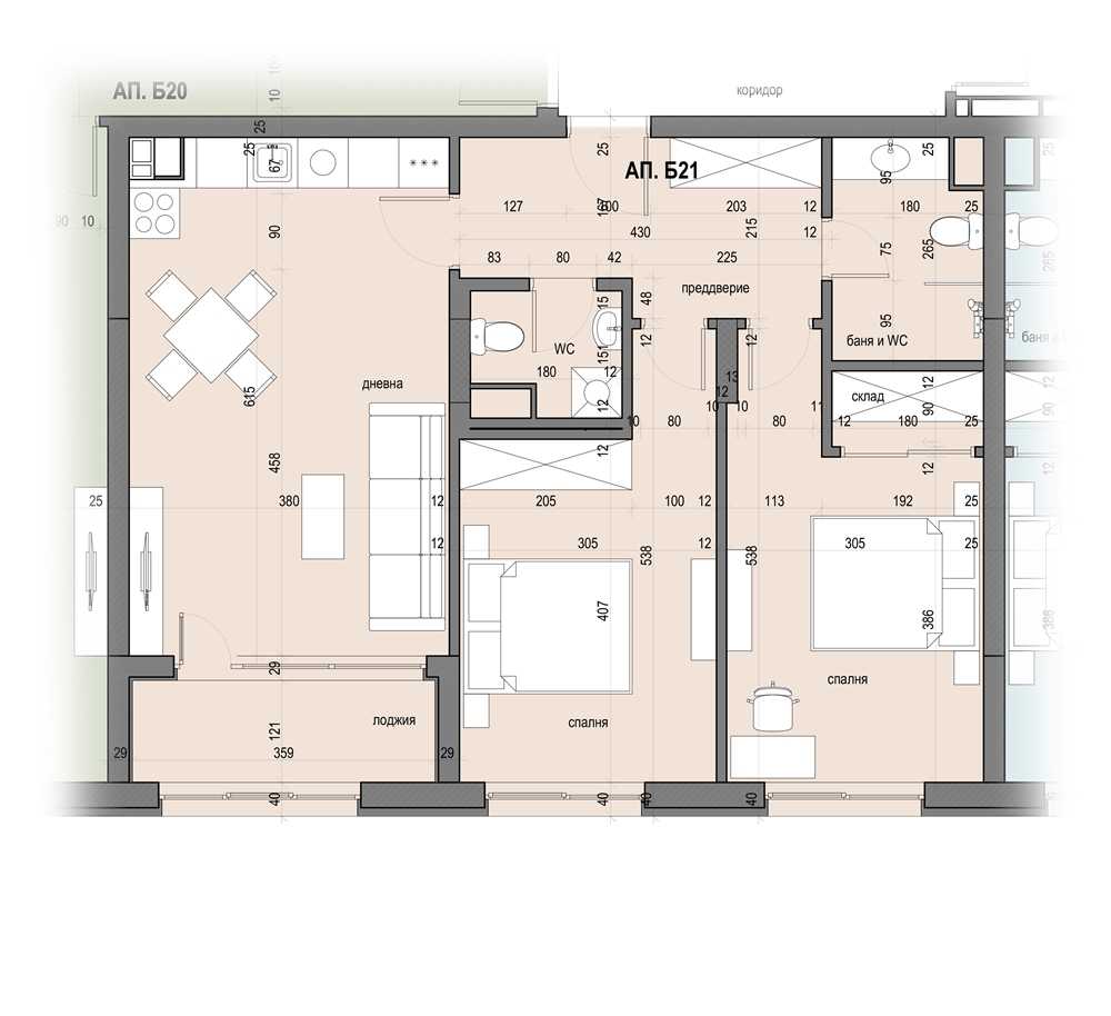
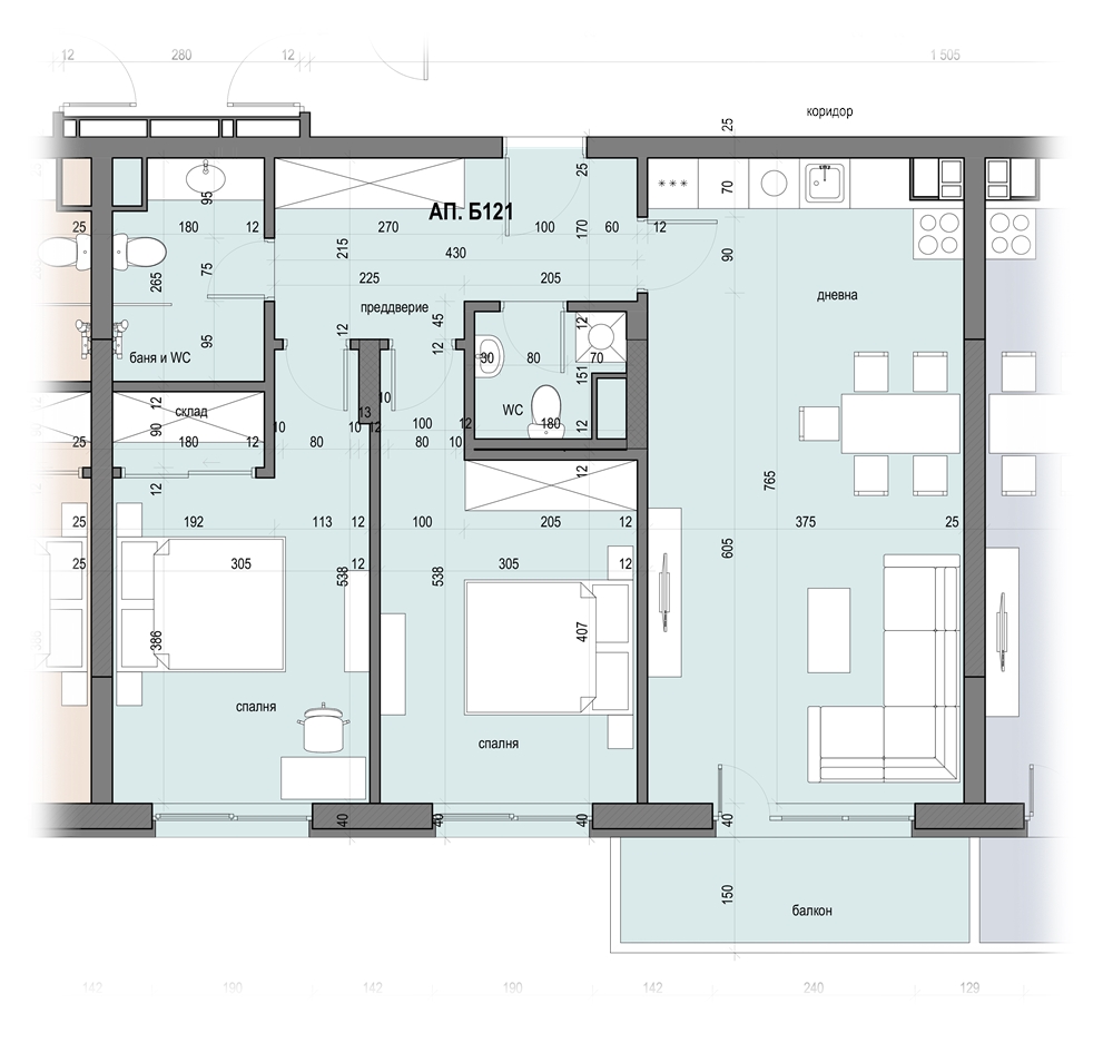
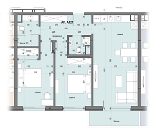
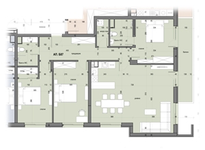
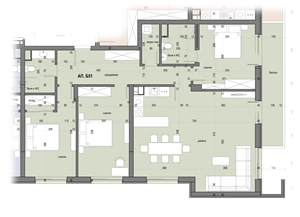
Предлагаме разнообразие от комфортни апартаменти, като сме се погрижили да бъдат изключително функционални и практични, топли през зимата и много слънчеви. Всички три-  и четиристайни жилища се радват на прекрасна панорама към Витоша, а двустайните жилища са с открит и красив хоризонт към Стара планина. В този проект отново сме отделили специално внимание на нуждите на хората с по-големи семейства – тук могат да открият просторни апартаменти с по три спални, с голям слънчев хол 41 кв.м., два санитарни възела и перално/складово помещение.

Всички апартаменти са с вградено водно подово отопление на ТЕЦ, с  с допълнителна топло- и шумо-изолация, вградена в подовата замазка. Съвършеният комфорт и високото качество на живот ще са обезпечени с максимални изолационни параметри на сградите - най-висок клас дограма Schüco, шумоизолационен троен стъклопакет (съставен от 6 mm. енергоефективно стъкло, 4 mm. бяло и 5 mm. К-стъкло, с аргон), окачена фасада,  пожароустойчиви и шумоизолационни стени между апартаментите с Akustik технология, топлизолационна каменна вата 15 см., червена тухла Winerberger, естествени материали за декорация на общите части на сградата - комбинация от импрегниран варовик и гранит. Площите с общи части на двустайните апартаменти варират от 74,07 кв.м. до 80,11 кв.м, на тристайните апартаменти – от 102,21 кв.м. до 114,11 кв.м., а при четиристайните жилища – от 131,86 кв.м. до 169,75 кв.м.

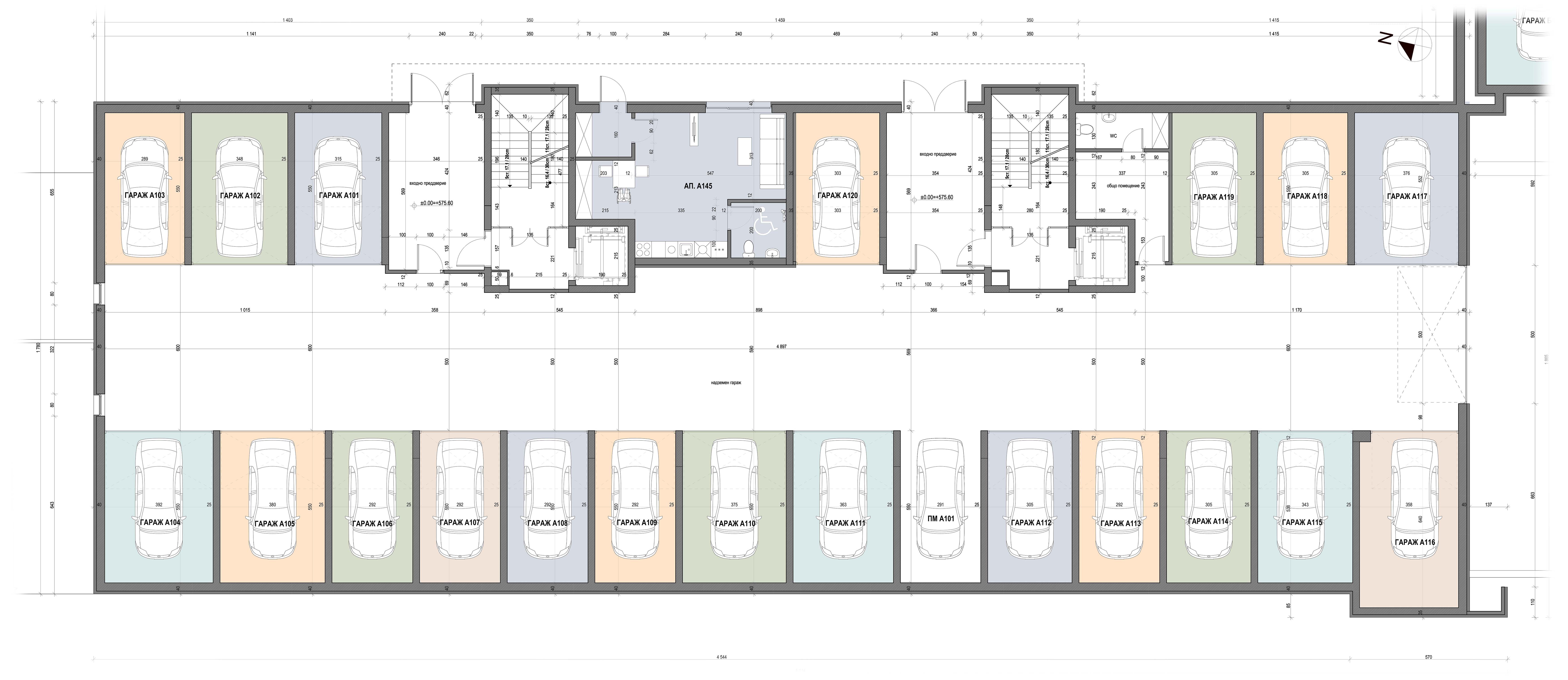
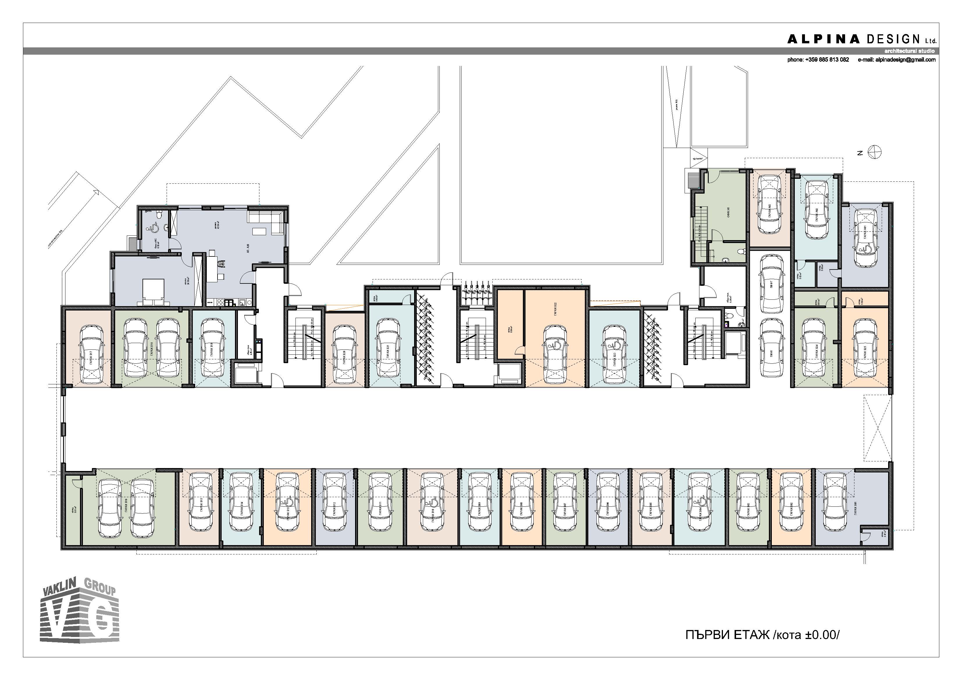
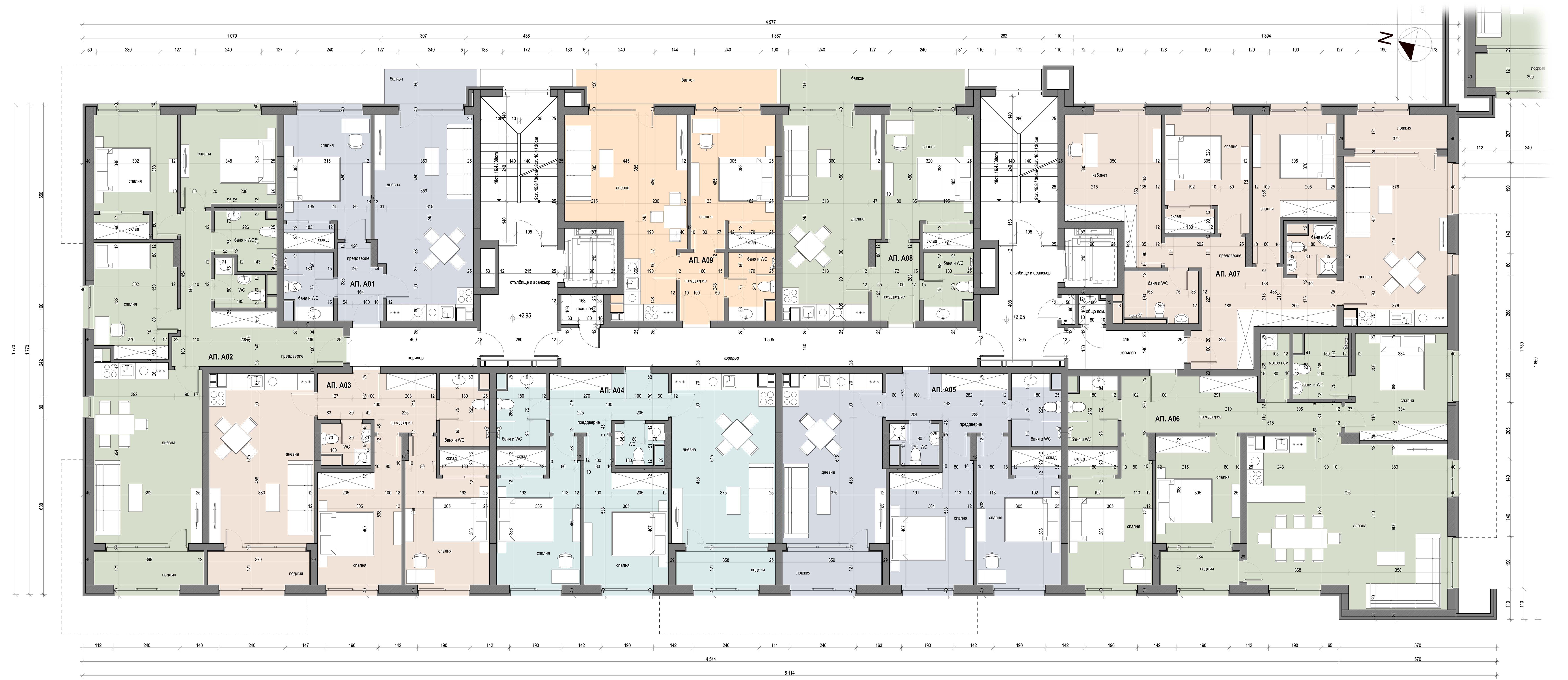
Проектът е разположен на площ от 20 декара и се простира от Владайска река до бул. Никола Мушанов, като само 4 декара са заети от сграден фонд – останалите 16 000 кв.м. служат за разполагане на огромните красиво поддържани зелени площи, алеи за маневриране и паркиране. Поддръжката на зеленината ще бъде осигурена с автономна дигитална поливна система. Сградите ще разполгат с детски съоръжения за игра за малките им обитатели.

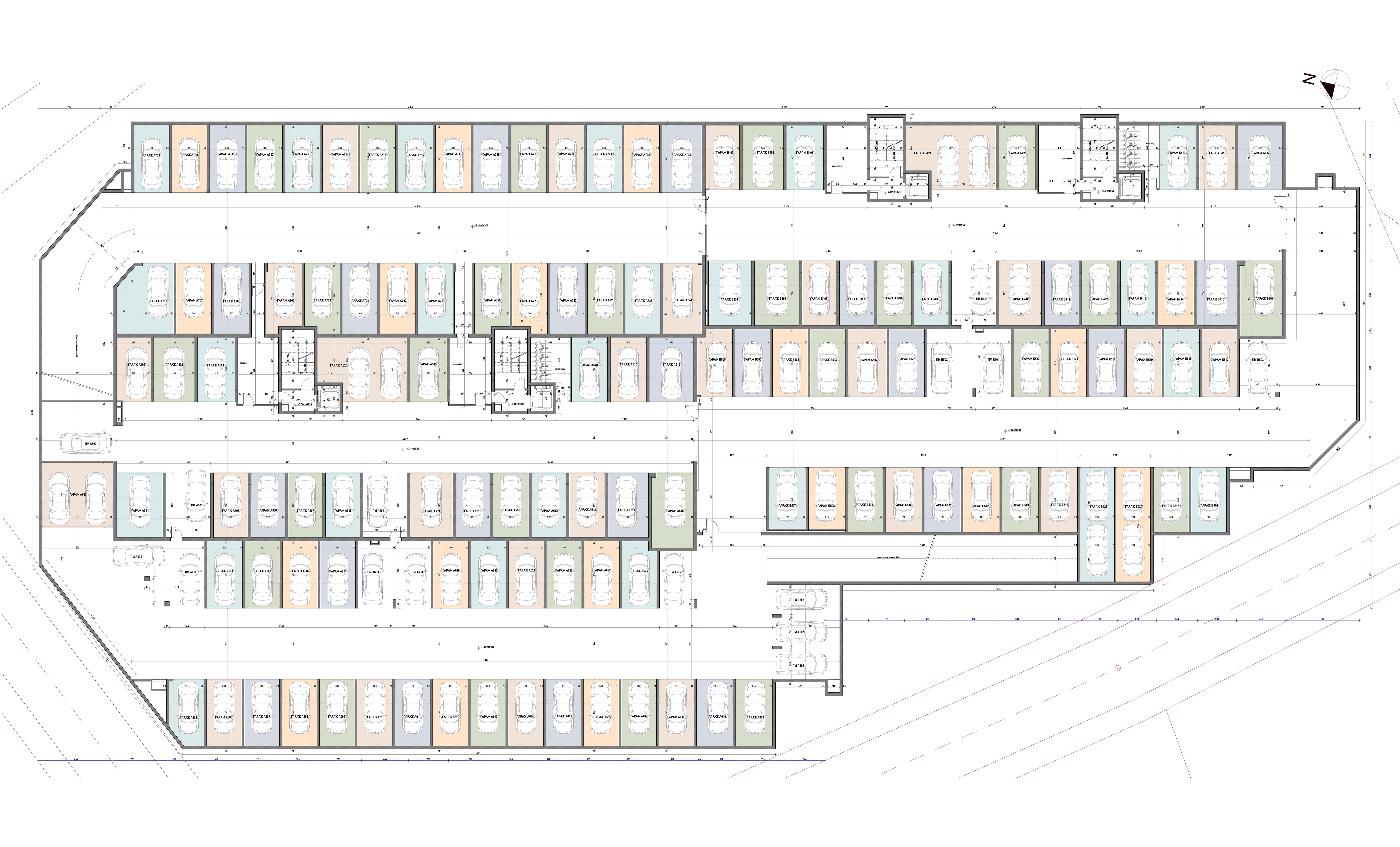
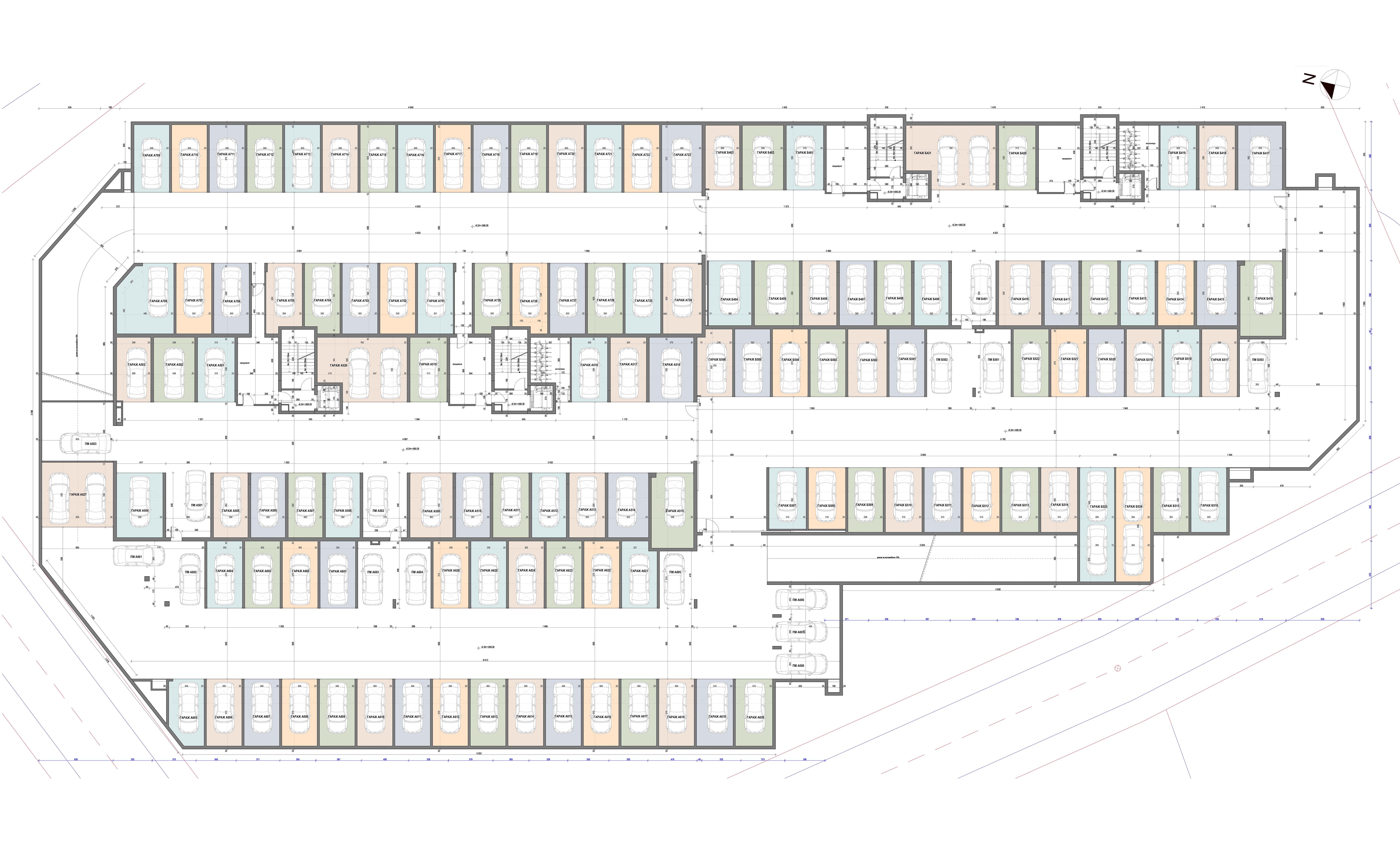
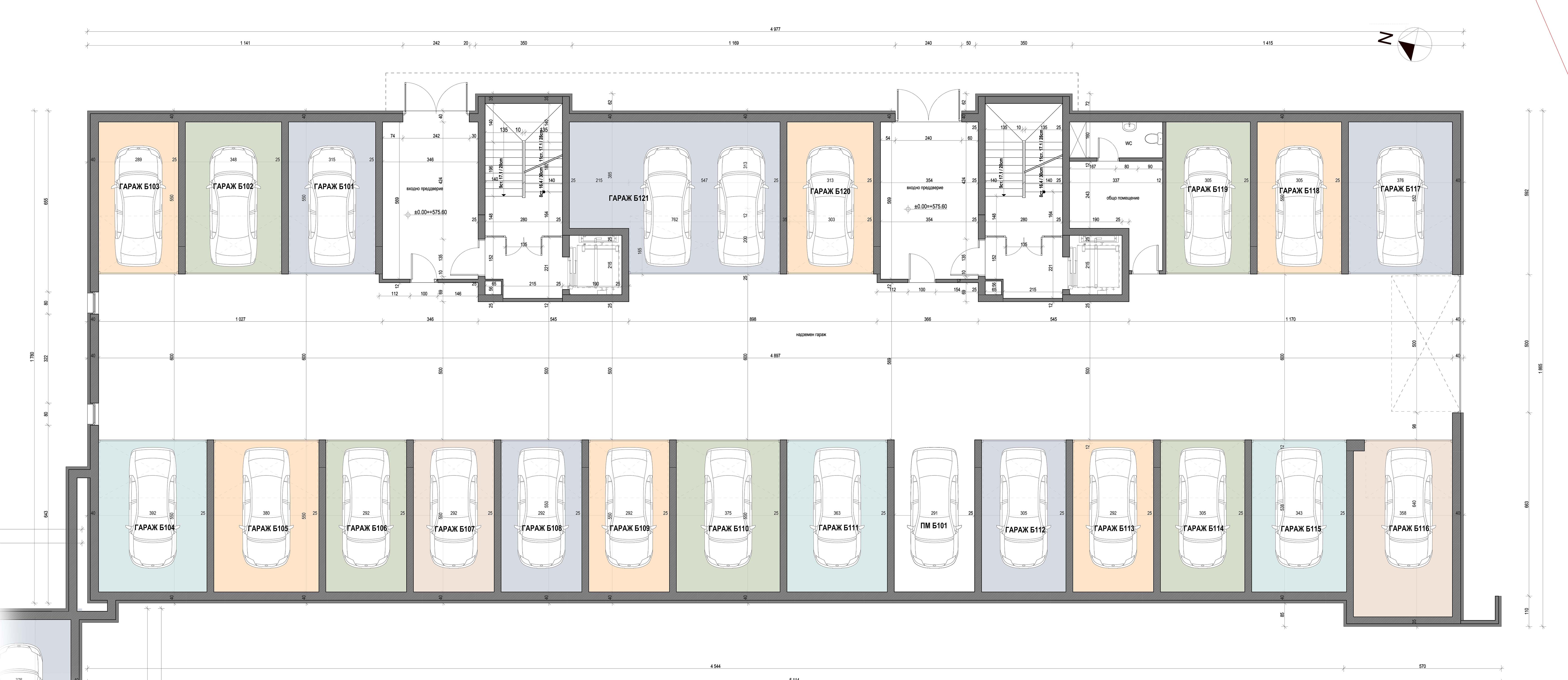
Транспортният достъп е перфектен и сигурен - метростанция „Овча купел“ се намира на 300 метра от сградата, без да е необходимо пресичане на булеварда. Паркирането на новодомците е осигурено чрез гаражи и подземни/наземни паркоместа, като всеки гараж е оборудван с автоматична врата с дистанционно управление, снабден с усилен кабел за монтаж на домашна зарядна станция за електроавтомобили. Достъпът за детски колички и хора с намалена мобилност се осигурява посредством удобни подстъпи и широки асансьори, които спират на всеки етаж, включително обслужват сутеренните етажи, на които са разположени гаражите и паркоместата.

Сградите са на етап "груб строеж", с монтирани асансьори, подово отопление, инсталации по всички апартаменти - моля да имате предвид, че цените ще се актуализират, считано от 25.07.2025г.

Проектант: "АЛПИНА ДИЗАЙН" ООД

 

 

Житница 23
  Текущи проекти
Предходни проекти
Довършителни работи
Вноска "недвижим имот"
Мнения
НОВИНИ
Контакти

ЗАПАЗЕТЕ ЧАС
ЗА СРЕЩА С НАС