Младост 4 УПИ II и III


С разрешение за ползване от Август 2025г. и за двете сгради.
VaklinGroup

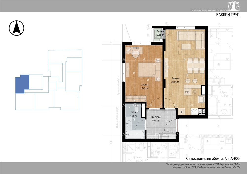
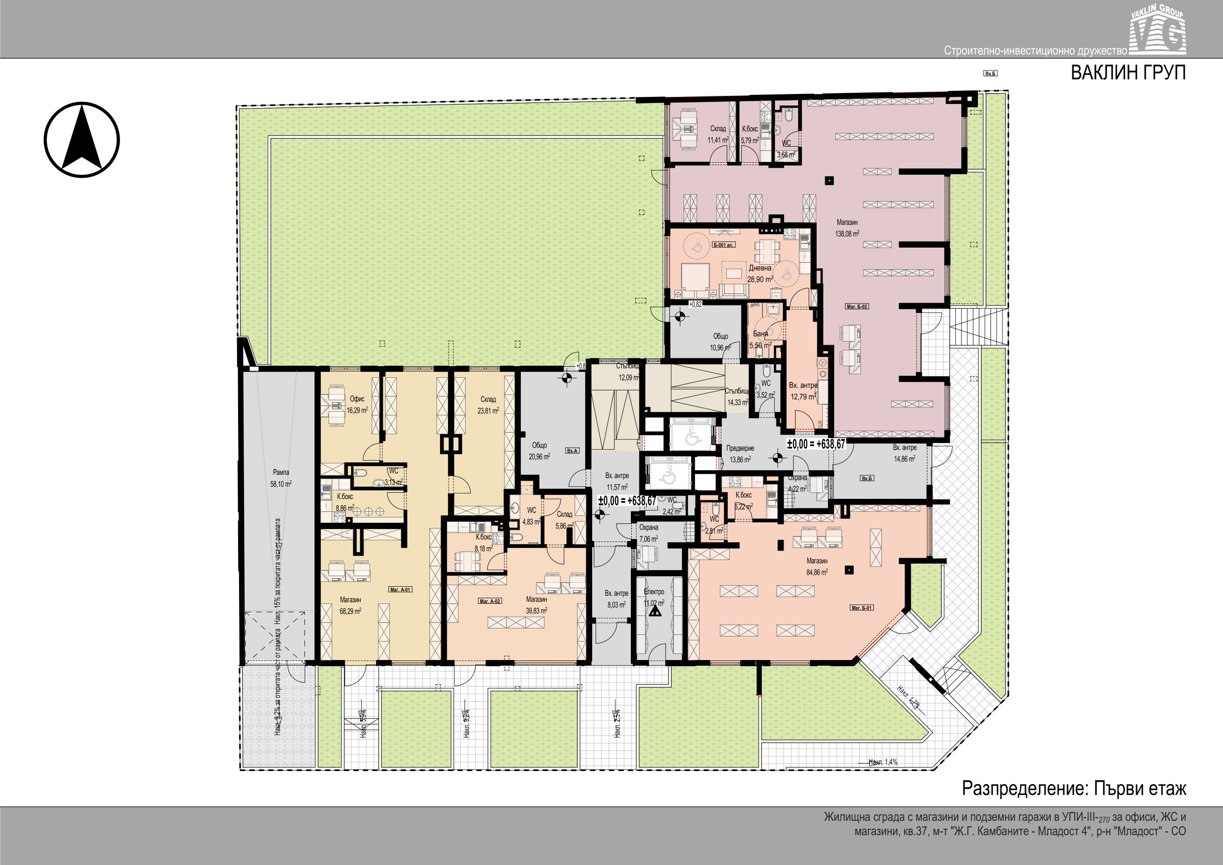
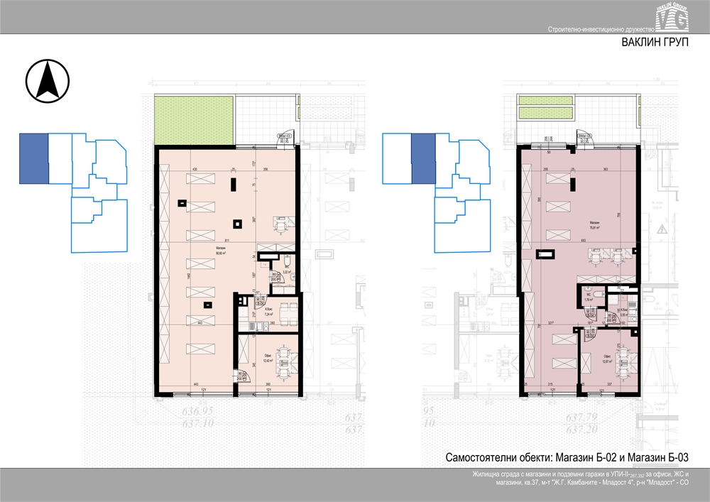
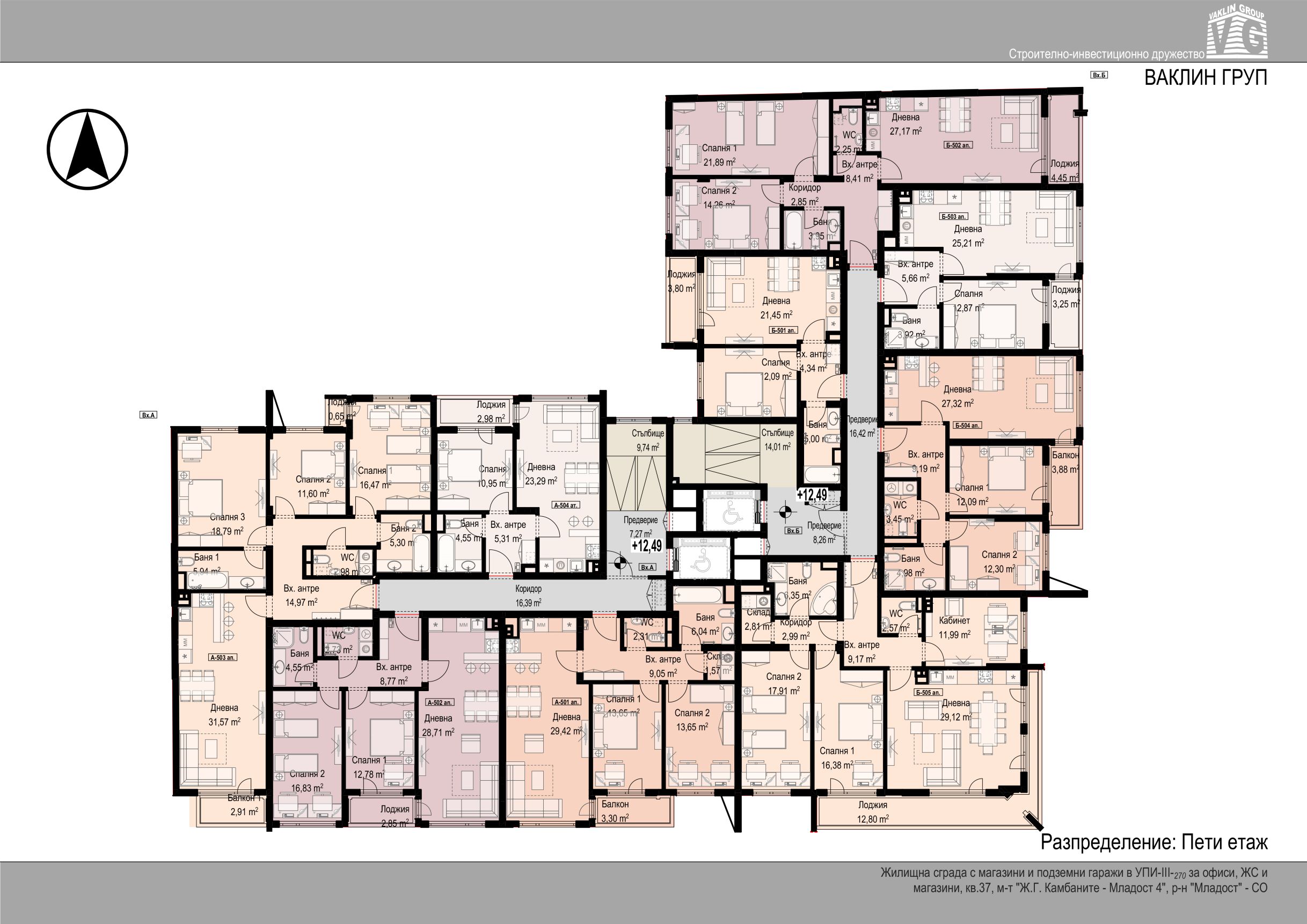
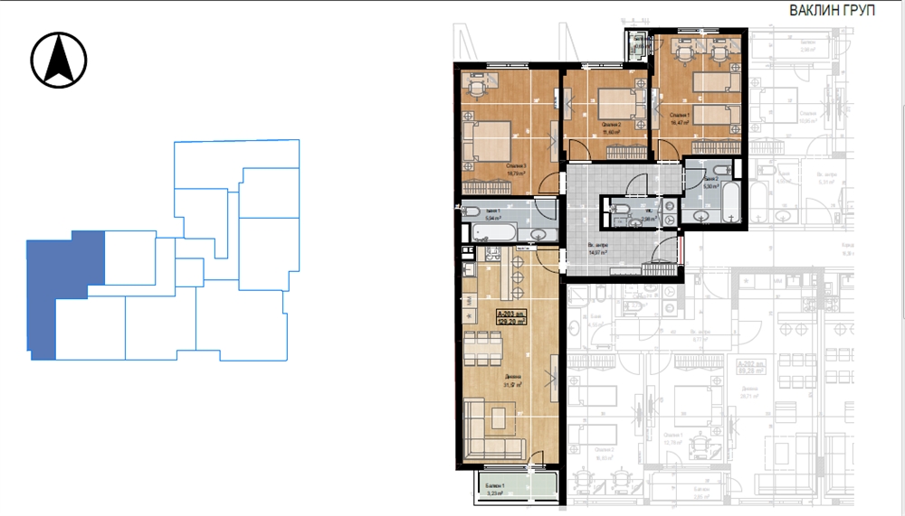
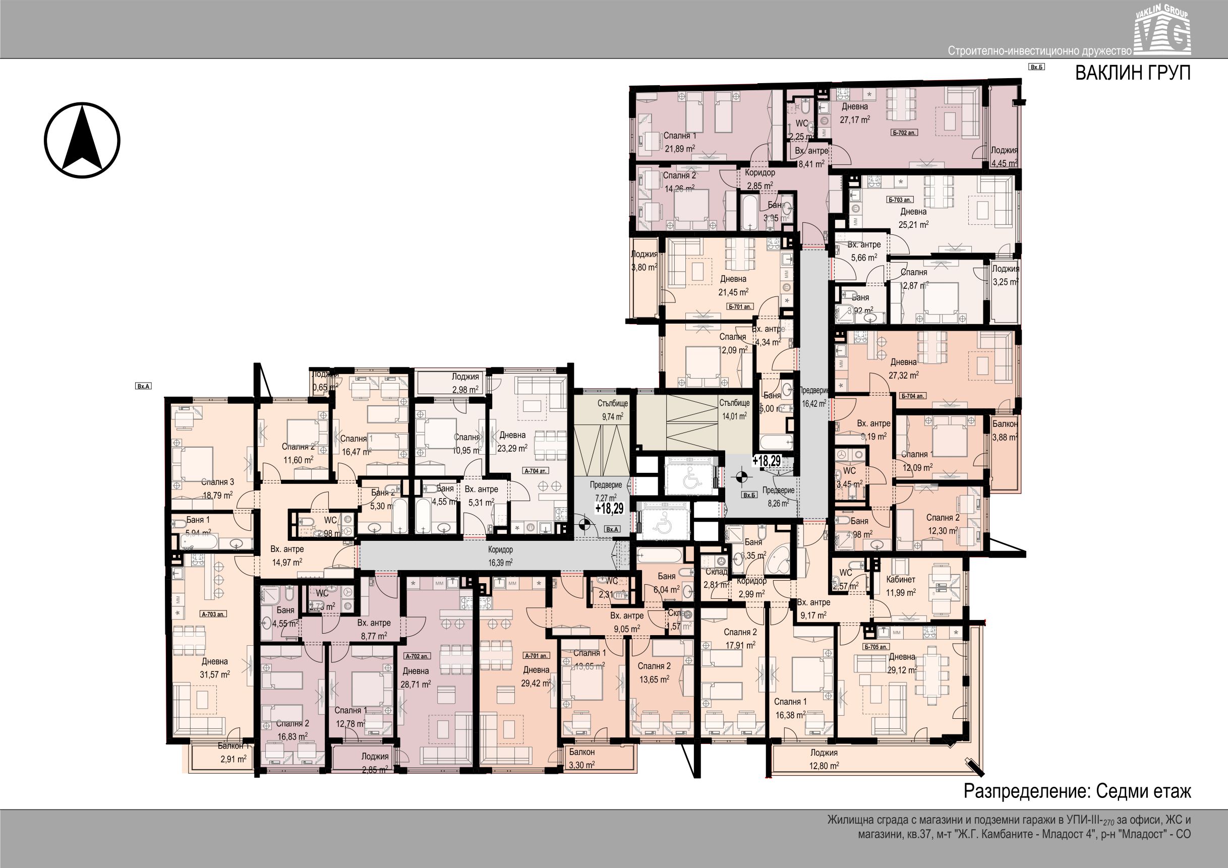
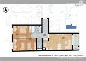
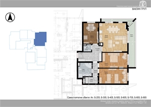
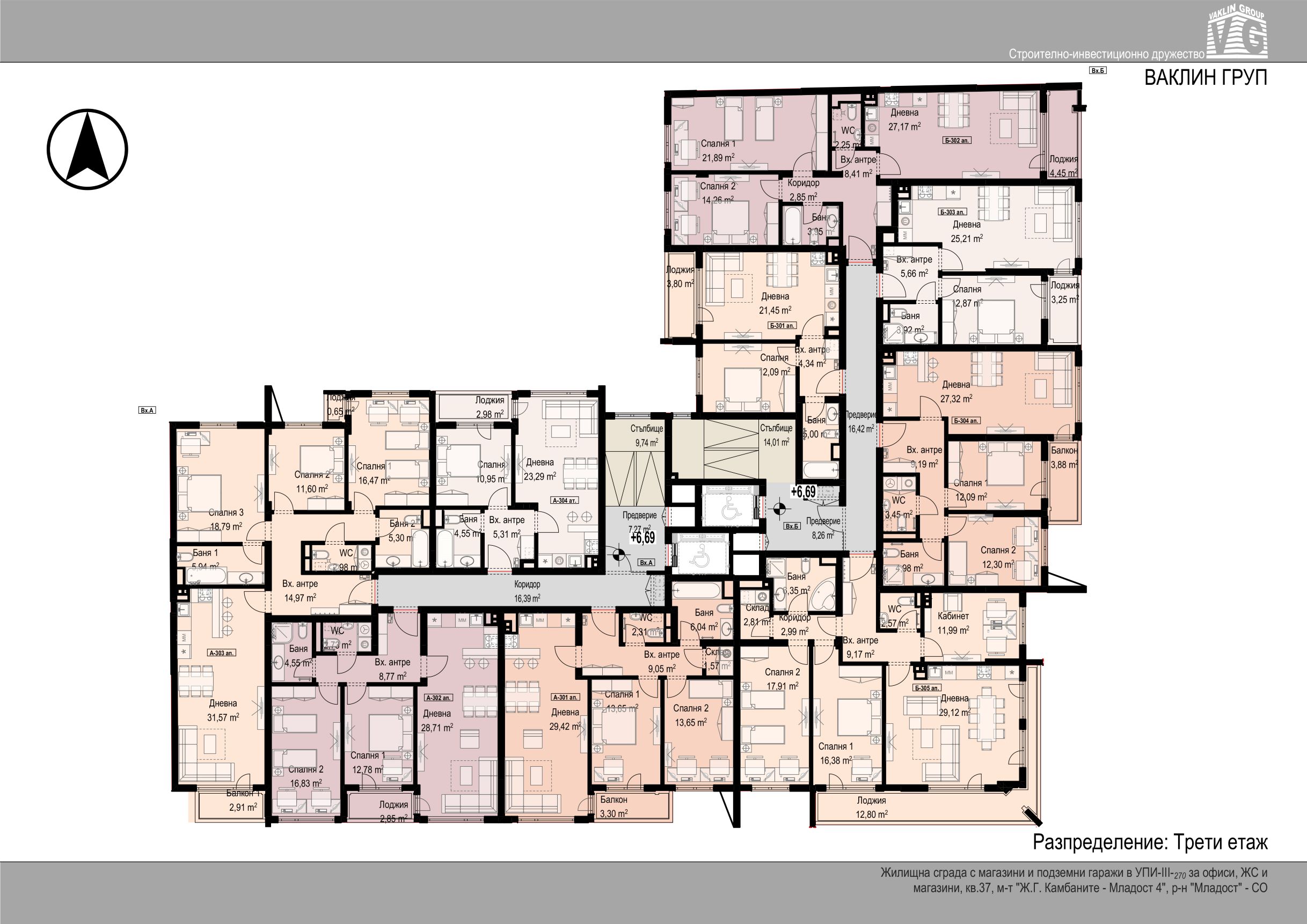
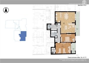
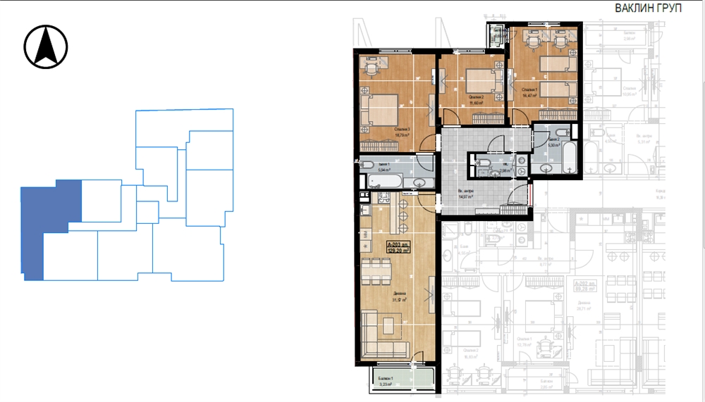
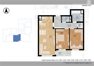
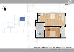
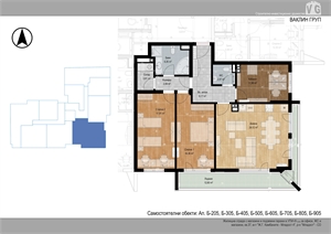
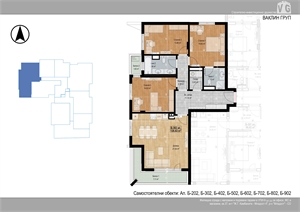
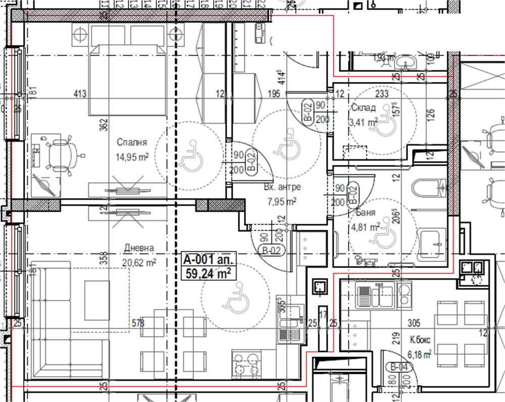
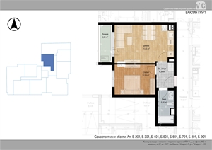
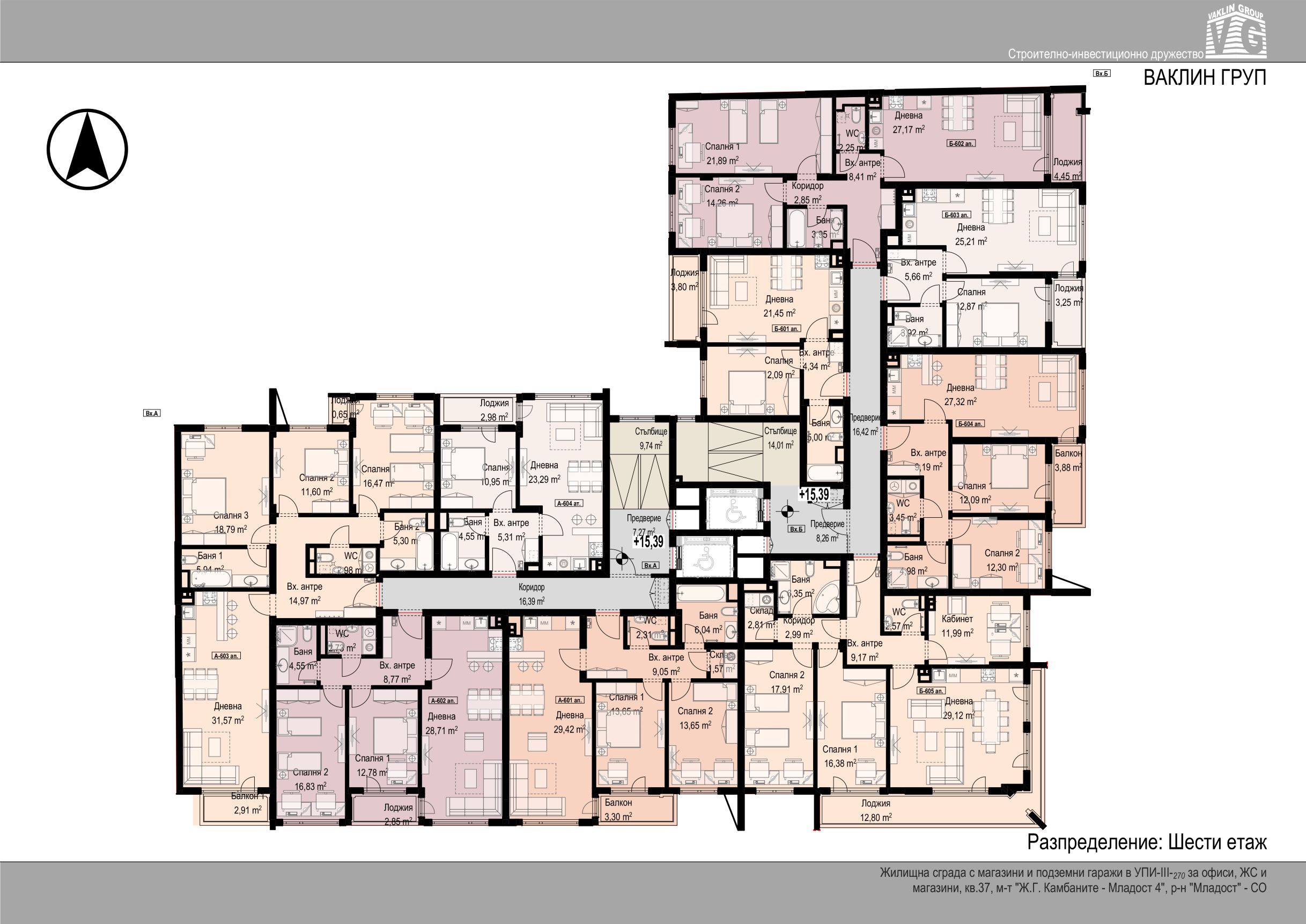
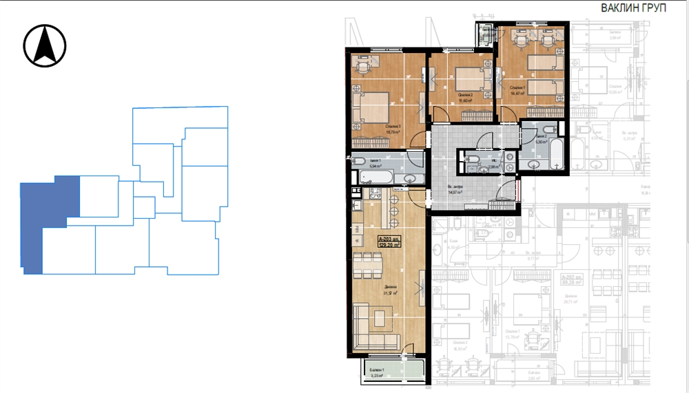
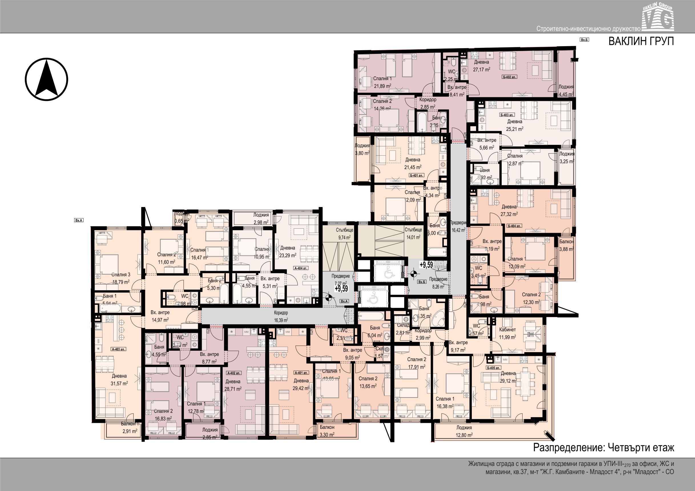
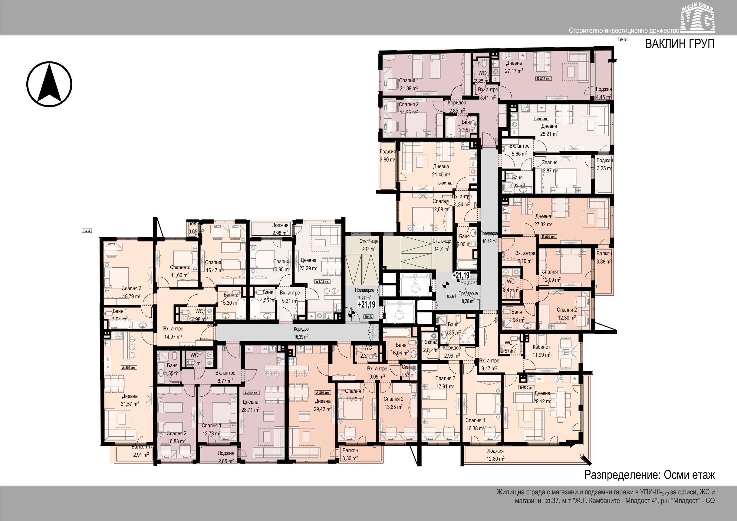
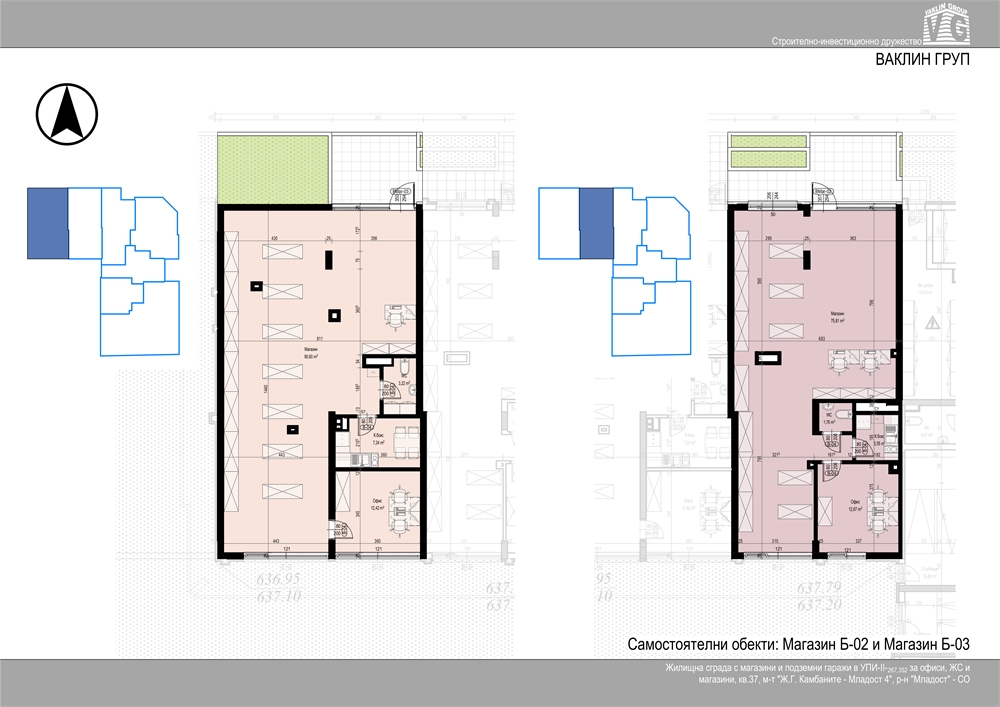
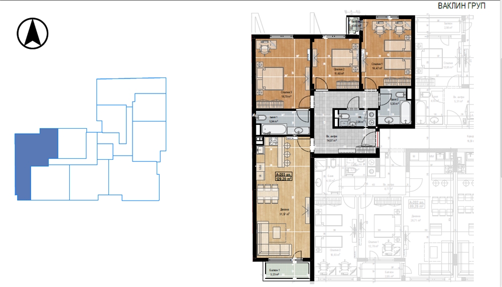
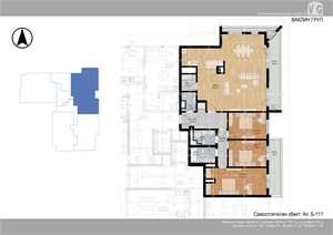
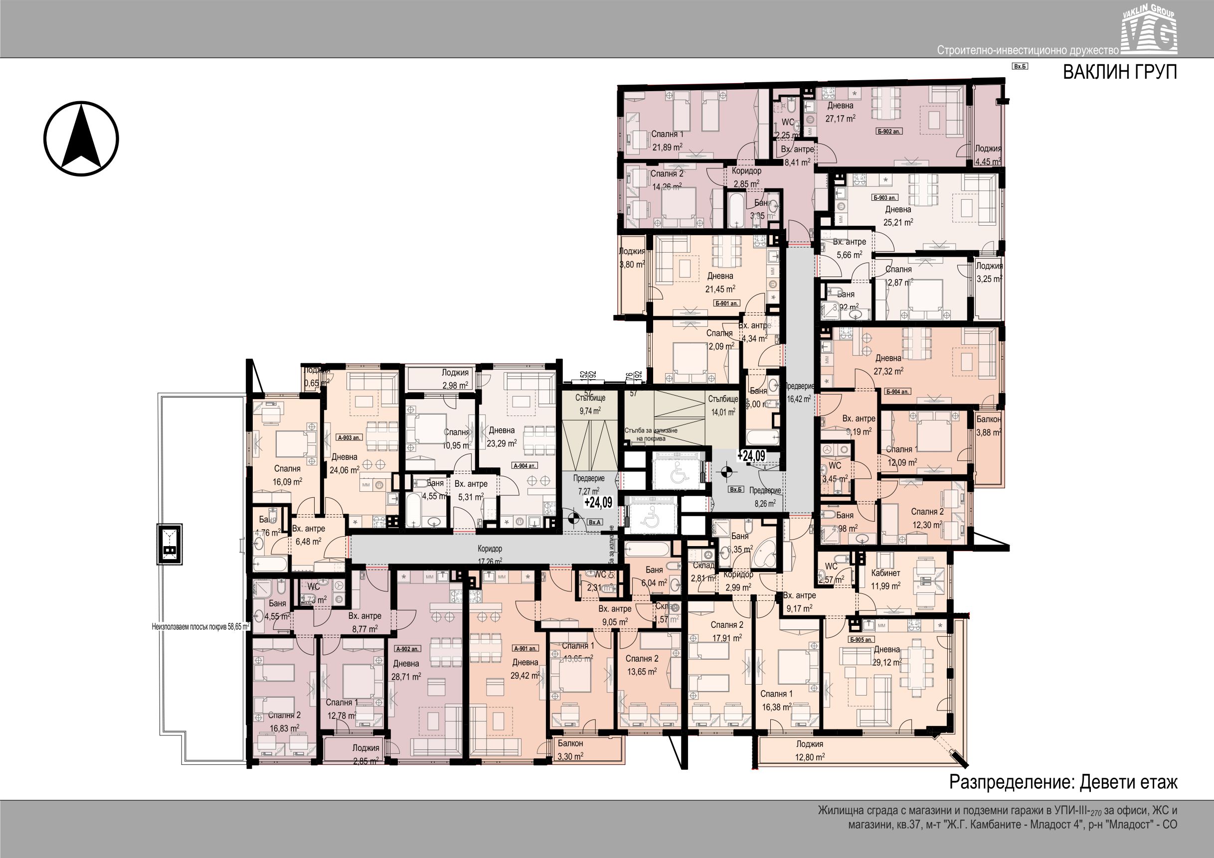
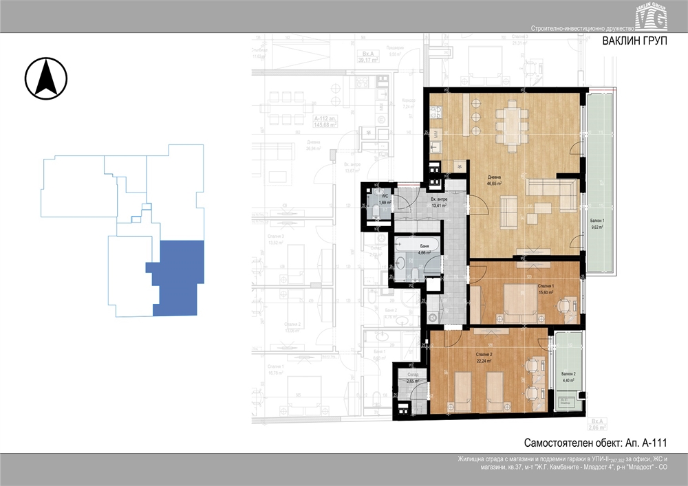
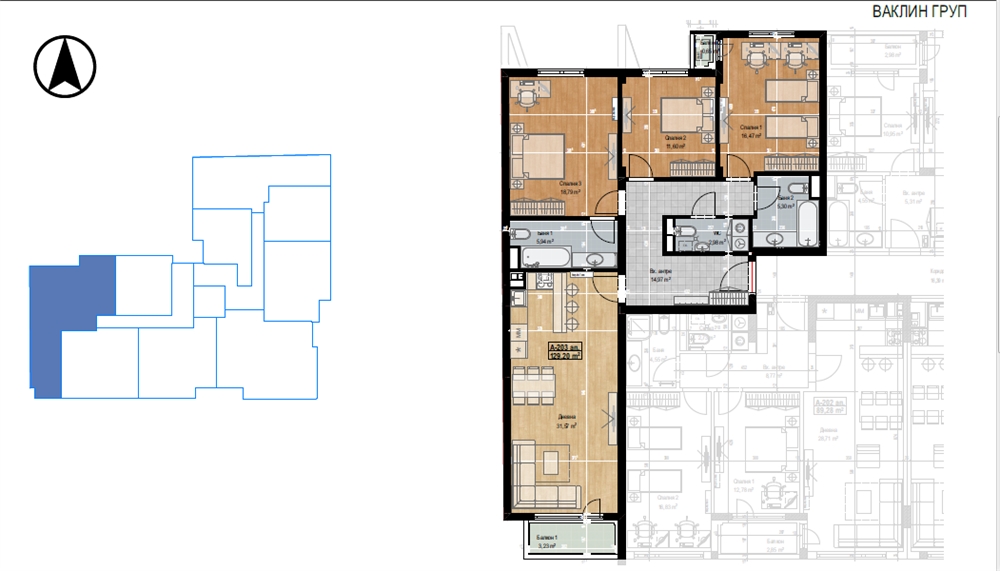
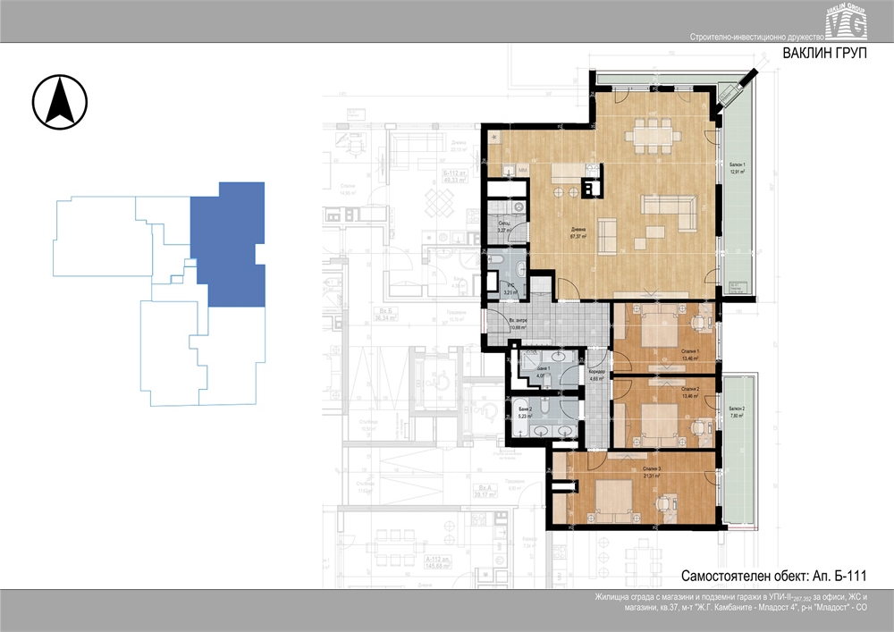
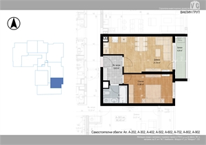
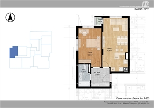
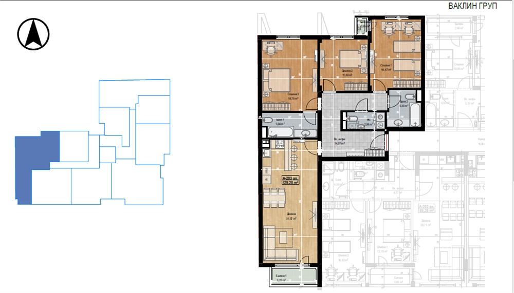
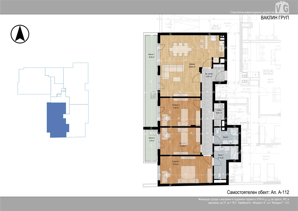
СГРАДИ С АКТ 16. Представяме две луксозни жилищна сгради в ж.к. Младост 4, до Американския колеж. Те са разположени на ул. "Арх. Богдан Томалевски", на около 350 метра от Метростанция "Бизнес парк". Предлагаме разнообразие от комфортни апартаменти с две спални, както и двустайни апартаменти, като сме се погрижили освен функционални и практични, те да имат различни изложения за всеки вкус. В този проект сме отделили специално внимание на нуждите на хората с по-големи семейства – в сградата ще се изградят 120 просторни апартамента с по три спални, с голям слънчев хол, два санитарни възела и перално/складово помещение. Всички три- и четири- стайни апартаменти са с вградено водно подово отопление и инсталации за термопомпена система Loria duo (Atlantic), с преференциален монтаж на висок клас термопомпи със 190 литров бойлер и дигитален панел на управление, с допълнителна топло- и шумо-изолация, вградена в подовата замазка. Eнергиен сертификат клас "А". Естествен камък в общите части, a по стените – мазилка „Zephyro“. Сградите разполгат с детски съоръжения за игра в богато озеленен вътрешен двор, като поддръжката на зеленината ще бъде осигурена с автономна дигитална поливна система.

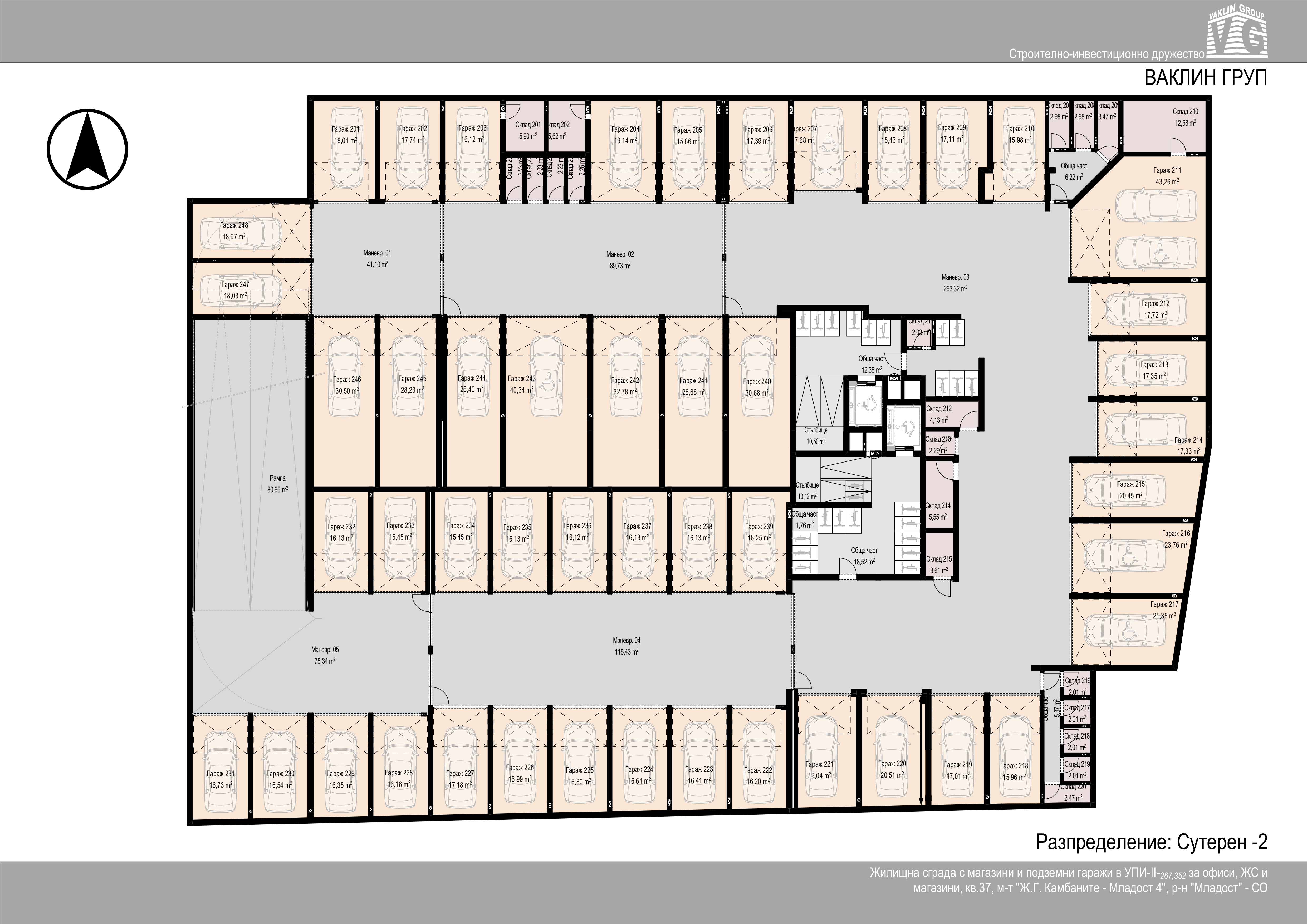
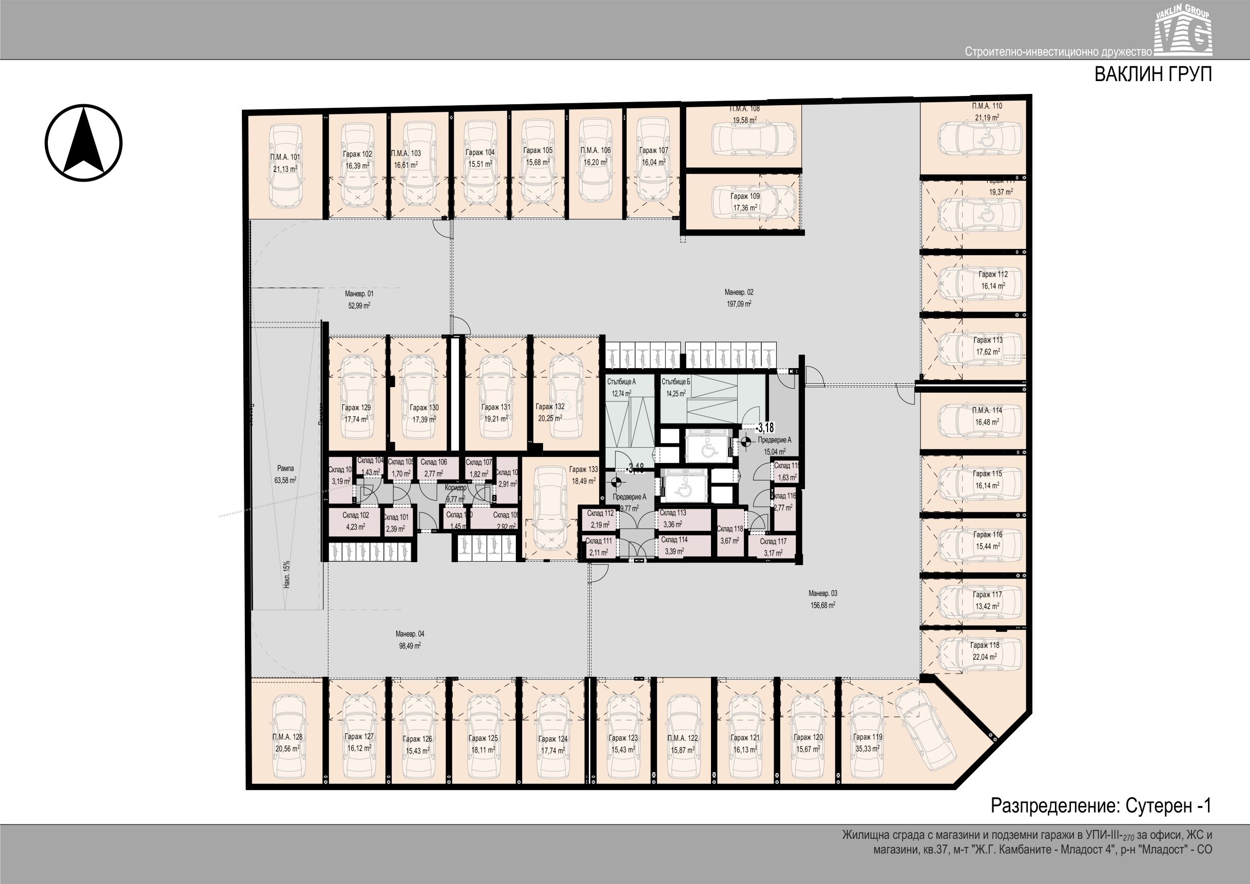
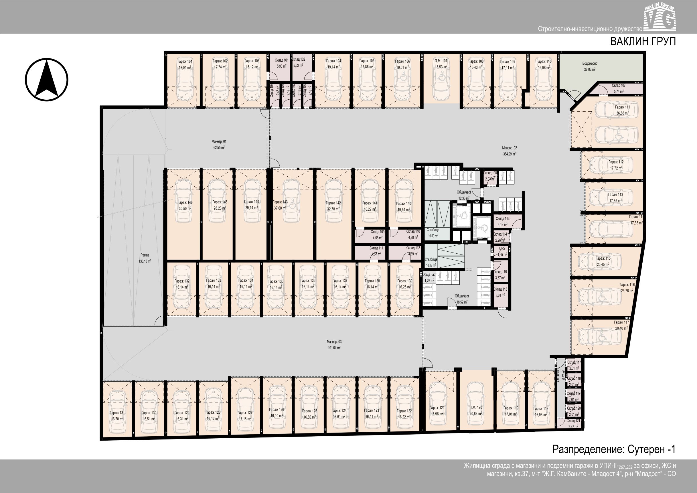
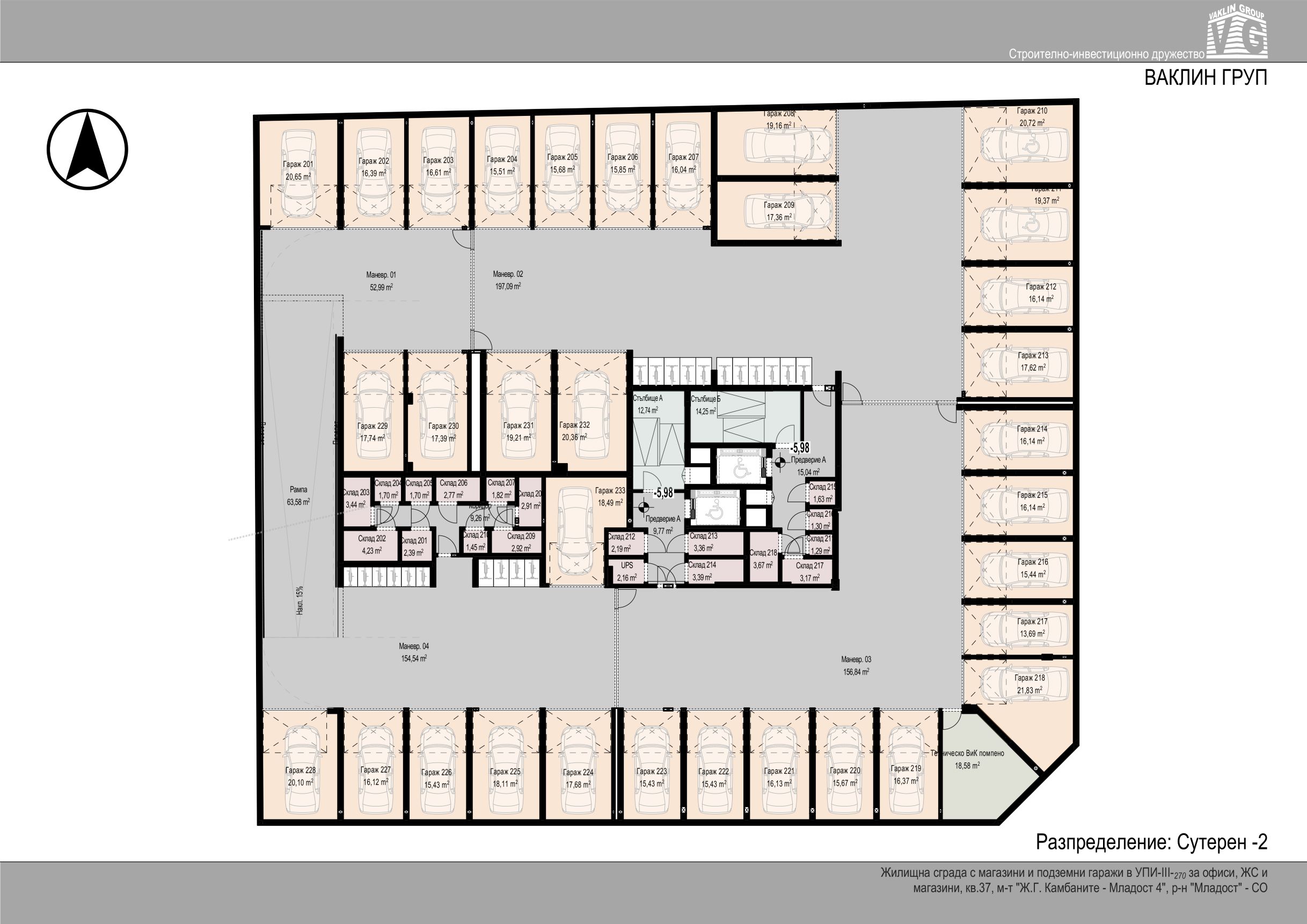
Достъпът за детски колички и хора с намалена мобилност се осигурява посредством удобни подстъпи и широки асансьори, които спират на всеки етаж, включително обслужват сутеренните етажи, на които са разположени гаражите и паркоместата.

За разпределения и цени Ви очакваме на телефон и е-мейл,посочени в "контакти".

 

Младост 4 УПИ II и III
  Текущи проекти
Предходни проекти
Довършителни работи
Вноска "недвижим имот"
Мнения
НОВИНИ
Контакти

ЗАПАЗЕТЕ ЧАС
ЗА СРЕЩА С НАС