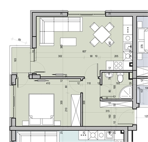
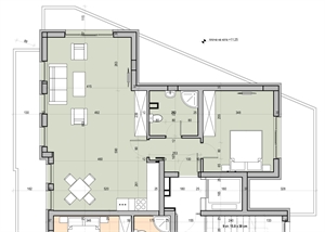
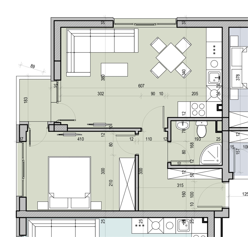
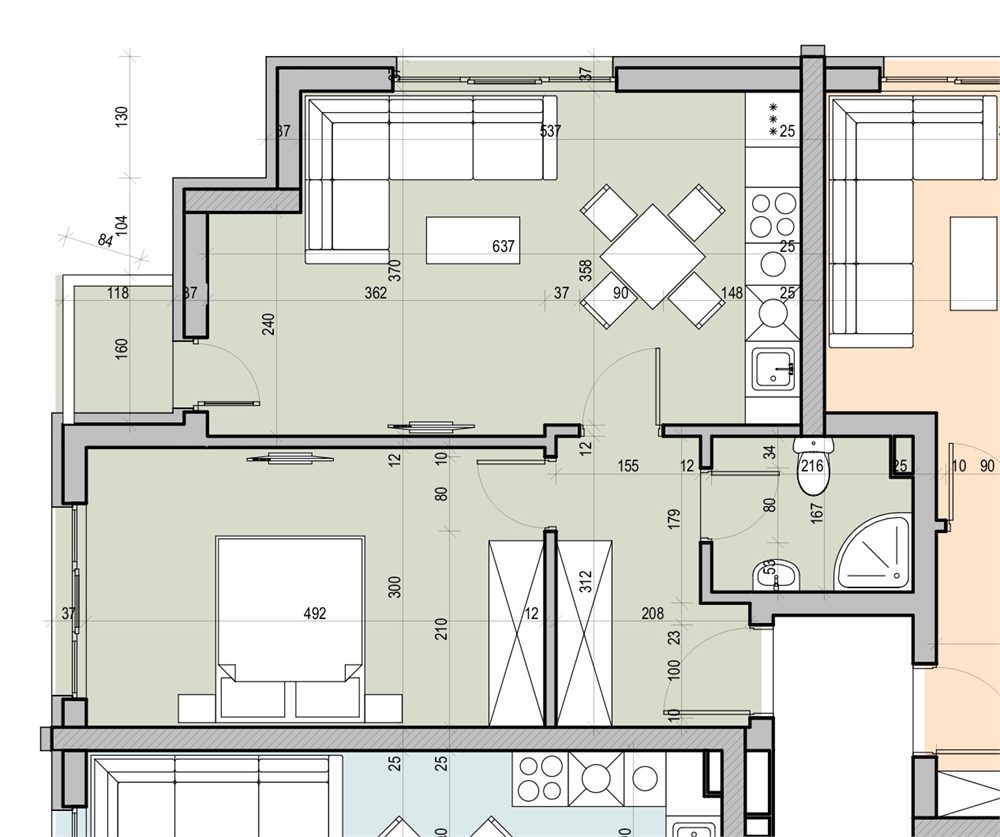
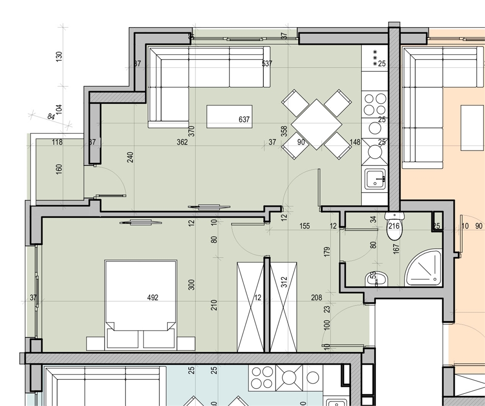
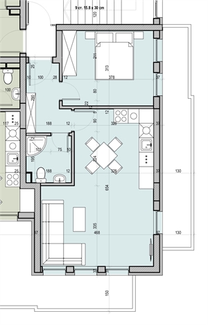
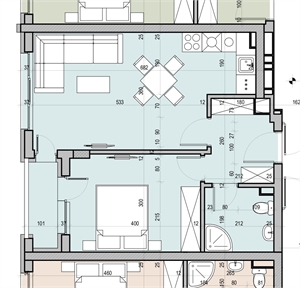
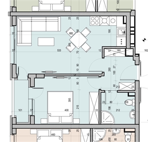
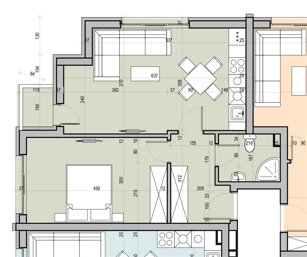
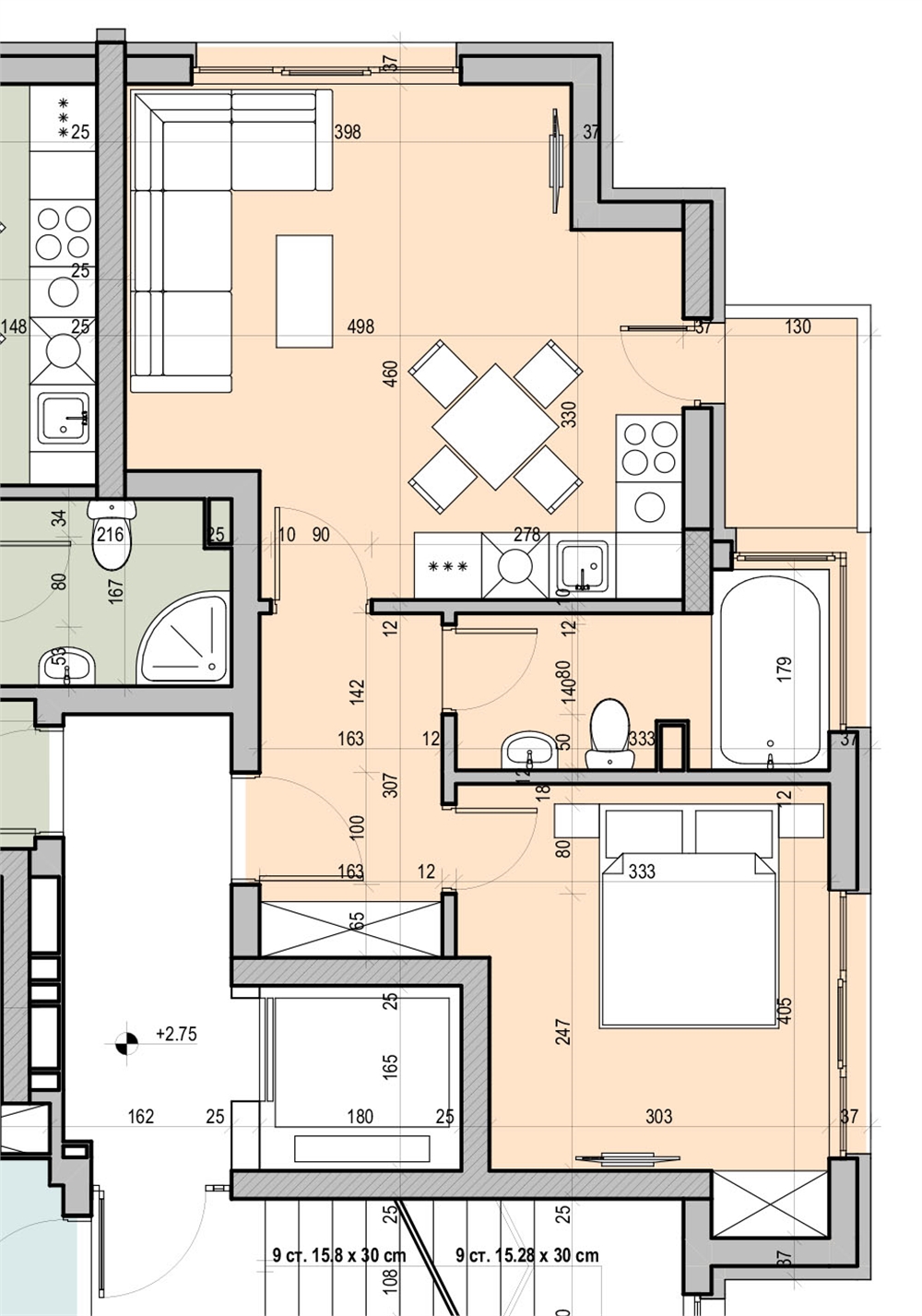
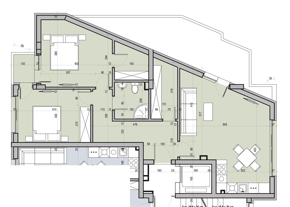
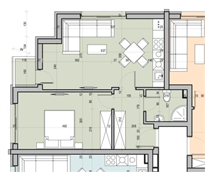
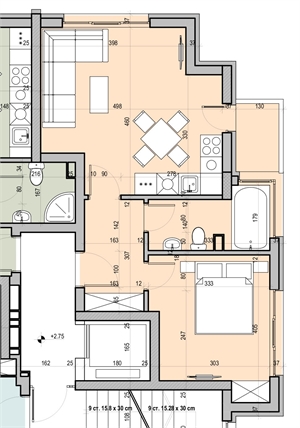
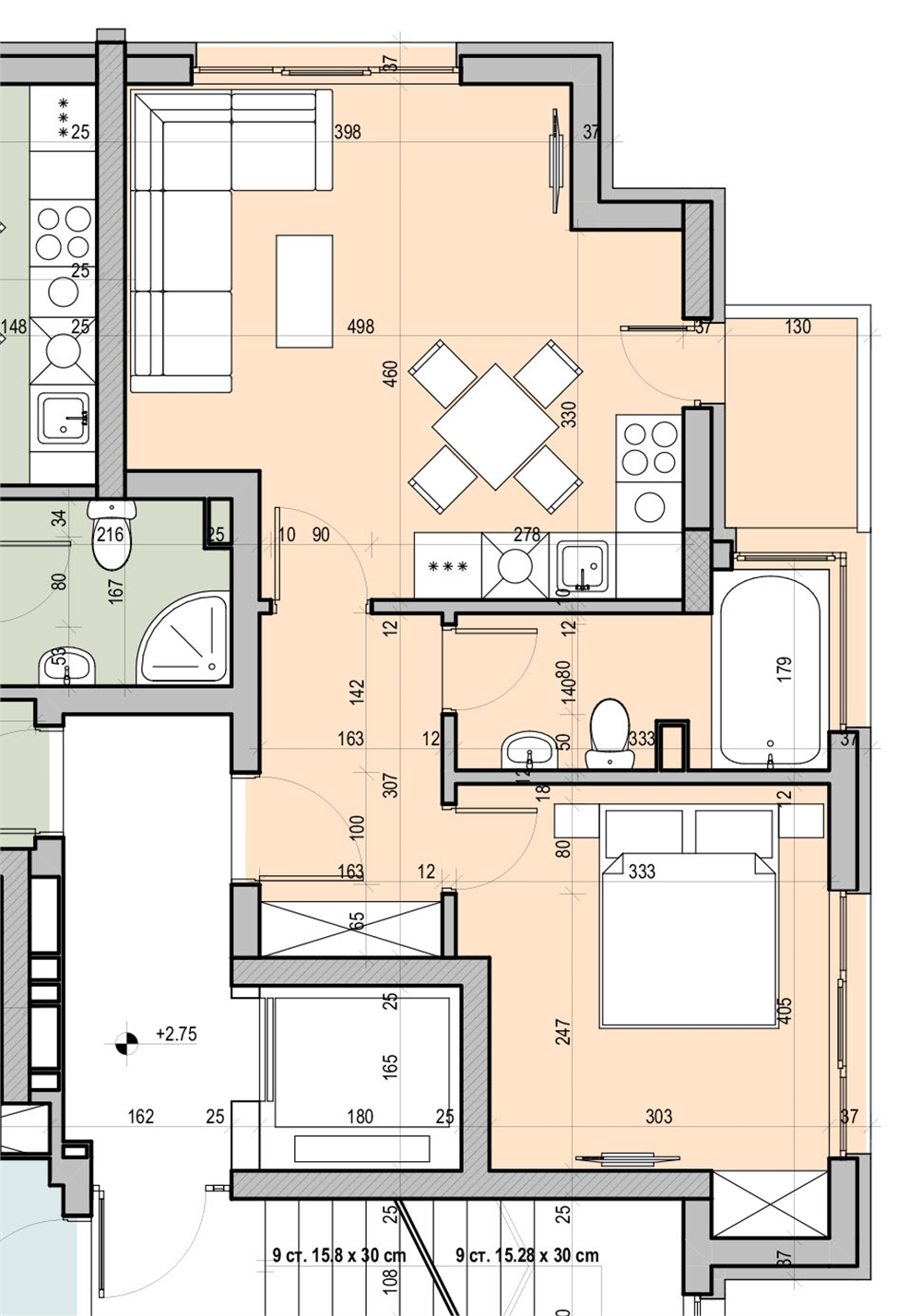
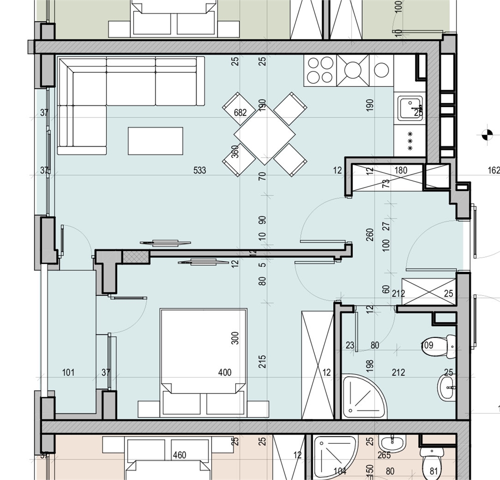
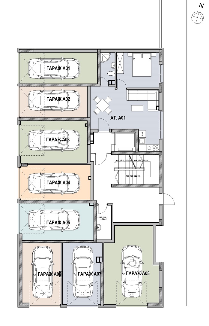
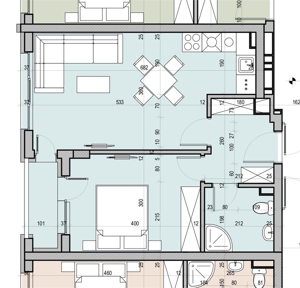
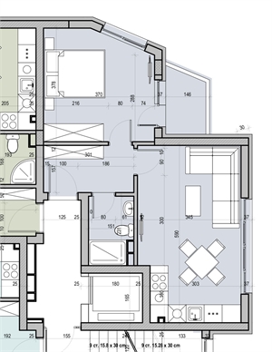
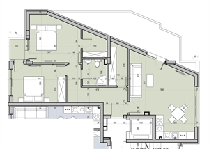
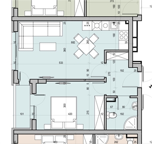
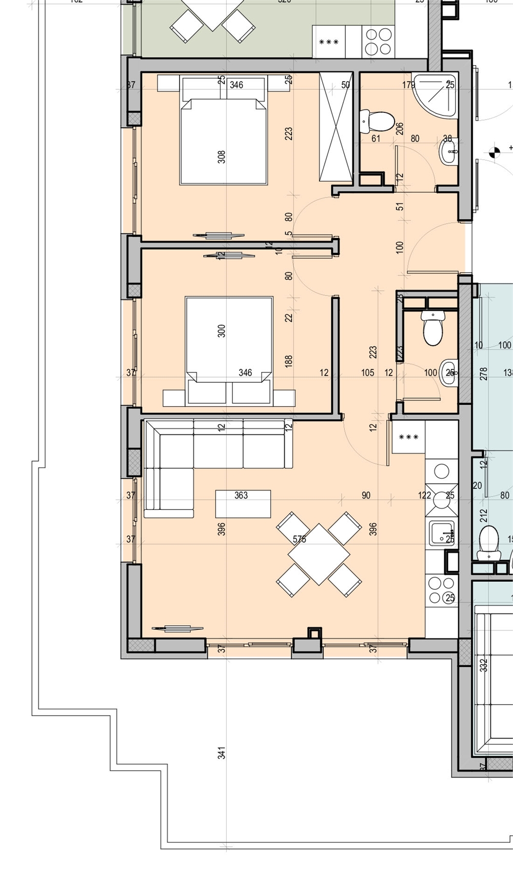
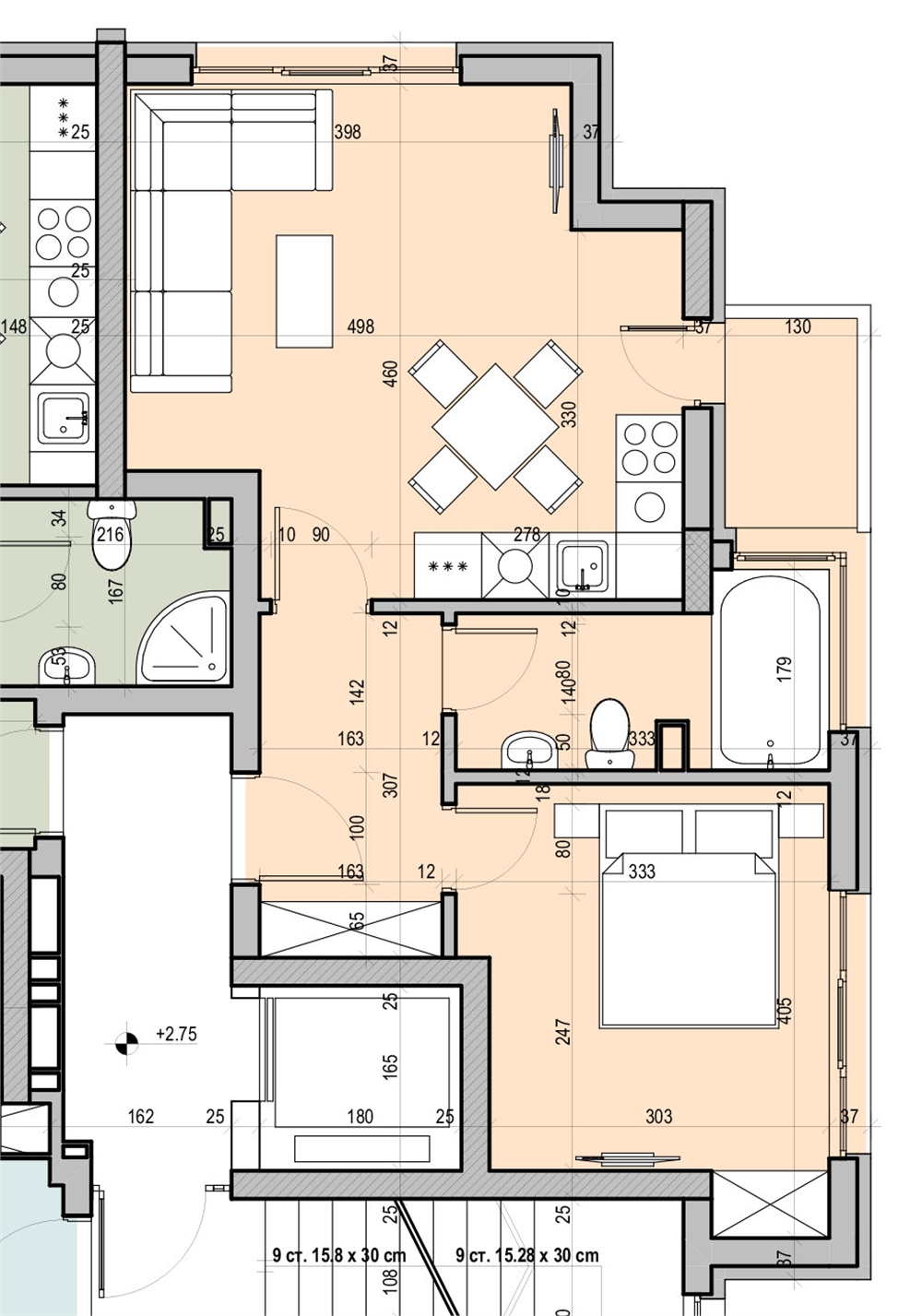
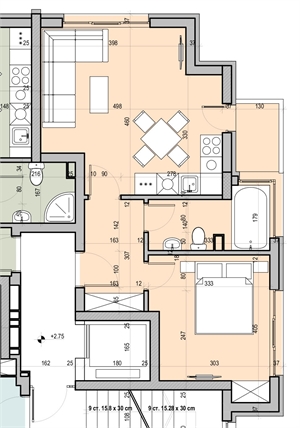
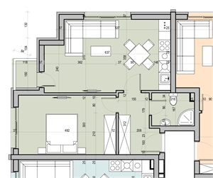
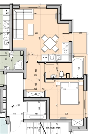
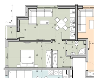
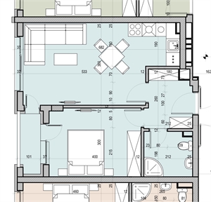
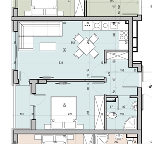
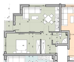
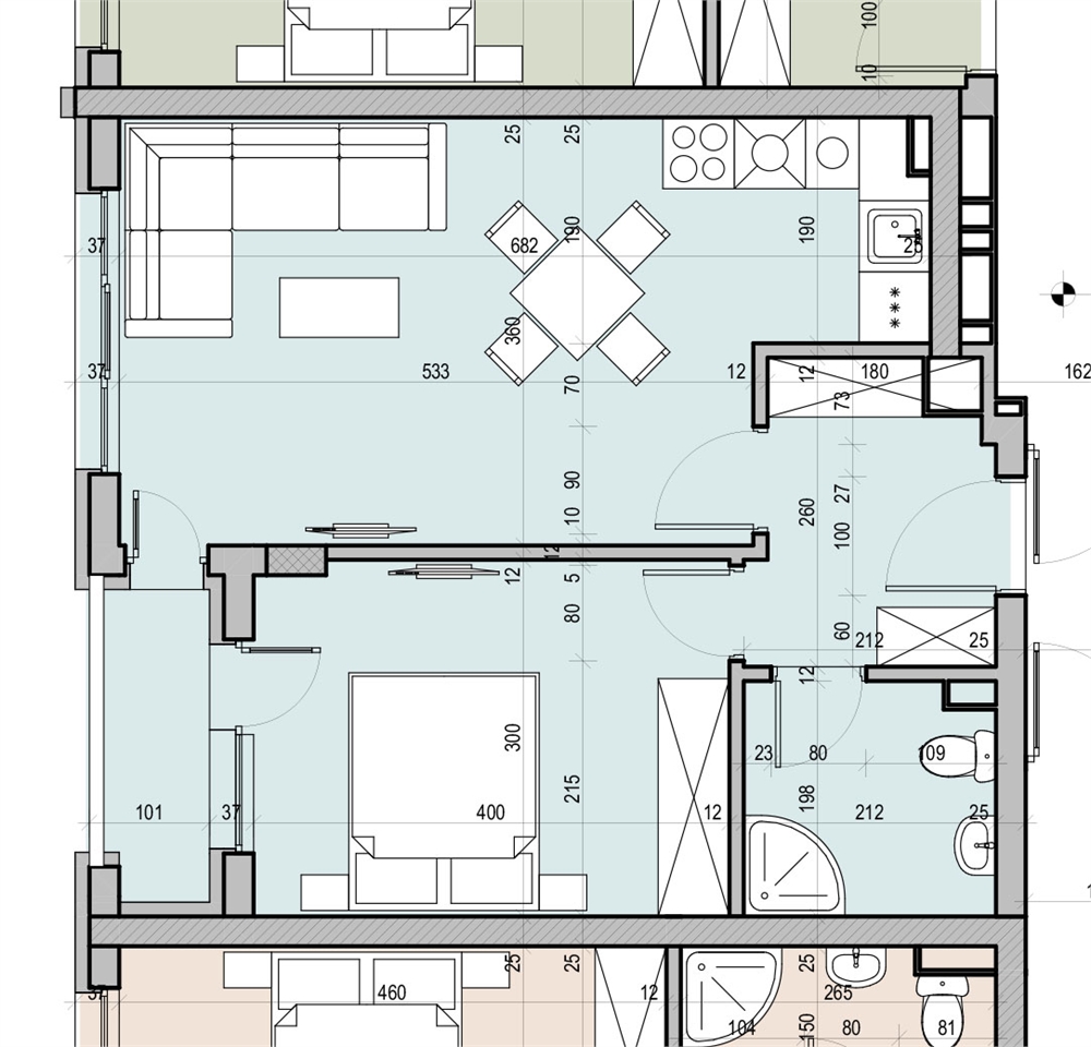
Студентски град III
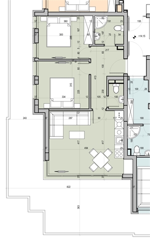
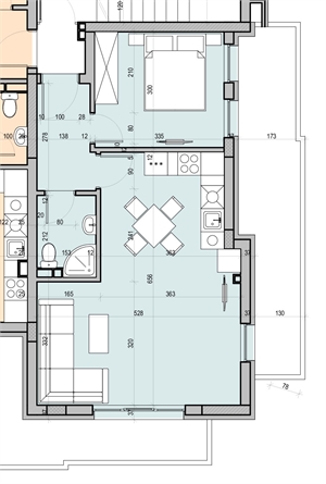
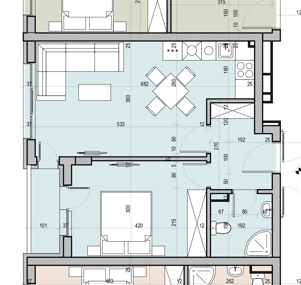
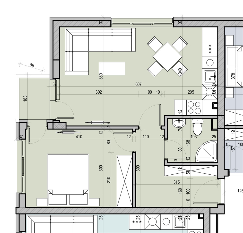
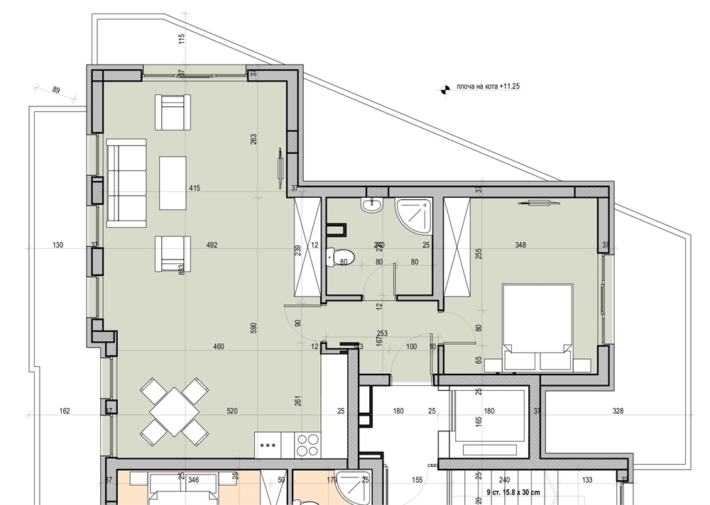
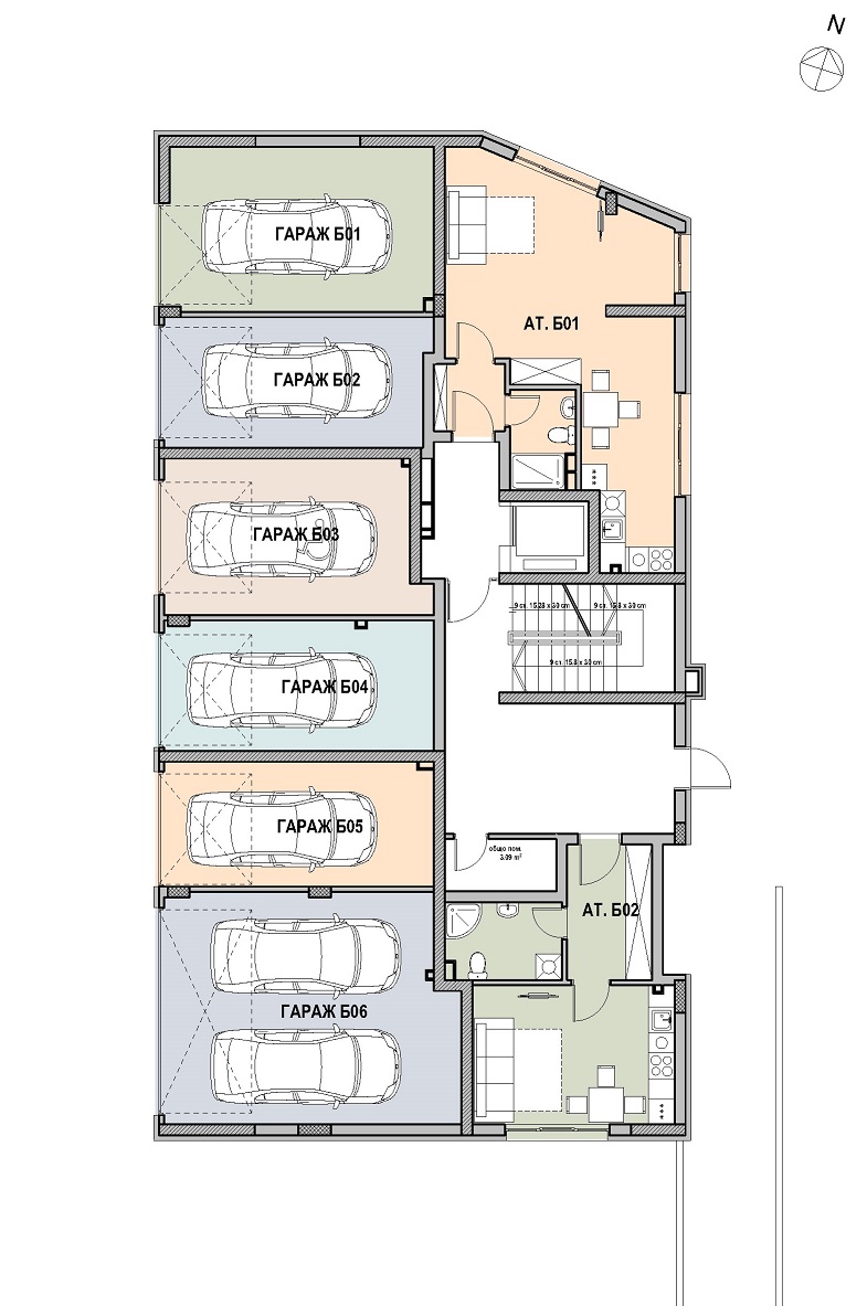
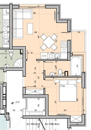
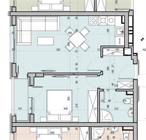
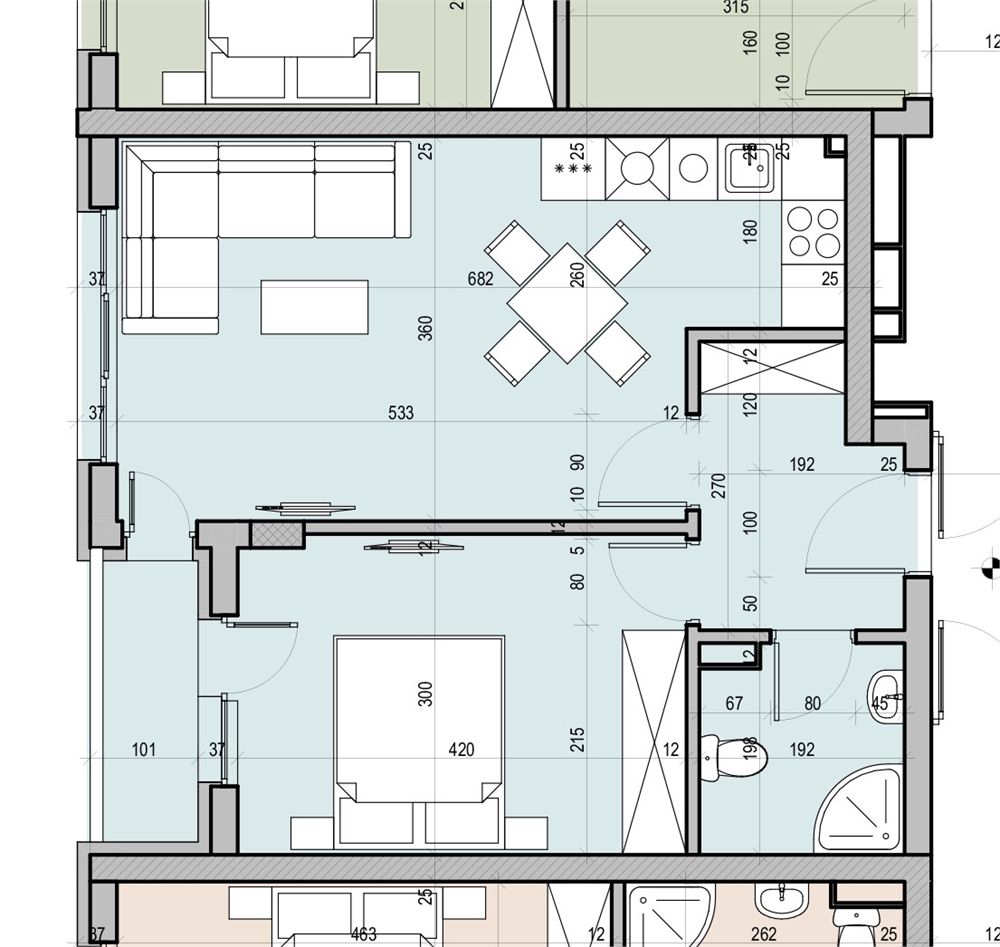
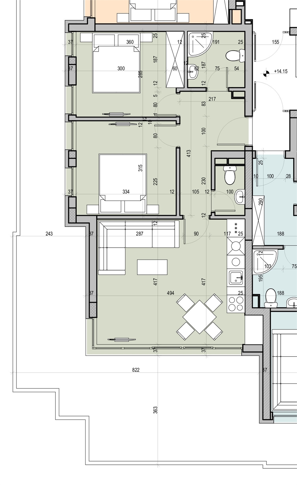
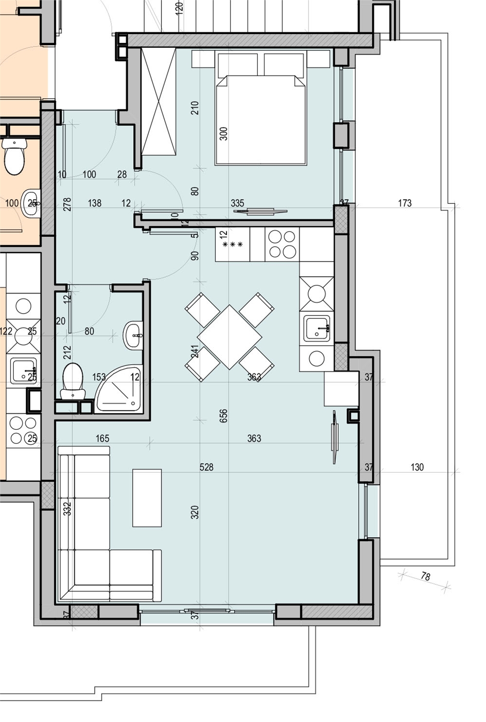
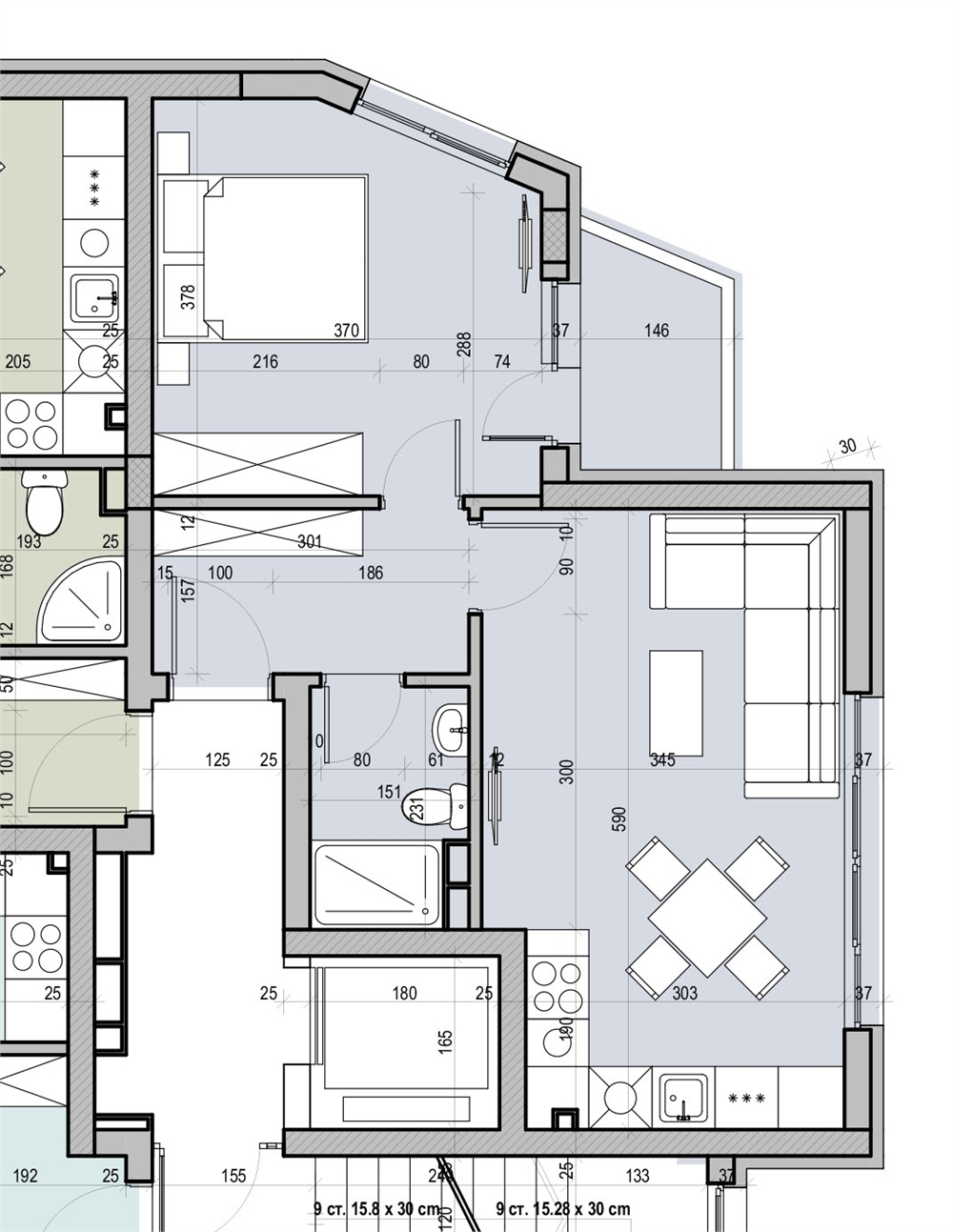
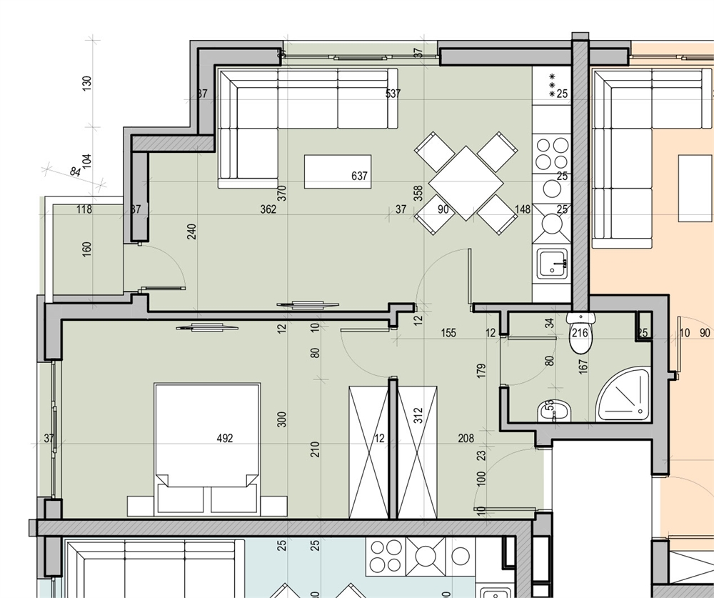
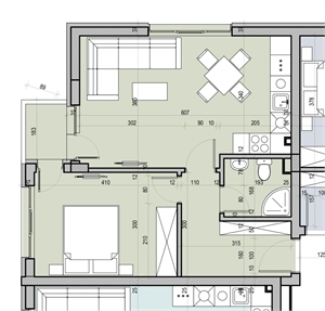
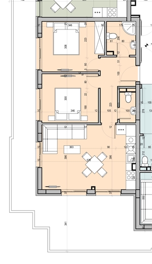
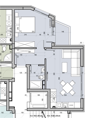
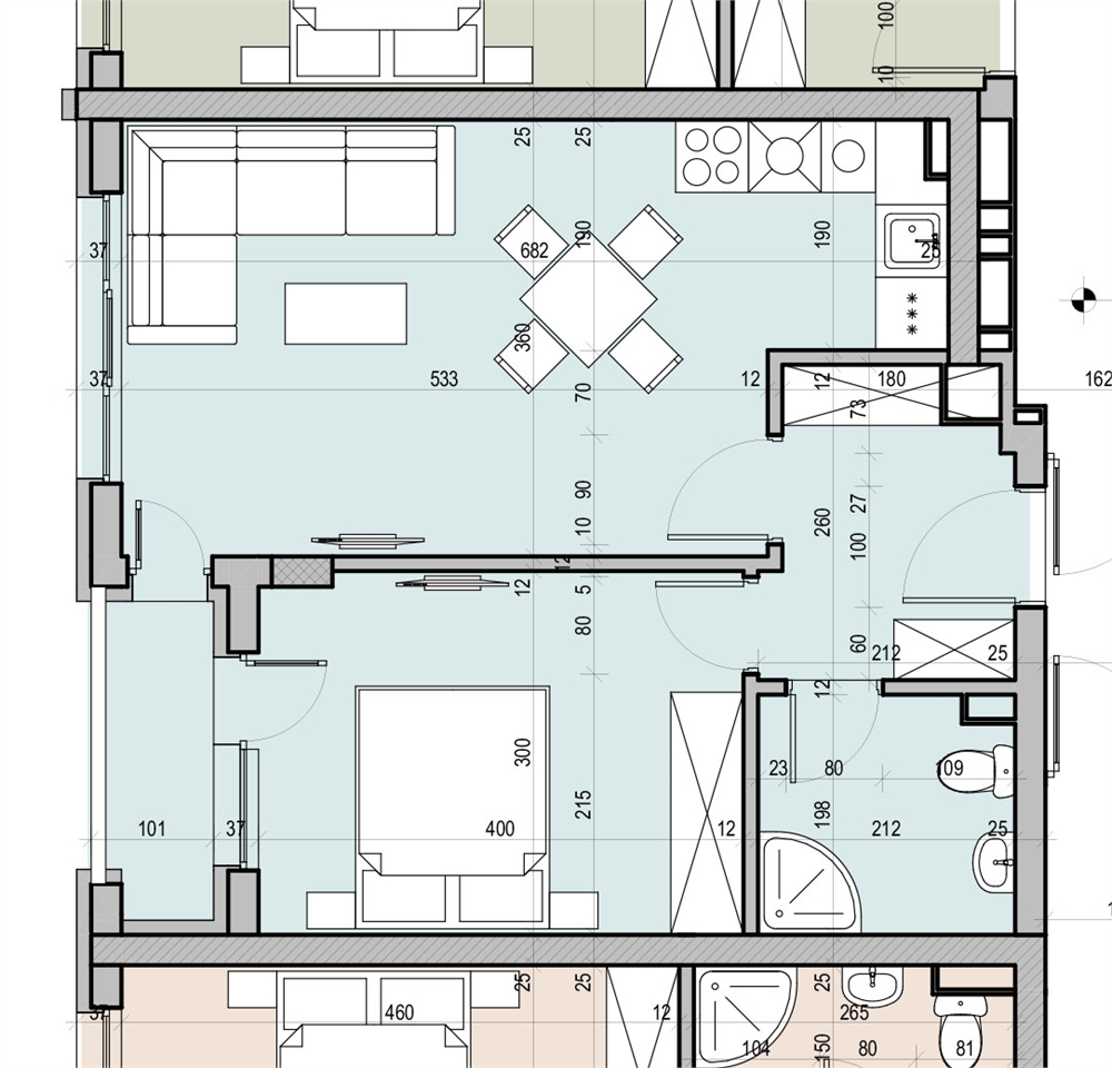
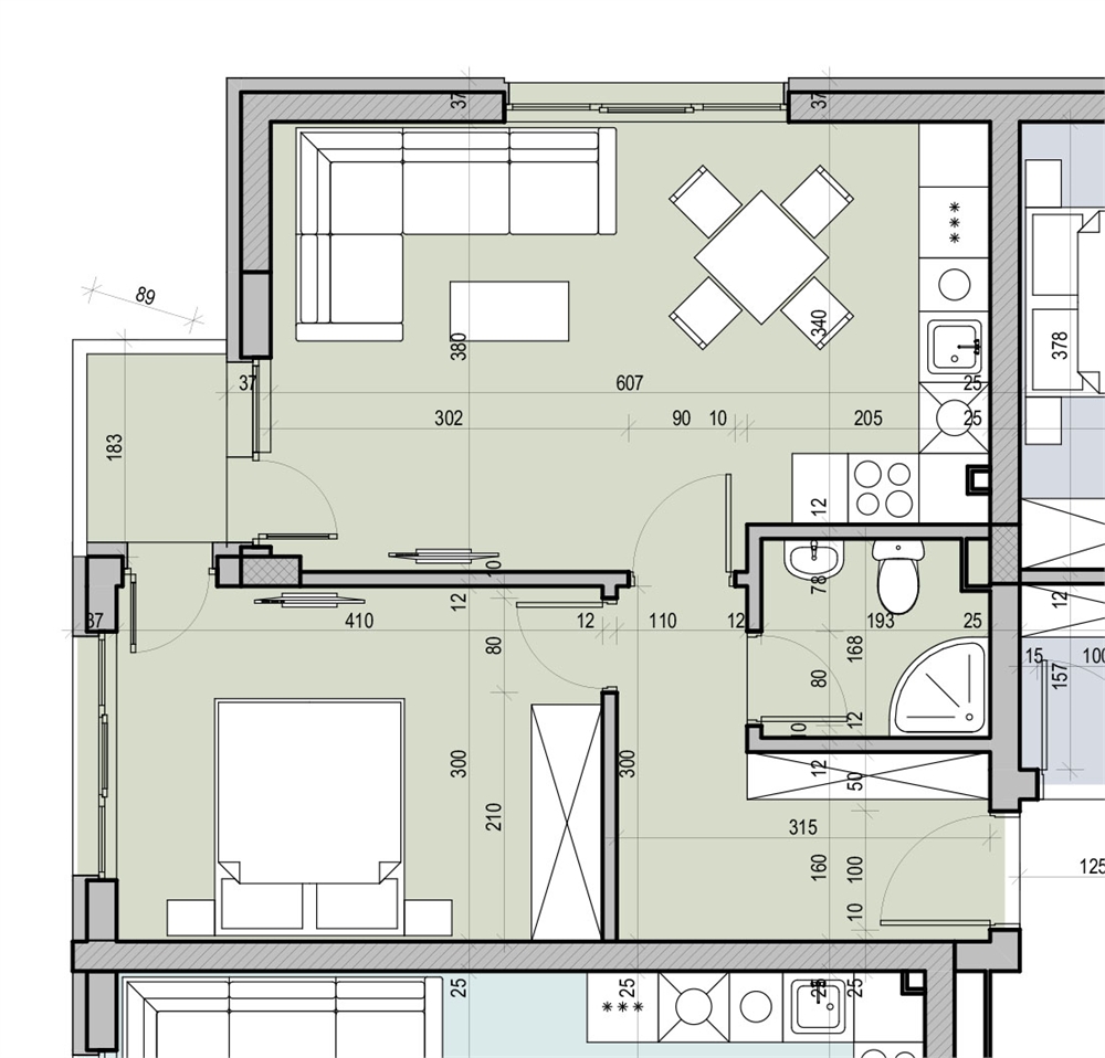
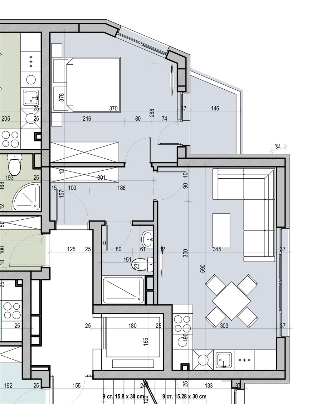
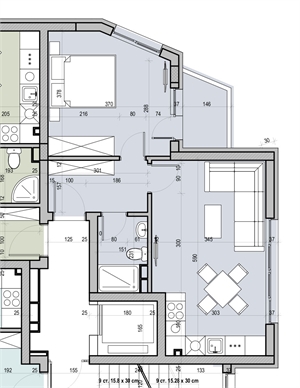
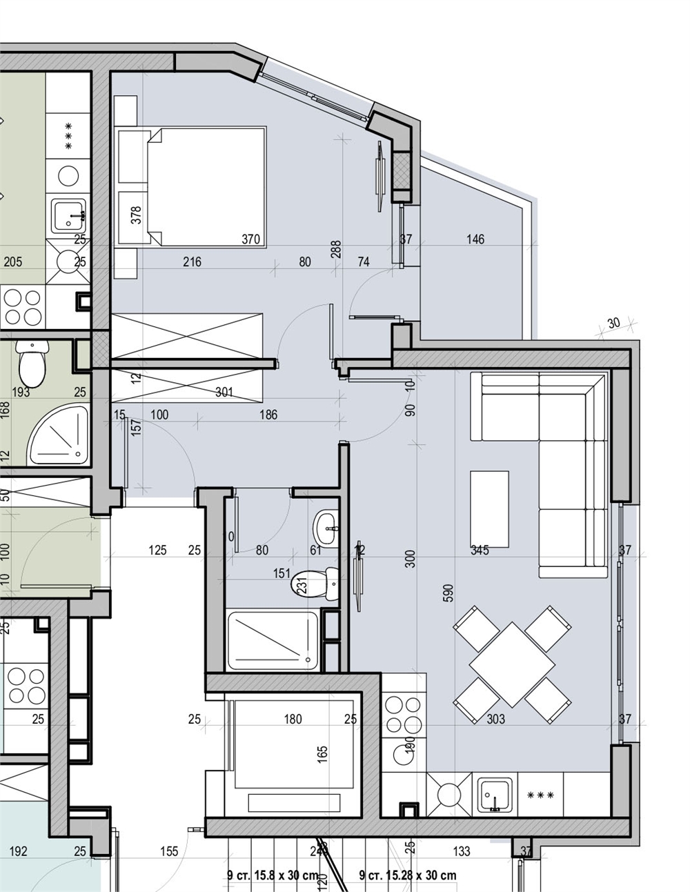
Две малки кокетни жилищни сгради, на метри от парка на Национална спортна академия, на минути от Зимния дворец. Всяка сграда се състои от пет жилищни етажа, а на всеки етаж сме разположили два тристайни апартамента и три двустайни апартамента. Жилищата са изключително функционални, уютни и добре организирани като пространство, като се издават на шпакловка и замазка, с монтирани ключове и контакти, с радиатори и блиндирани външни врати. Сградите са газифицирани, а енергийната им ефективност е гарантирана както от отличната изолация и материали, така и от дограмата с троен стъклопакет със специални нискоемисионни стъкла. Проектът е изграден до степен на завършеност „груб строеж“, като се очаква да бъде завършен и да се депозират документи за въвеждане в експлоатация през 2024г.
Проектант: "АЛПИНА ДИЗАЙН" ООД
ВАЖНО: предстои актуализация на цените, считано от 19.06.2024г.
Този сайт ползва само бисквитки от Google Analytics. Не проследяваме по никакъв начин вашите действия с рекламна или друга комерсиална цел. Политика за поверителност. Предотвратете използването на вашите данни от Google Analytics