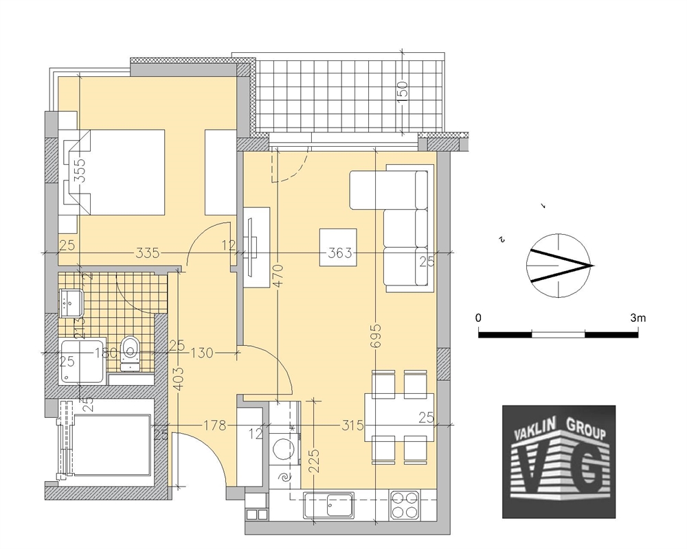
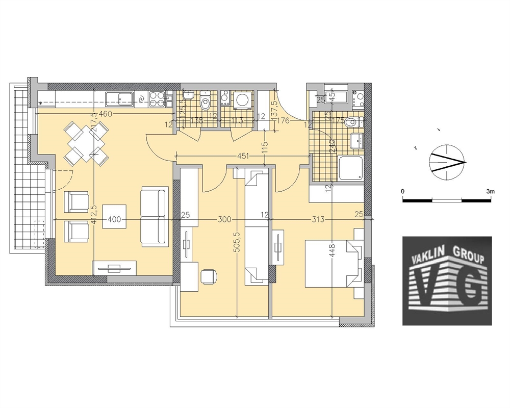
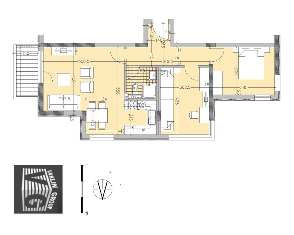
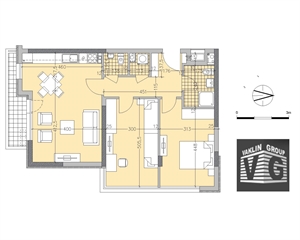
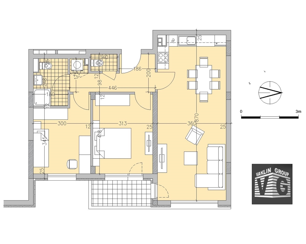
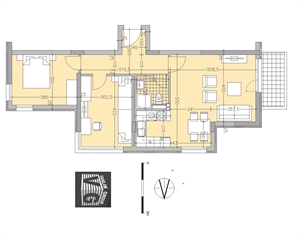
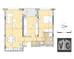
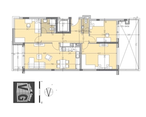
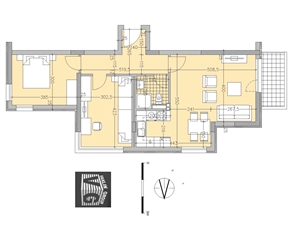
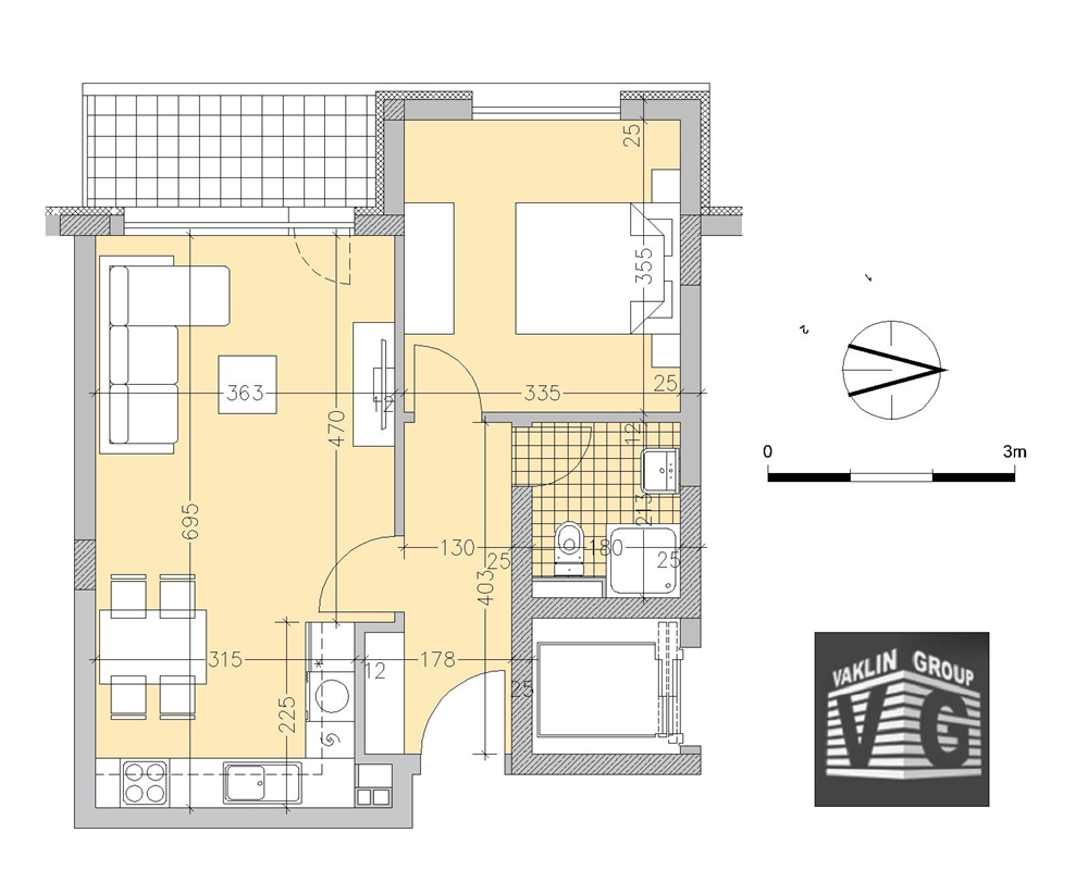
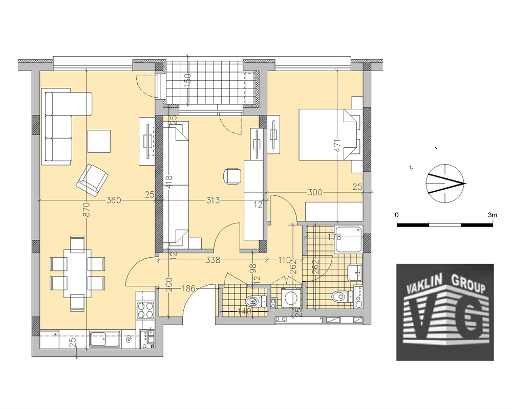
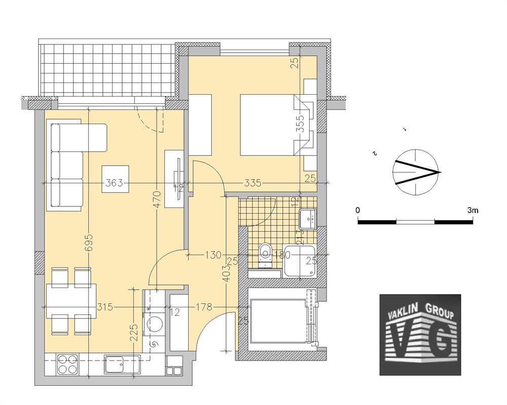
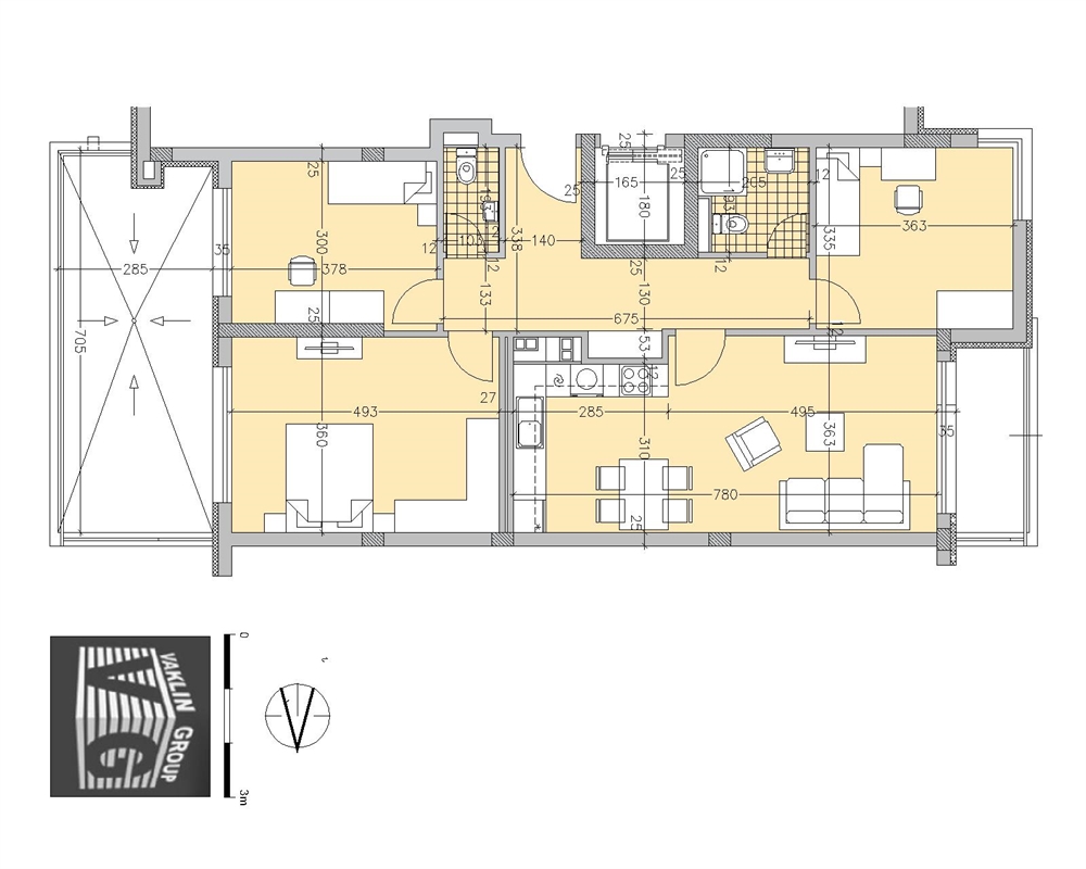
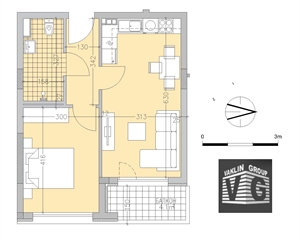
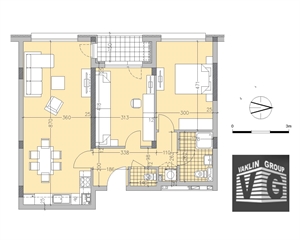
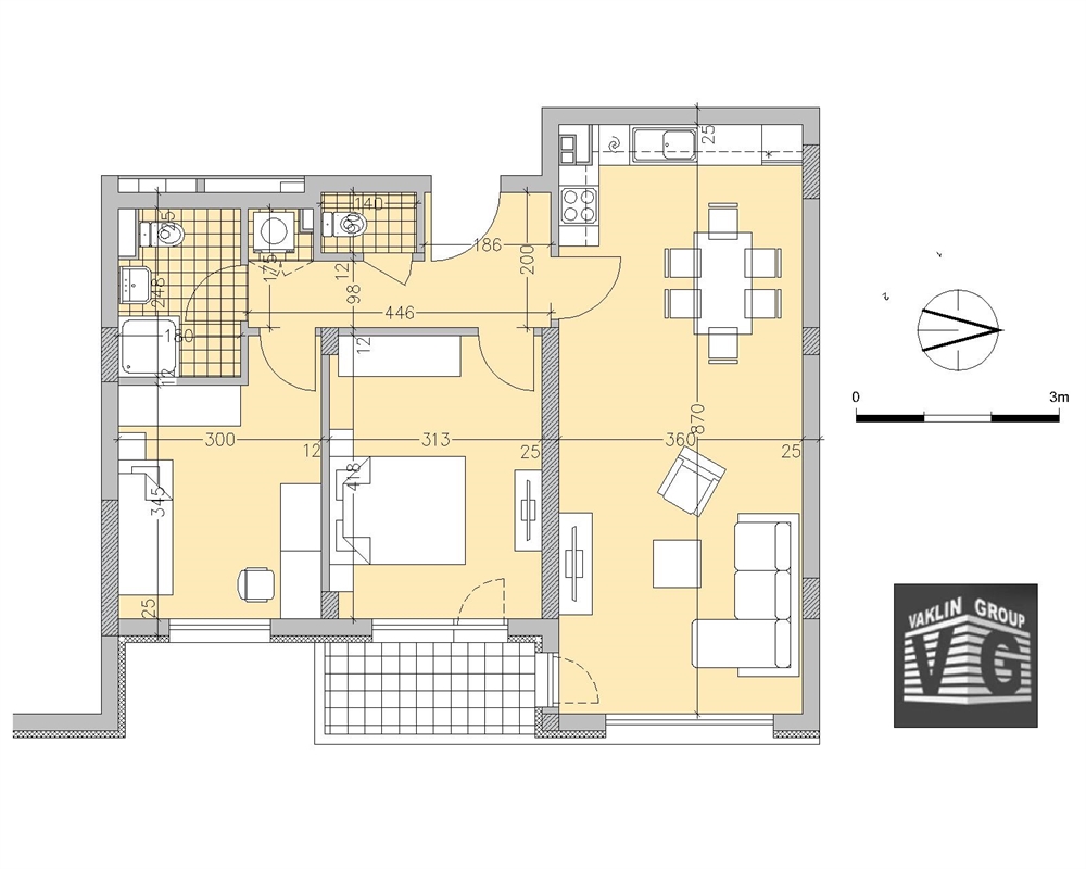
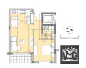
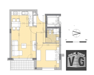
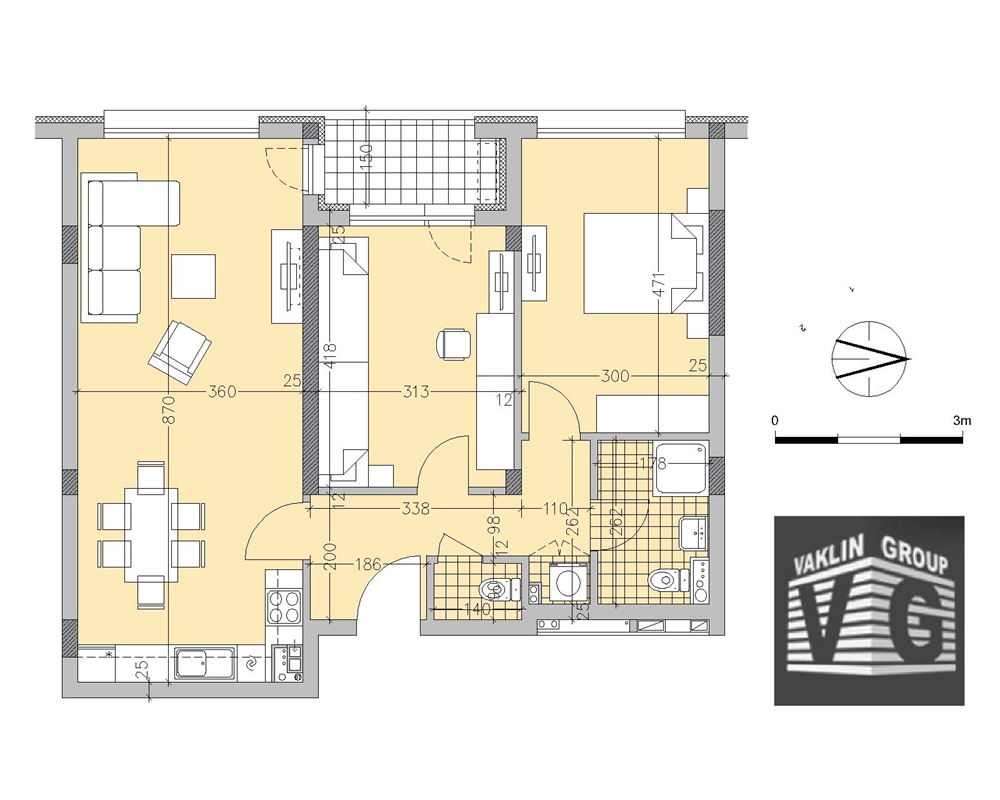
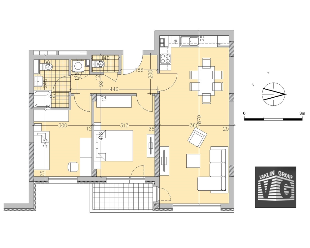
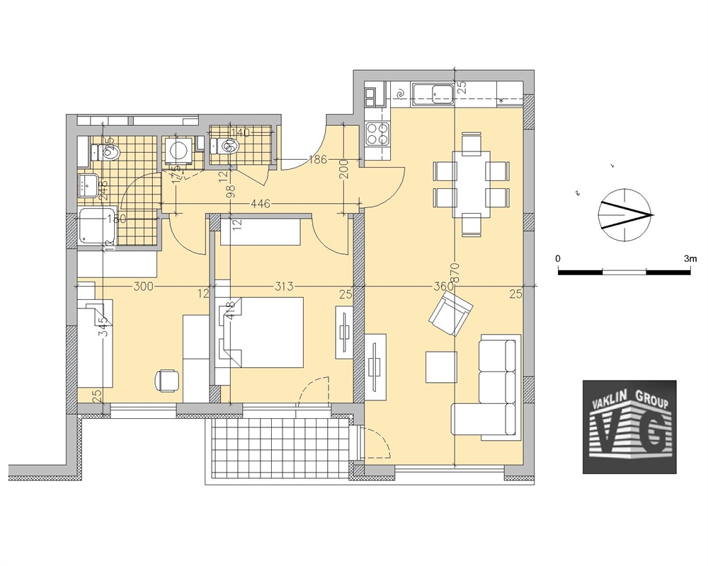
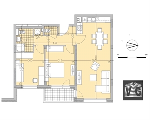
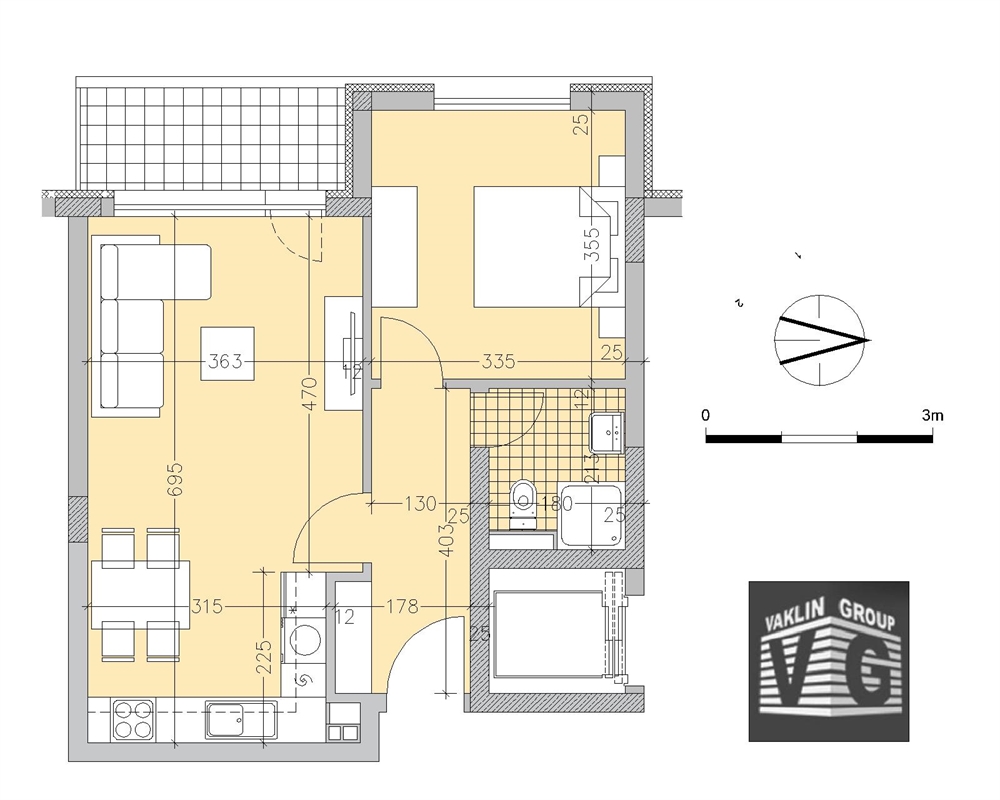
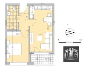
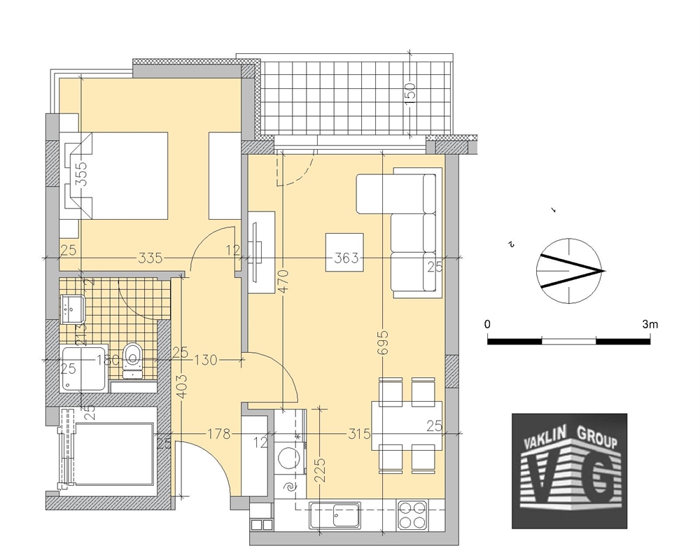
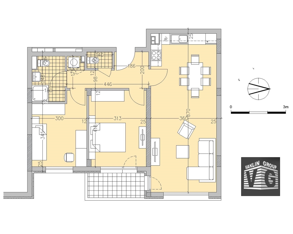
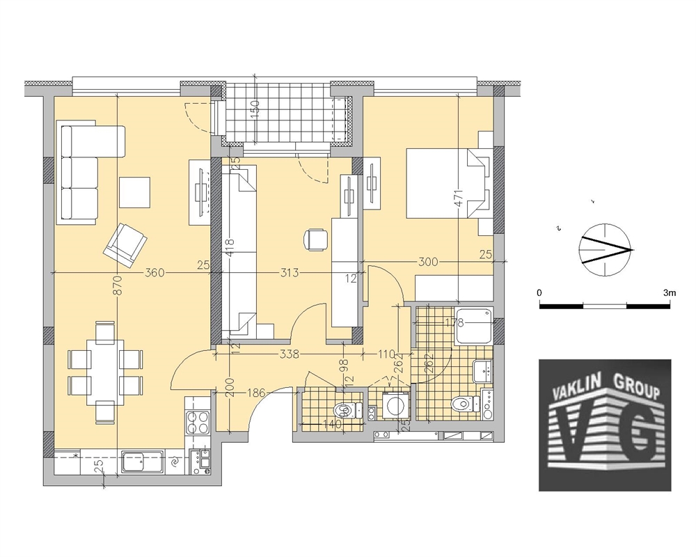
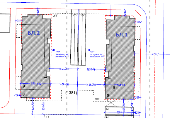
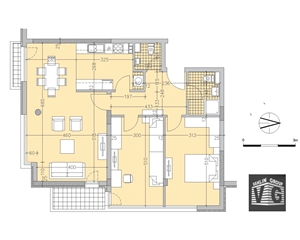
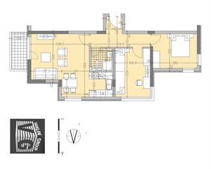
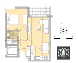
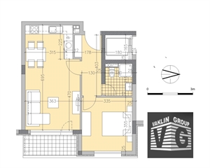
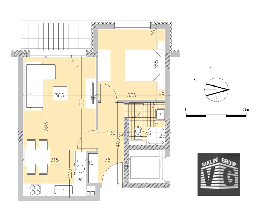
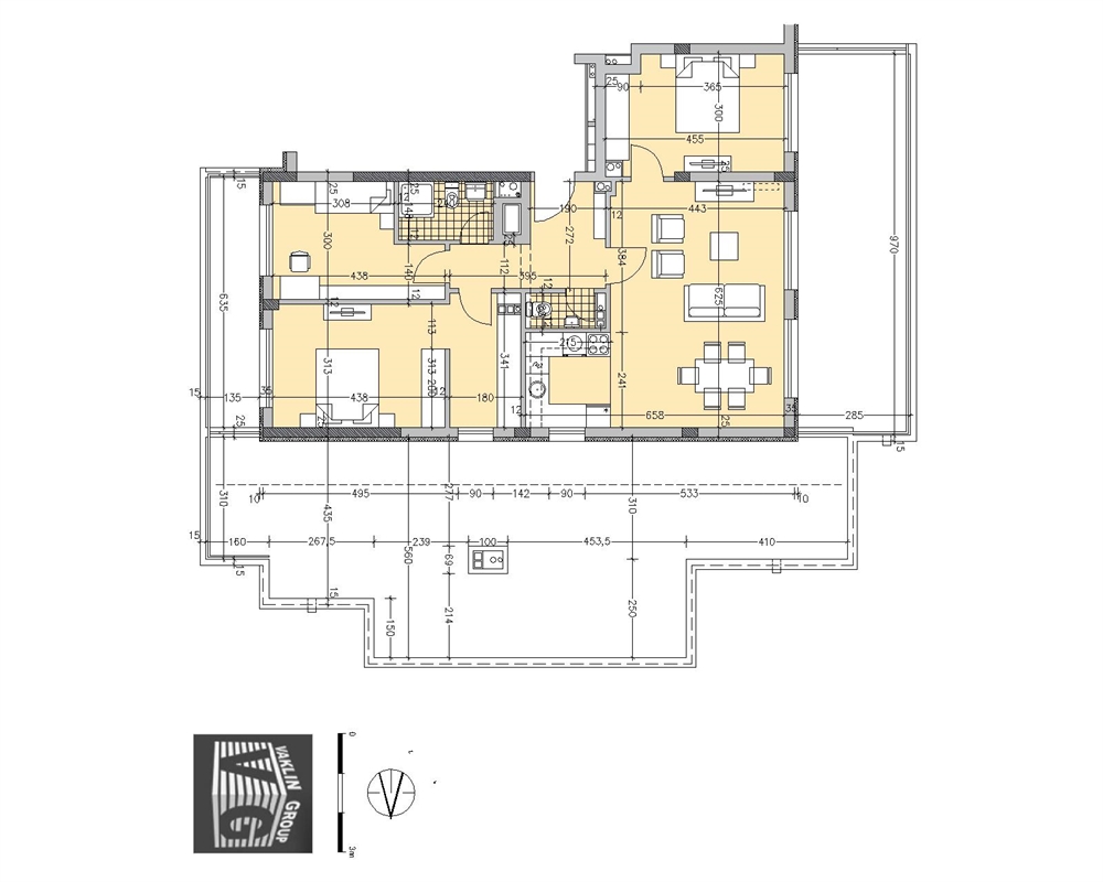
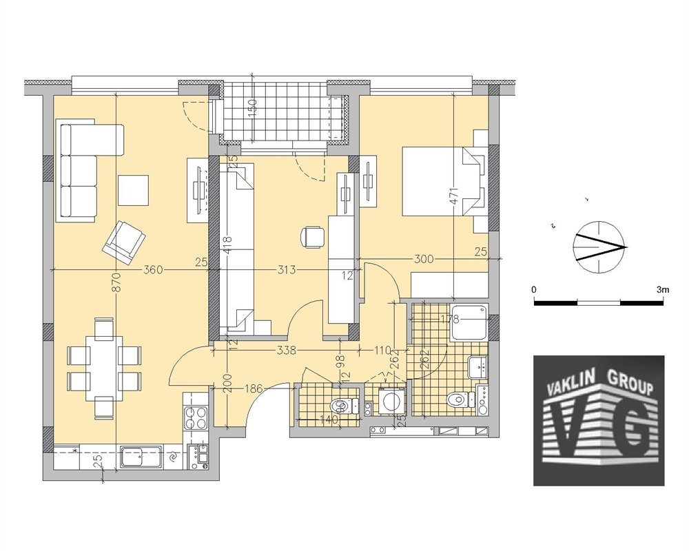
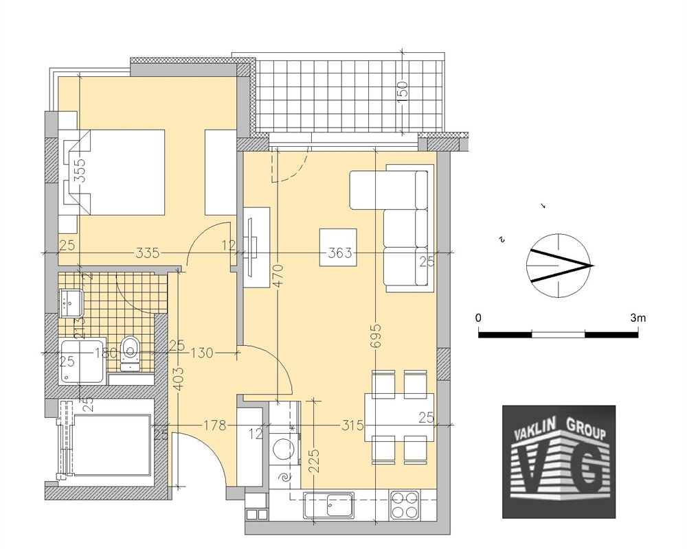
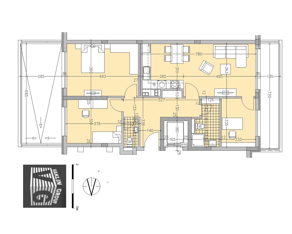
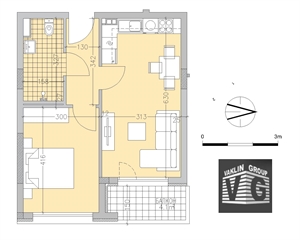
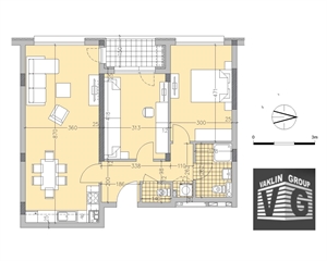
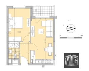
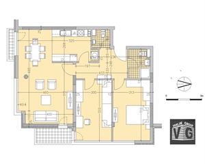
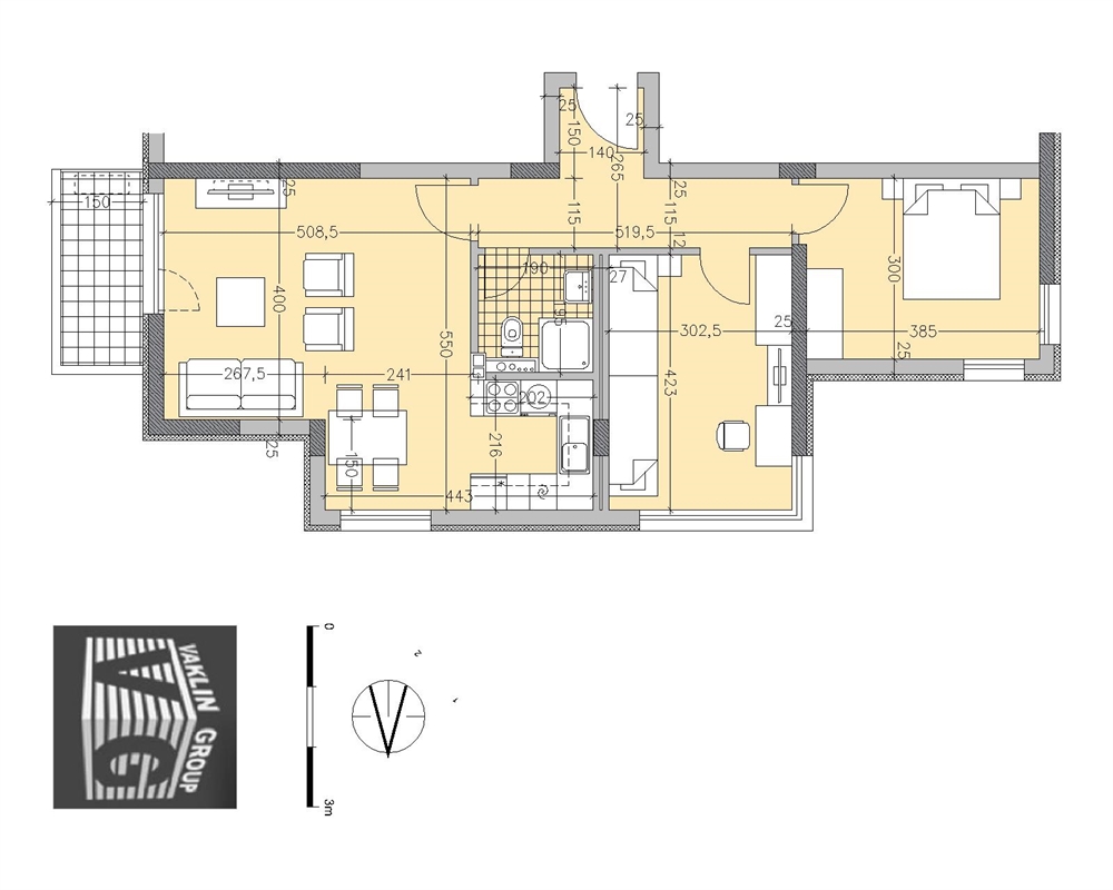
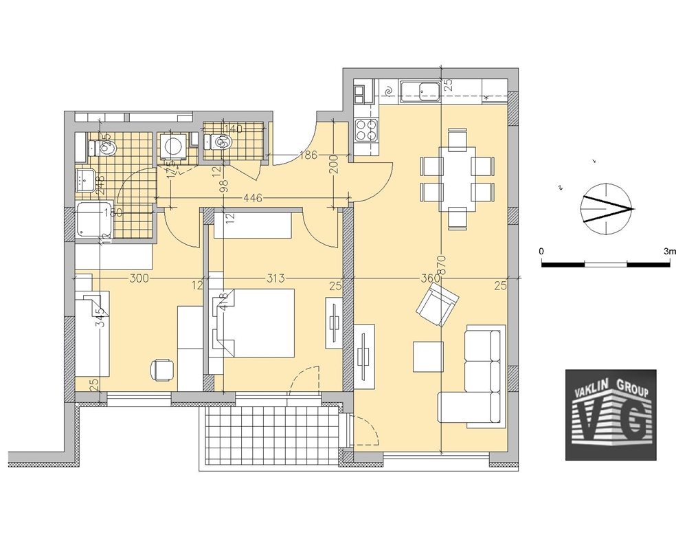
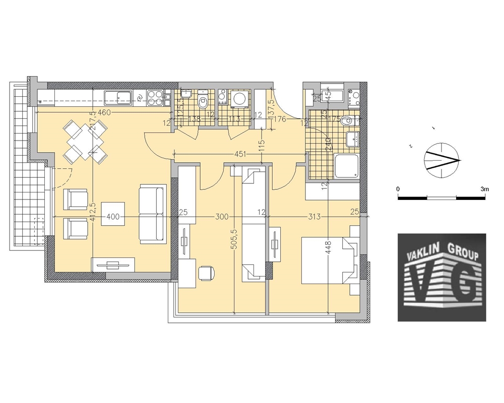
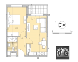
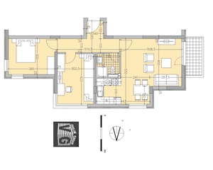
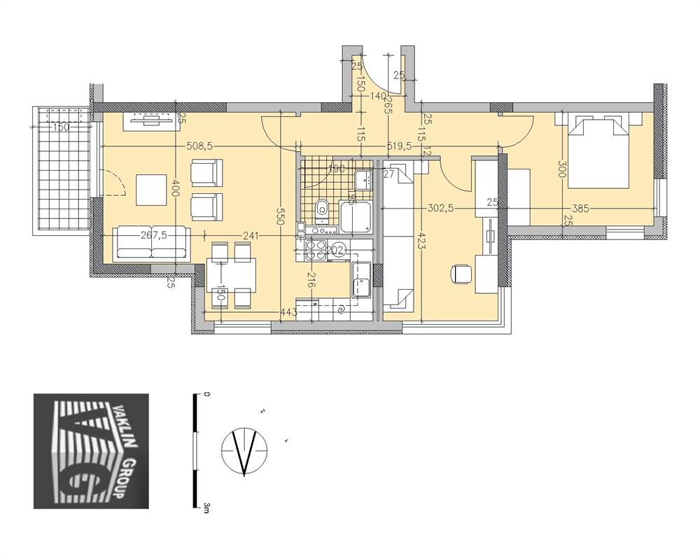
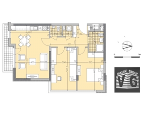
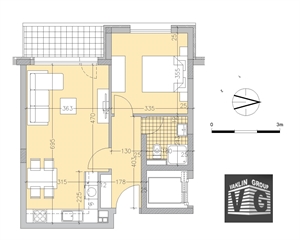
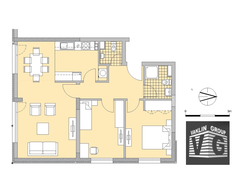
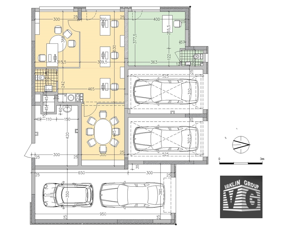
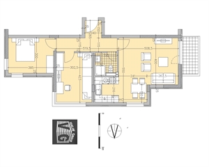
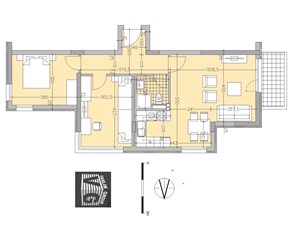
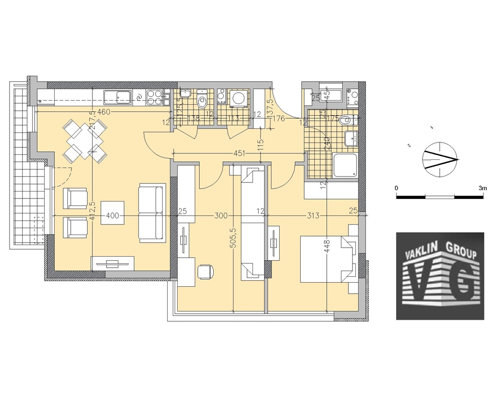
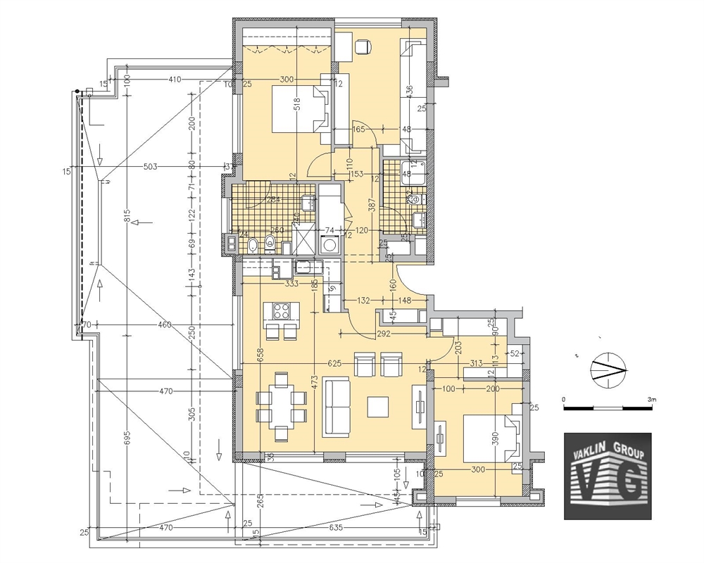
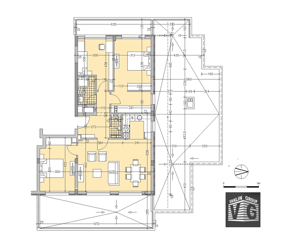
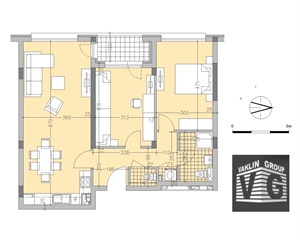
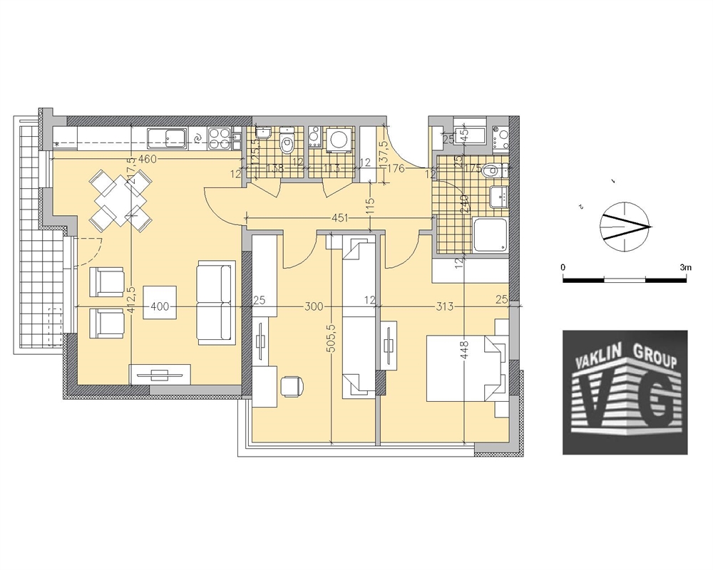
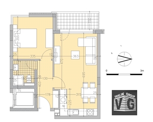
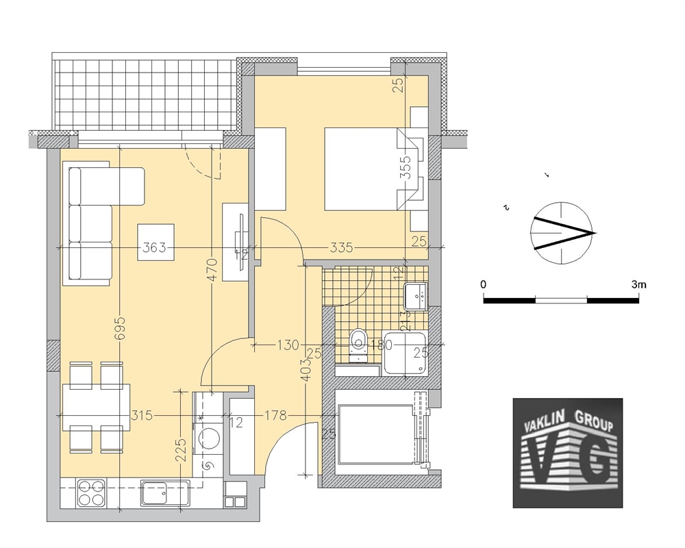
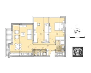
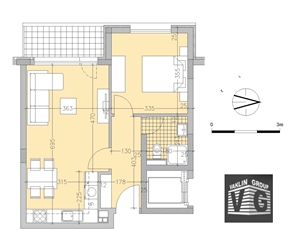
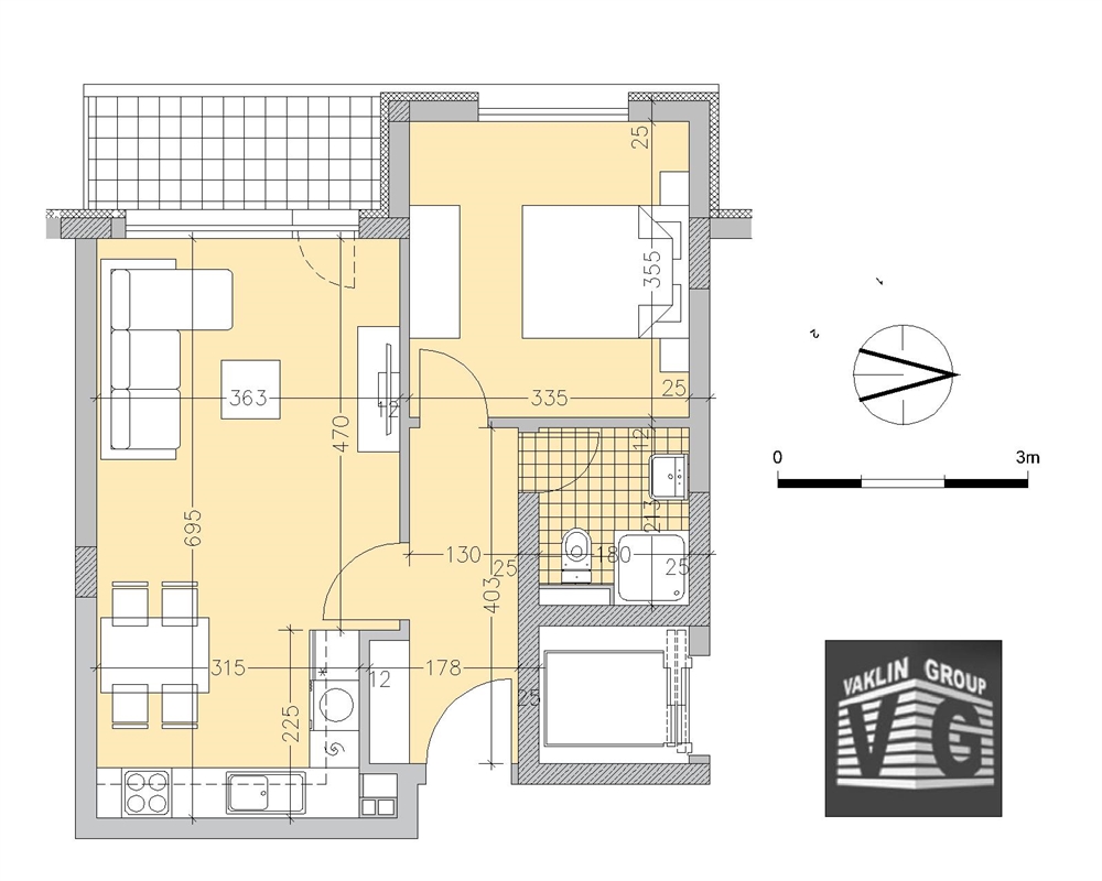
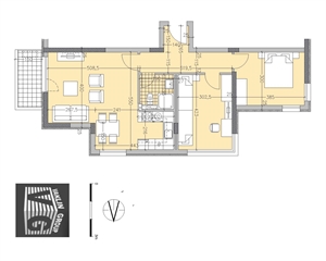
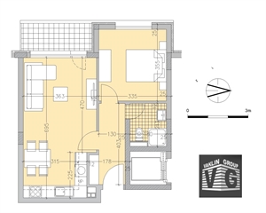
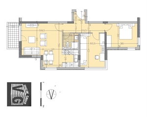
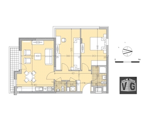
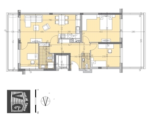
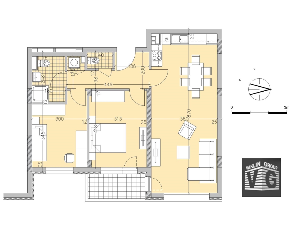
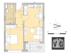
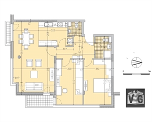
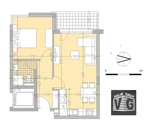
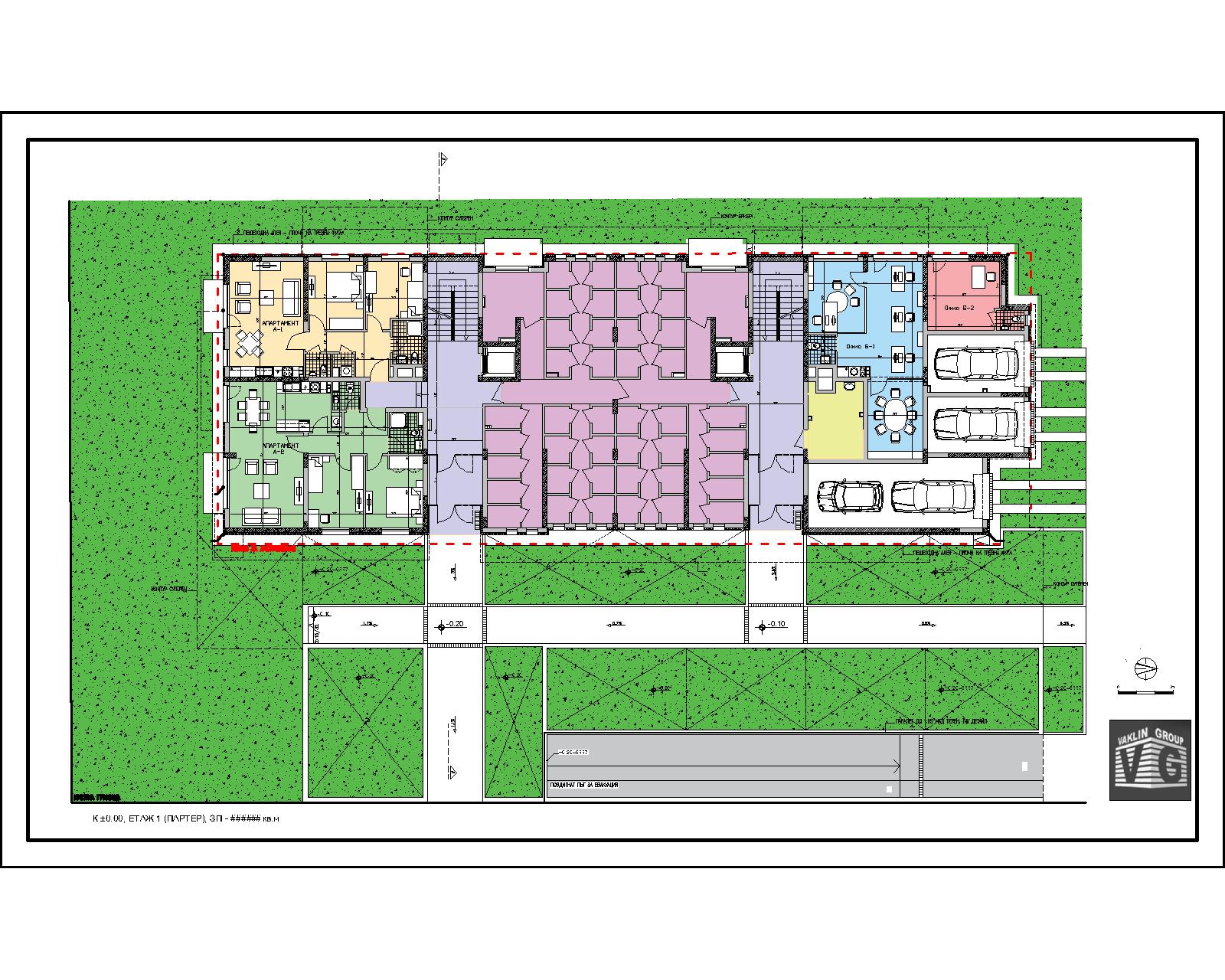
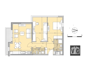
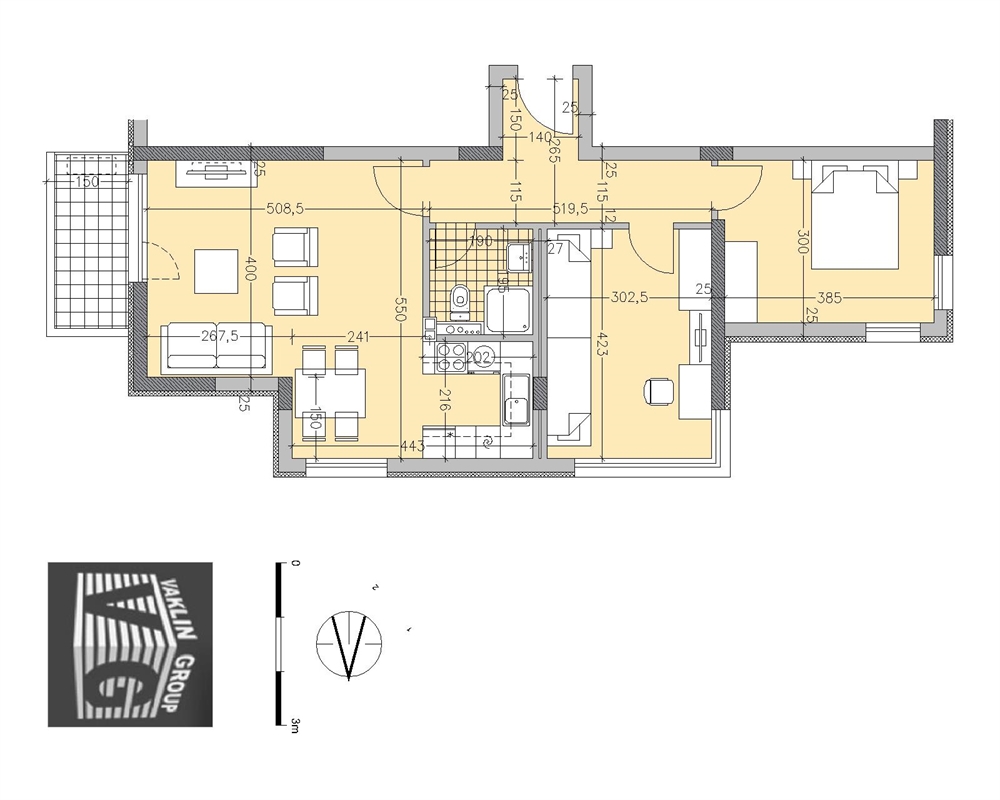
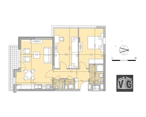
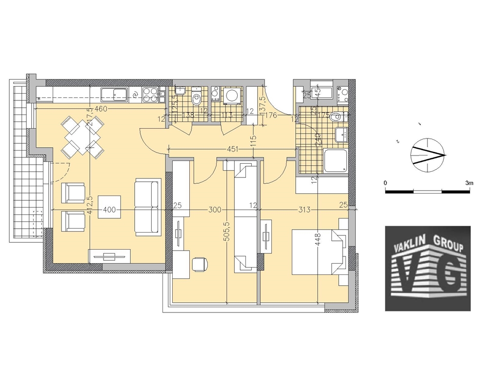
Младост 4 УПИ III и VIII
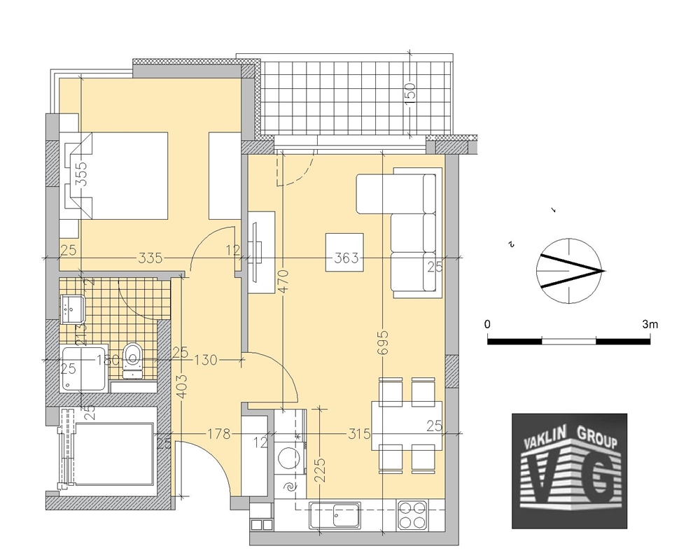
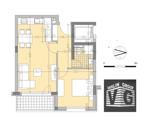
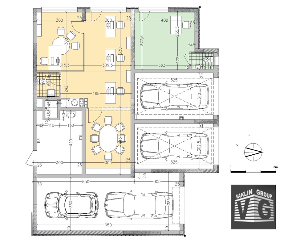
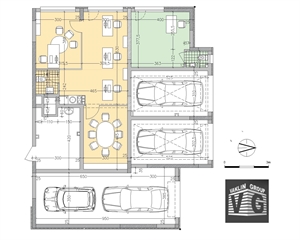
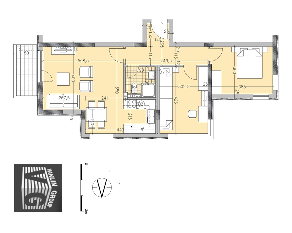
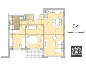
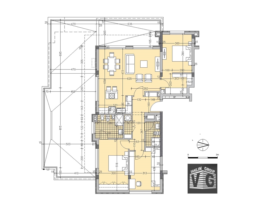
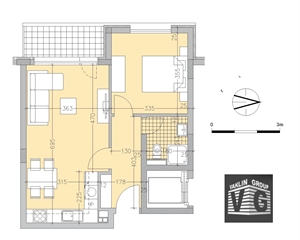
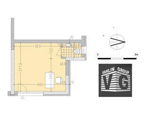
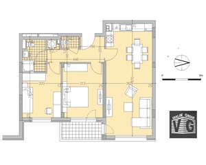
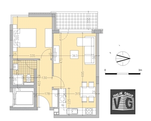
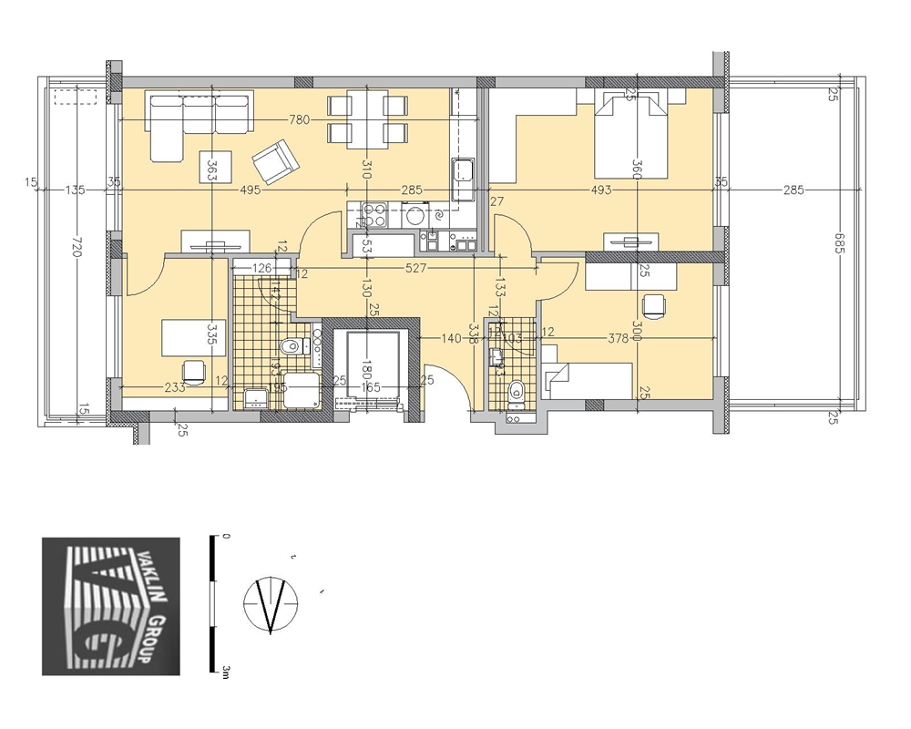
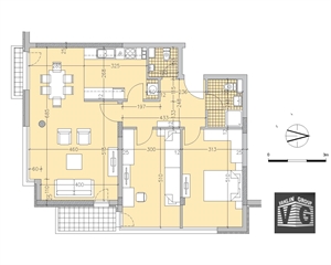
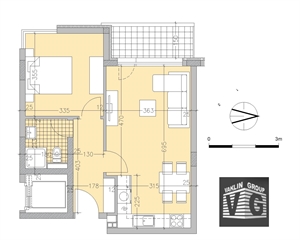
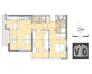
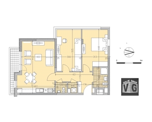
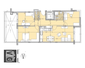
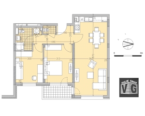
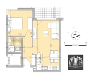
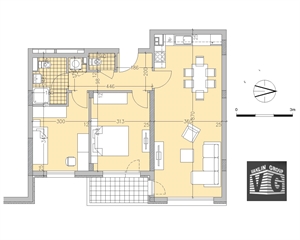
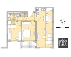
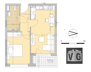
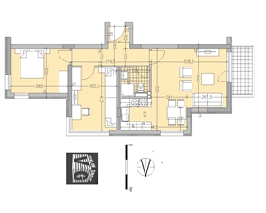
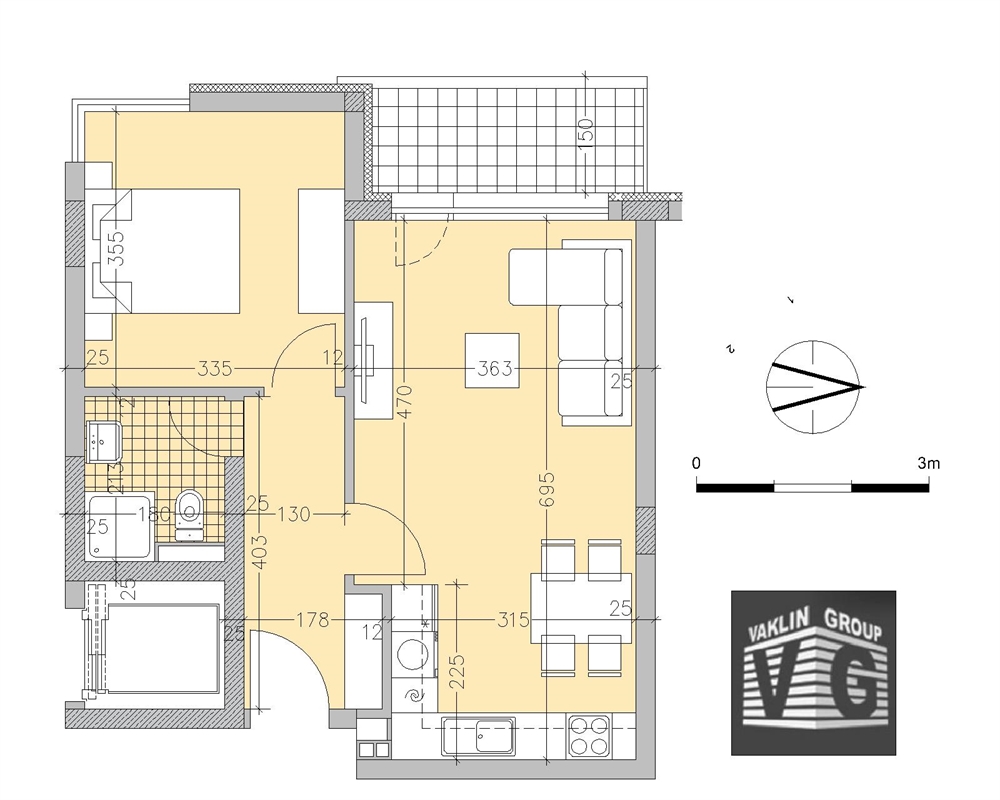
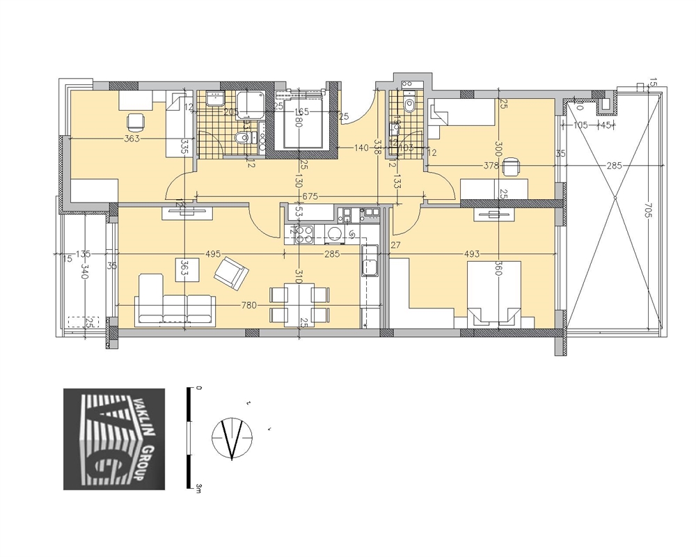
Две стилни жилищни сгради ще бъдат реализирани от нас в ж.к. „Младост 4”, на ул. „Арх. Богдан Томалевски”. Жилищата ще бъдат изпълнени с добре познатите високи стандарти за качество и енергийна ефективност, които са характерни за „Ваклин Груп” и са наша запазена марка на пазара на недвижими имоти в страната – уютът в бъдещия Ви дом е гарантиран от 25 см. червена тухла на външните стени, 12 см. топлоизолация, 6-камерна дограма с троен стъклопакет. Общите части са изпълнени изцяло с естествен камък и се обслужват от 8-местни високоскоростни асансьори. Всеки апартамент разполага с видео домофонна система, луксозни блиндирани врати, поставен тръбен път за климатик и пълно окабеляване, включително за СОТ. Отоплението и постоянният приток на топла вода саосигурени с ОвИ инсталация на газ с монтирани от нас радиатори. В комплекса ще има двустайни, тристайни и четиристайни апартаменти, с изцяло правилни помещения, отлични топлоизолационни параметри и с луксозни общи части, като всяка сграда ще се състои от два самостоятелни входа за допълнителен комфорт на живущите.
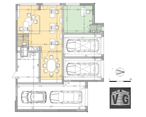
Прекрасната гледка към планината и отличната осветеност, която апартаментите предлагат, определят бъдещия комплекс като изключително подходящ както за жилищни нужди, така и за инвестиционни цели. Локацията на сградите е само на около 100 м. от метростанция „Бизнес парк”. Собствениците на автомобили ще могат да закупят паркомясто или гараж – всяка от сградите е снабдена с две подземни нива, с достъп на асансьорите до тях. Комплексът ще се помещава в красив двор, с много зелена площ помежду им и кът за игра на най-малките им обитатели. Срок за въвеждане в експлоатация – 2021г.
Разпродадена!
Този сайт ползва само бисквитки от Google Analytics. Не проследяваме по никакъв начин вашите действия с рекламна или друга комерсиална цел. Политика за поверителност. Предотвратете използването на вашите данни от Google Analytics