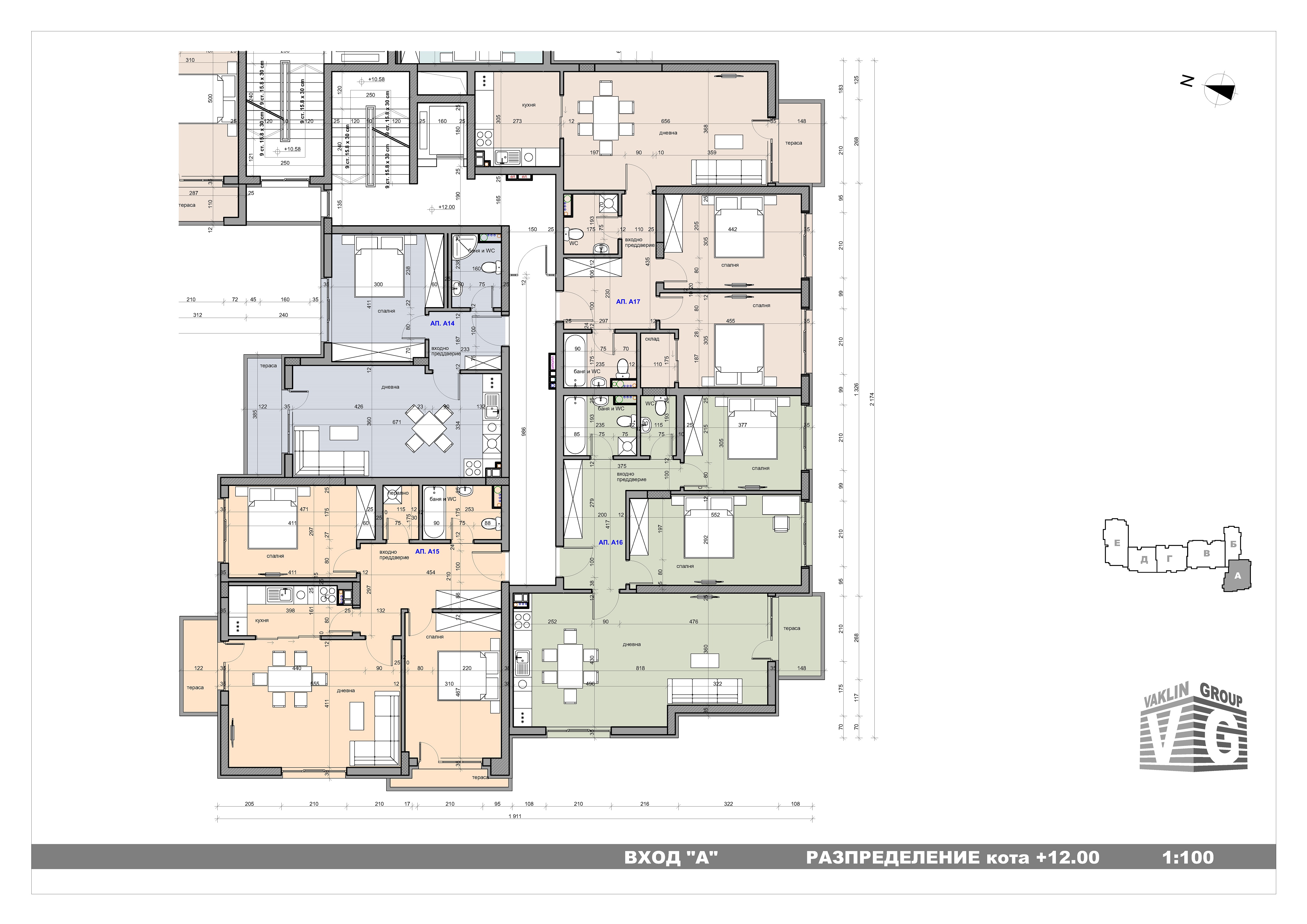
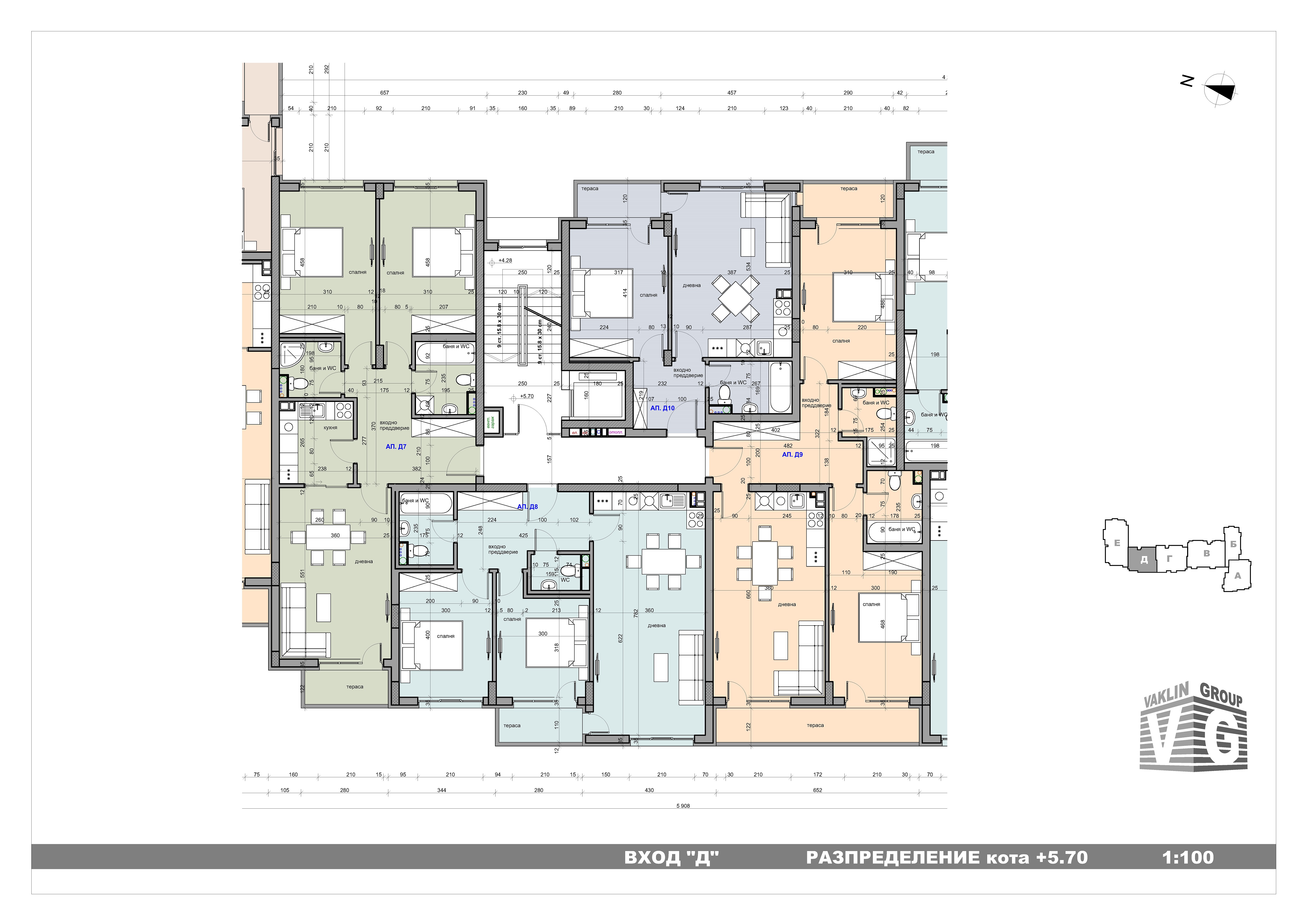
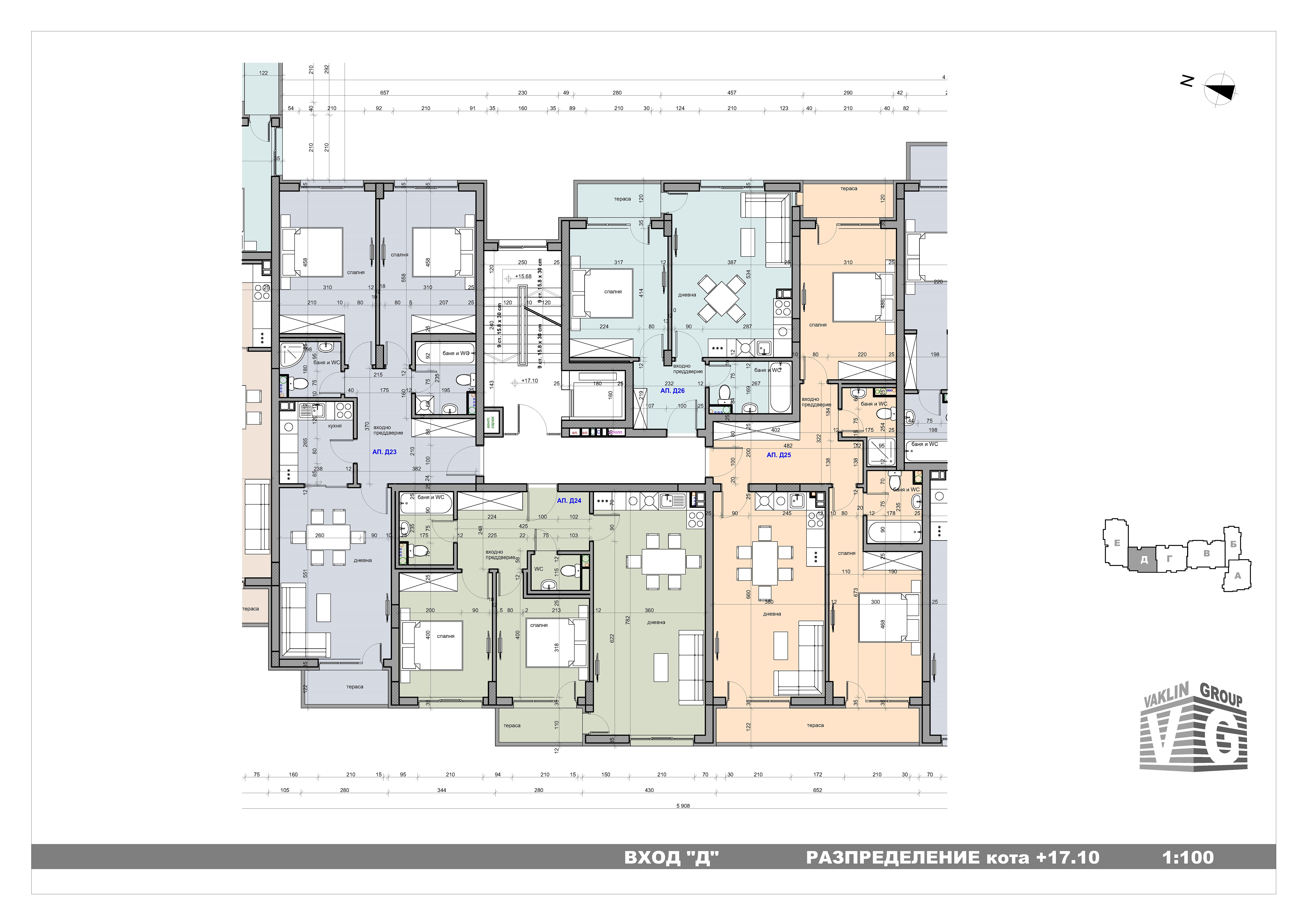
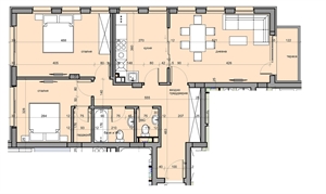
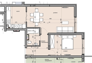
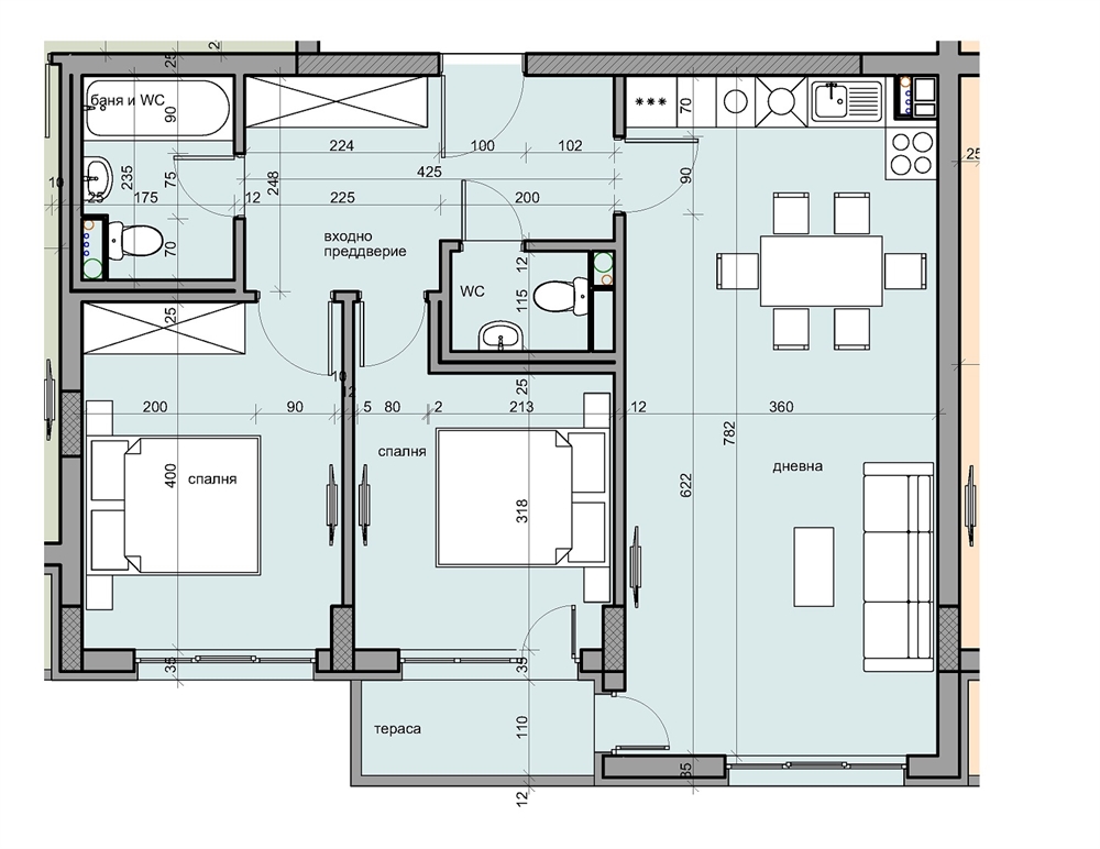
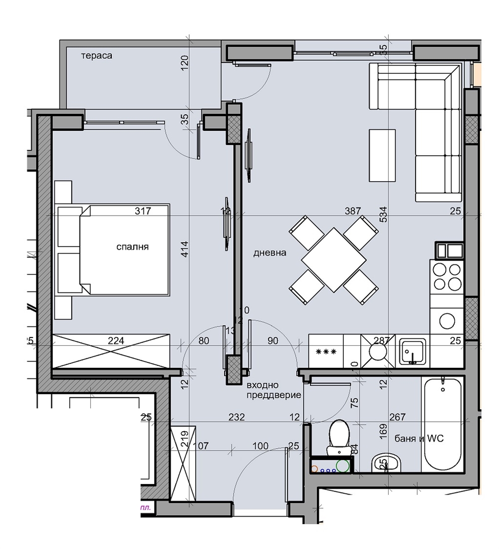
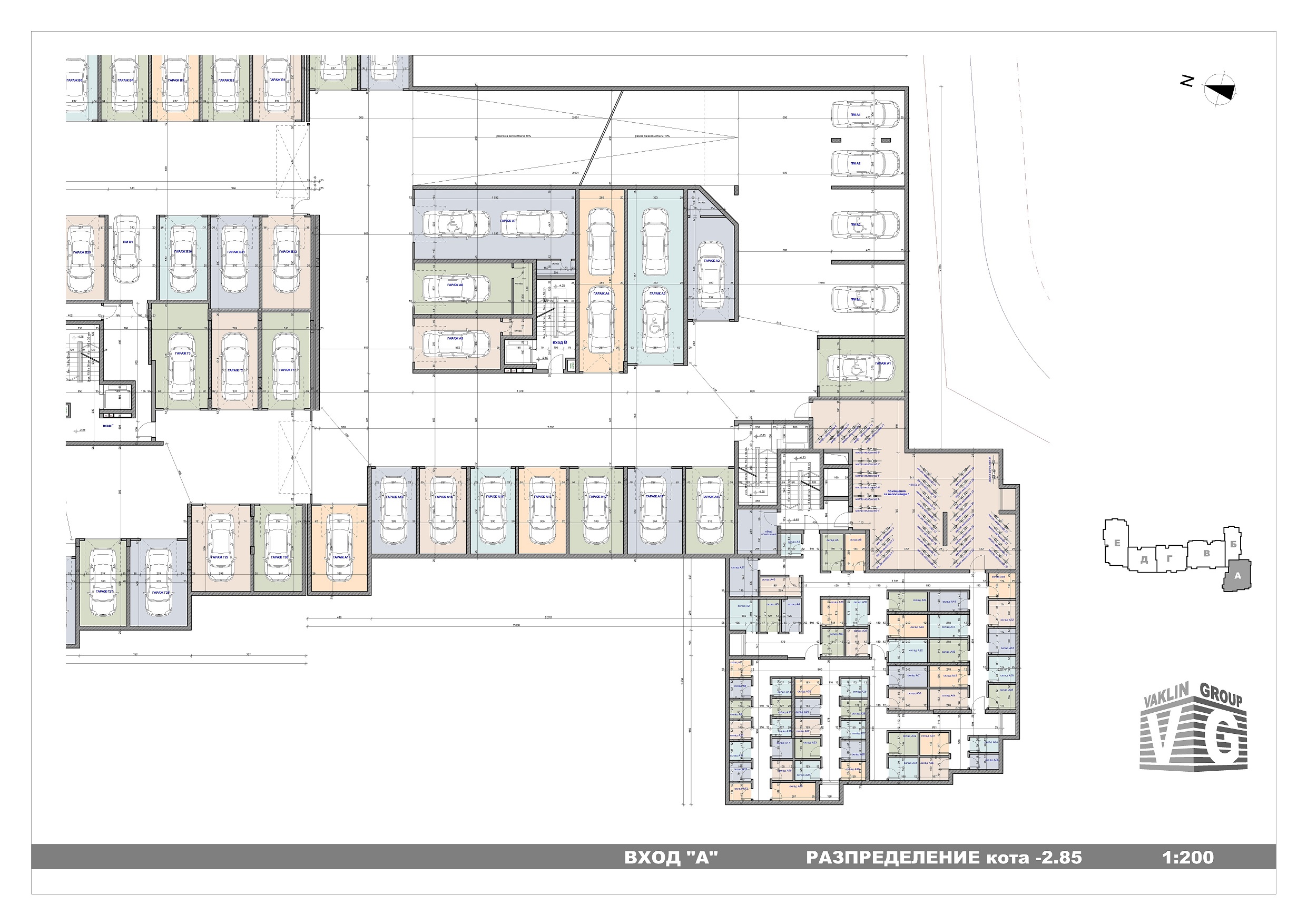
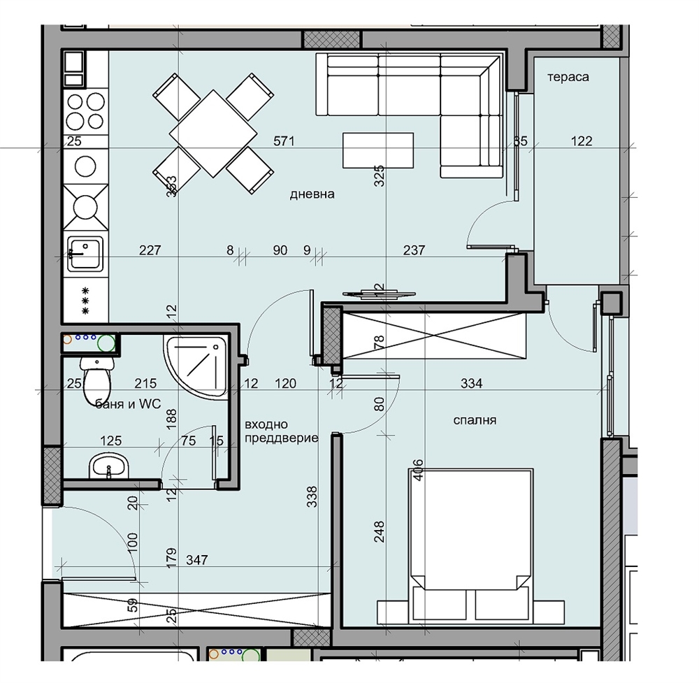
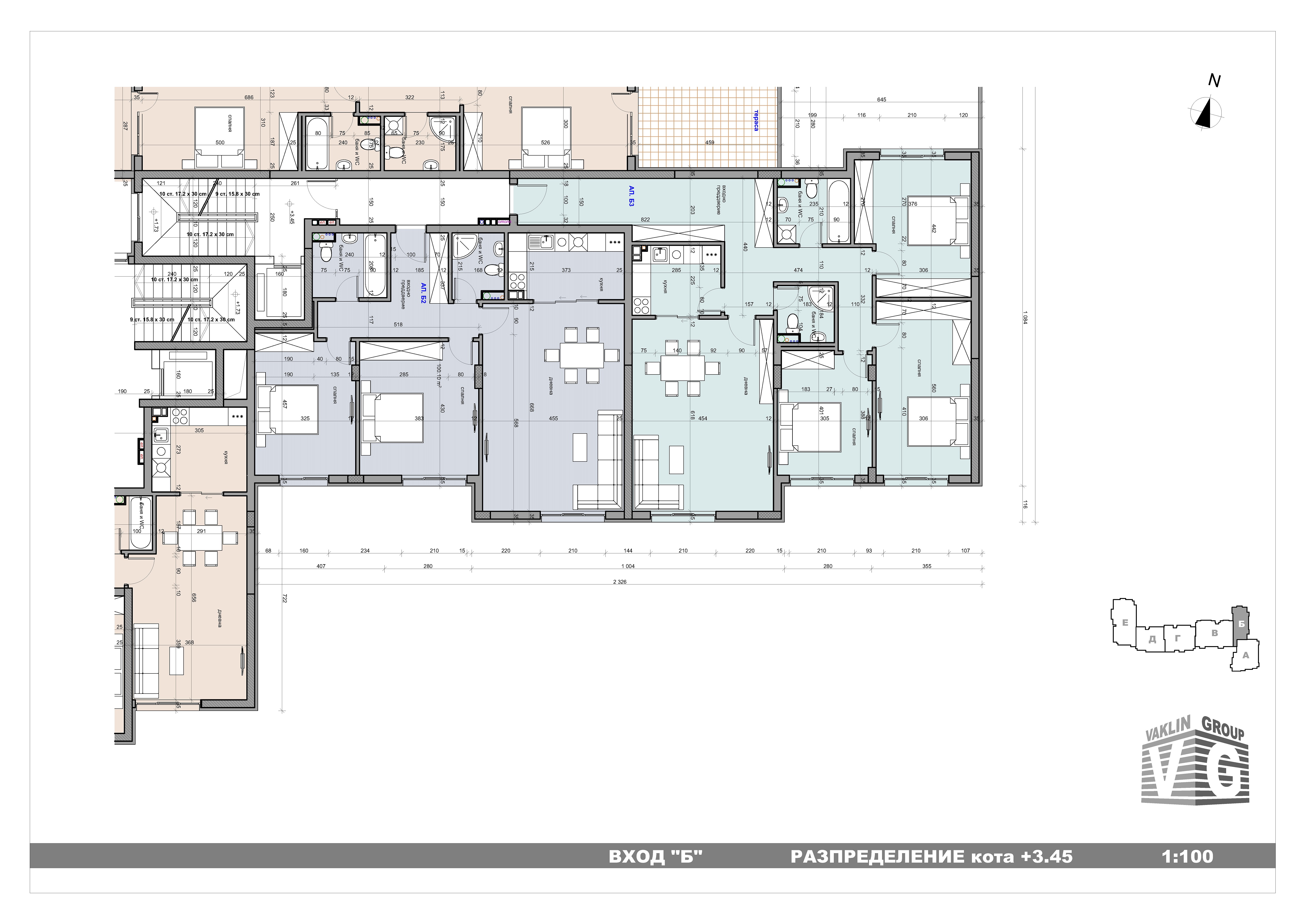
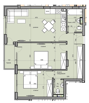
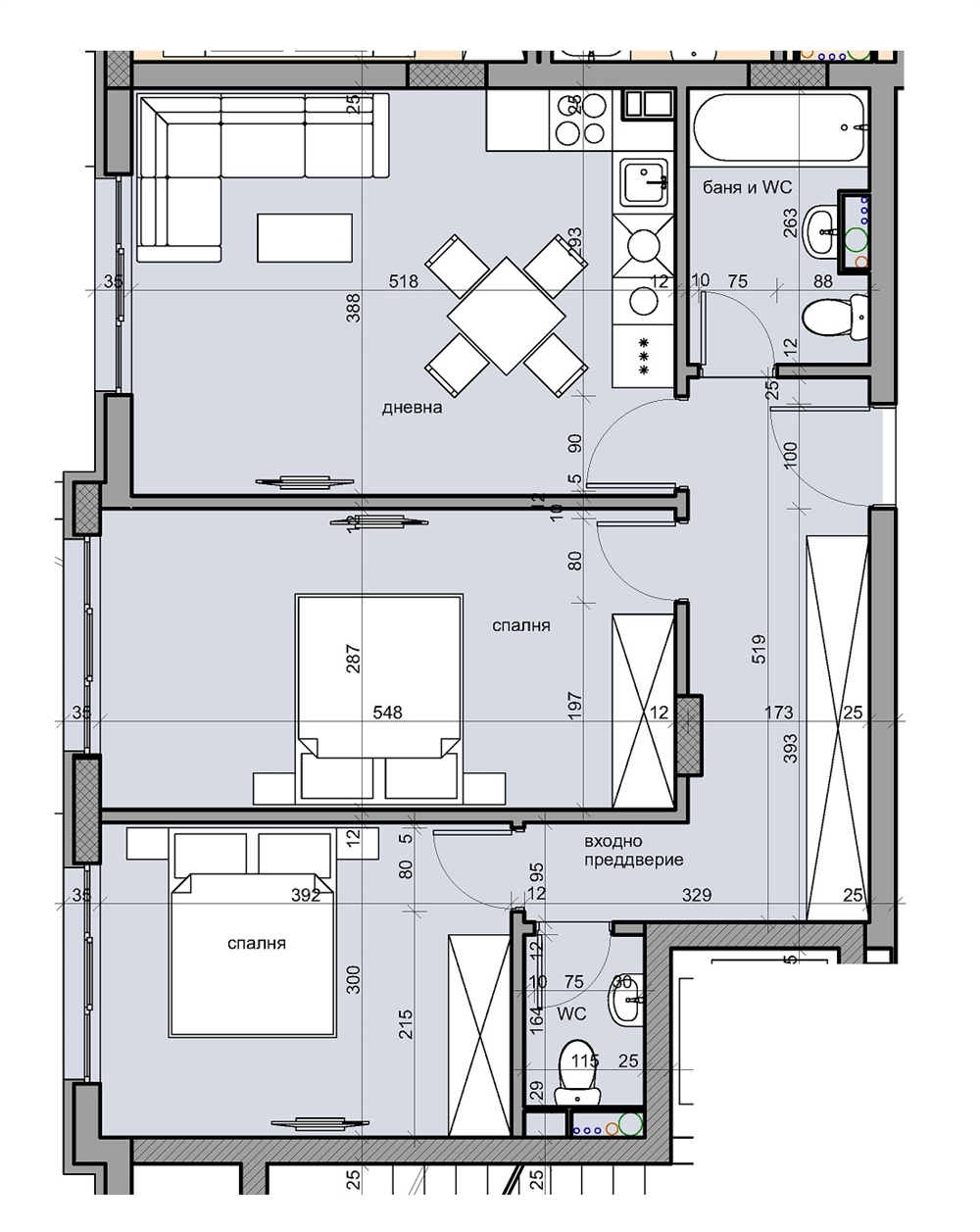
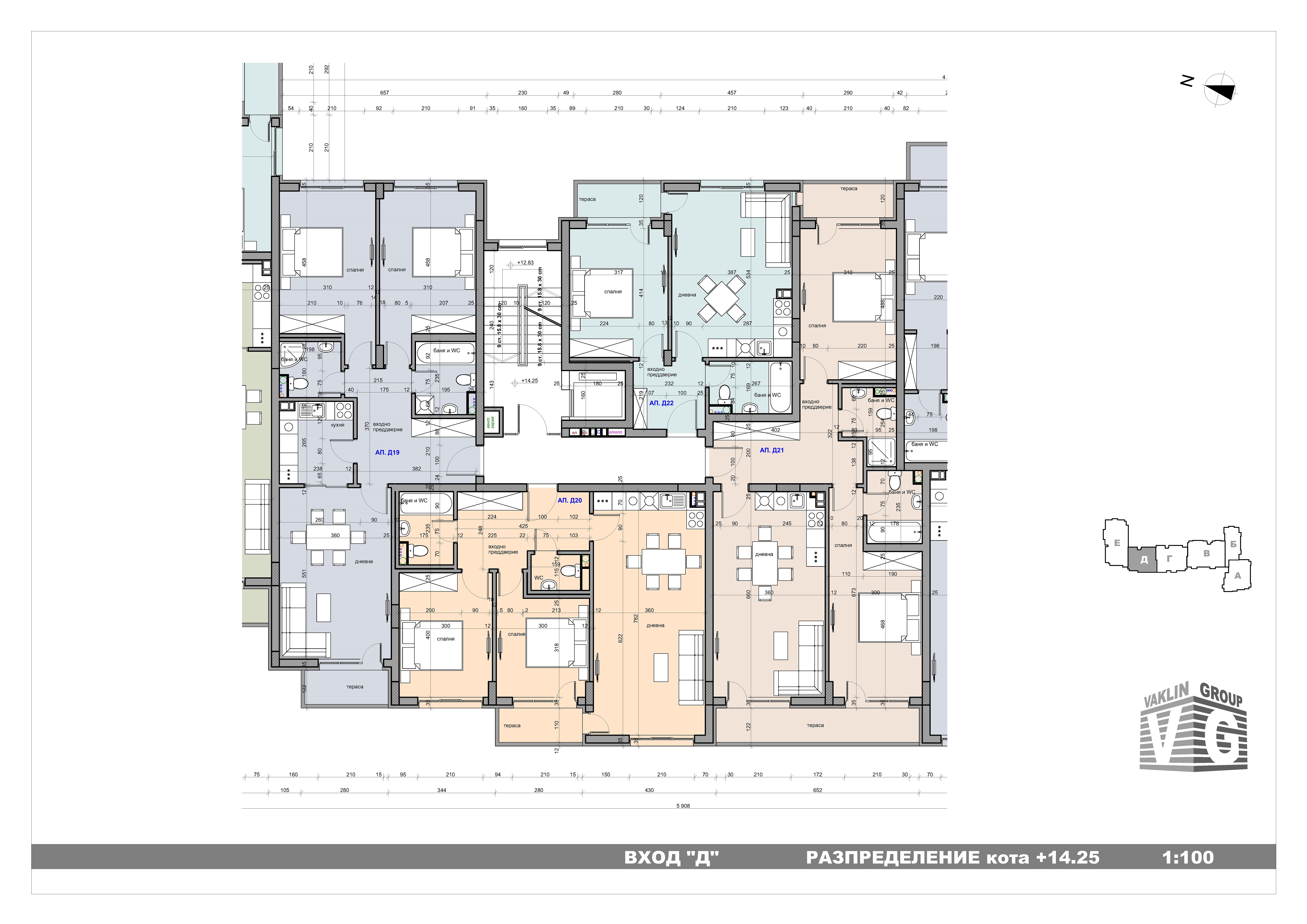
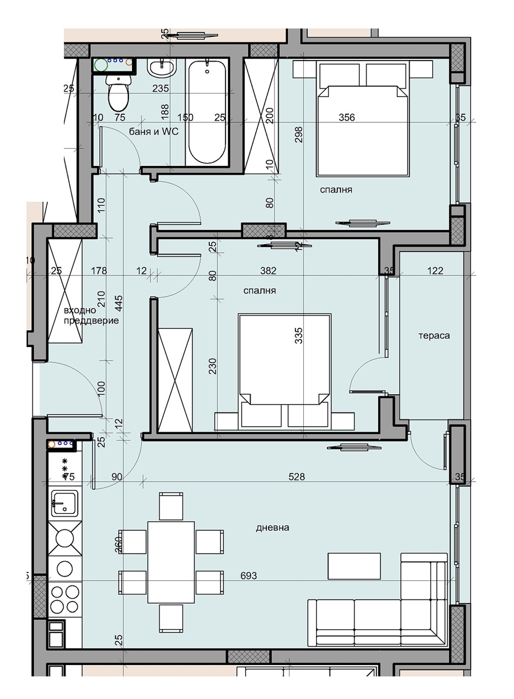
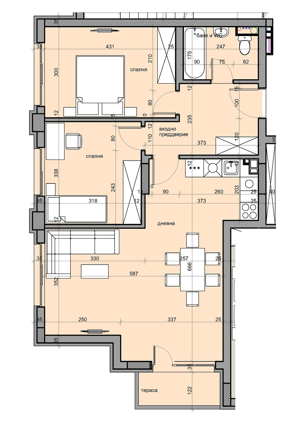
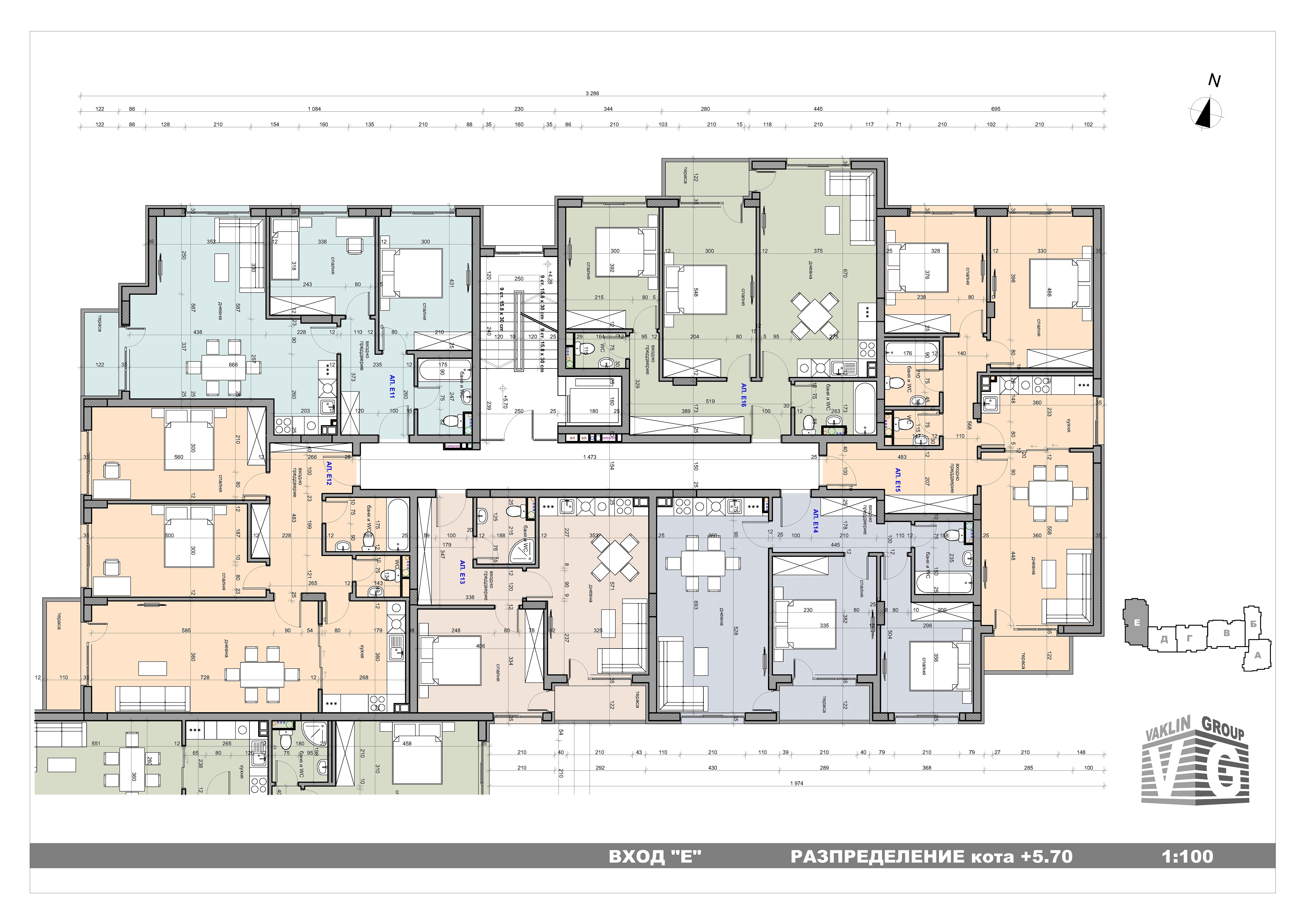
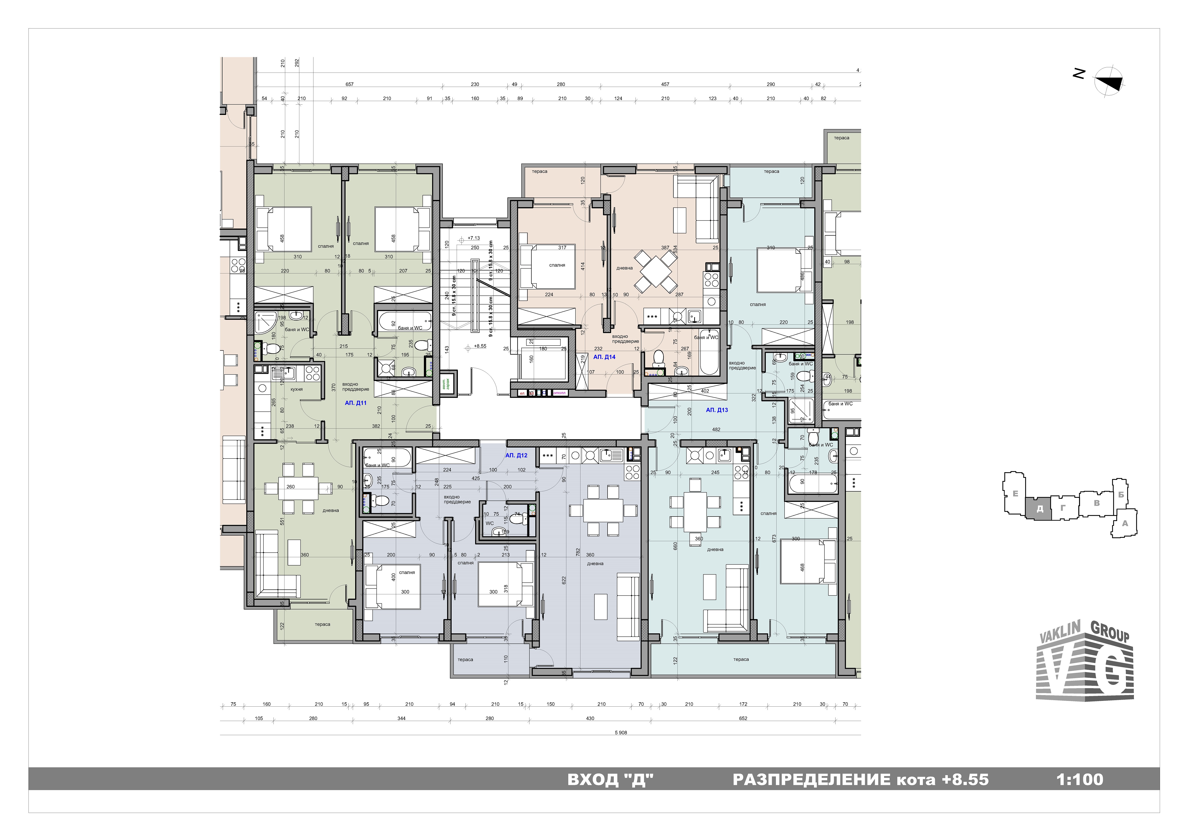
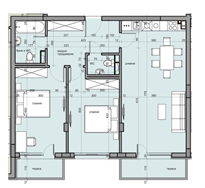
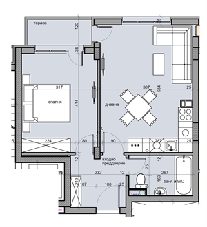
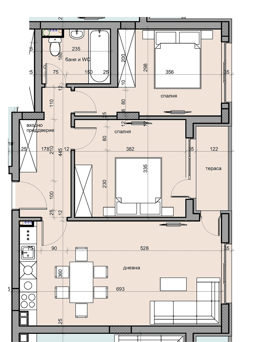
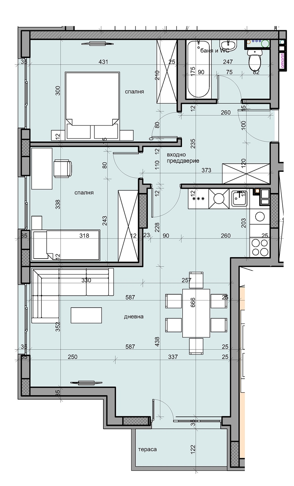
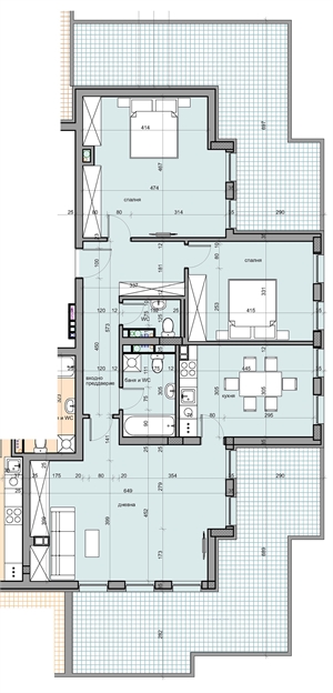
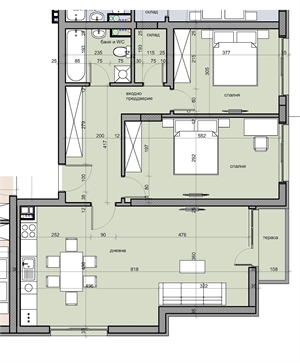
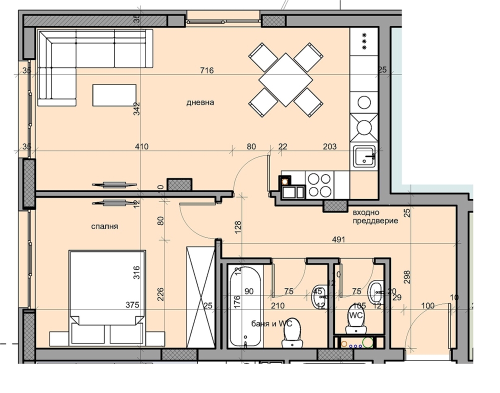
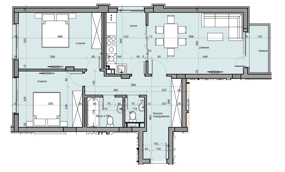
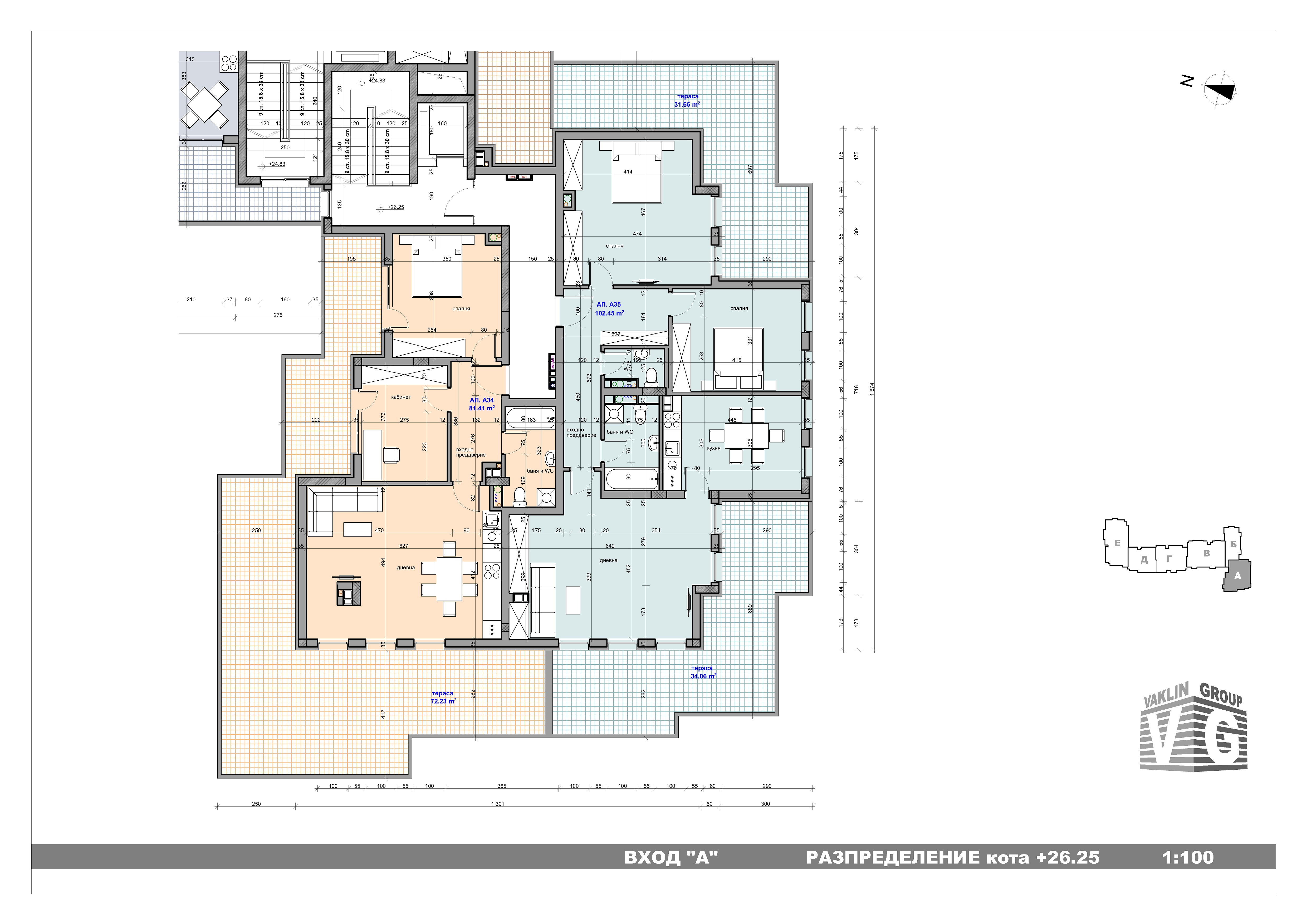
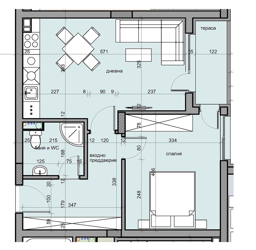
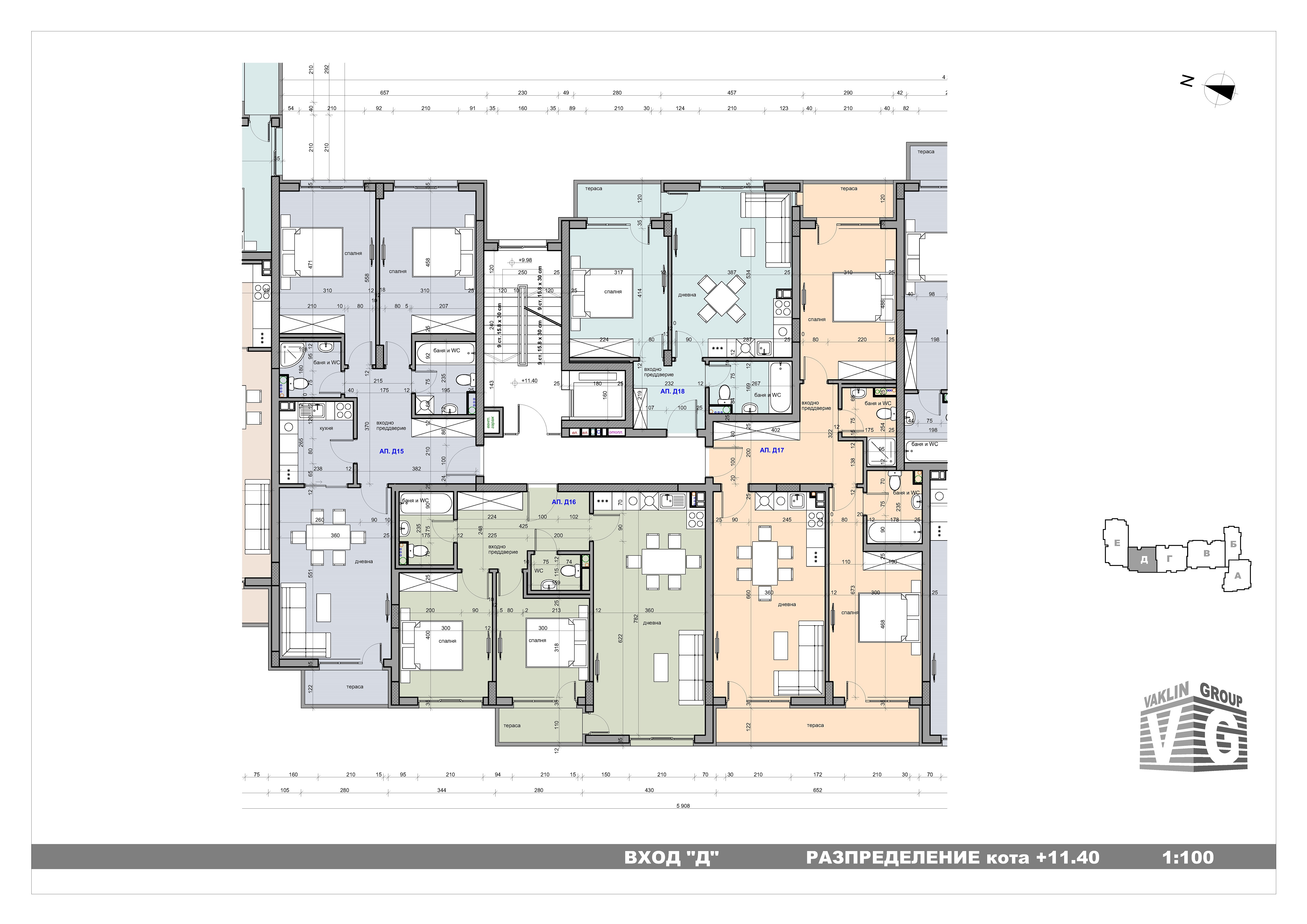
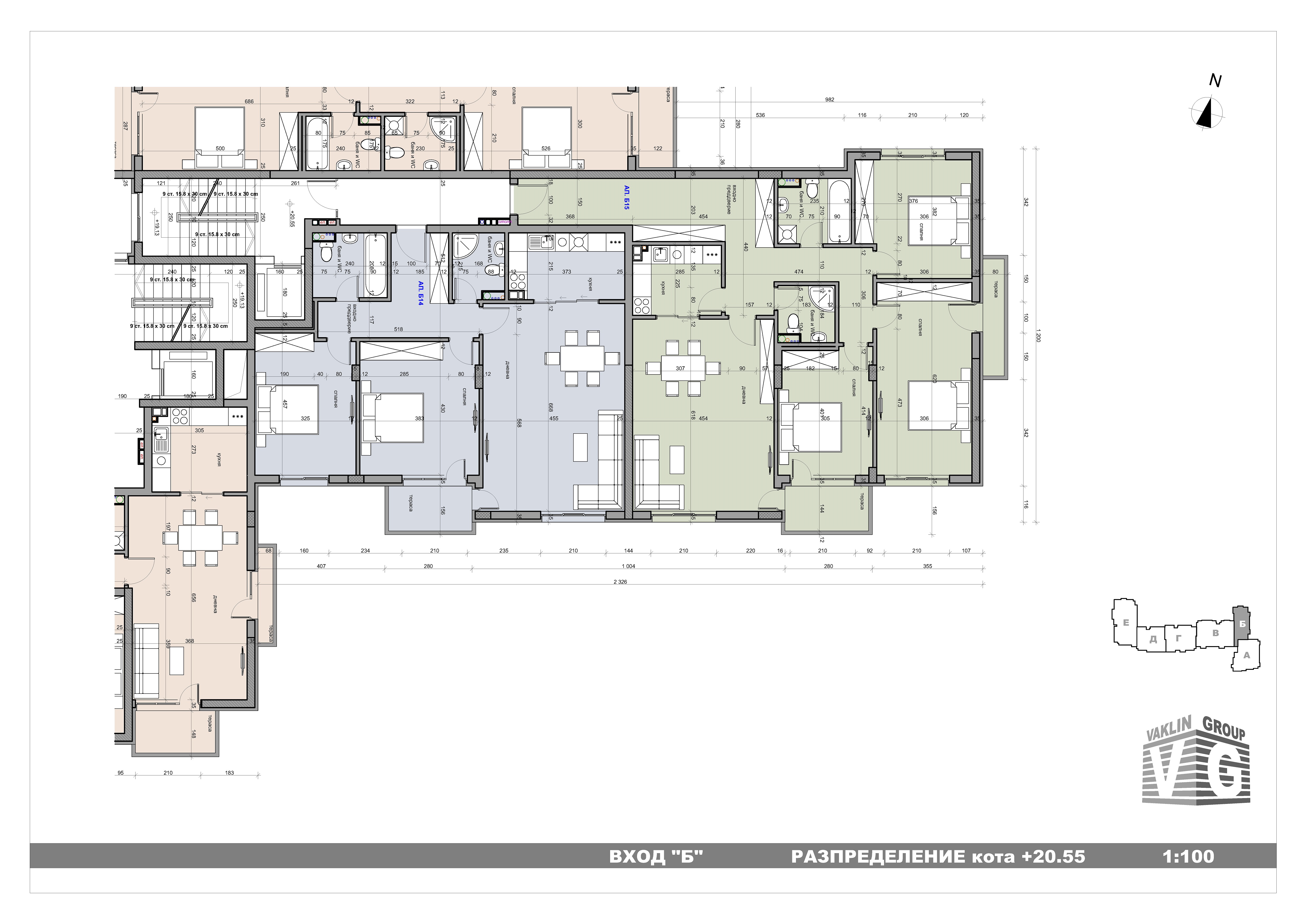
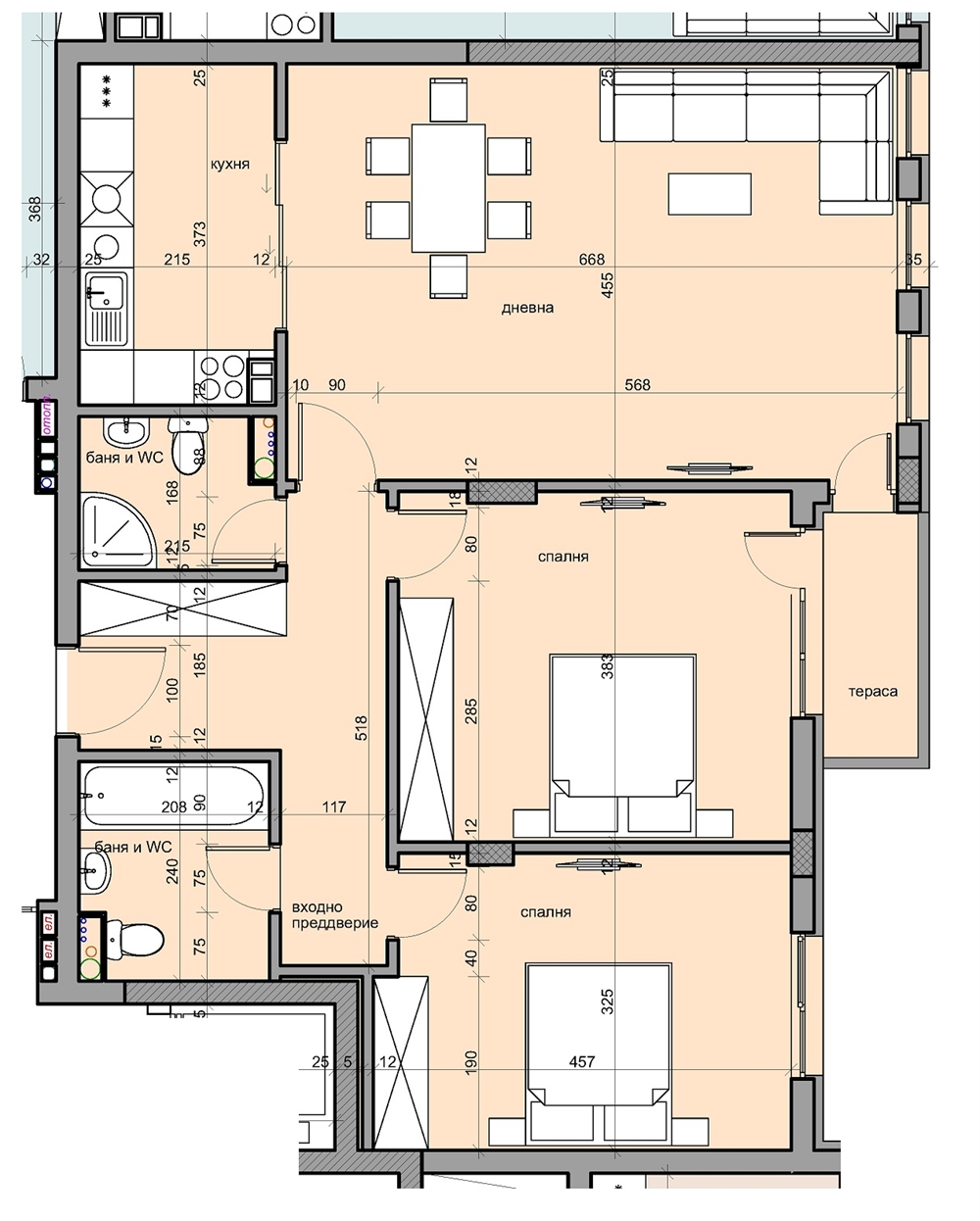
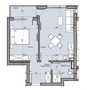
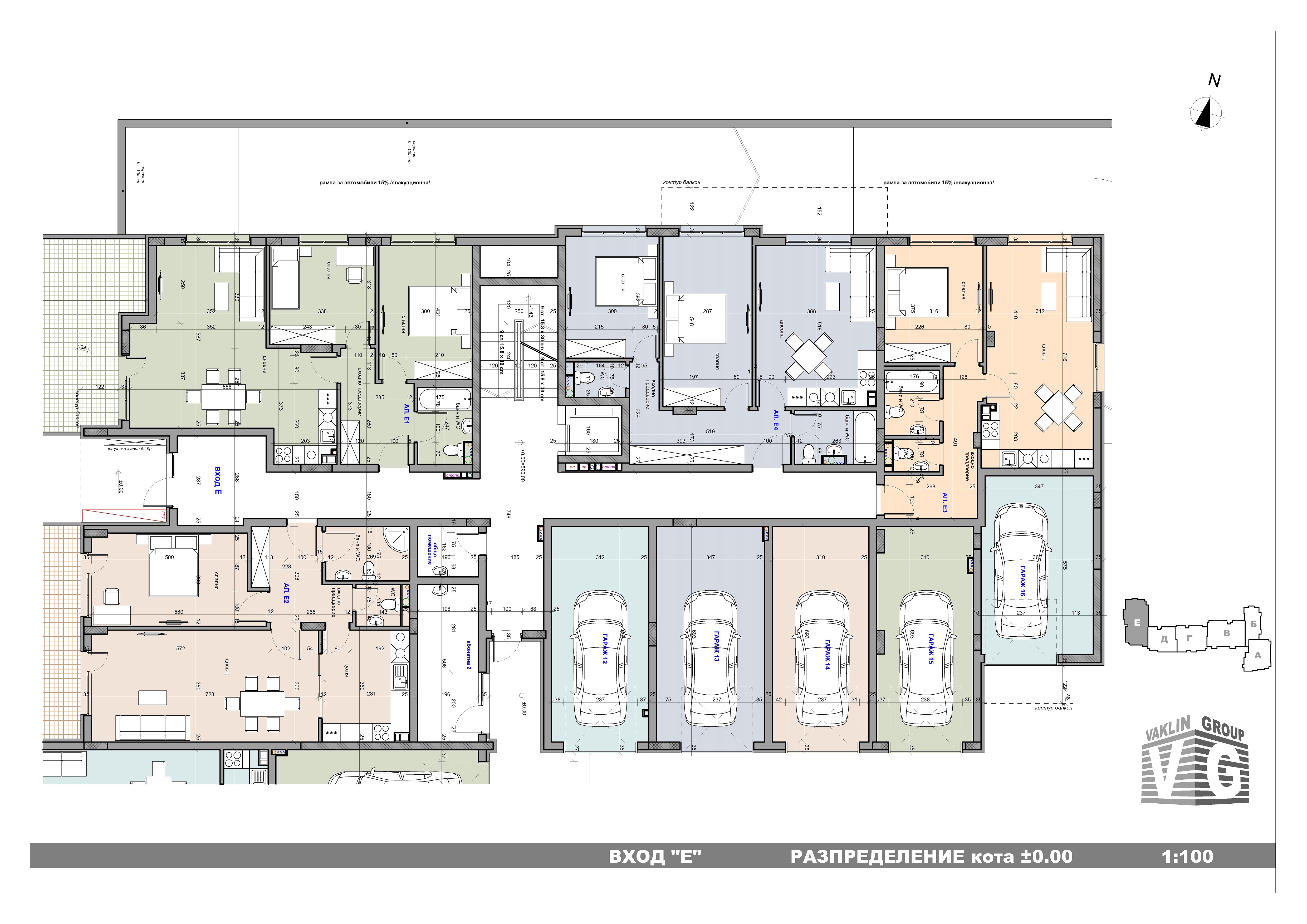
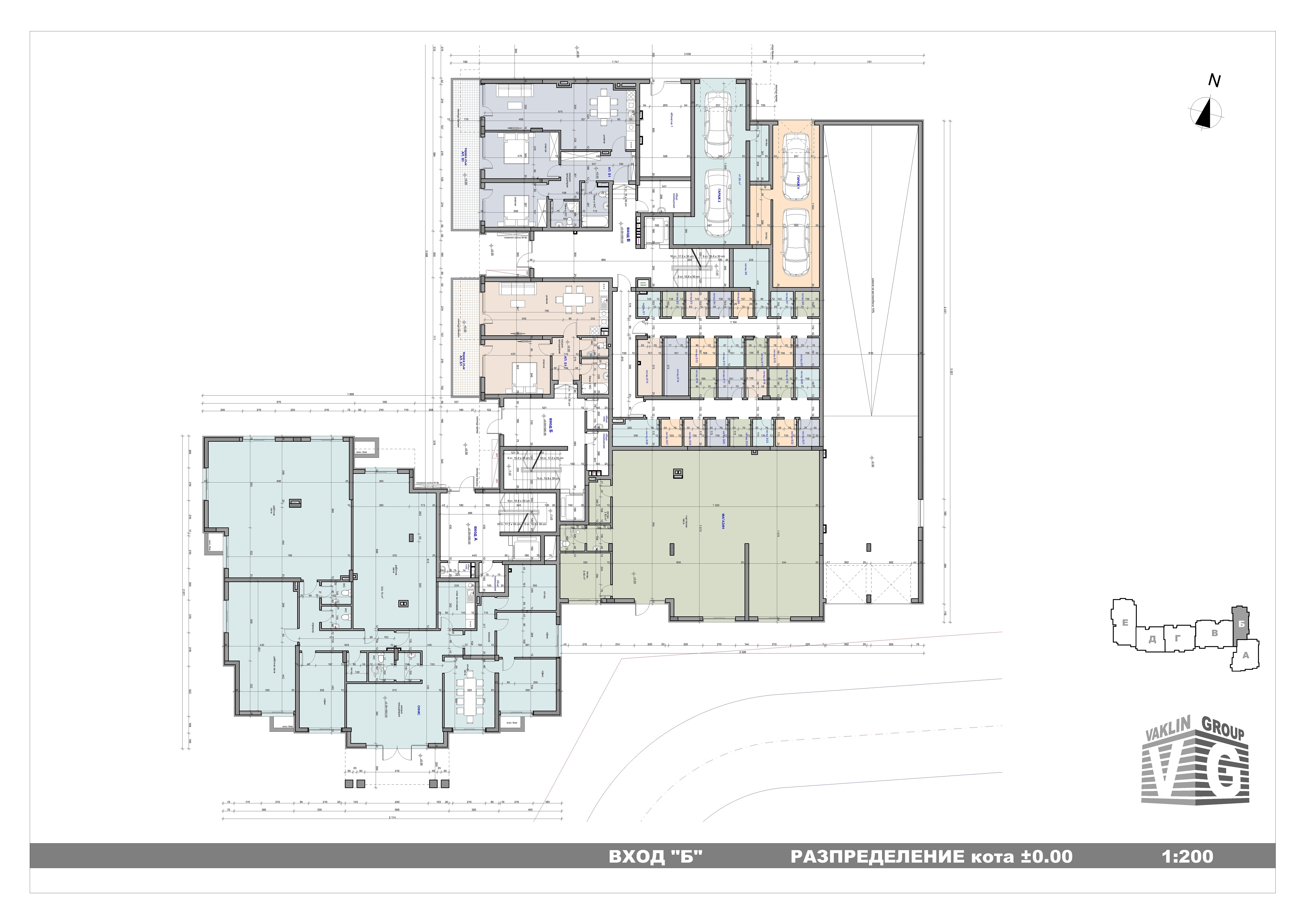
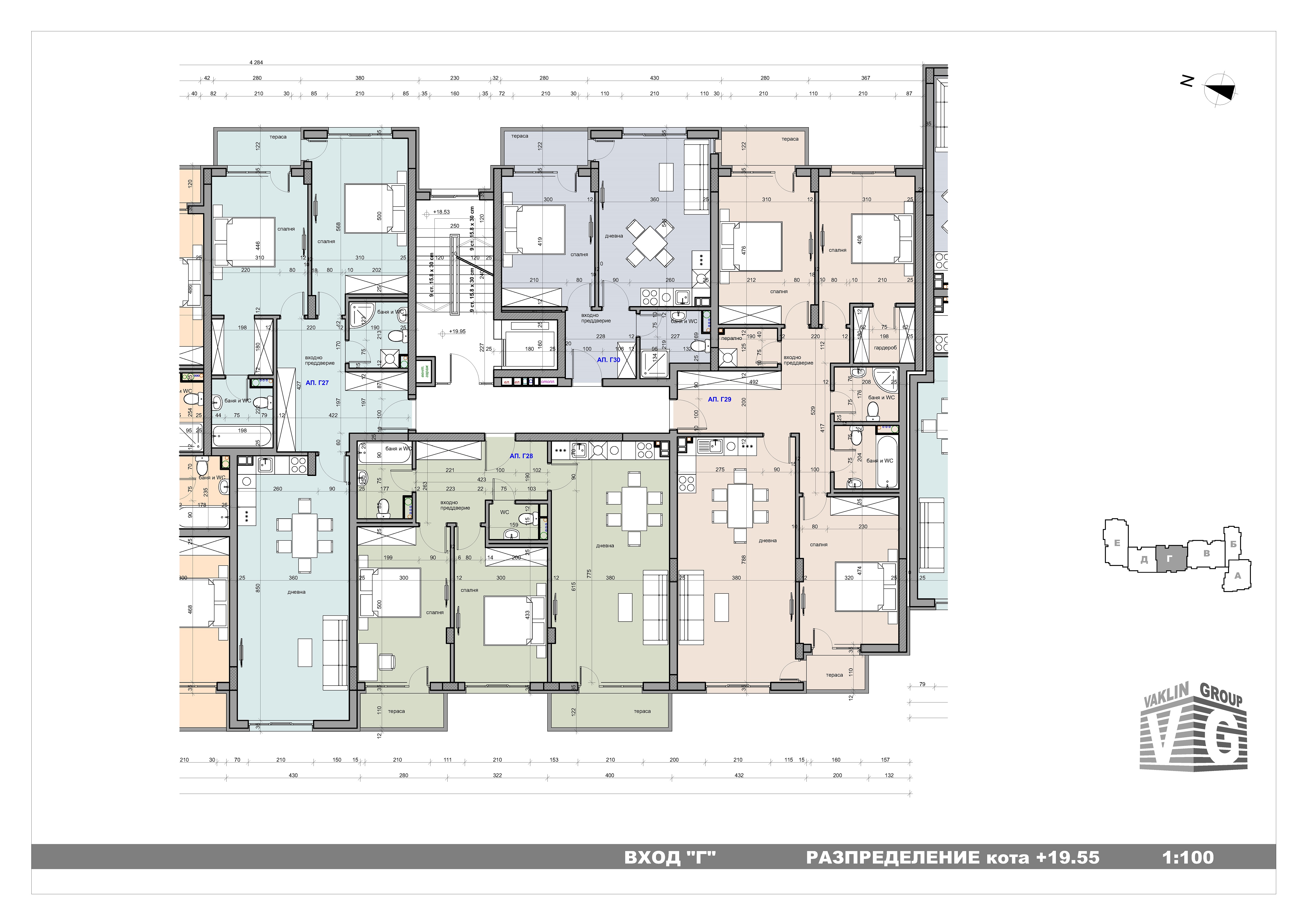
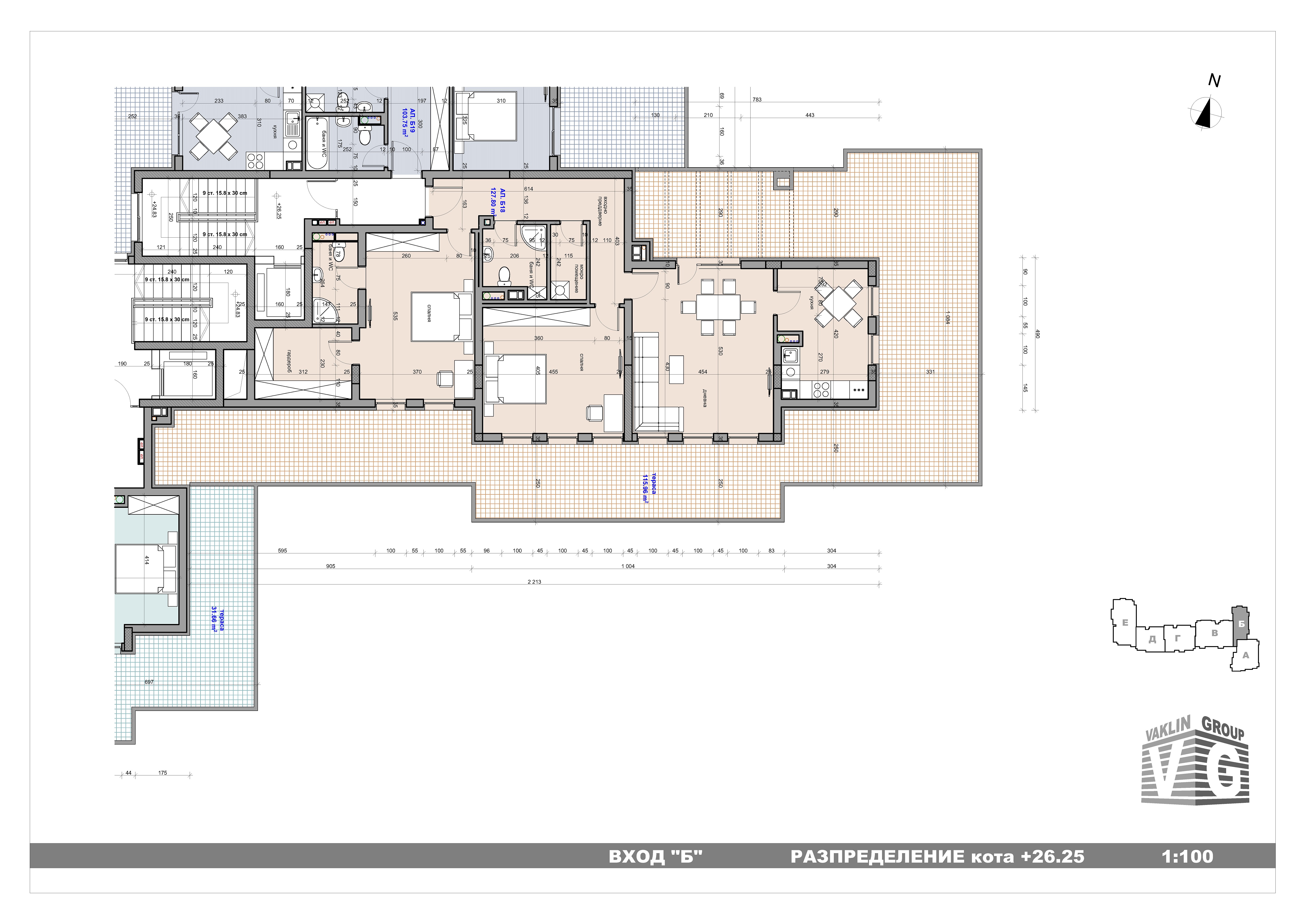
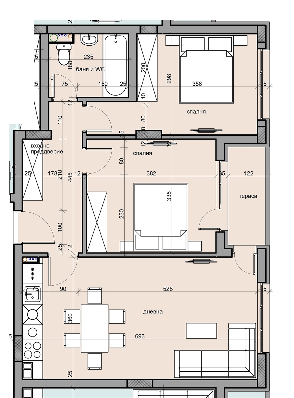
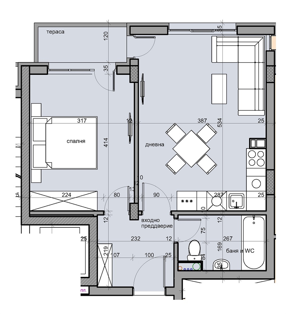
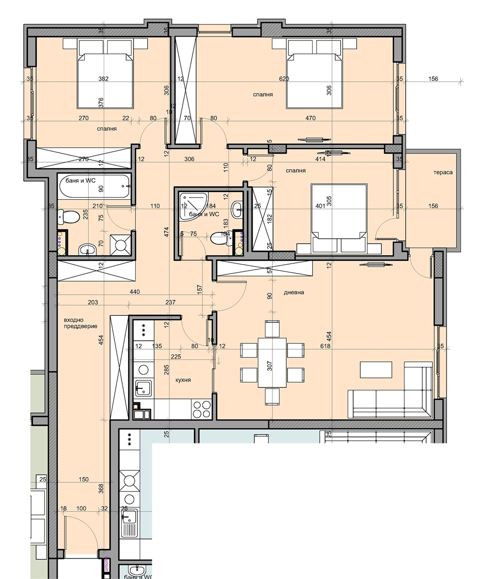
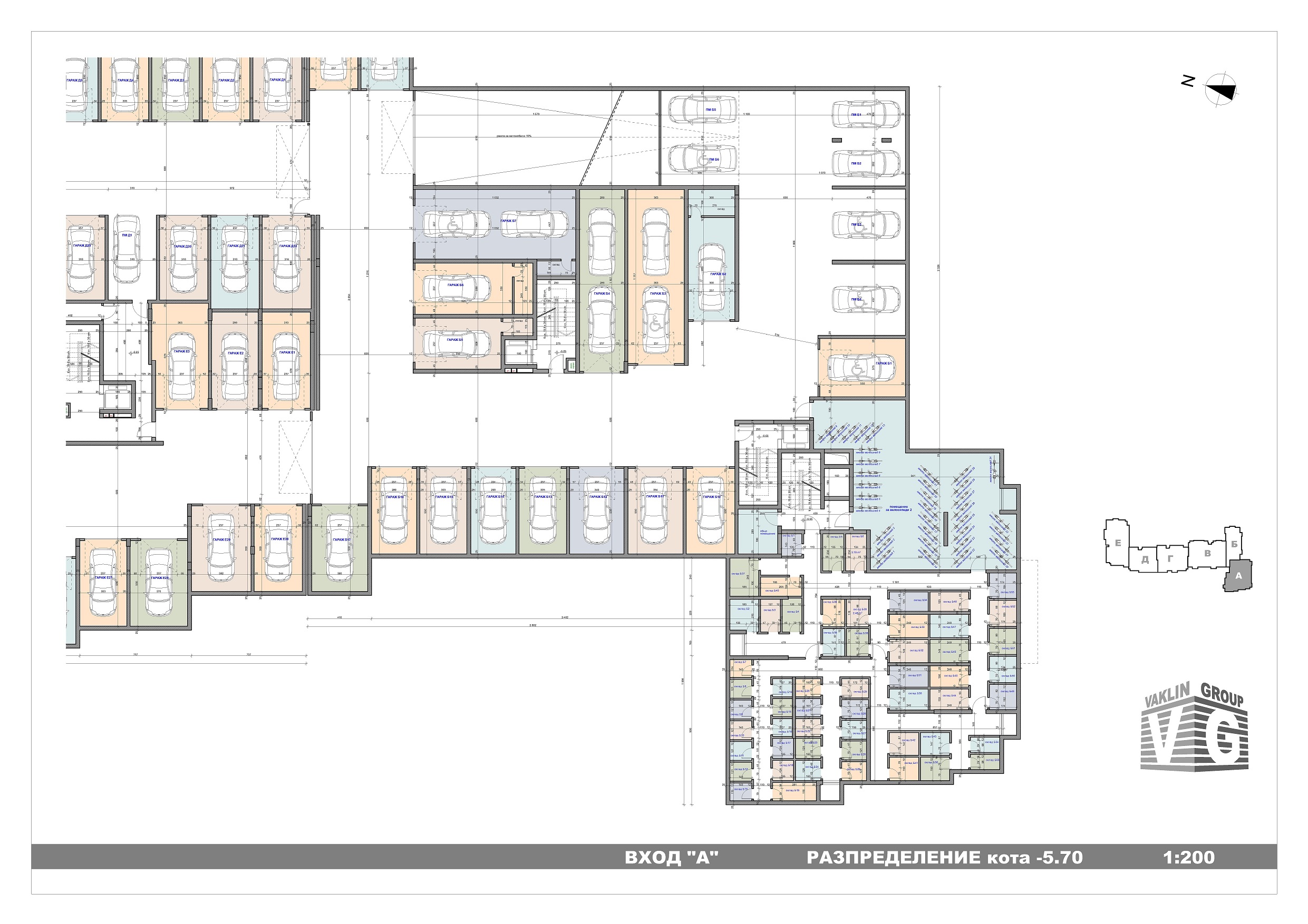
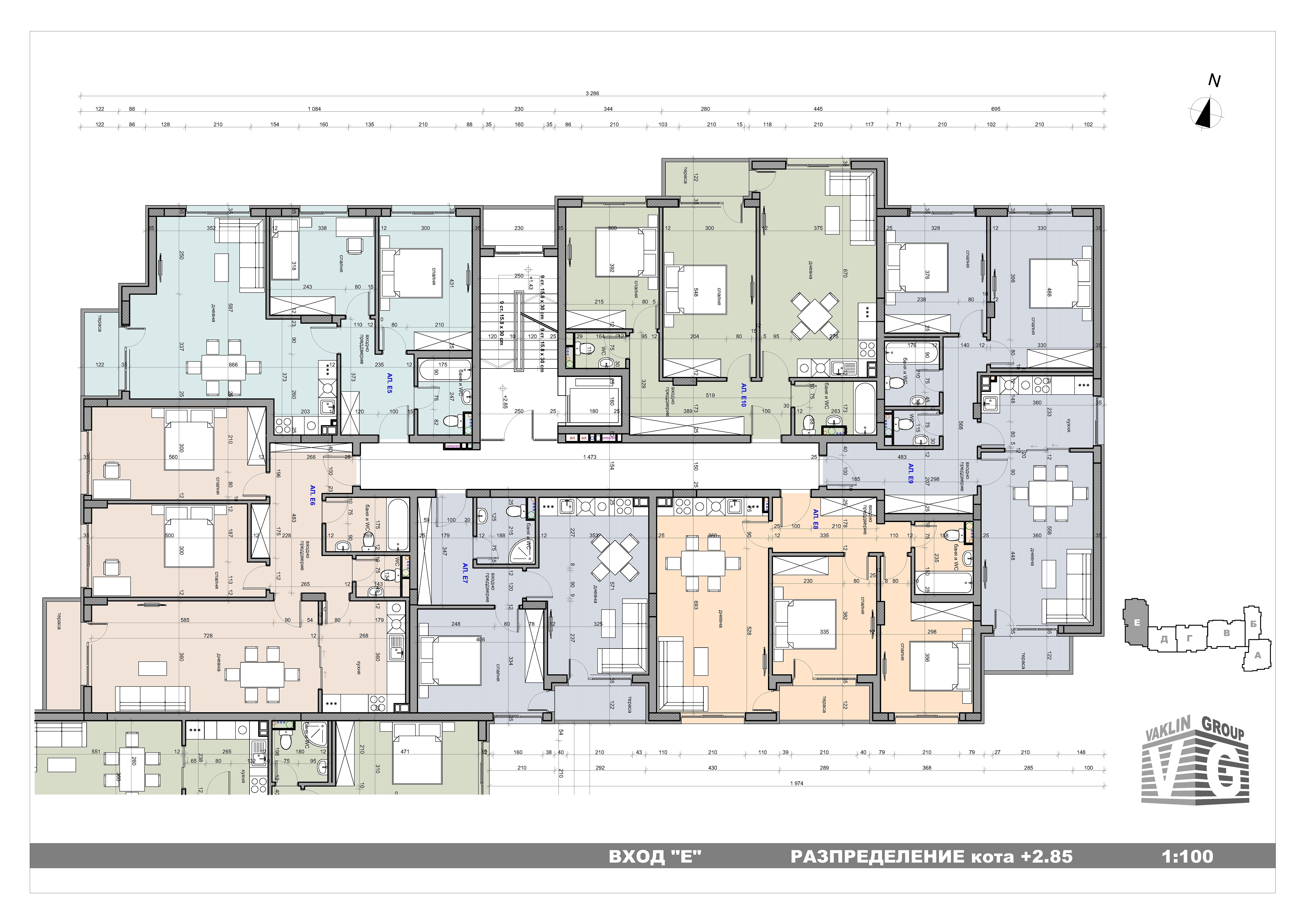
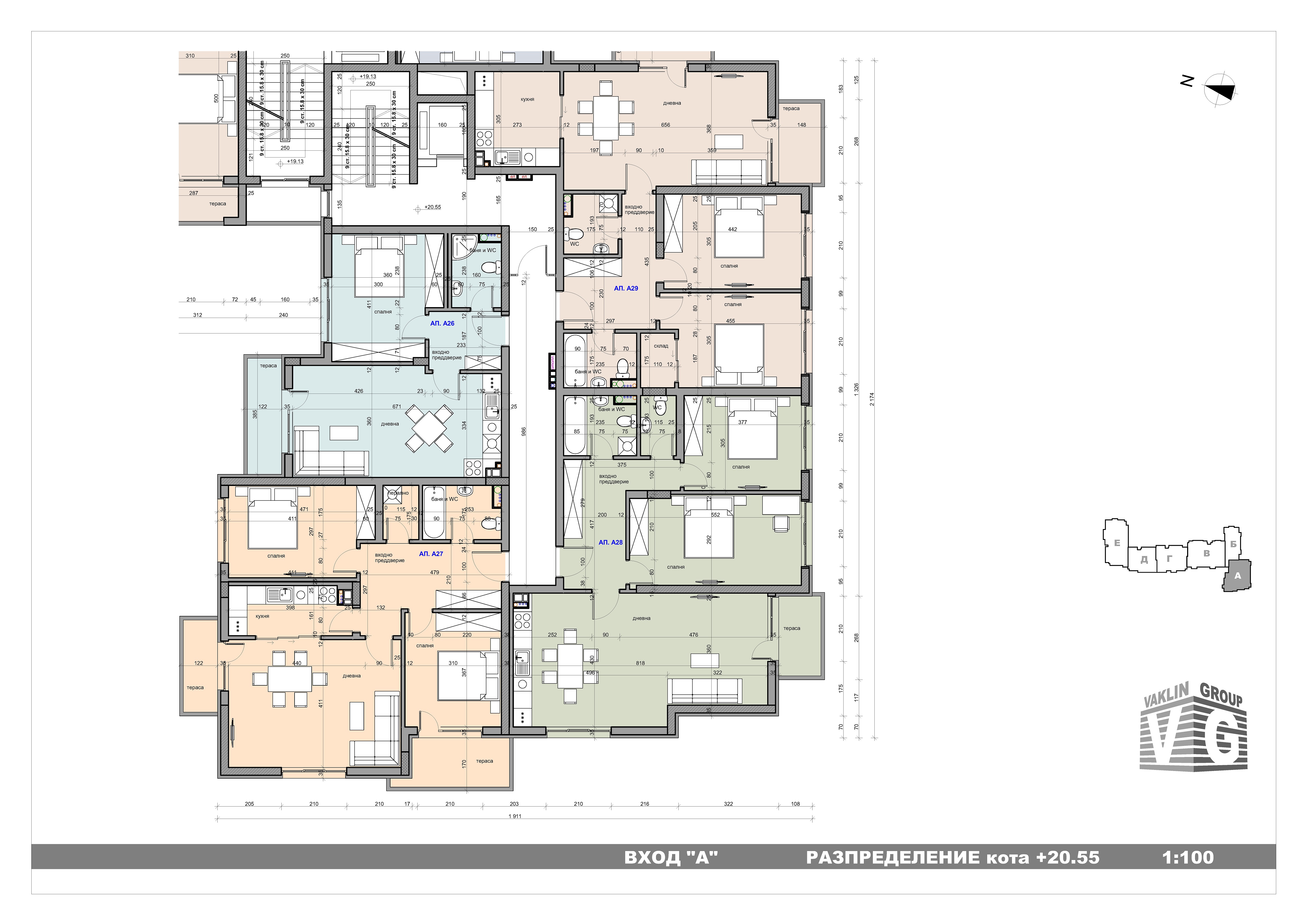
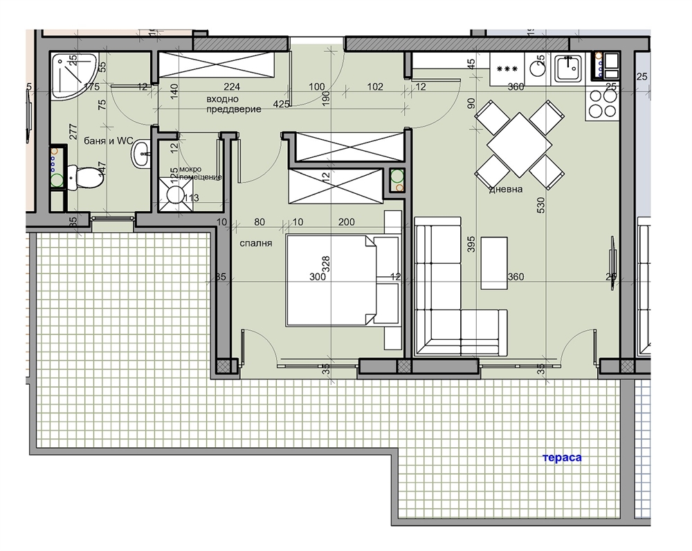
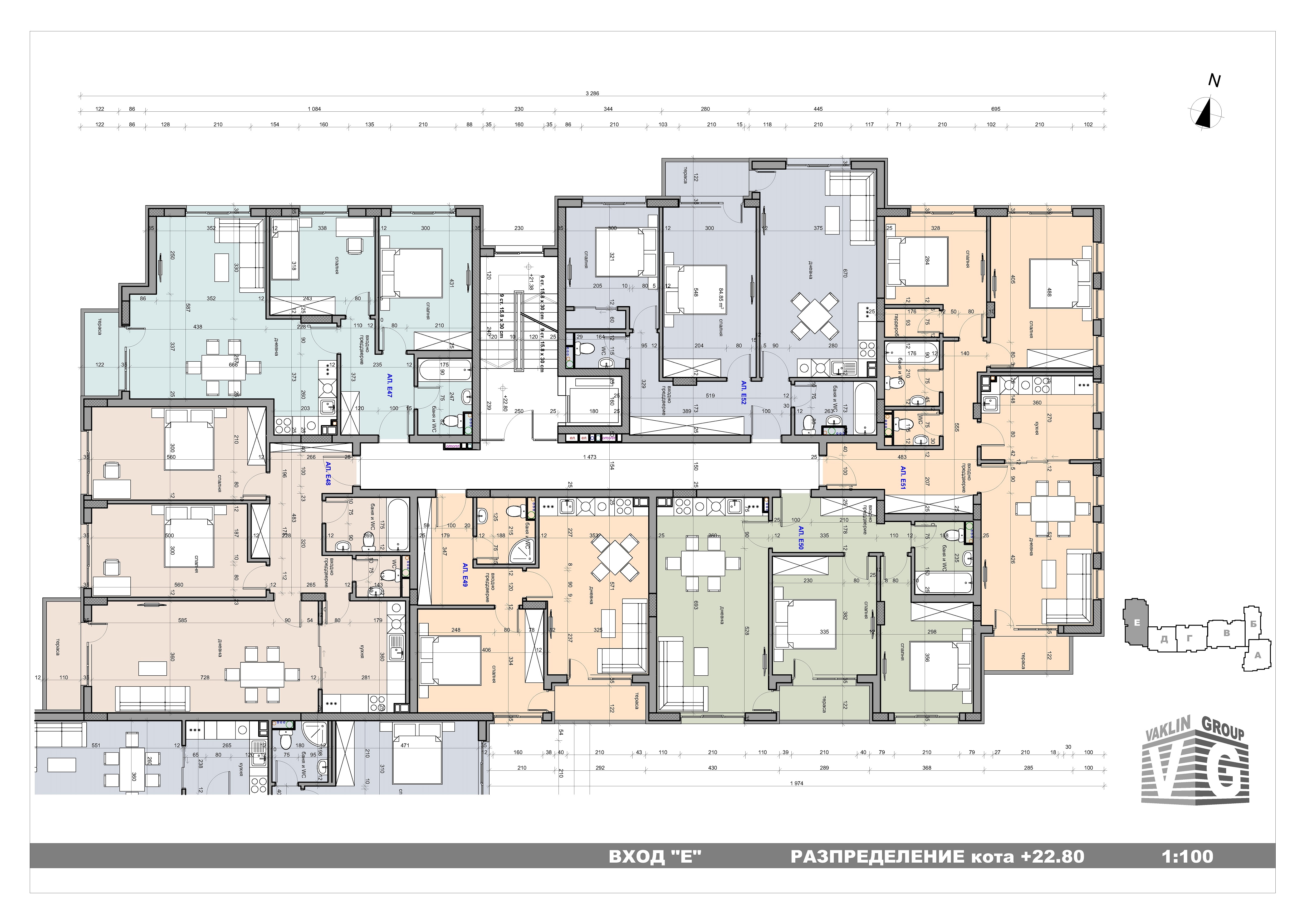
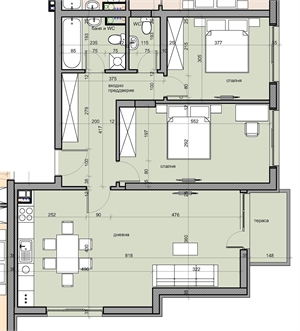
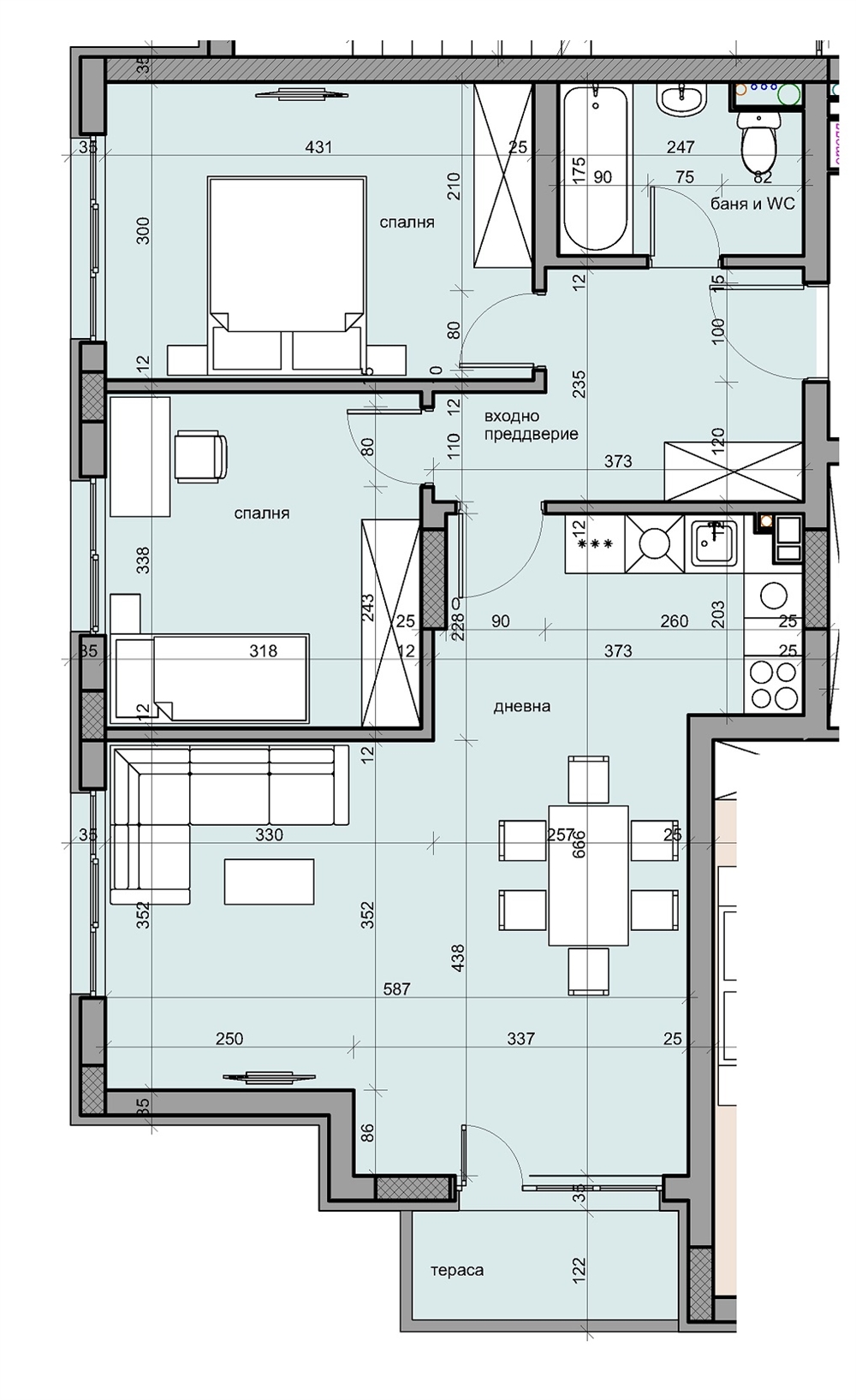
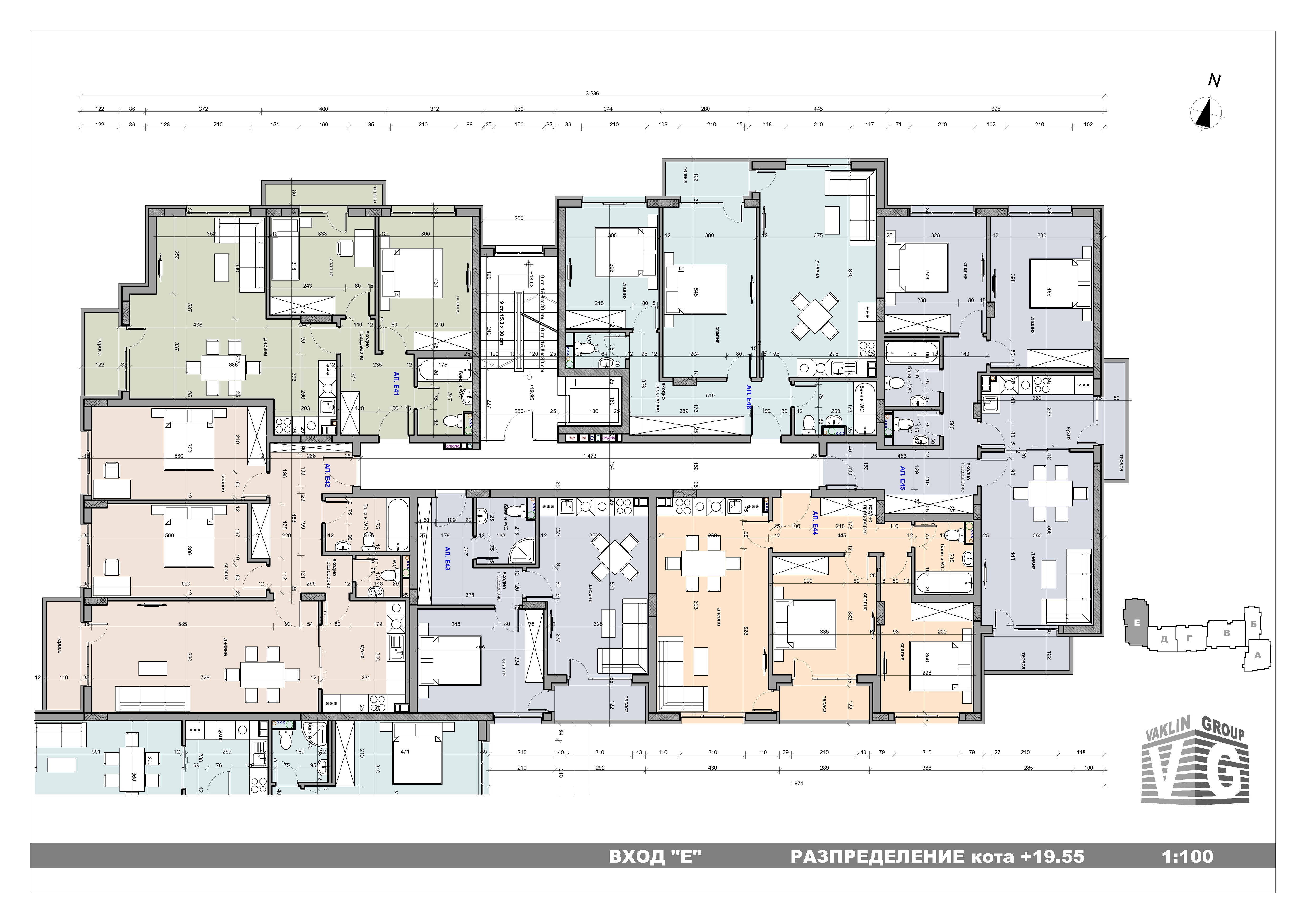
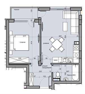
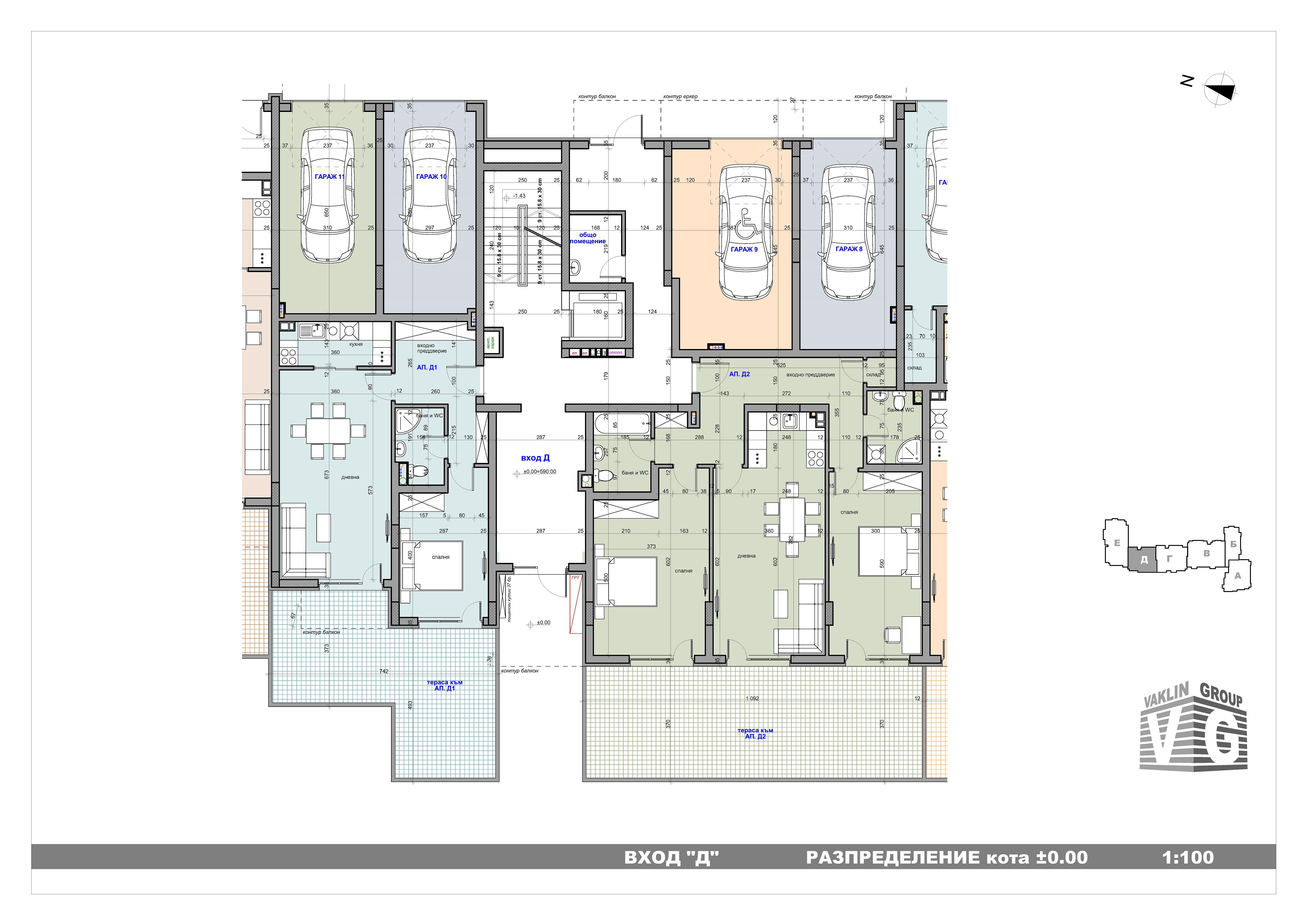
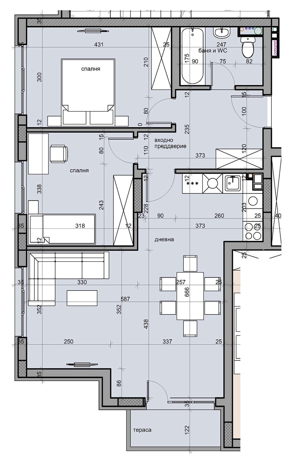
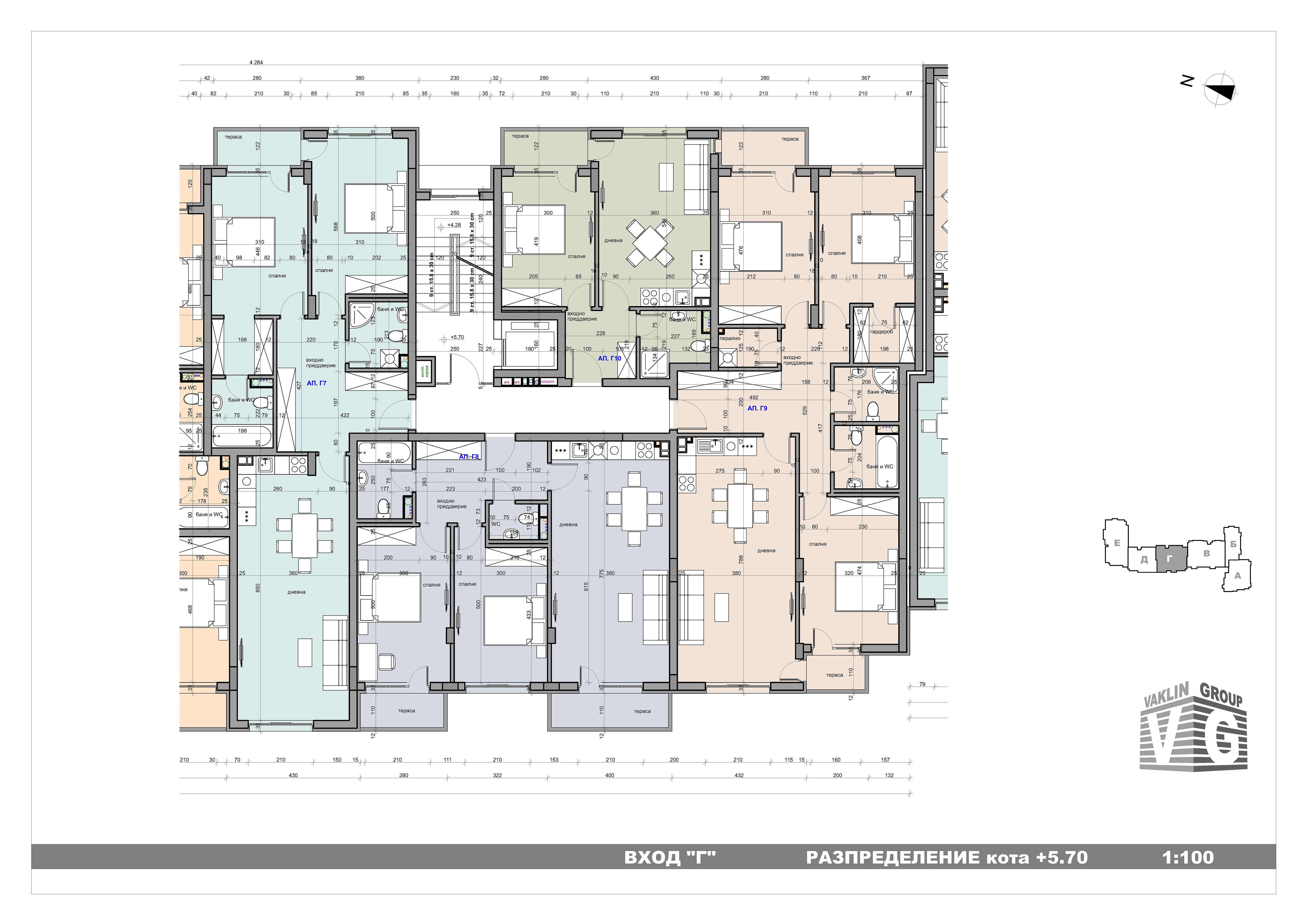
Лагера
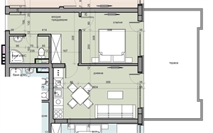
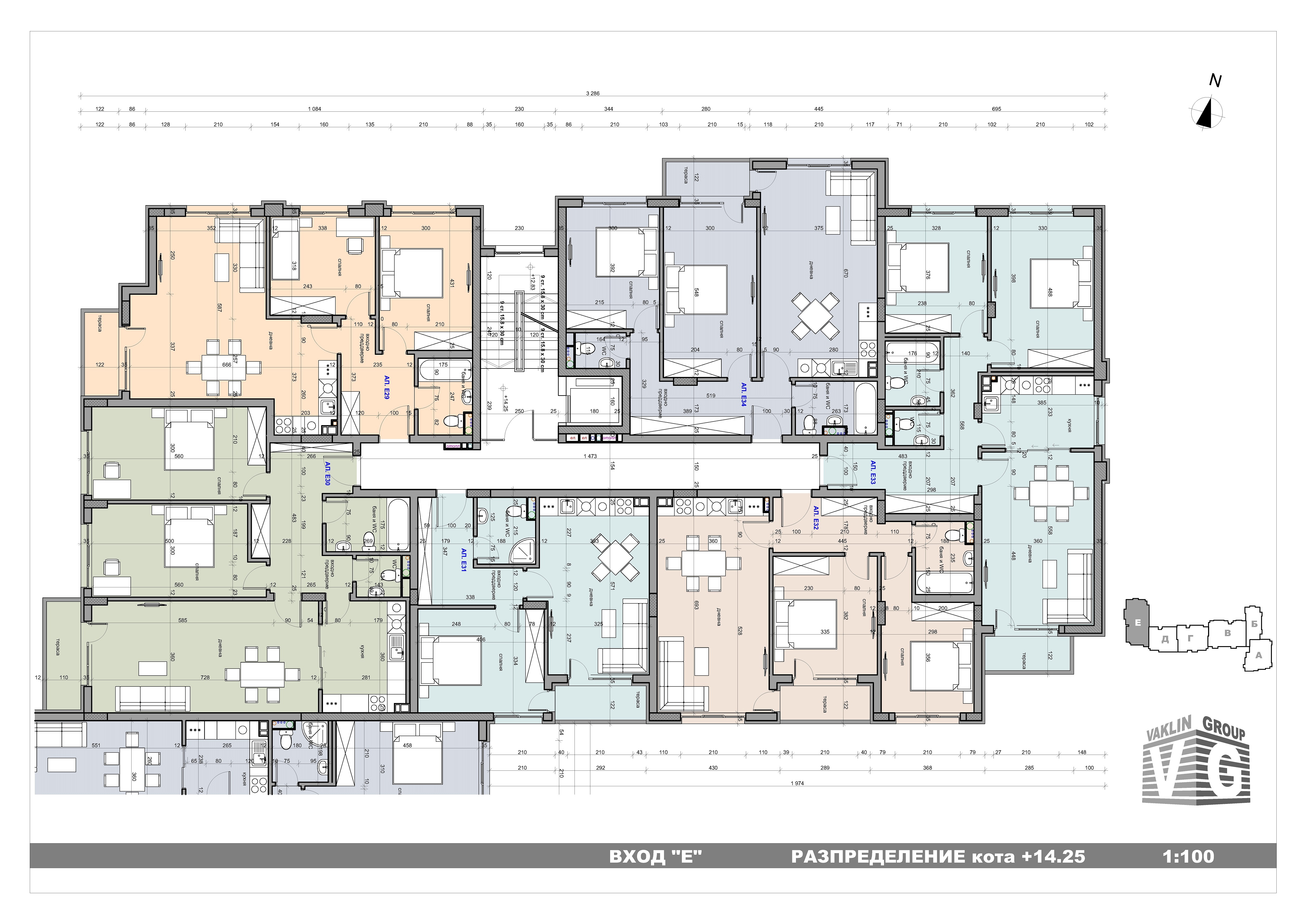
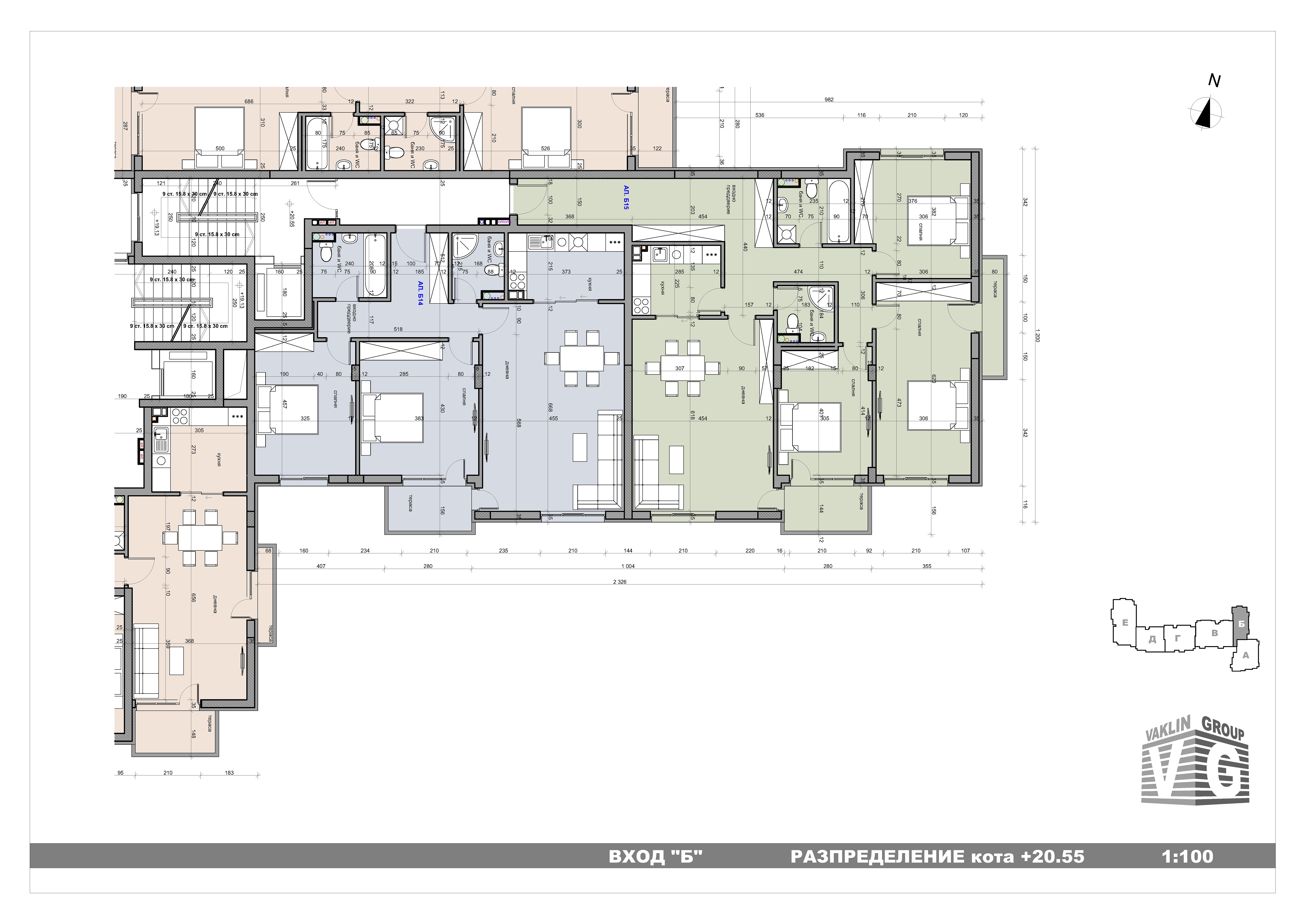
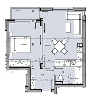
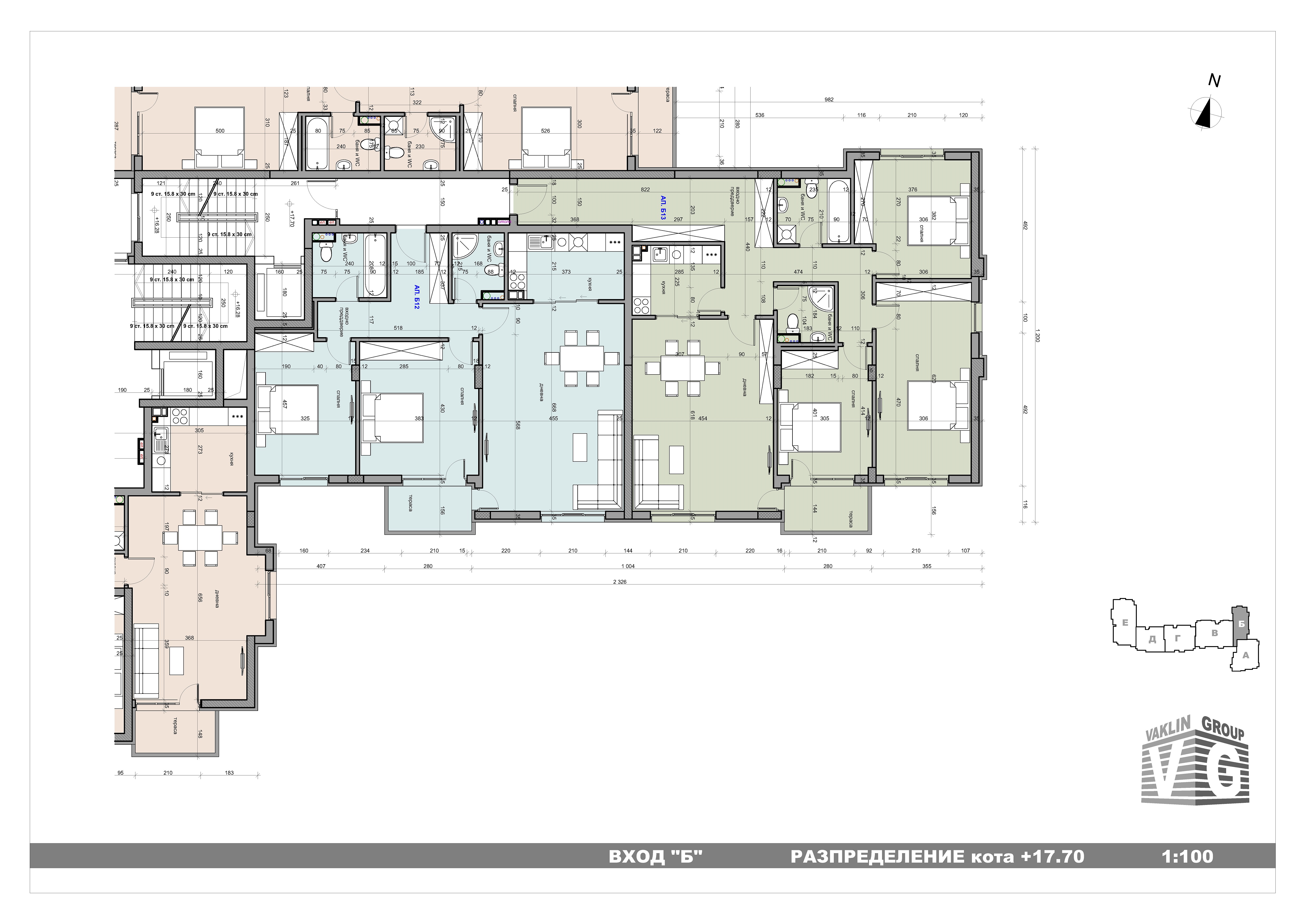
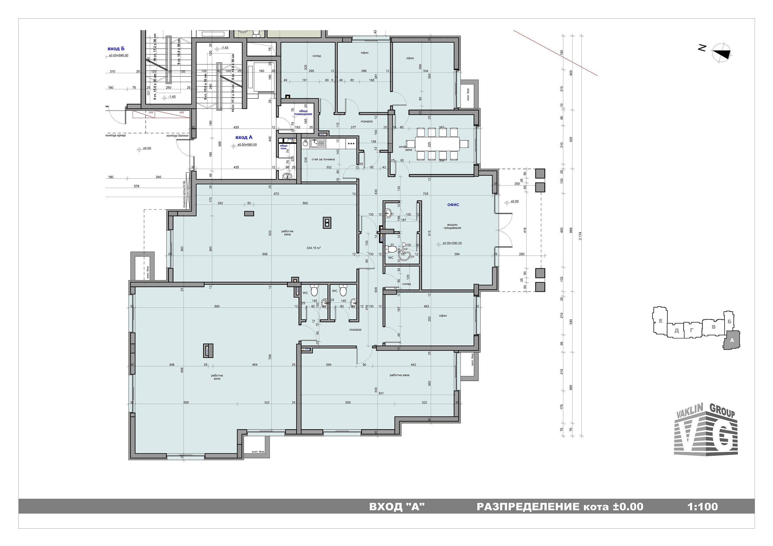
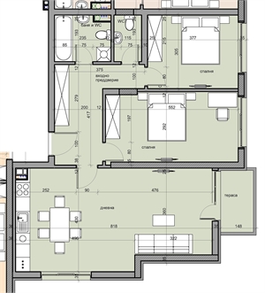
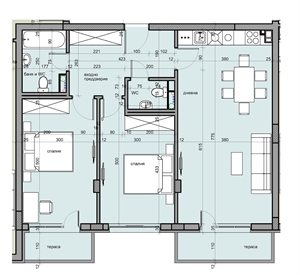
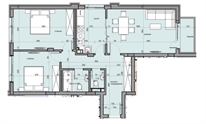
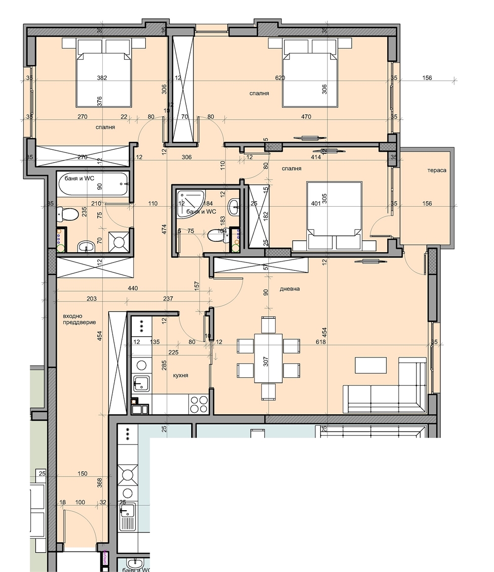
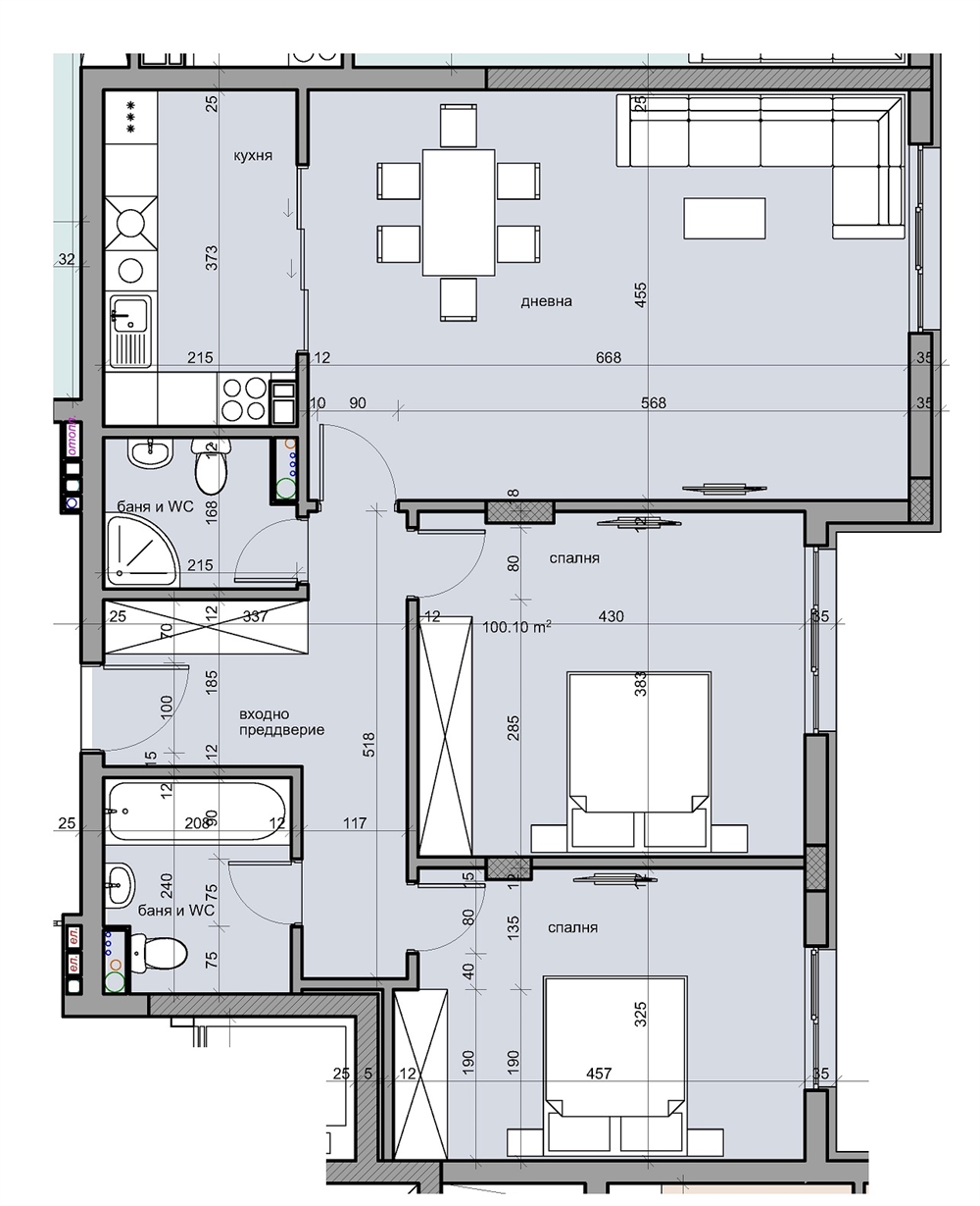
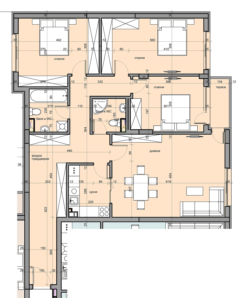
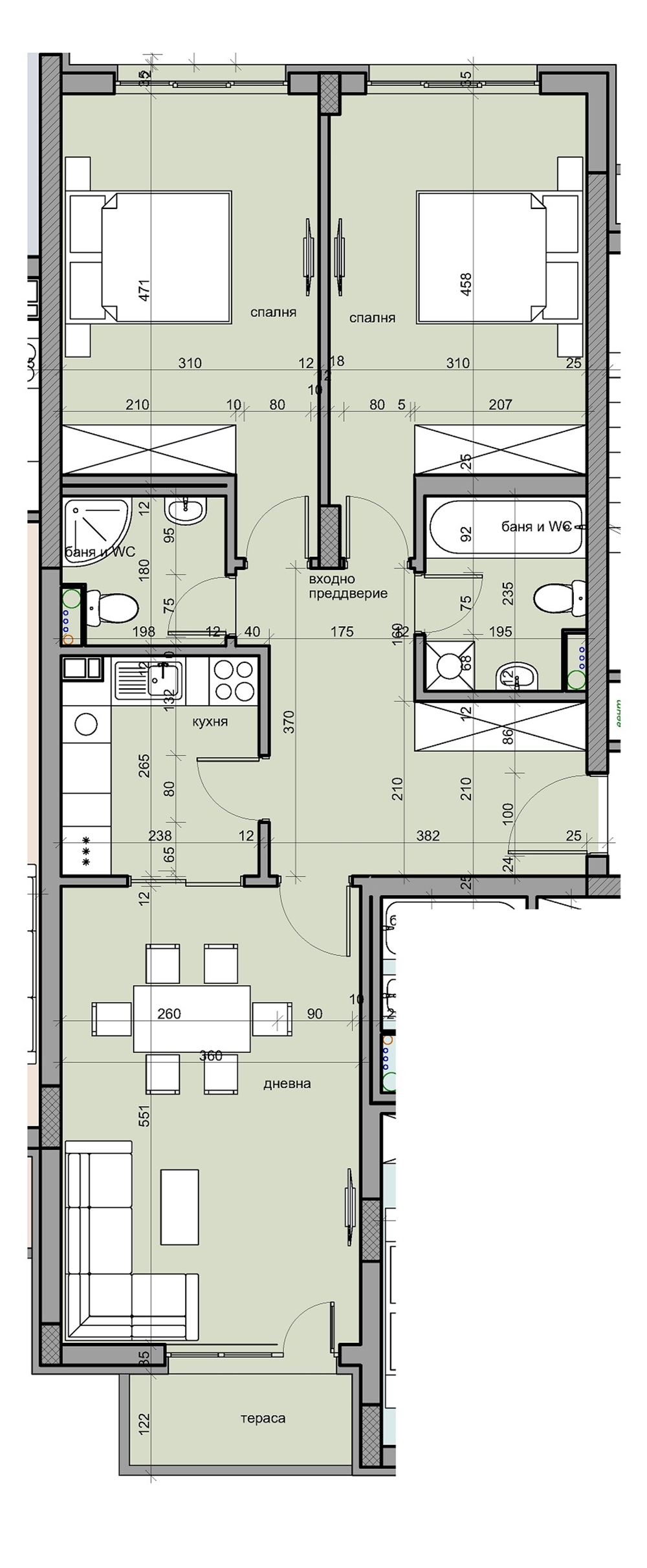
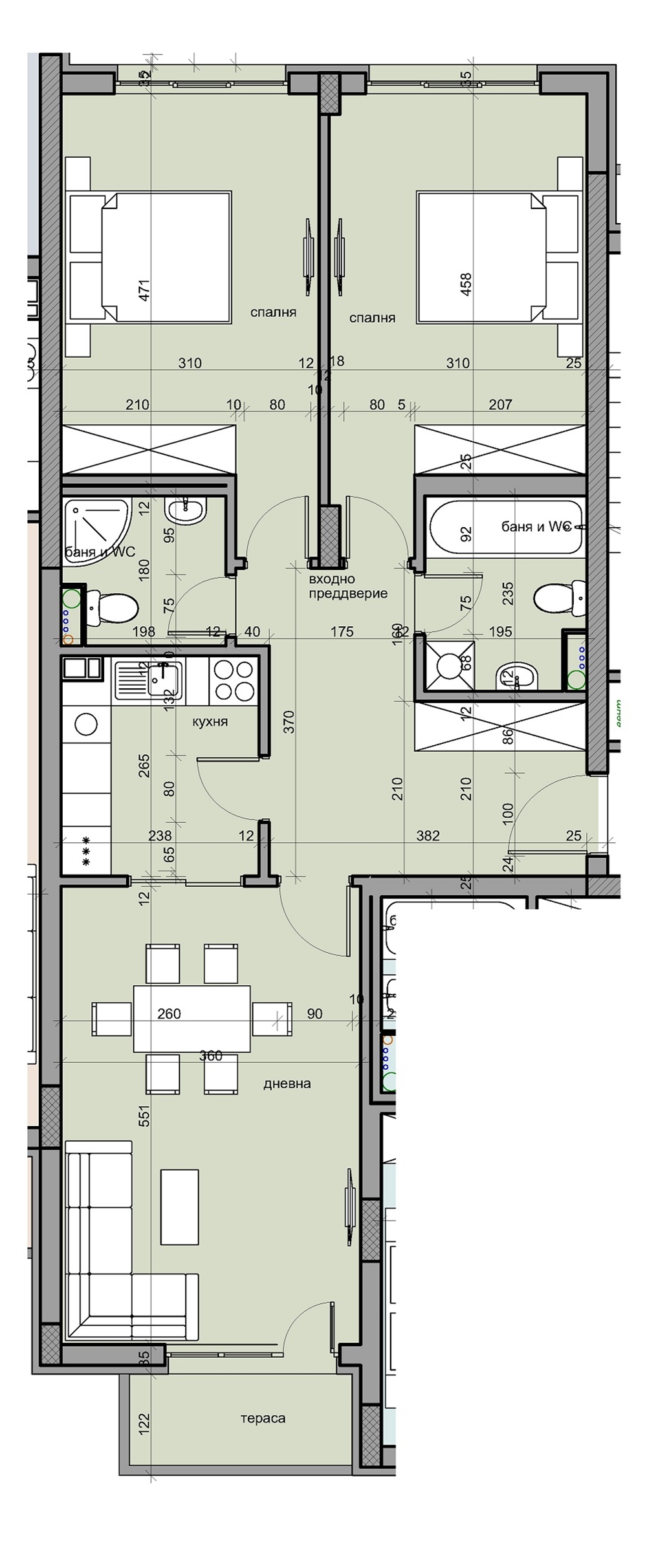
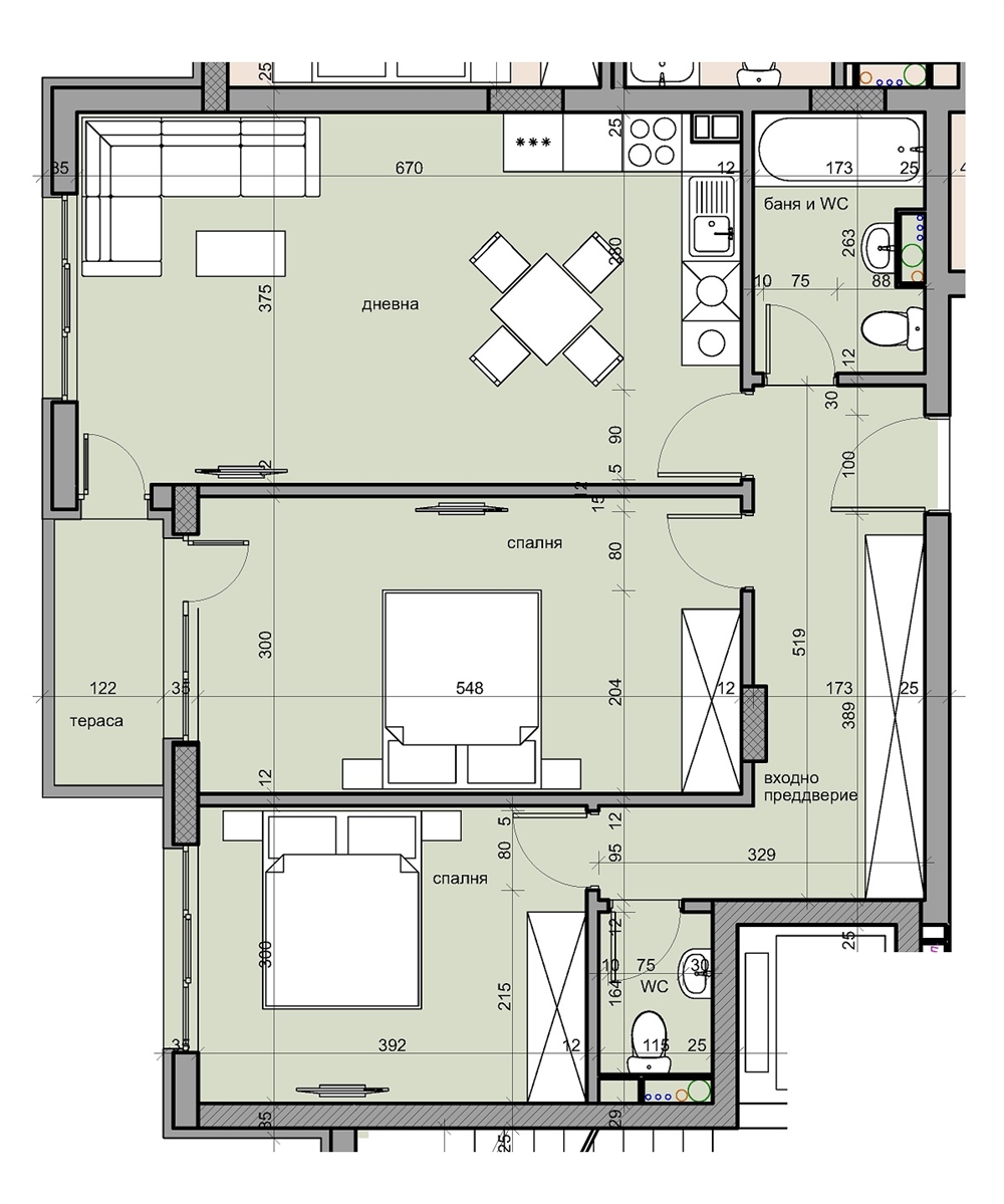
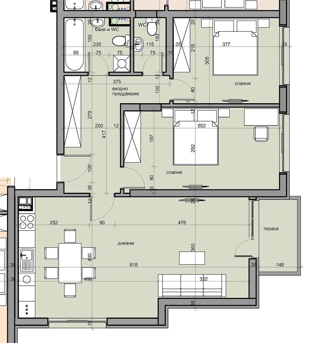
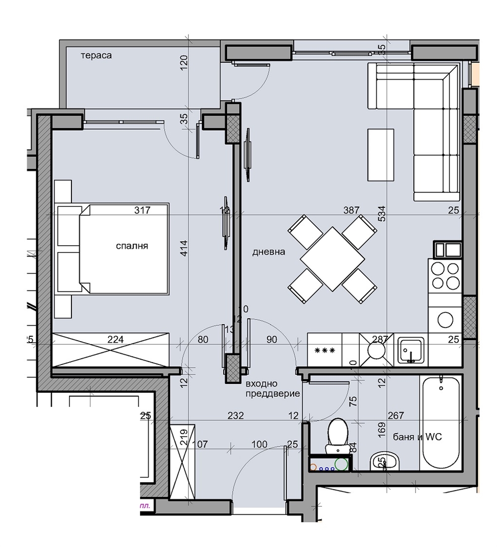
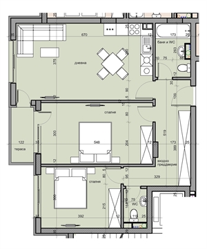
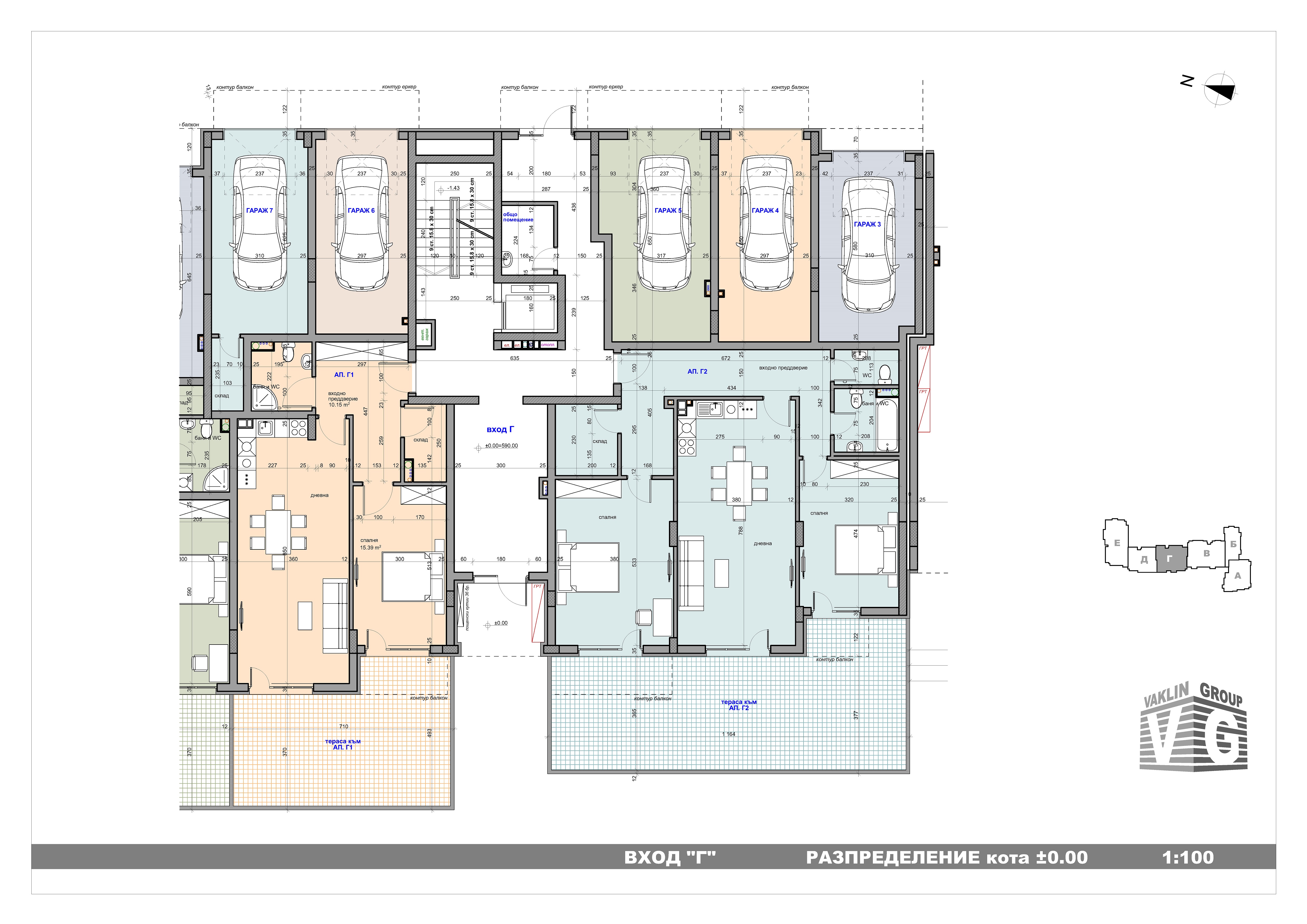
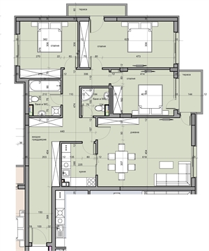
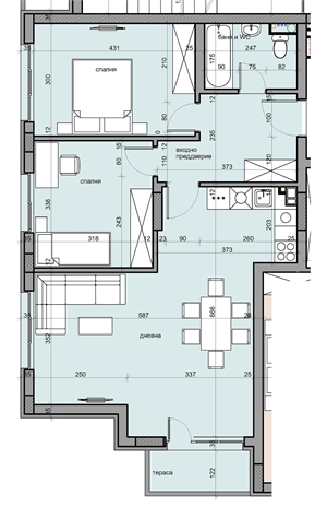
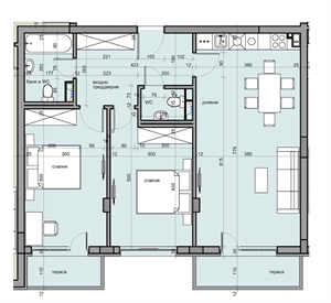
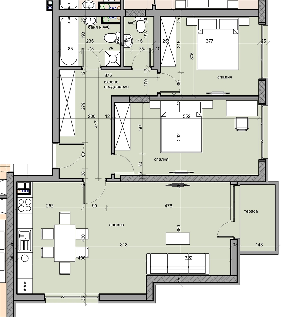
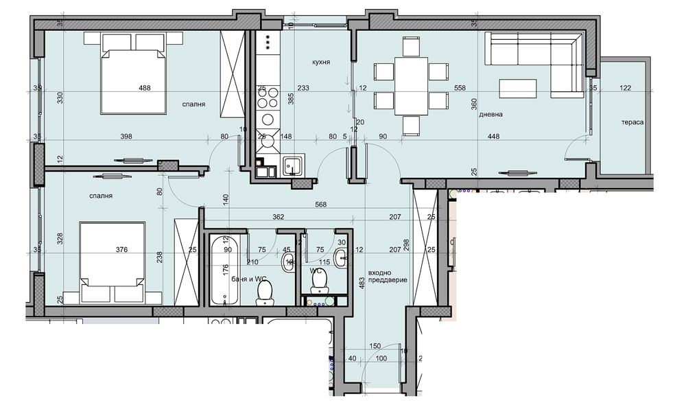
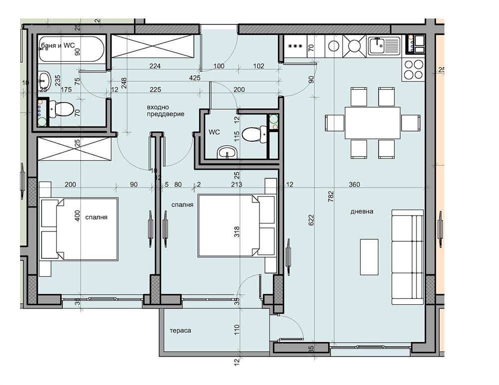
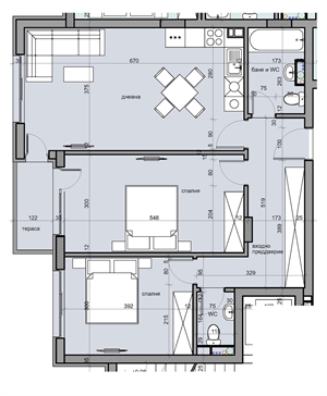
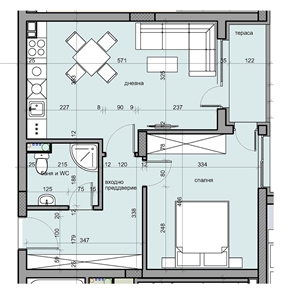
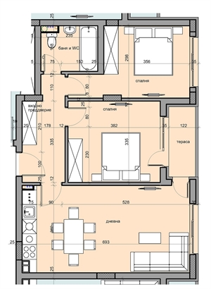
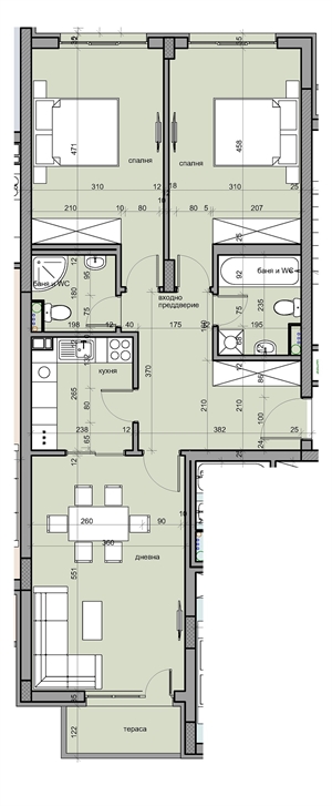
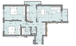
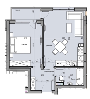
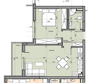
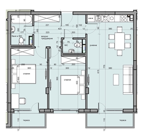
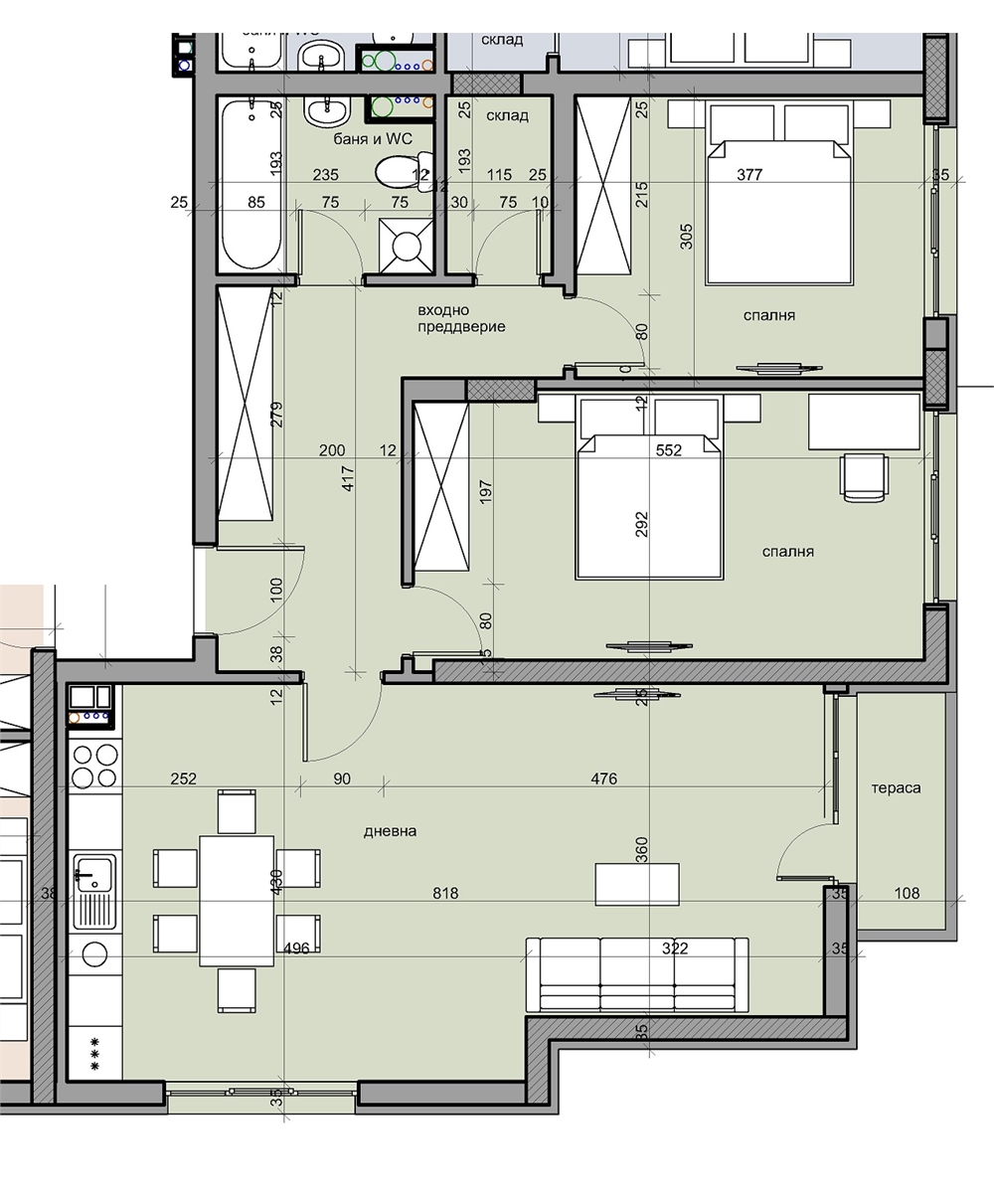
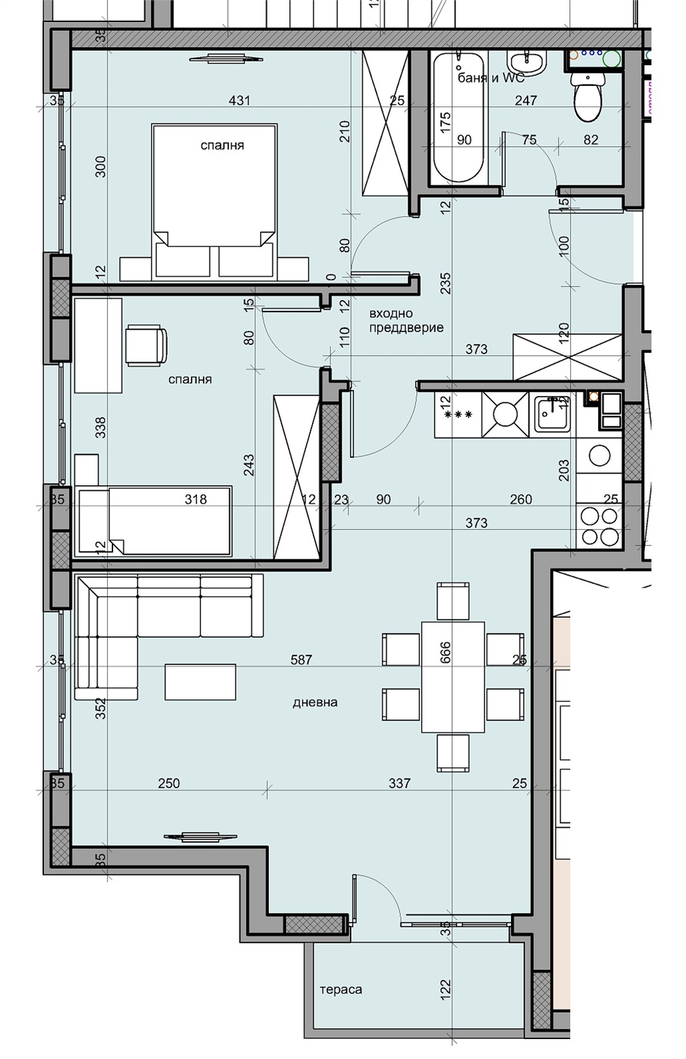
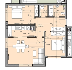
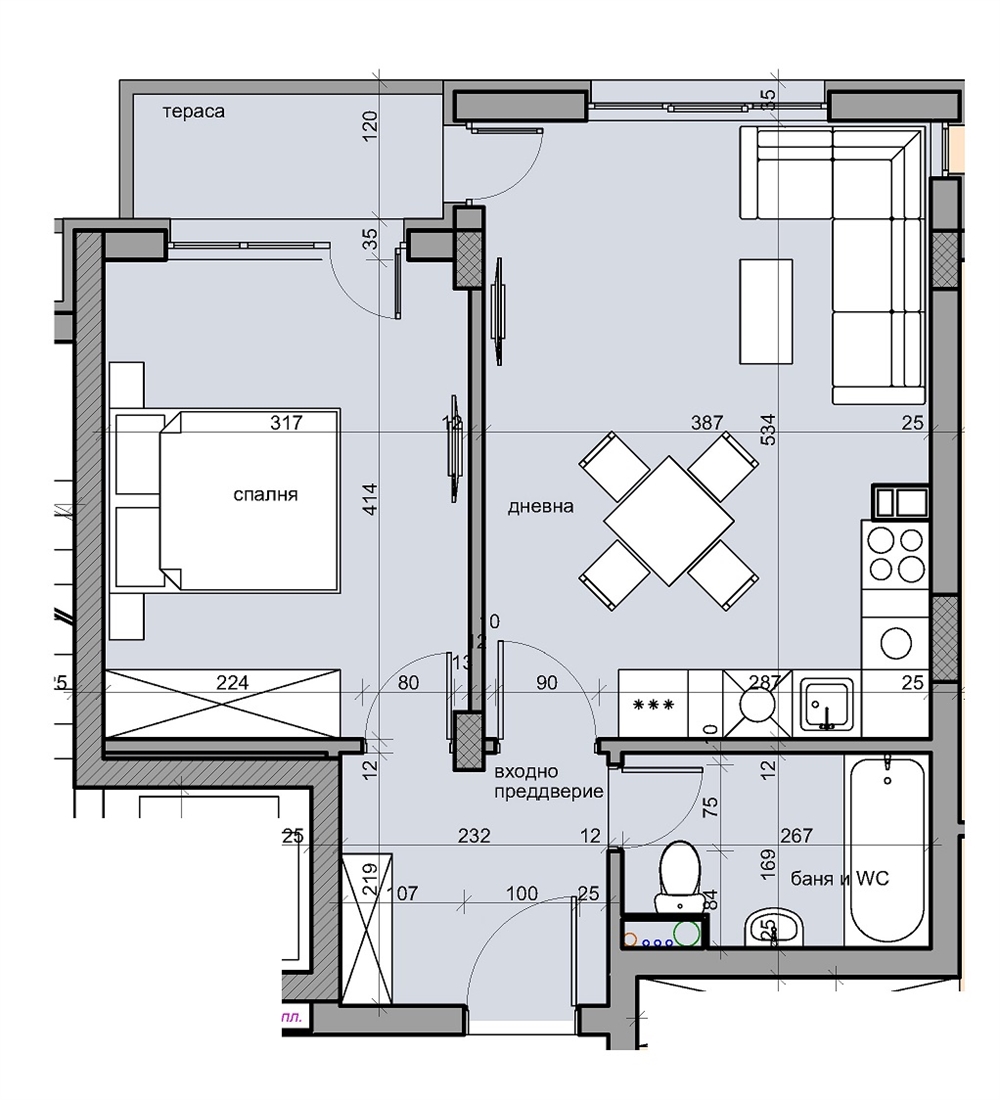
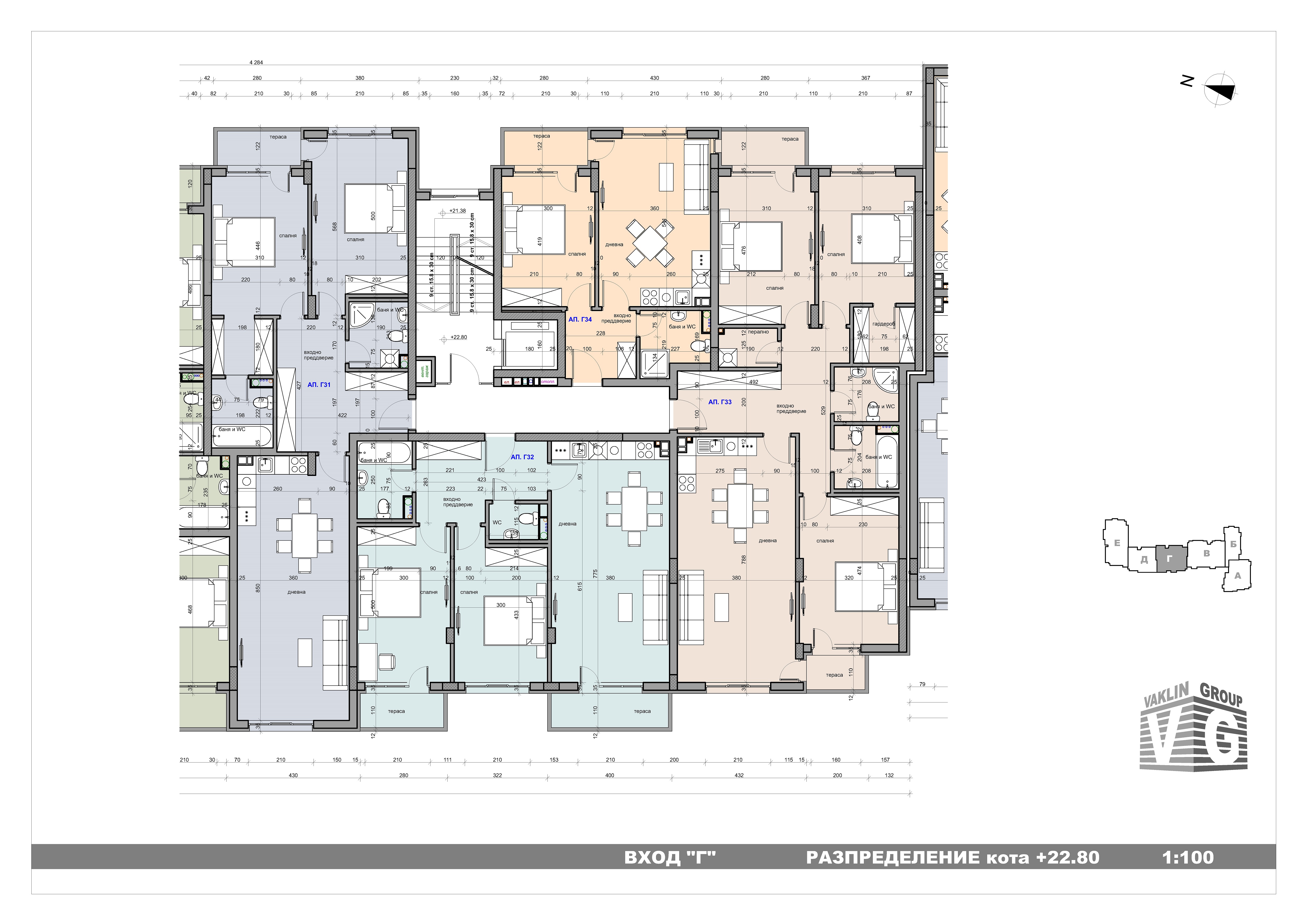
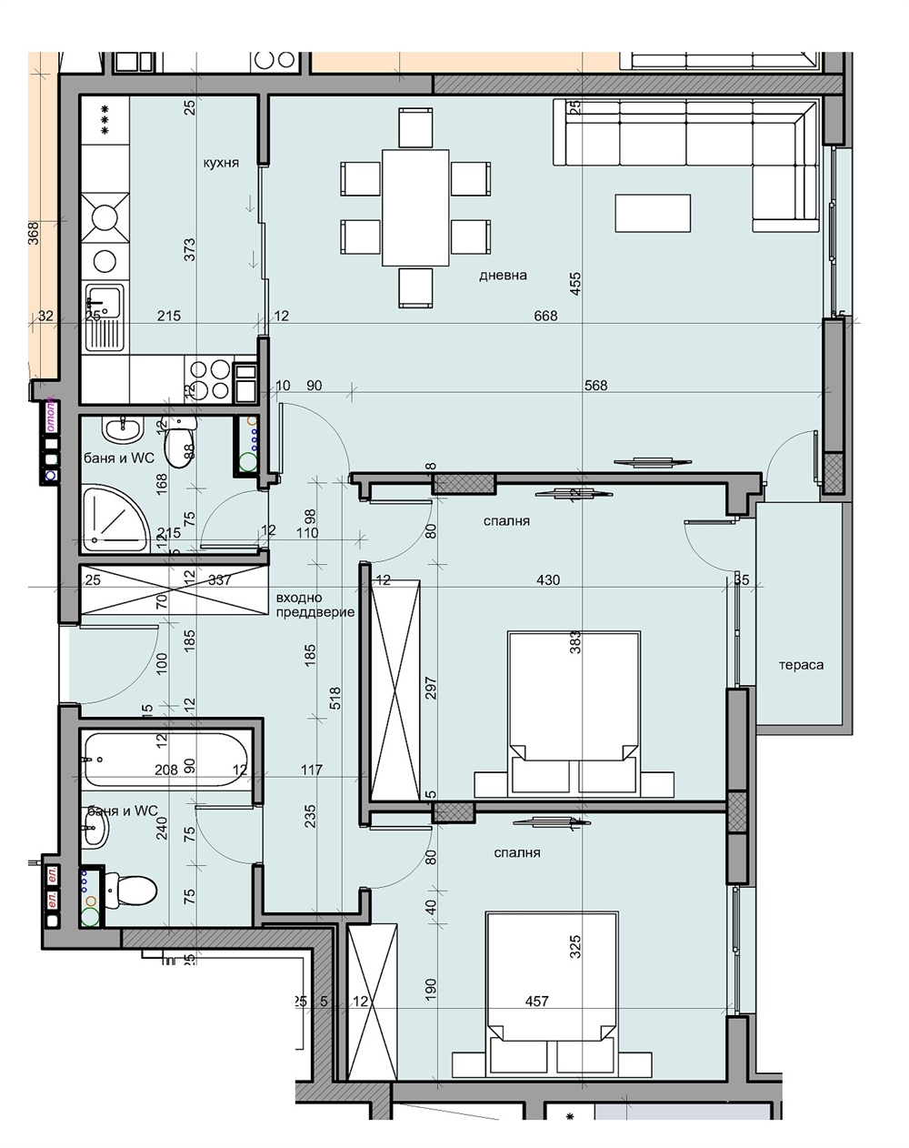
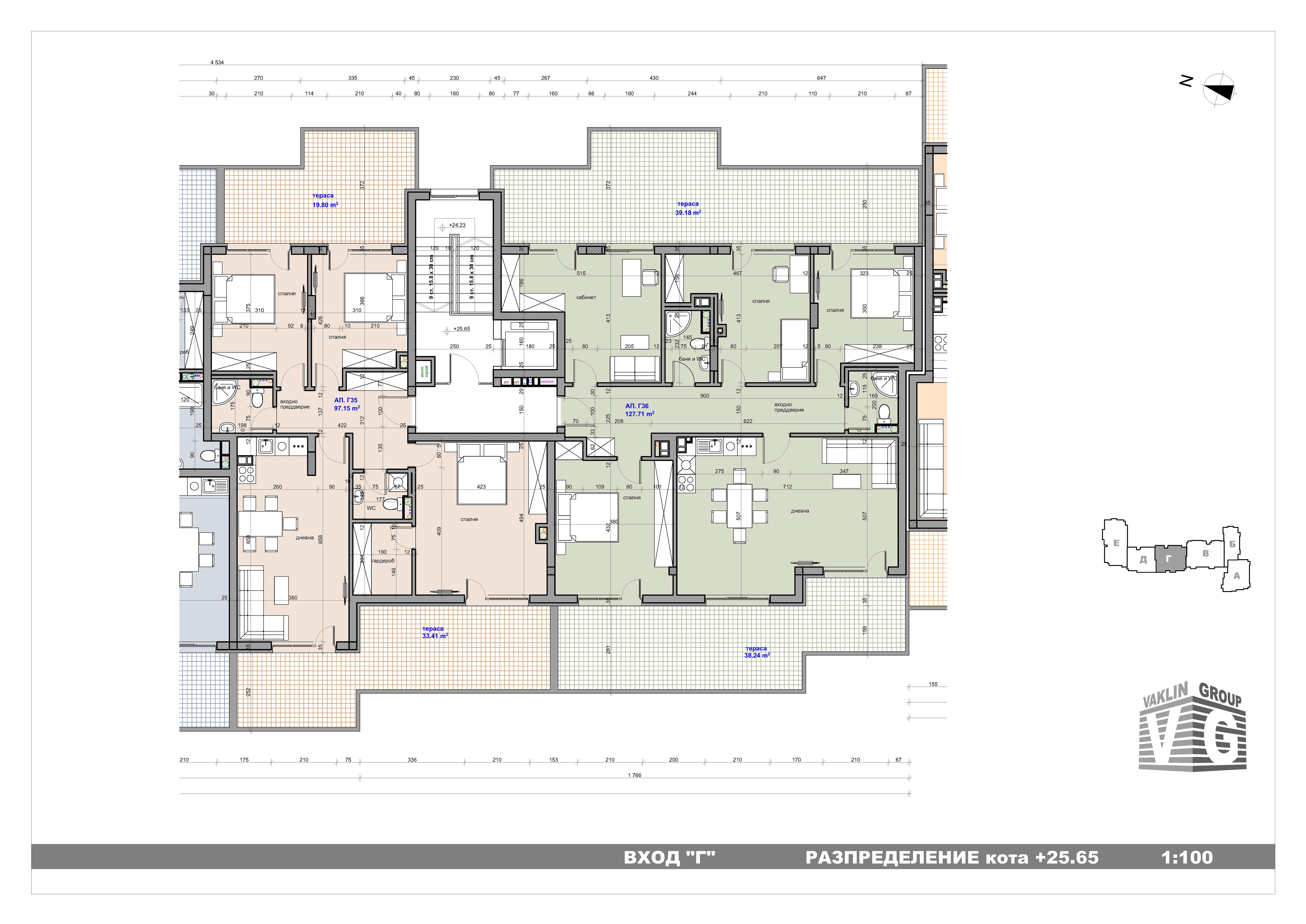
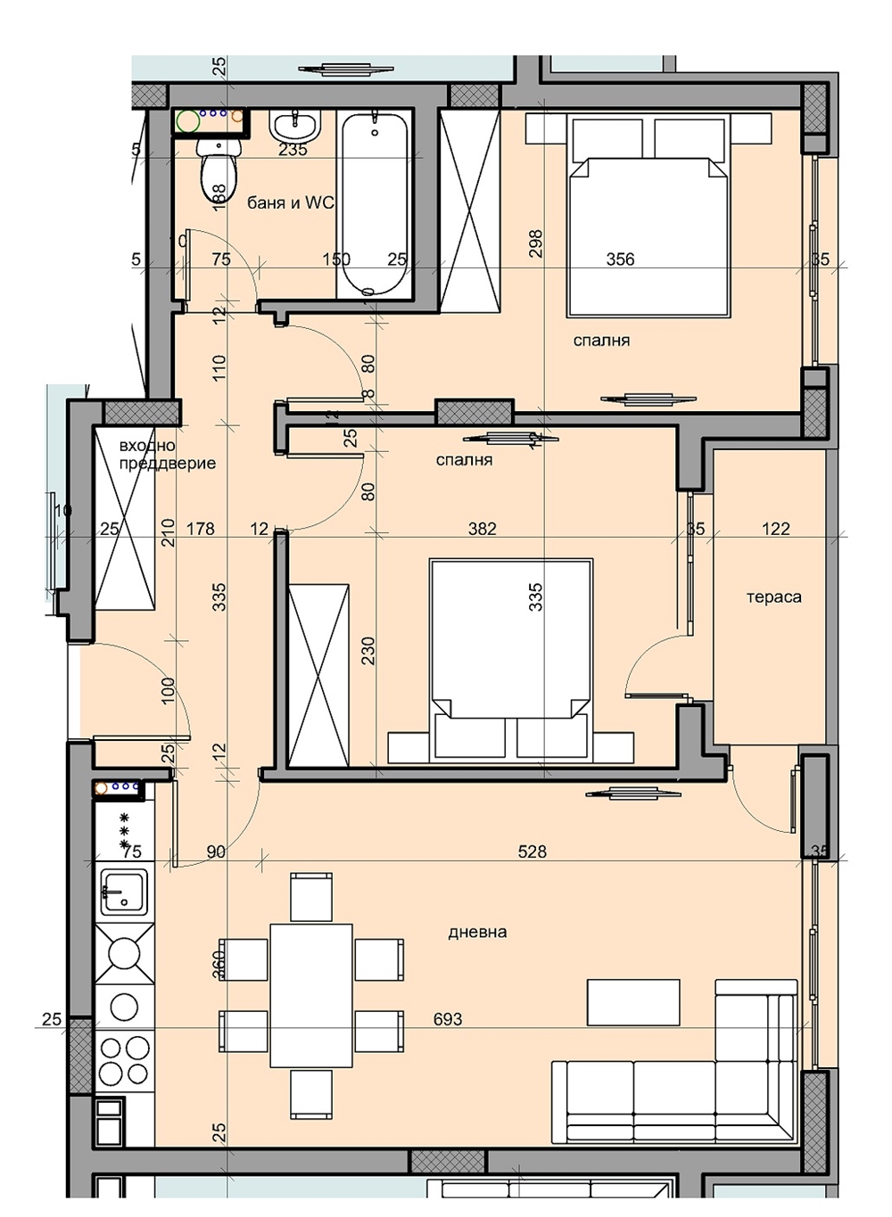
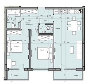
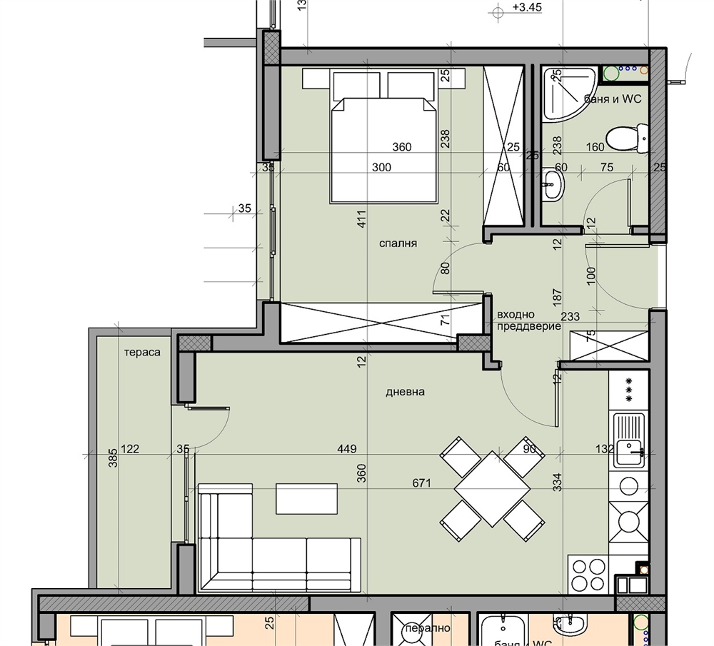
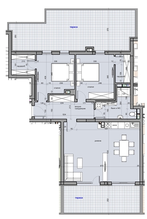
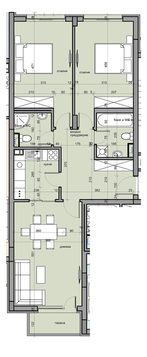
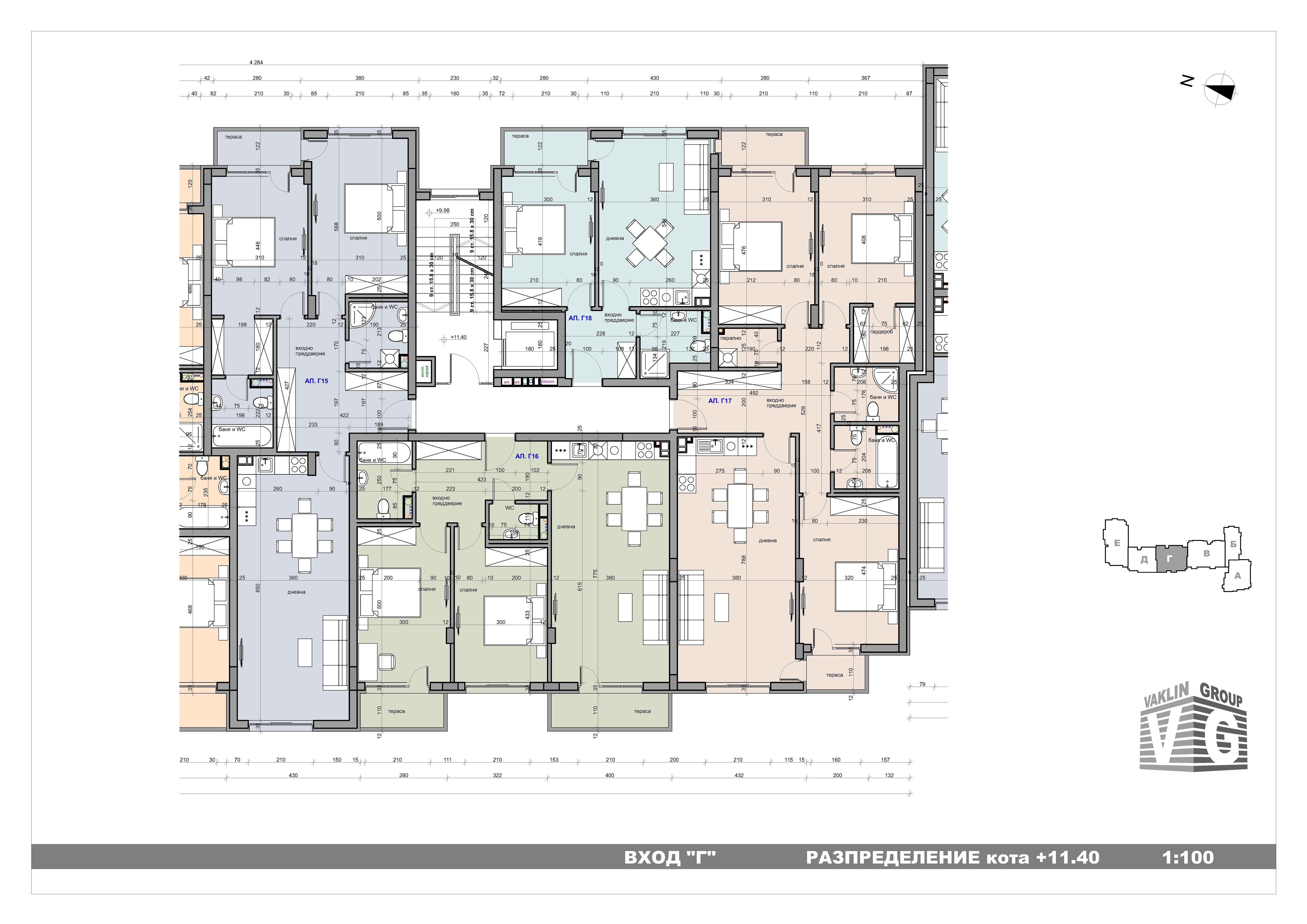
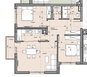
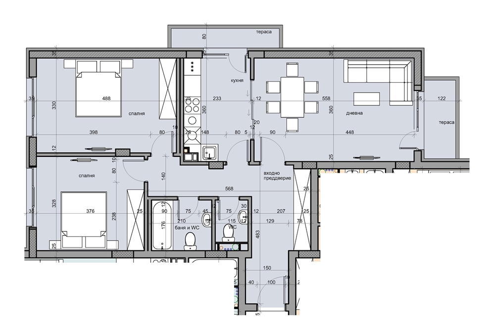
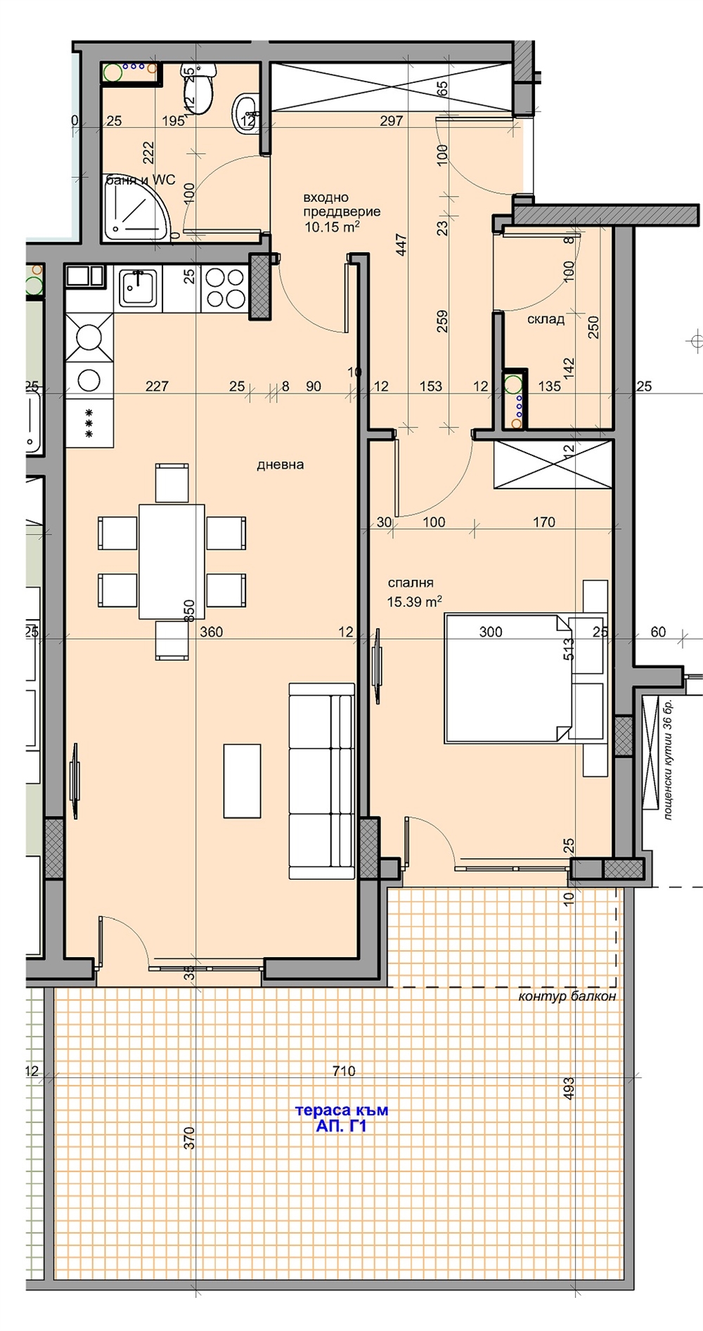
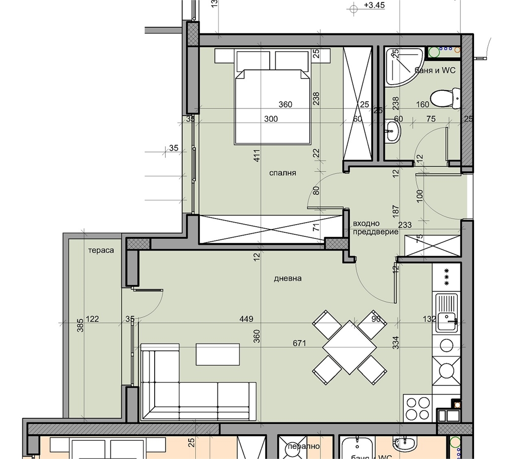
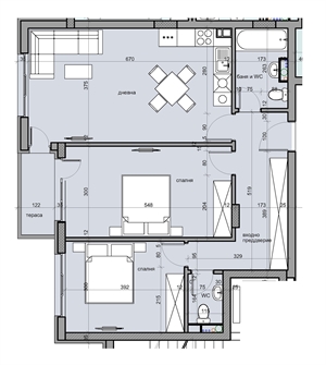
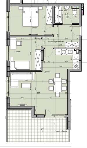
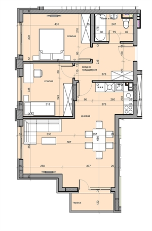
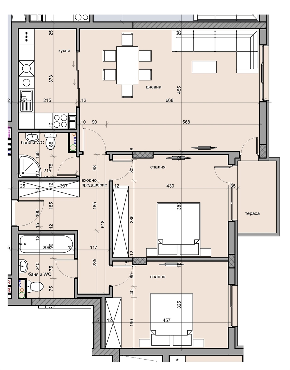
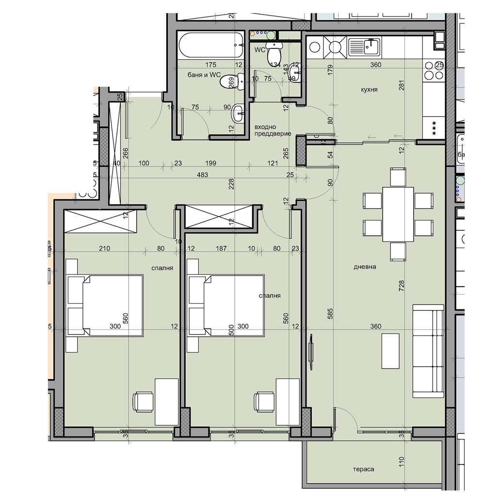
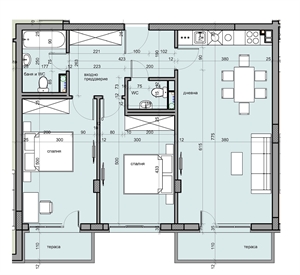
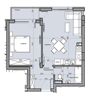
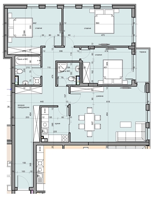
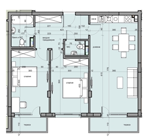
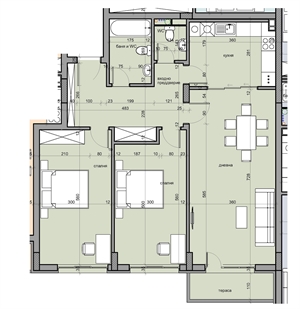
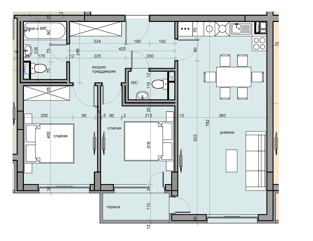
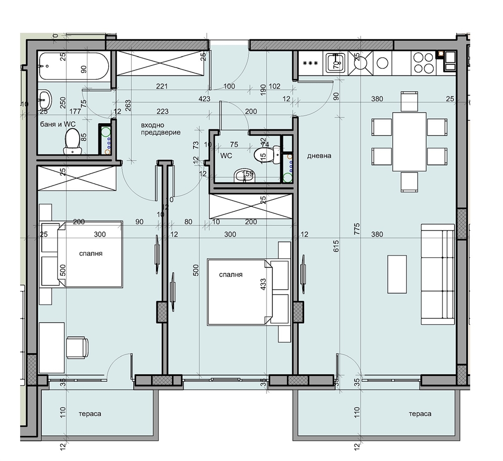
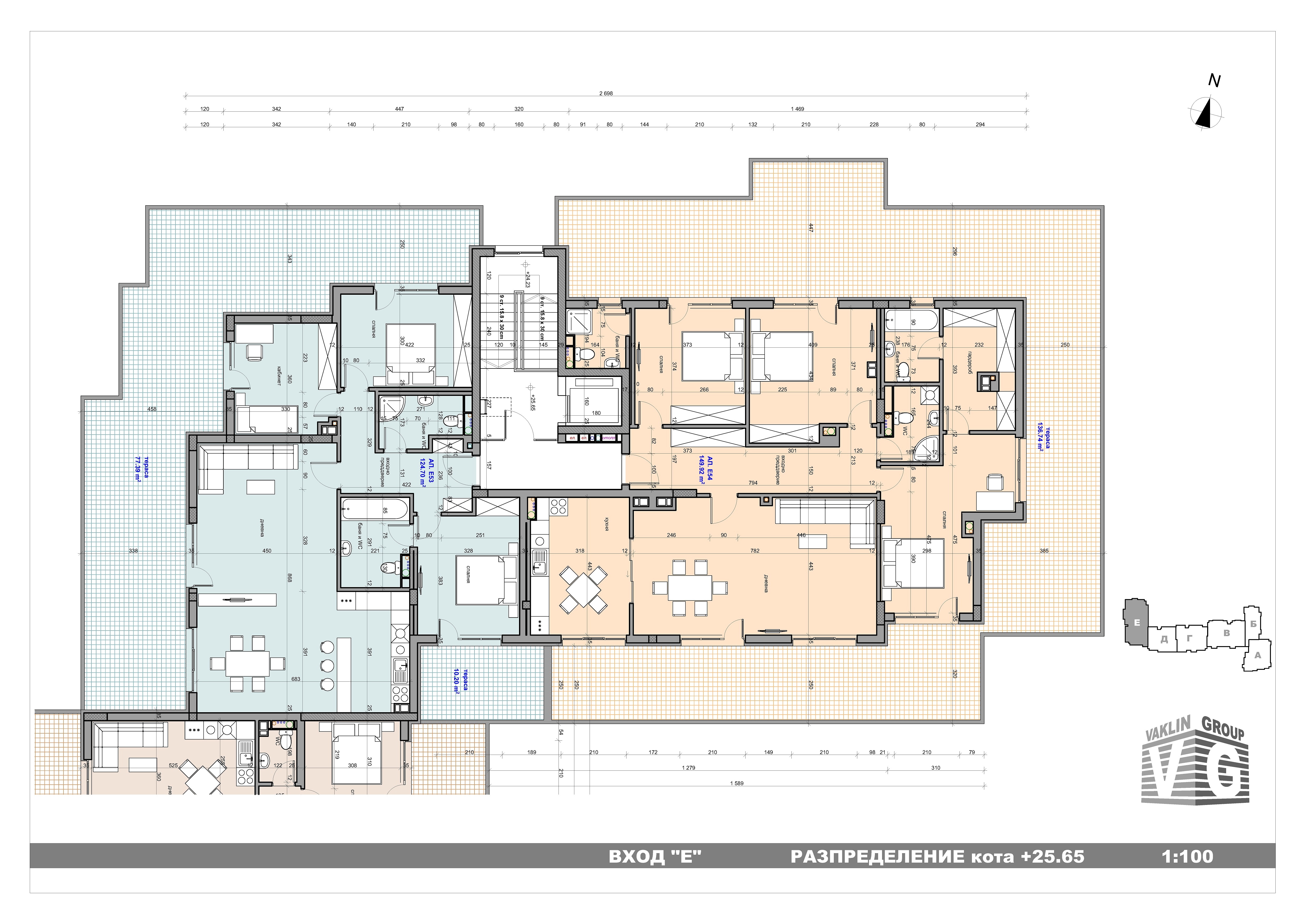
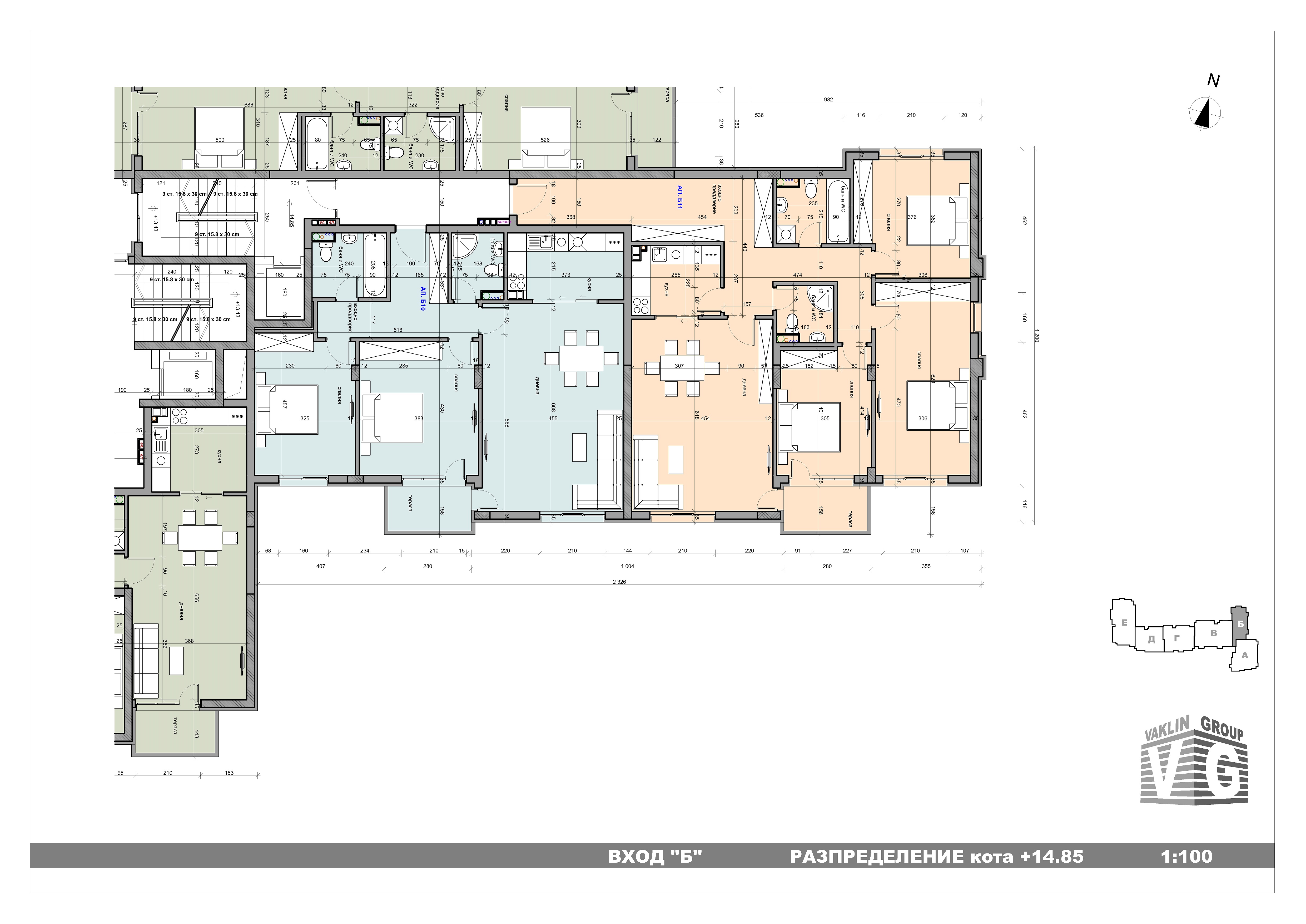
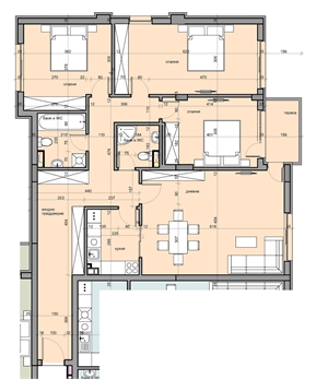
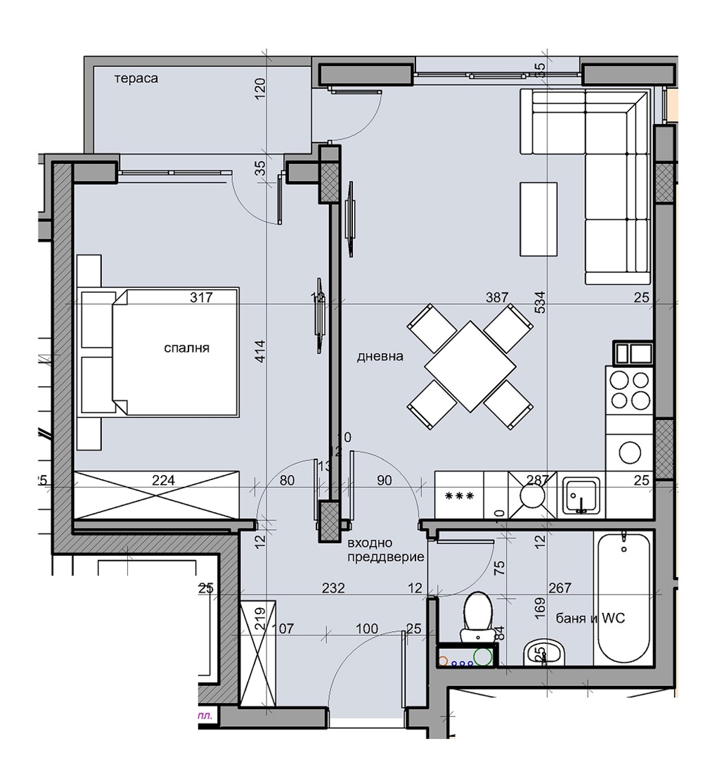
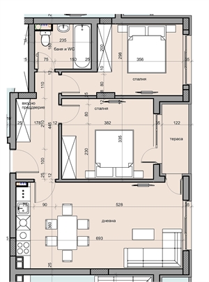
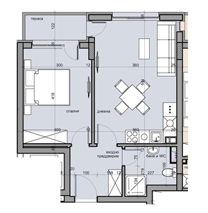
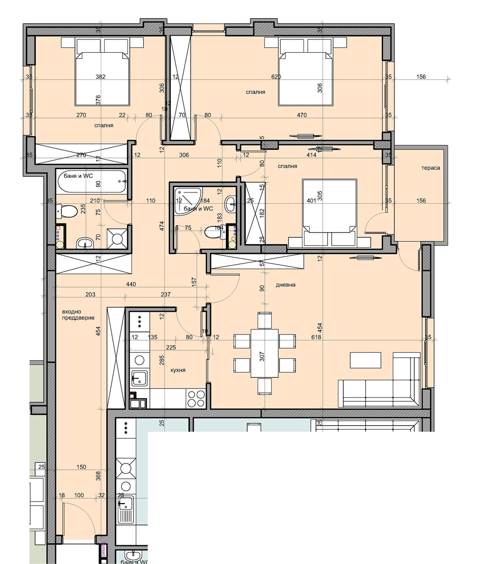
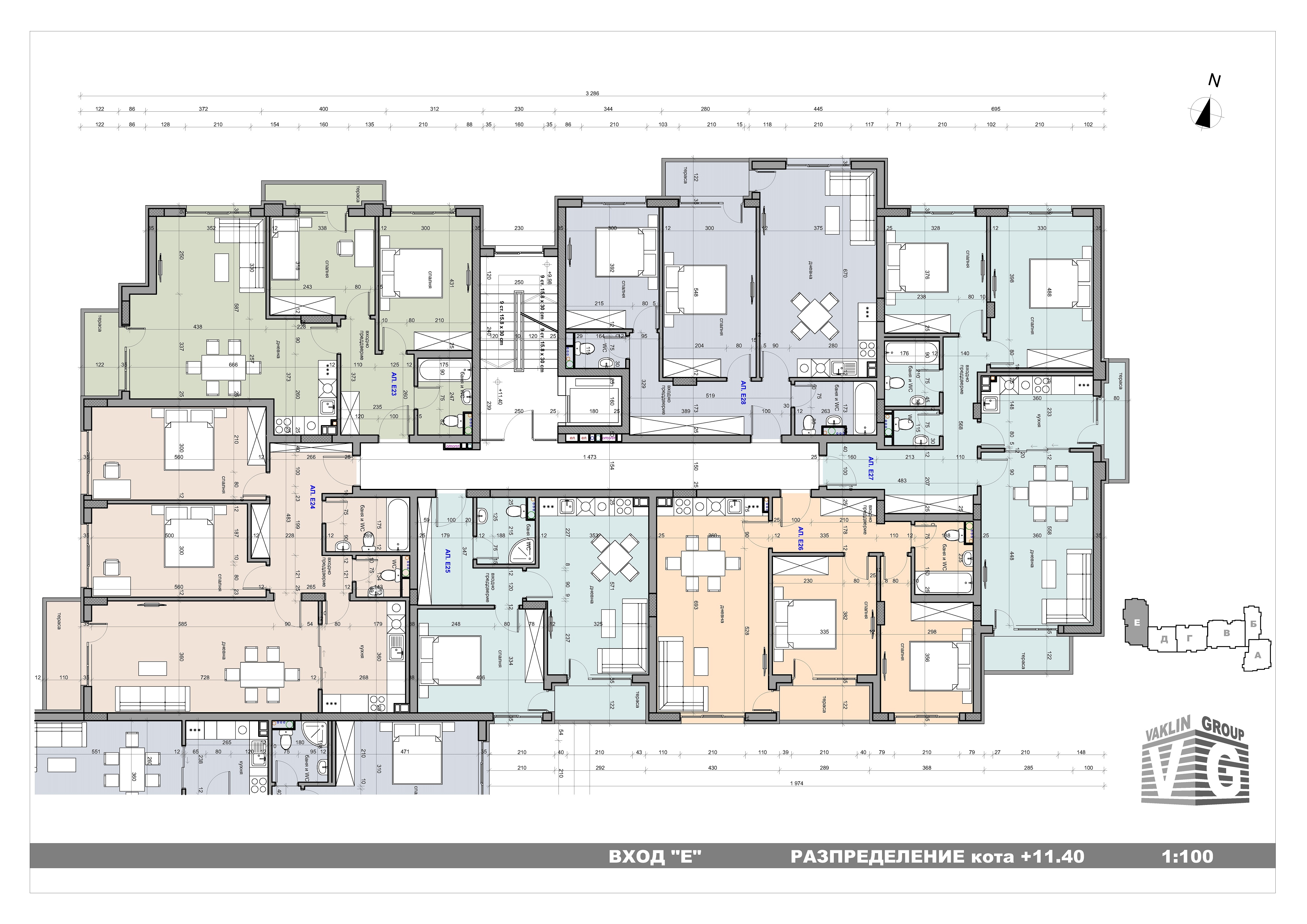
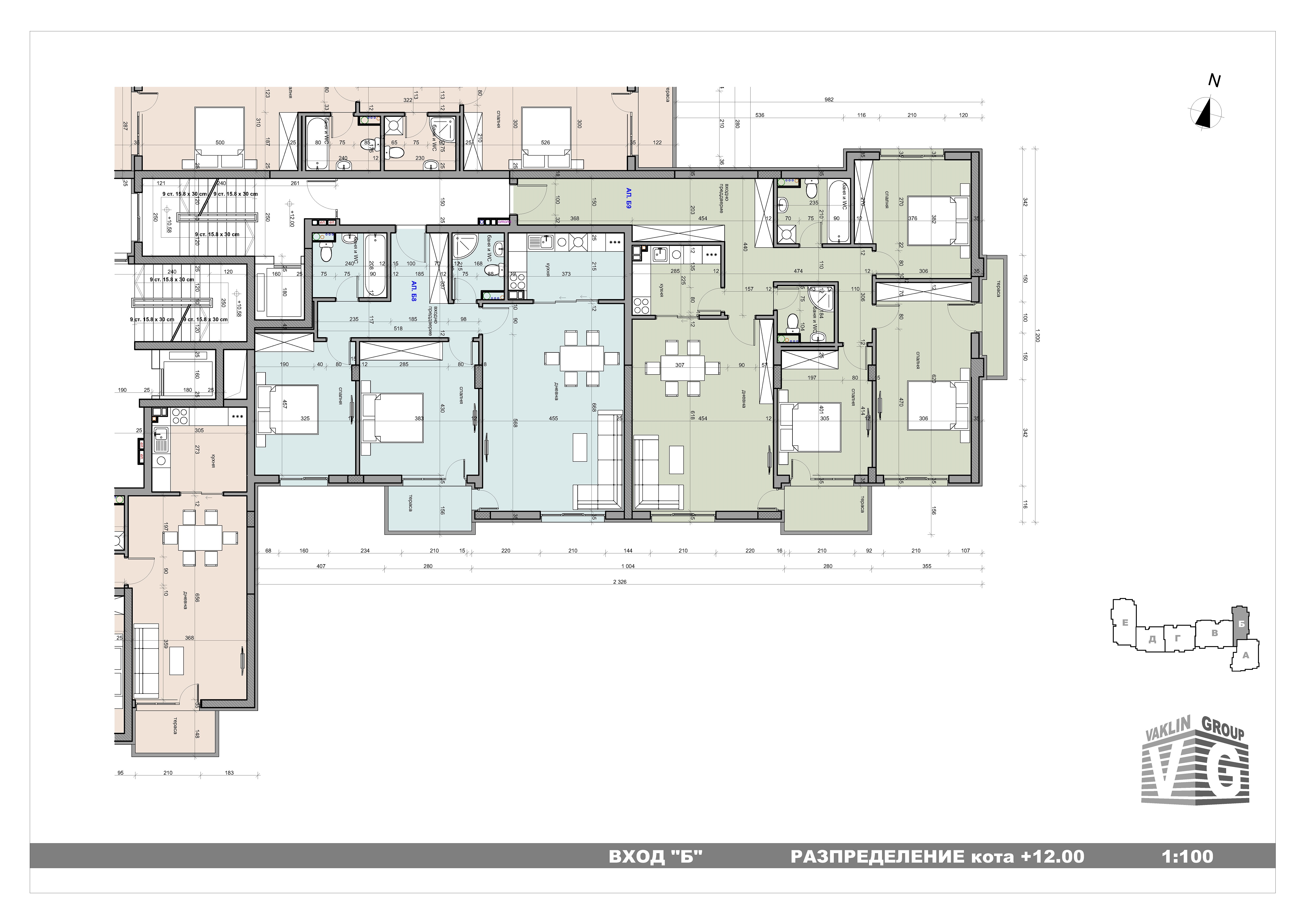
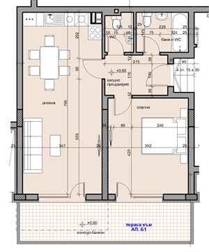
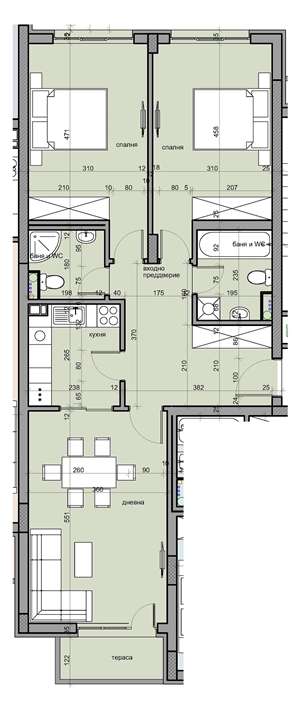
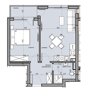
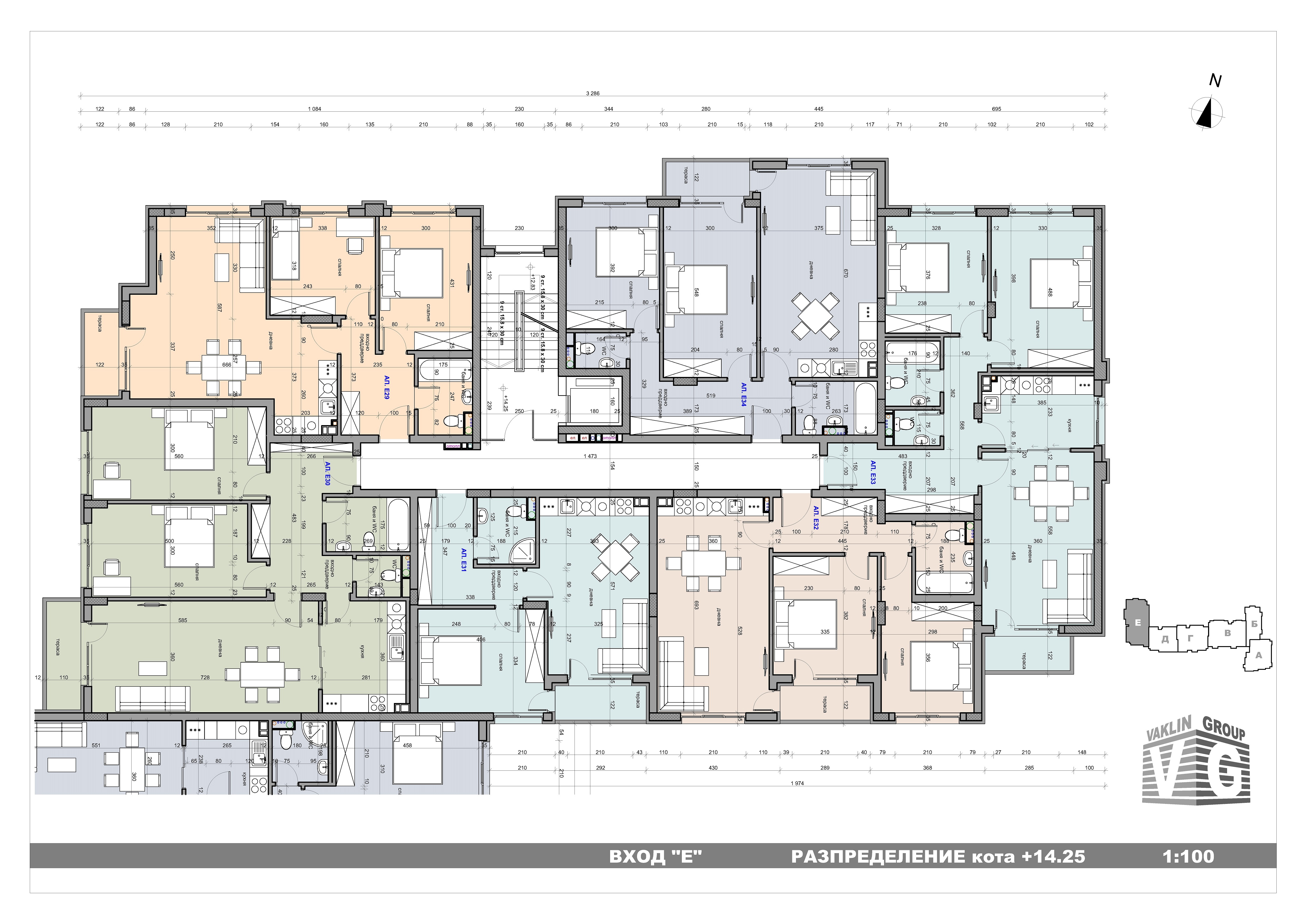
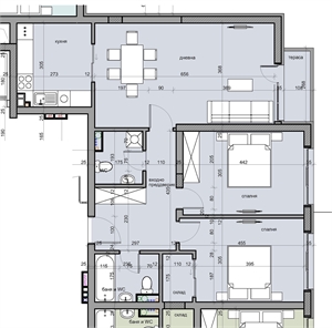
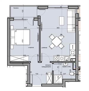
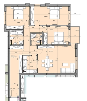
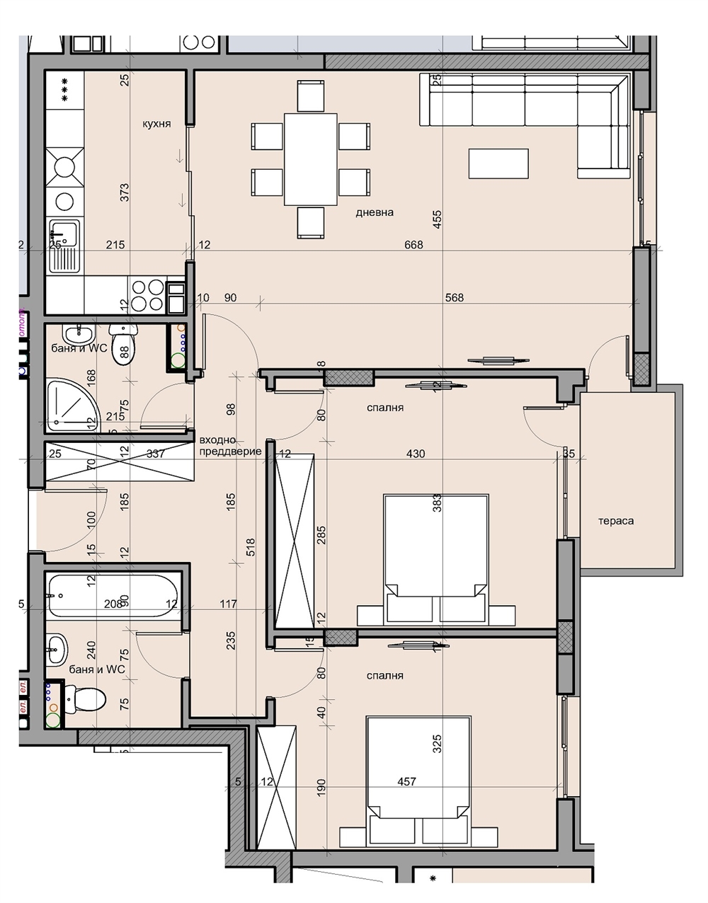
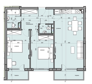
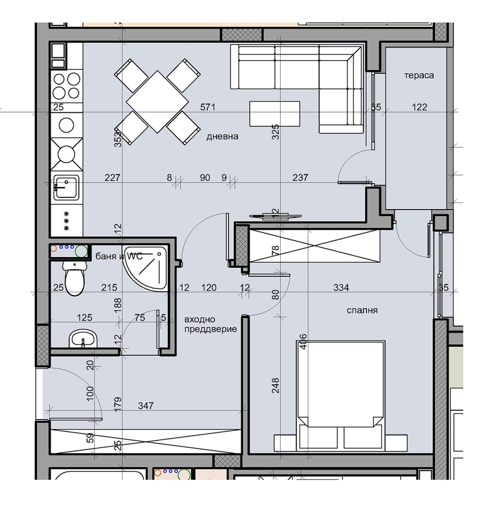
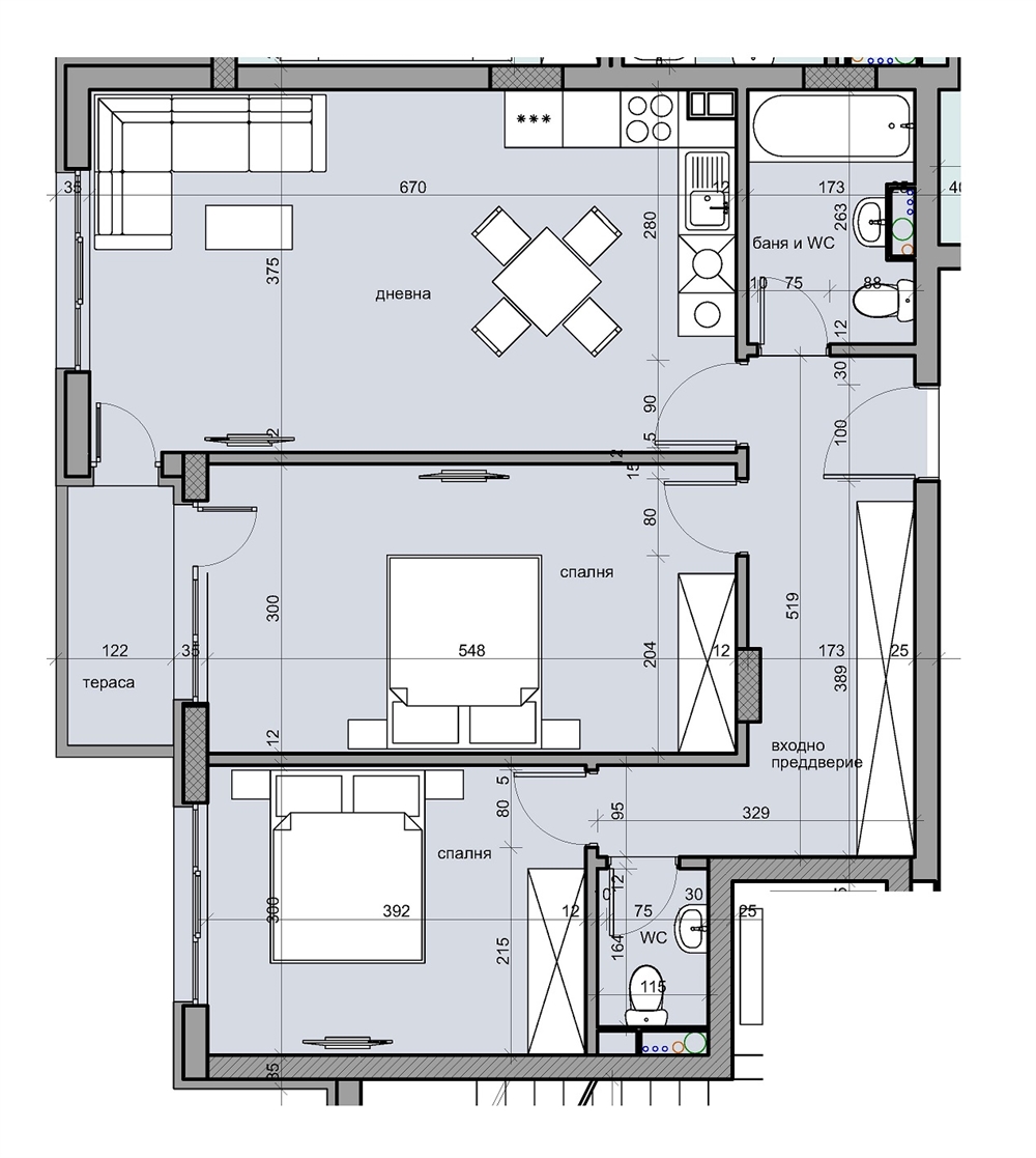
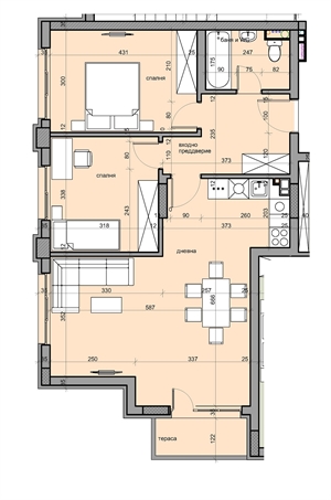
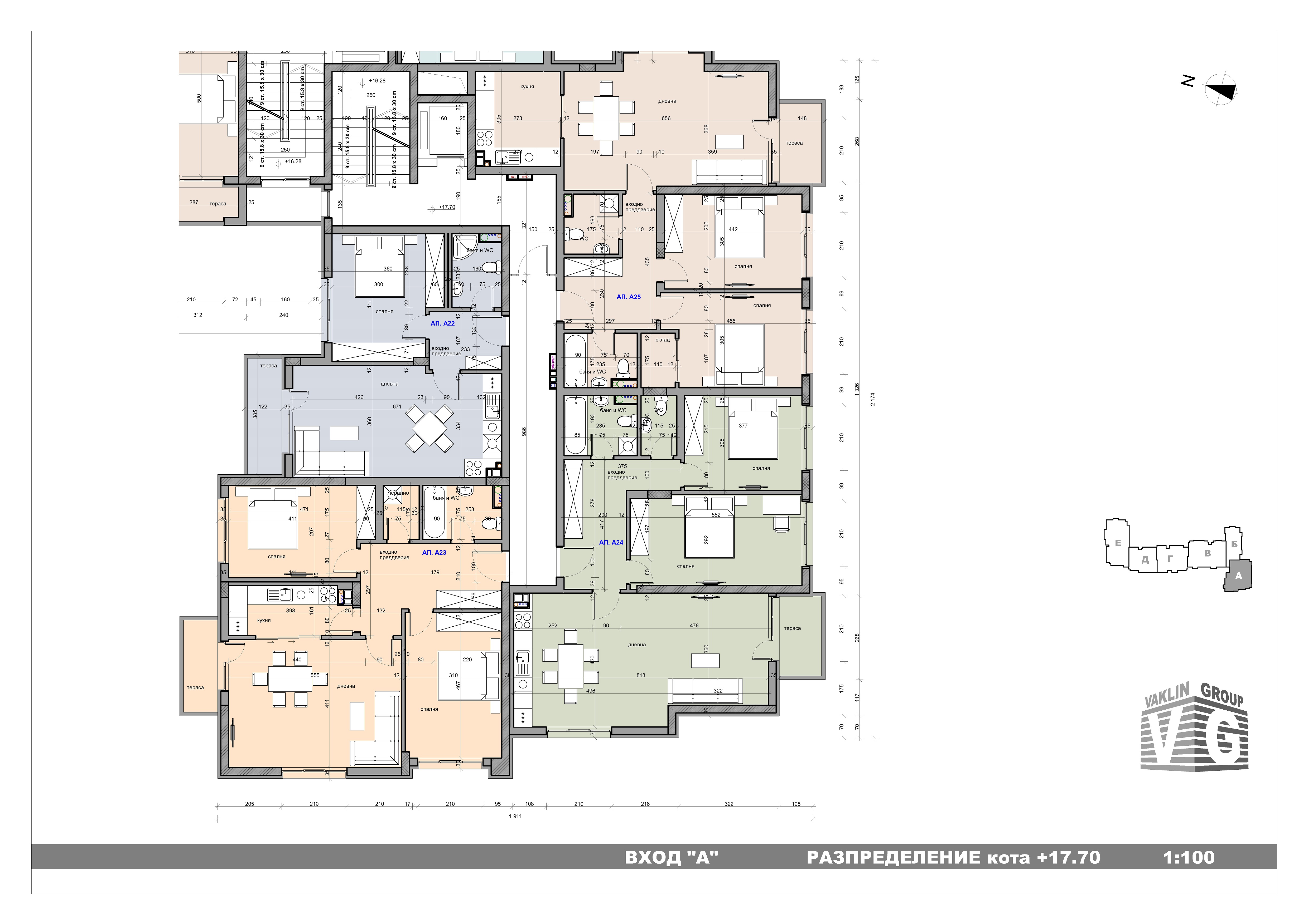
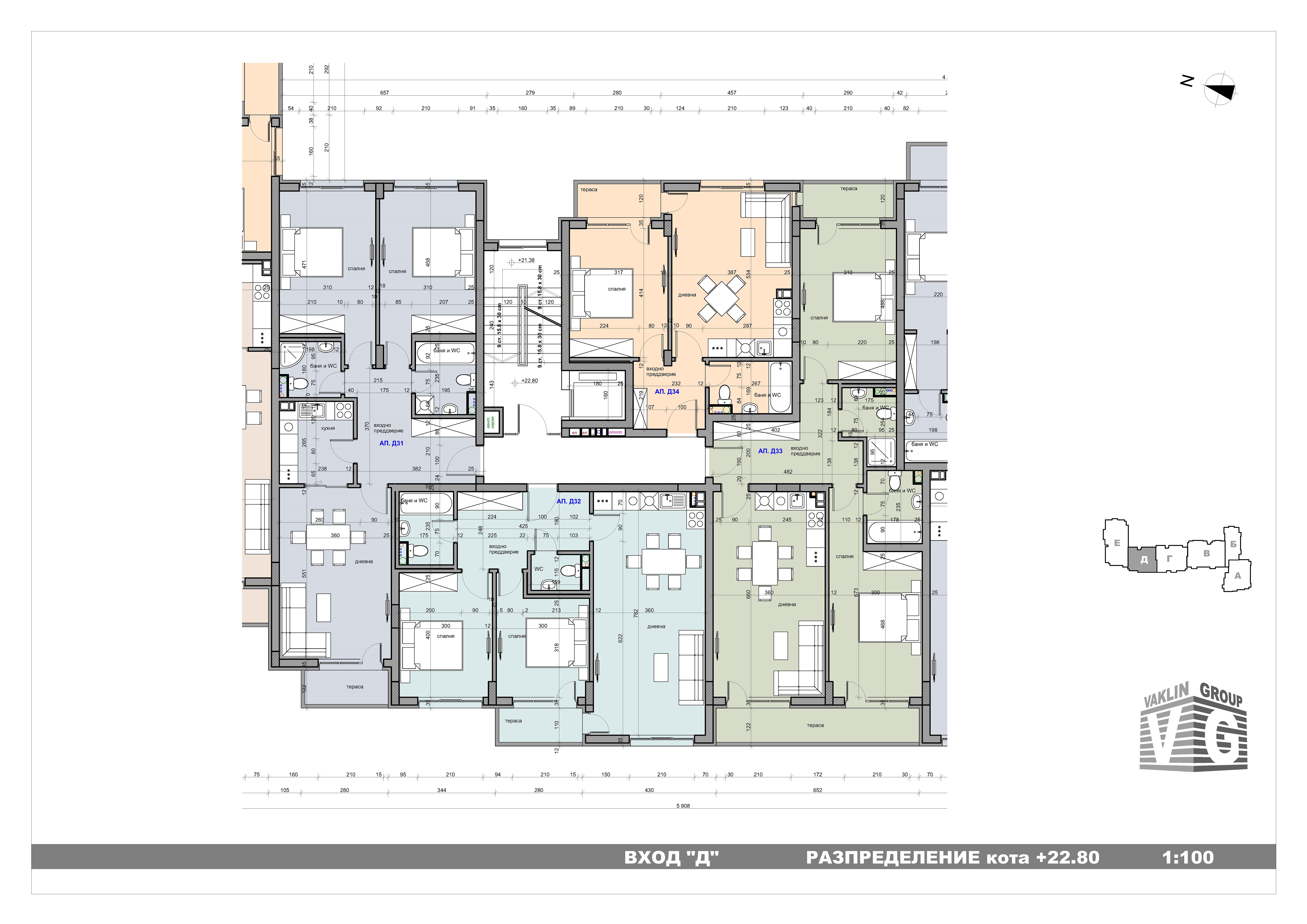
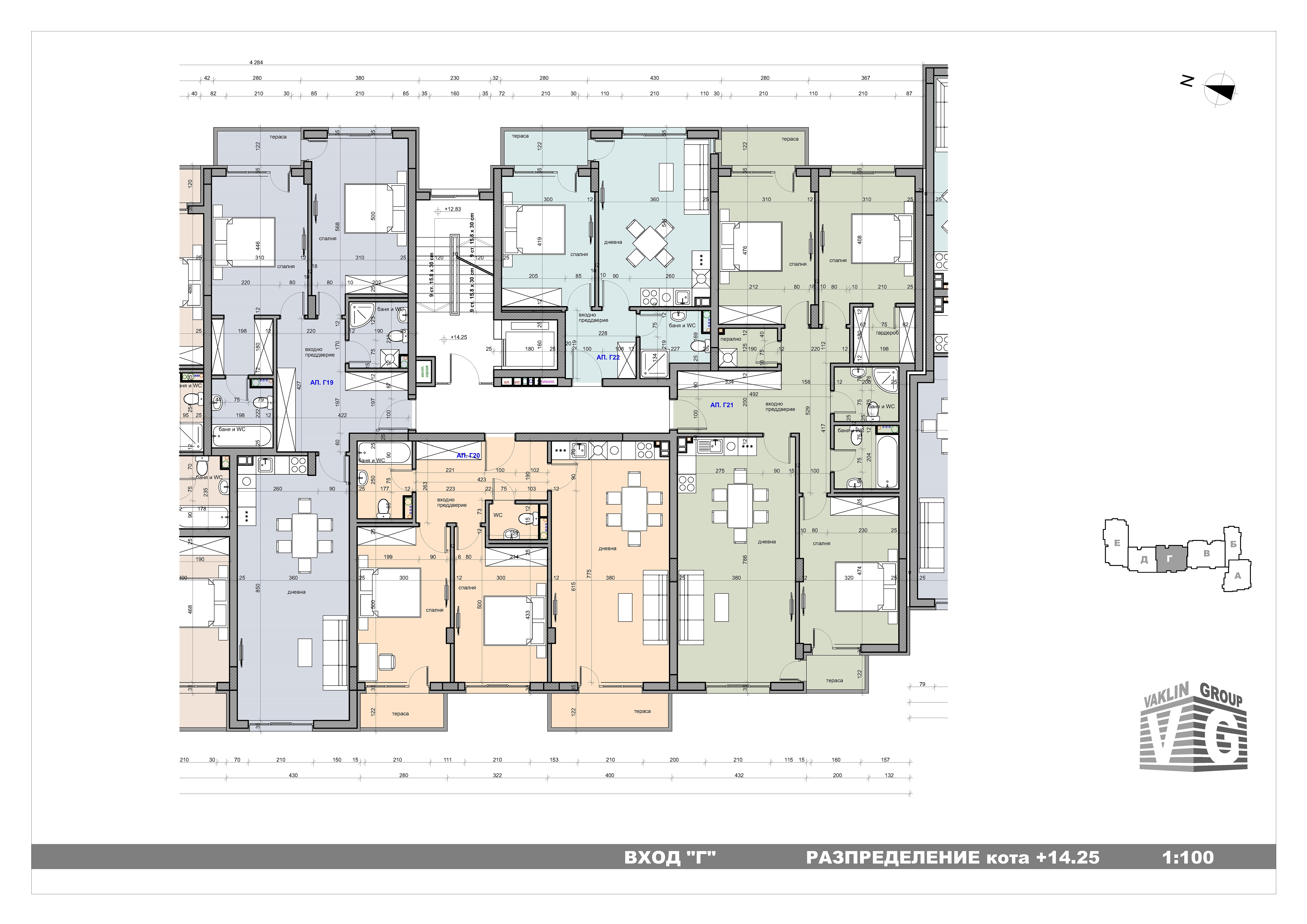
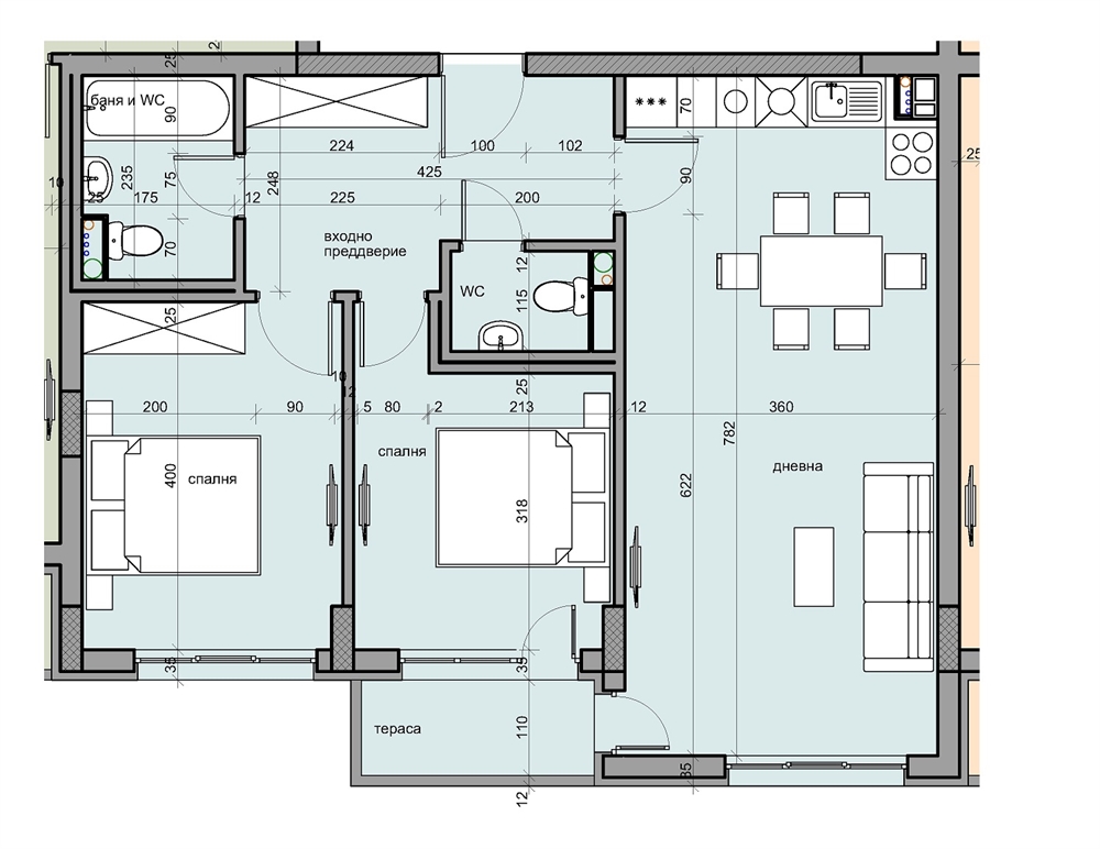
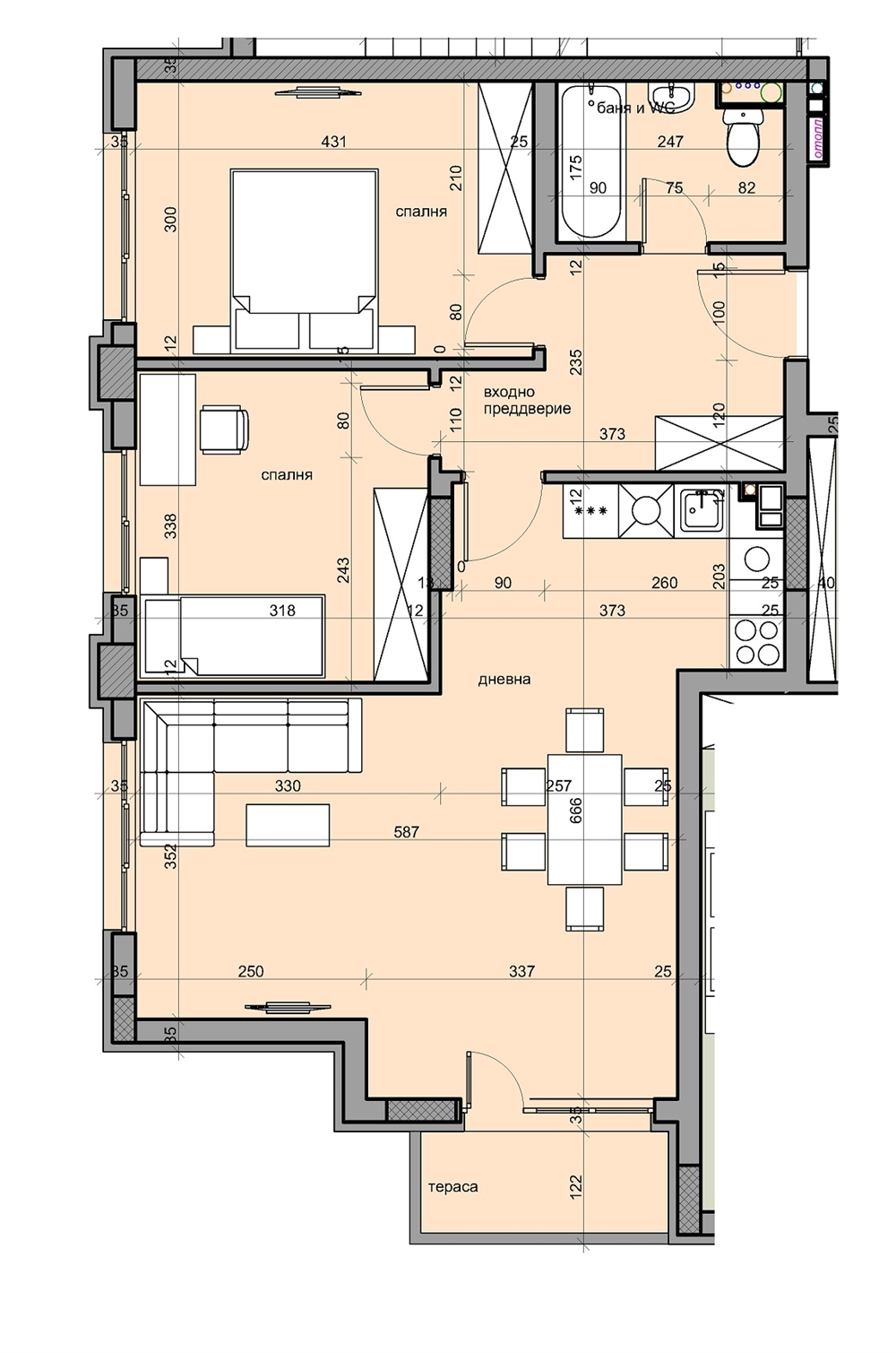
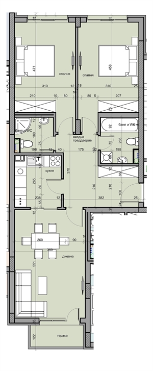
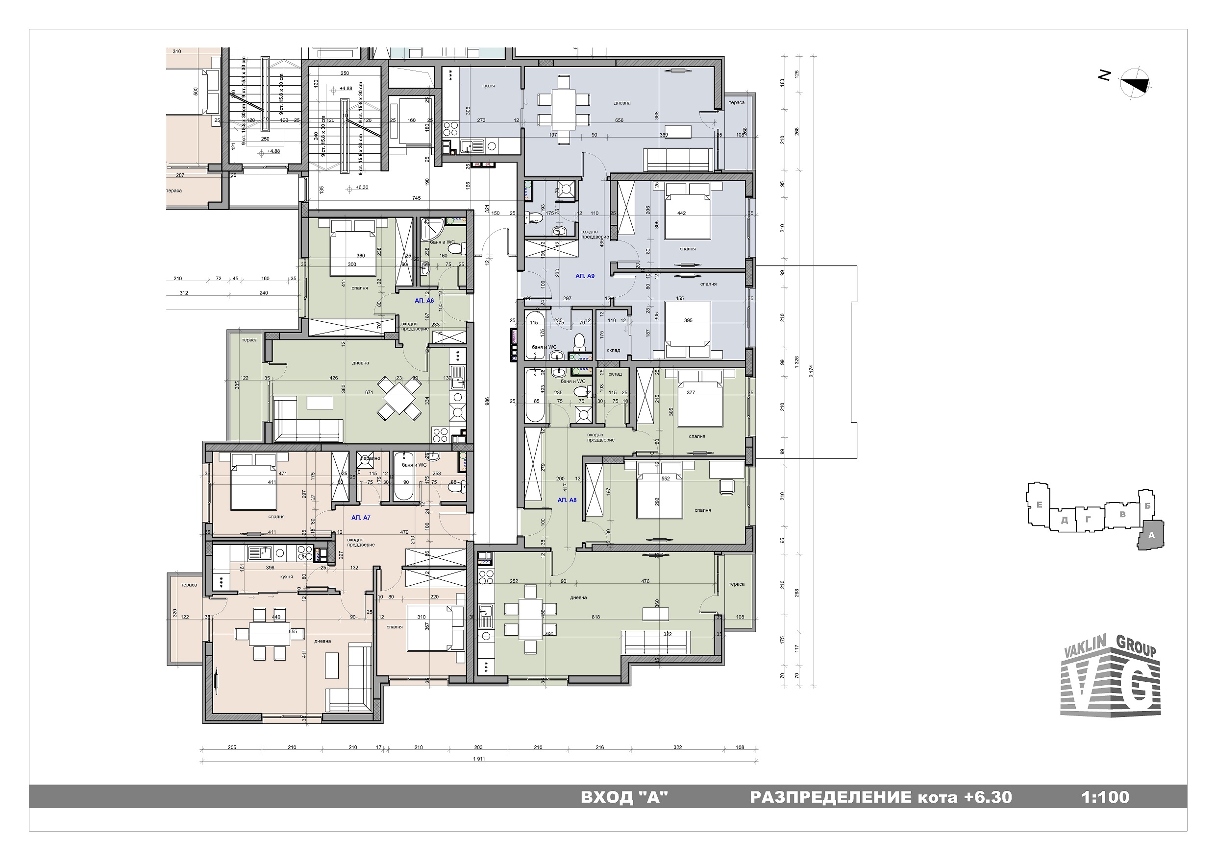
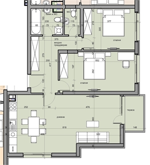
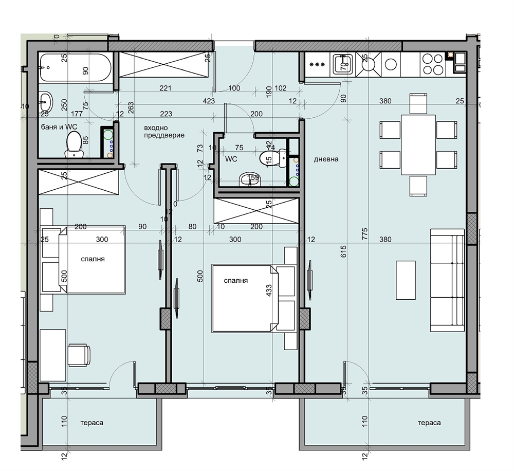
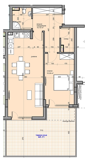
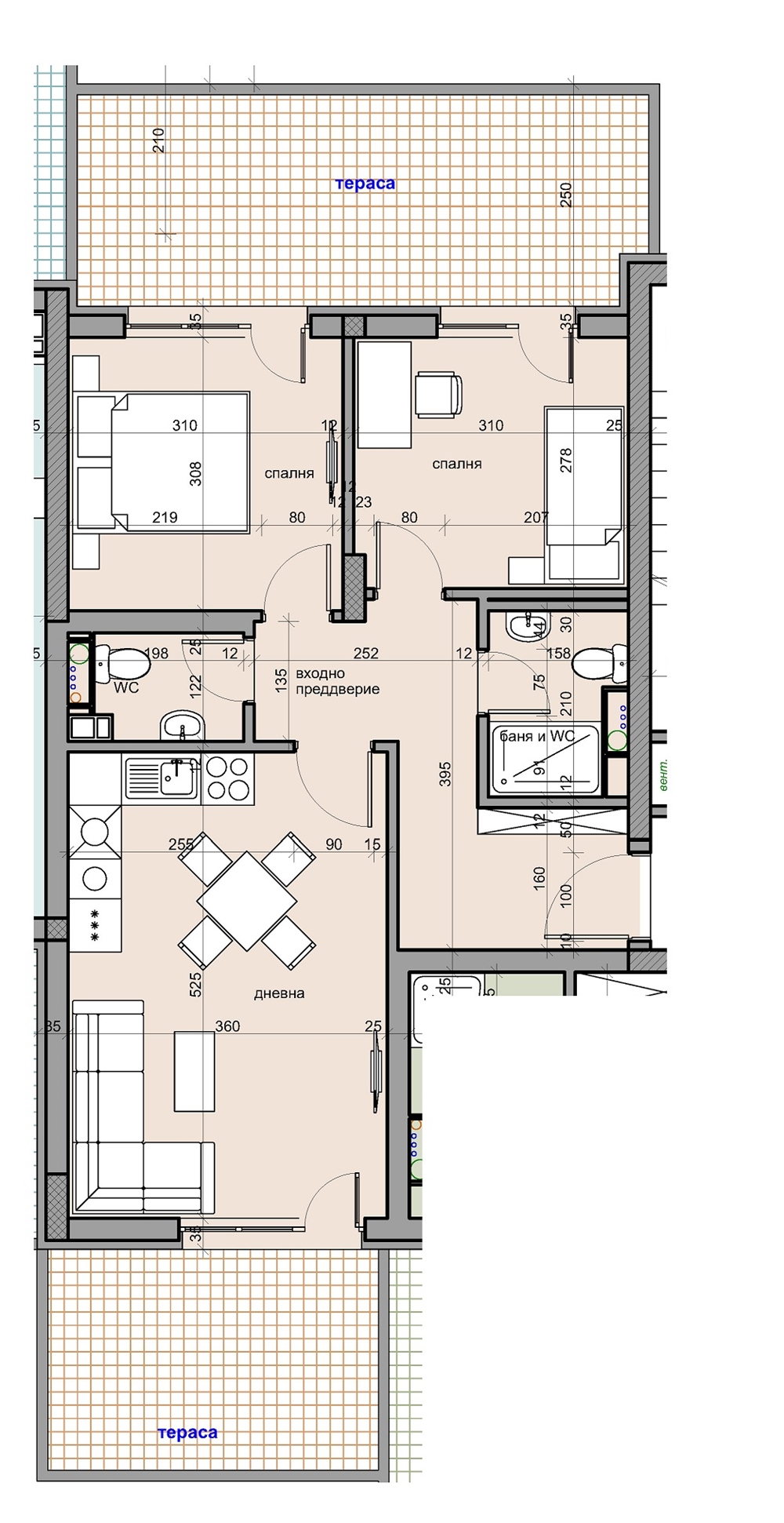
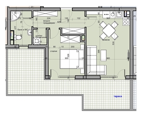
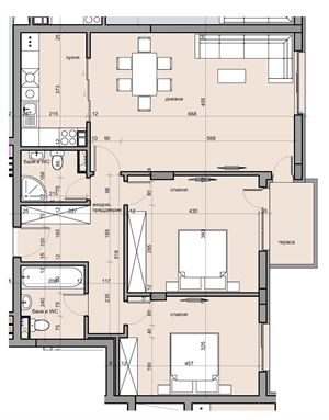
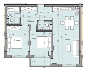
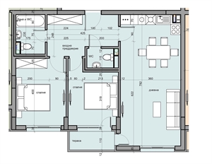
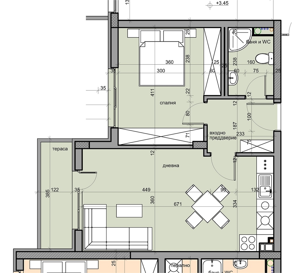
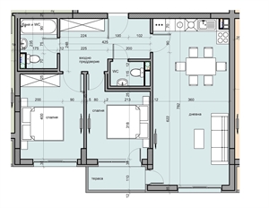
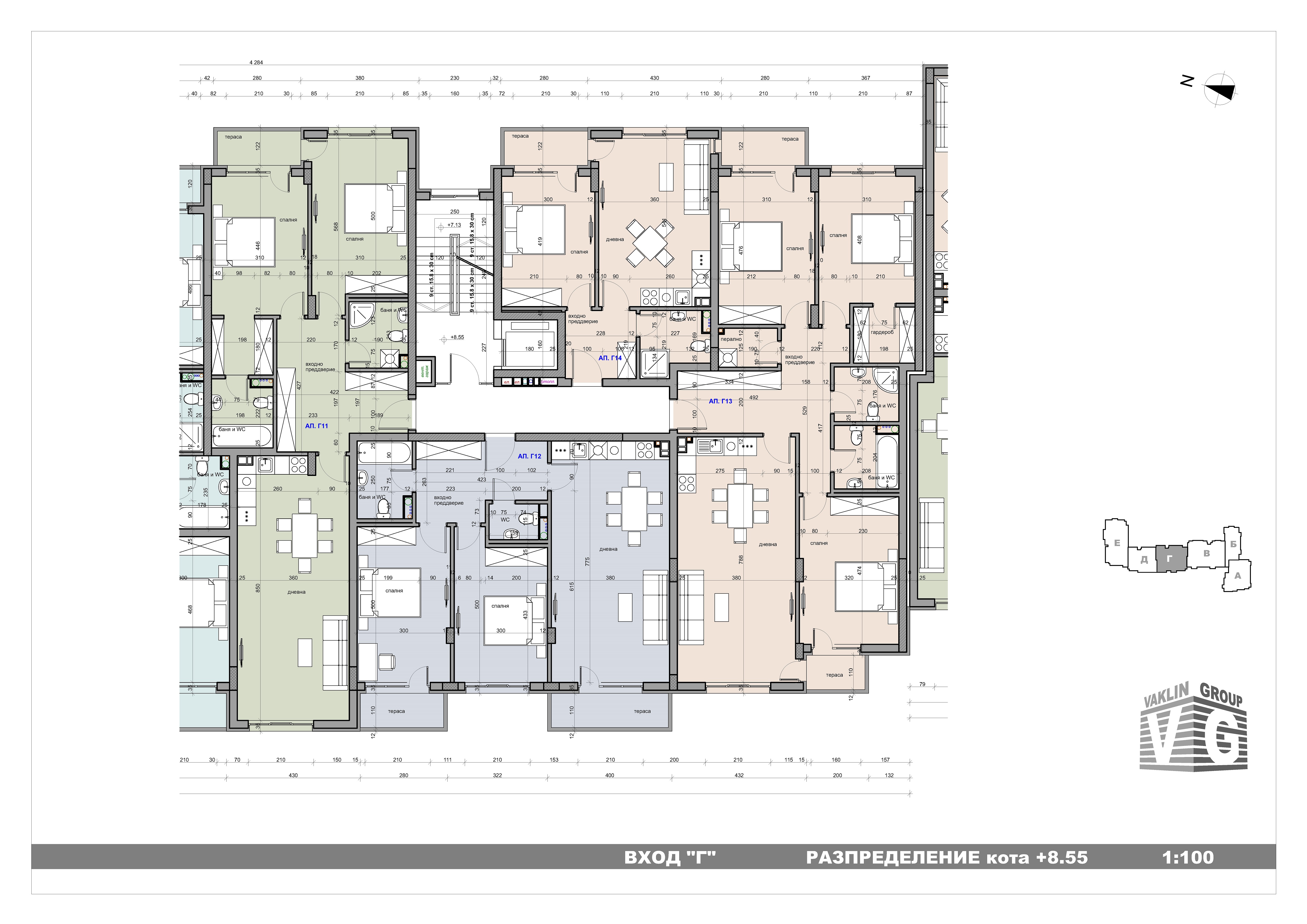
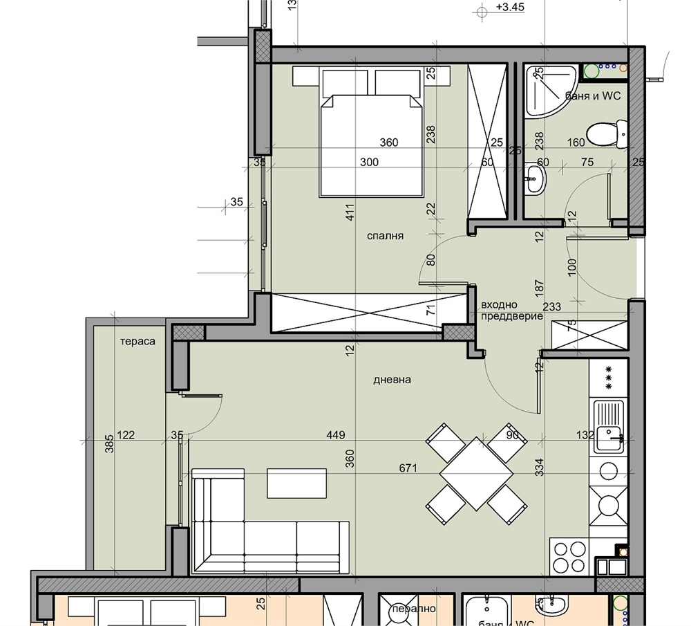
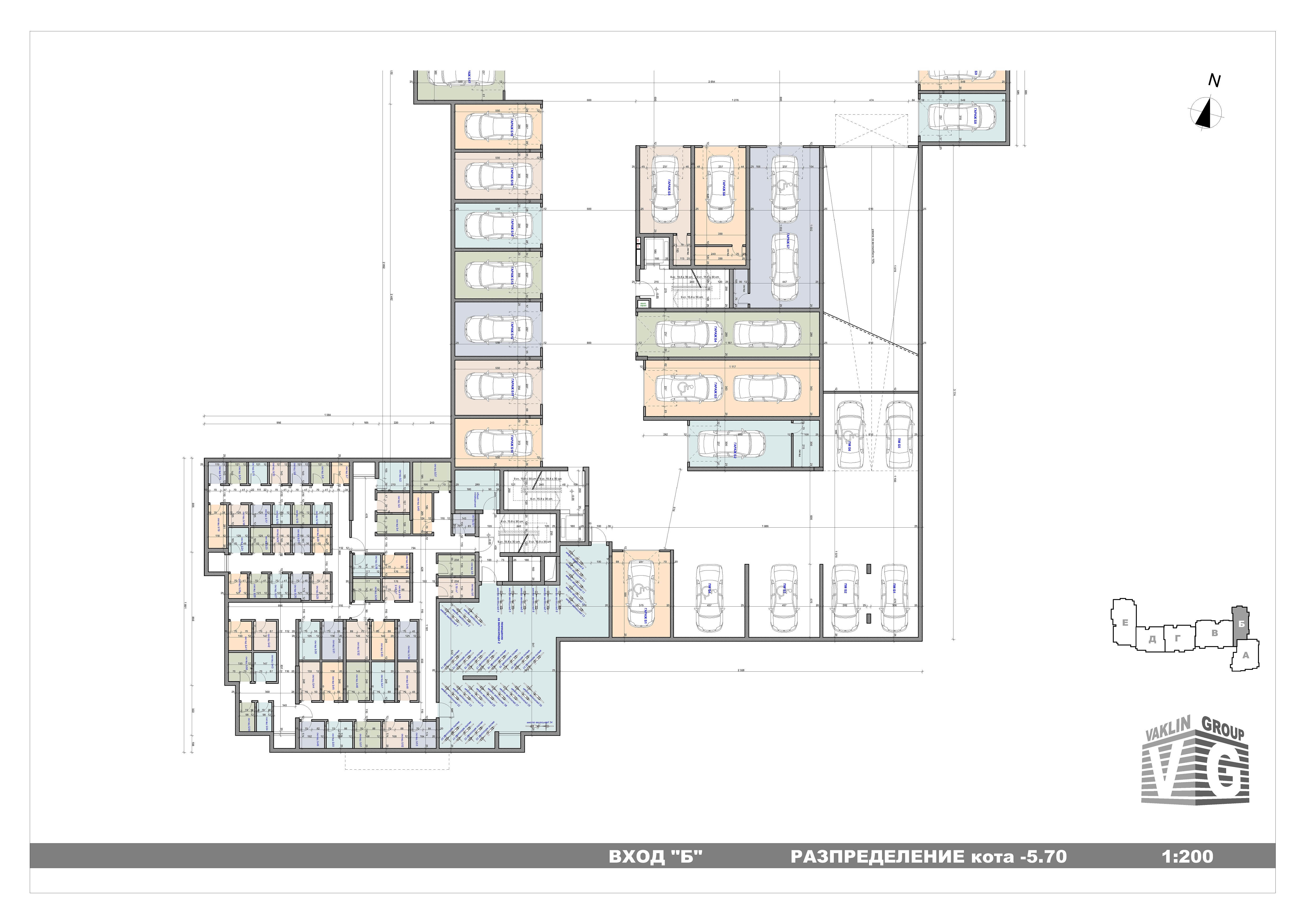
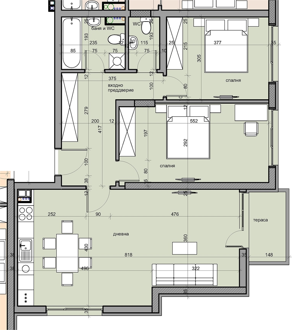
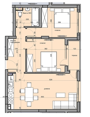
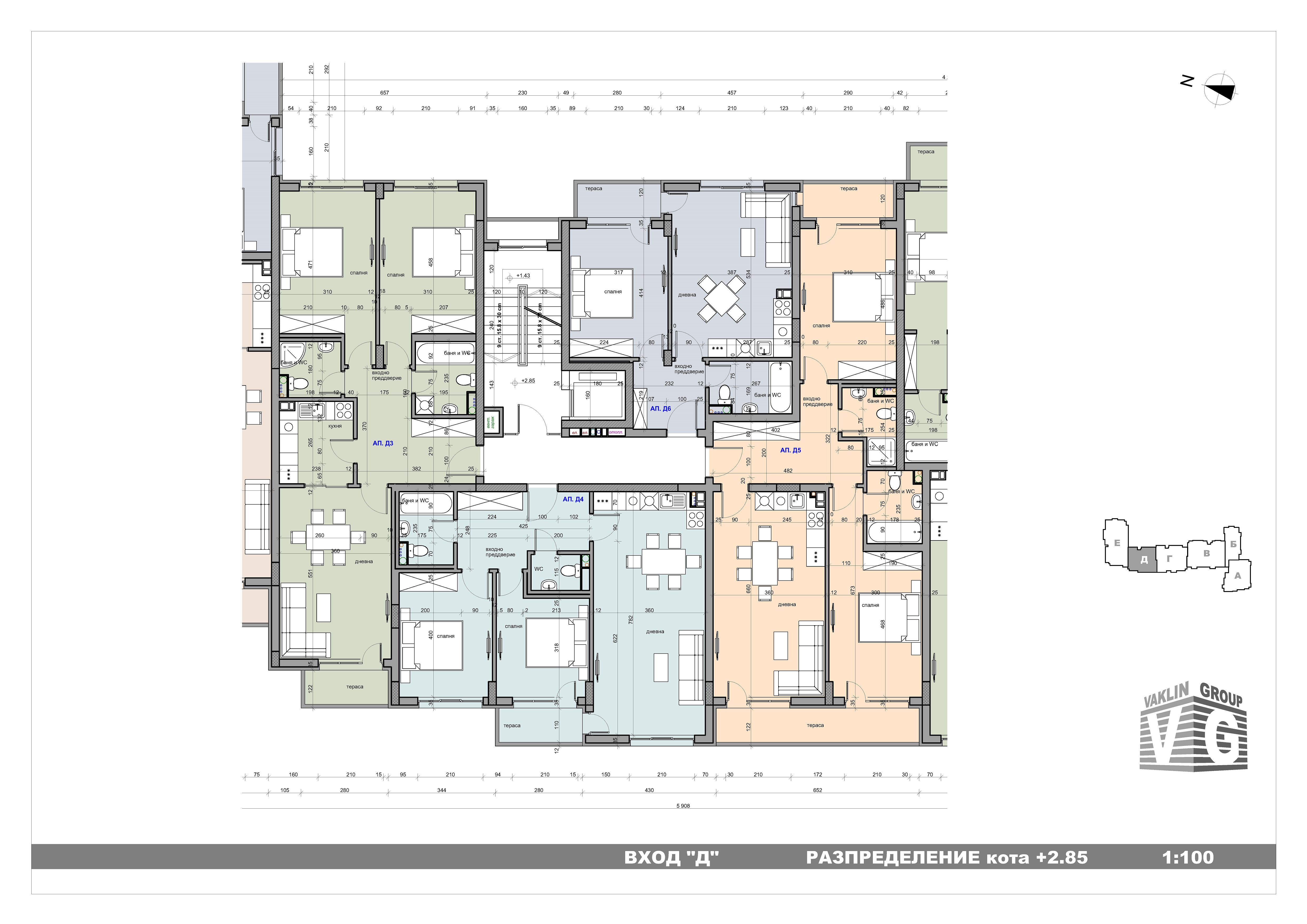
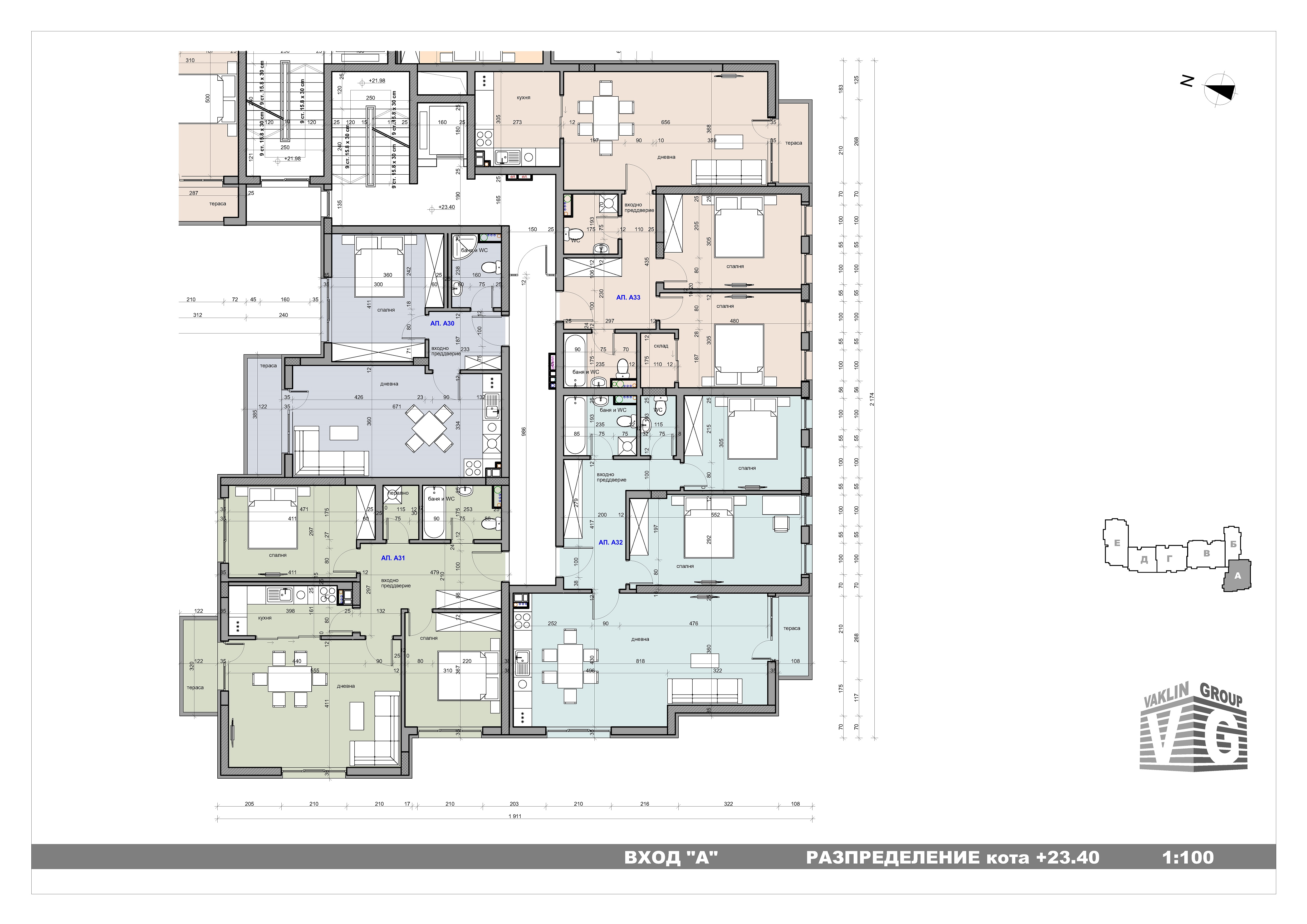
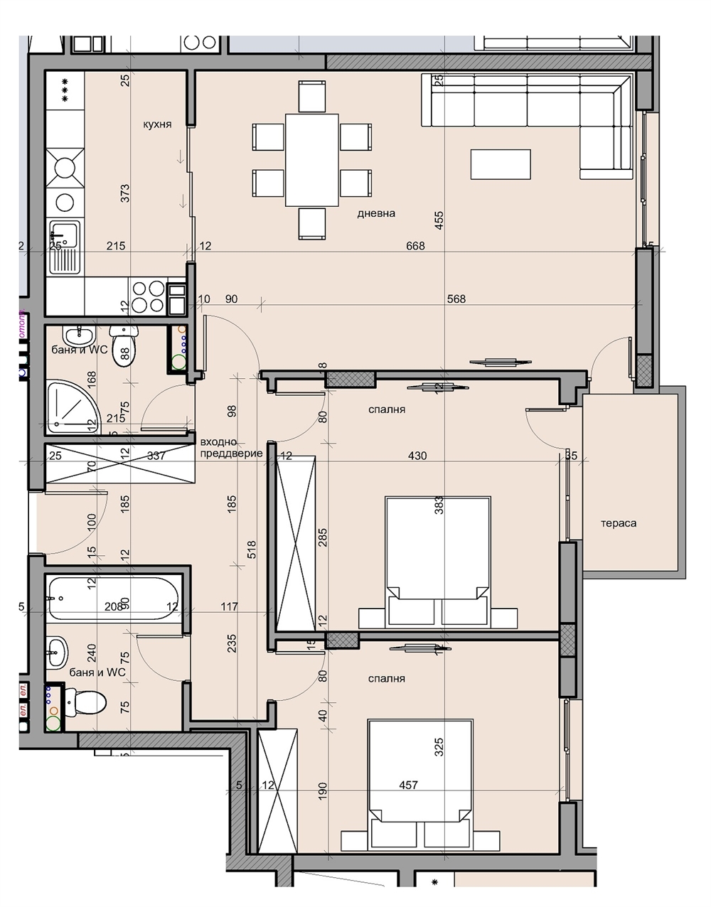
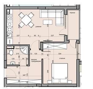
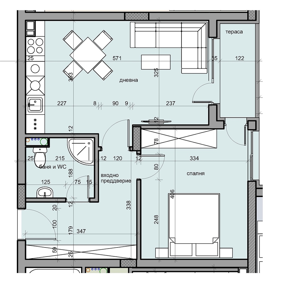
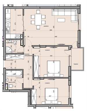
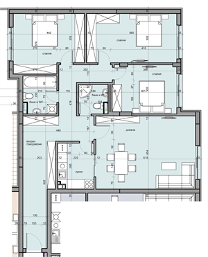
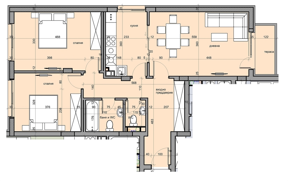
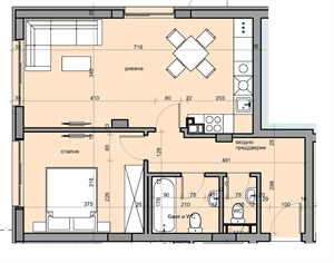
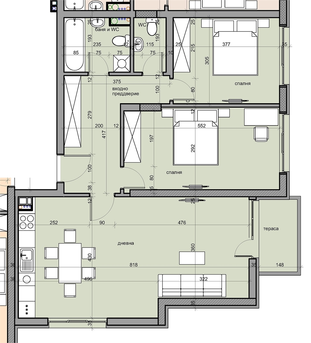
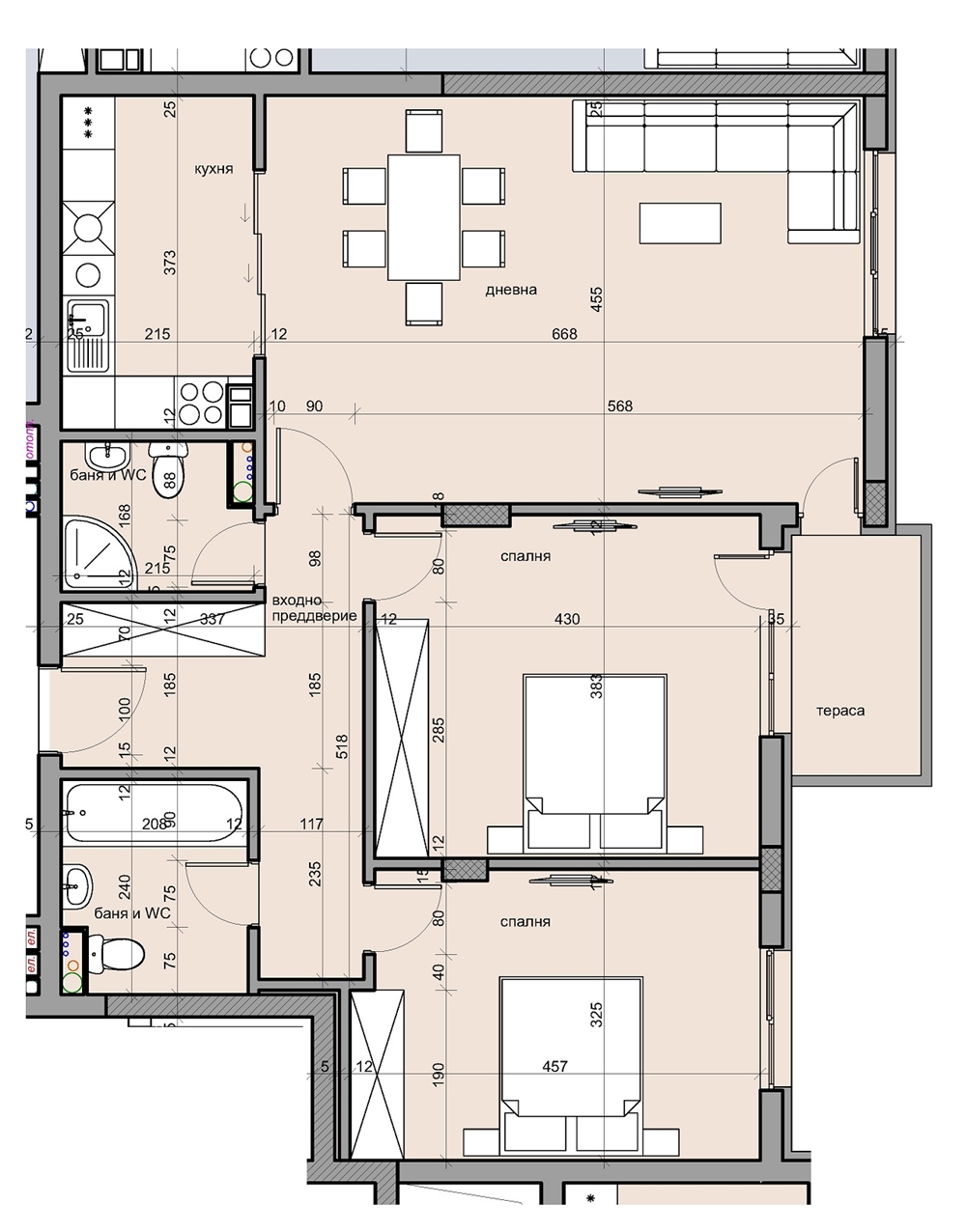
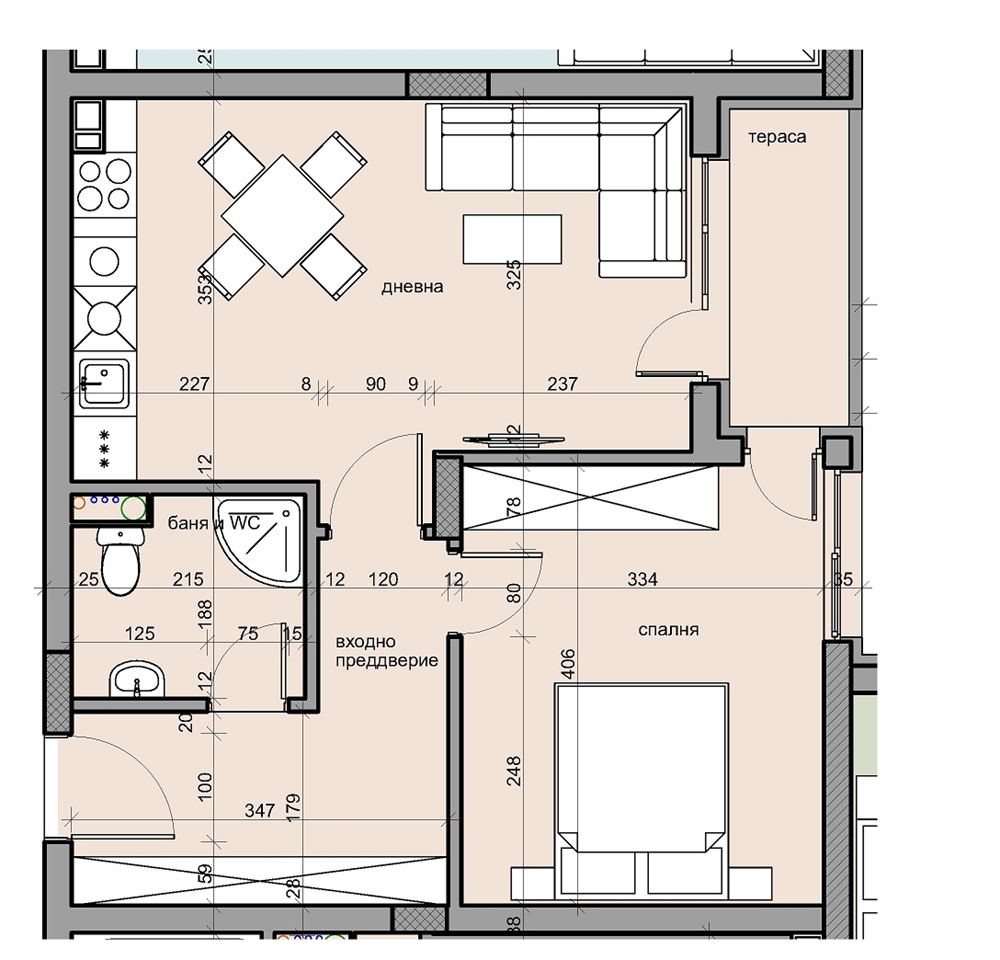
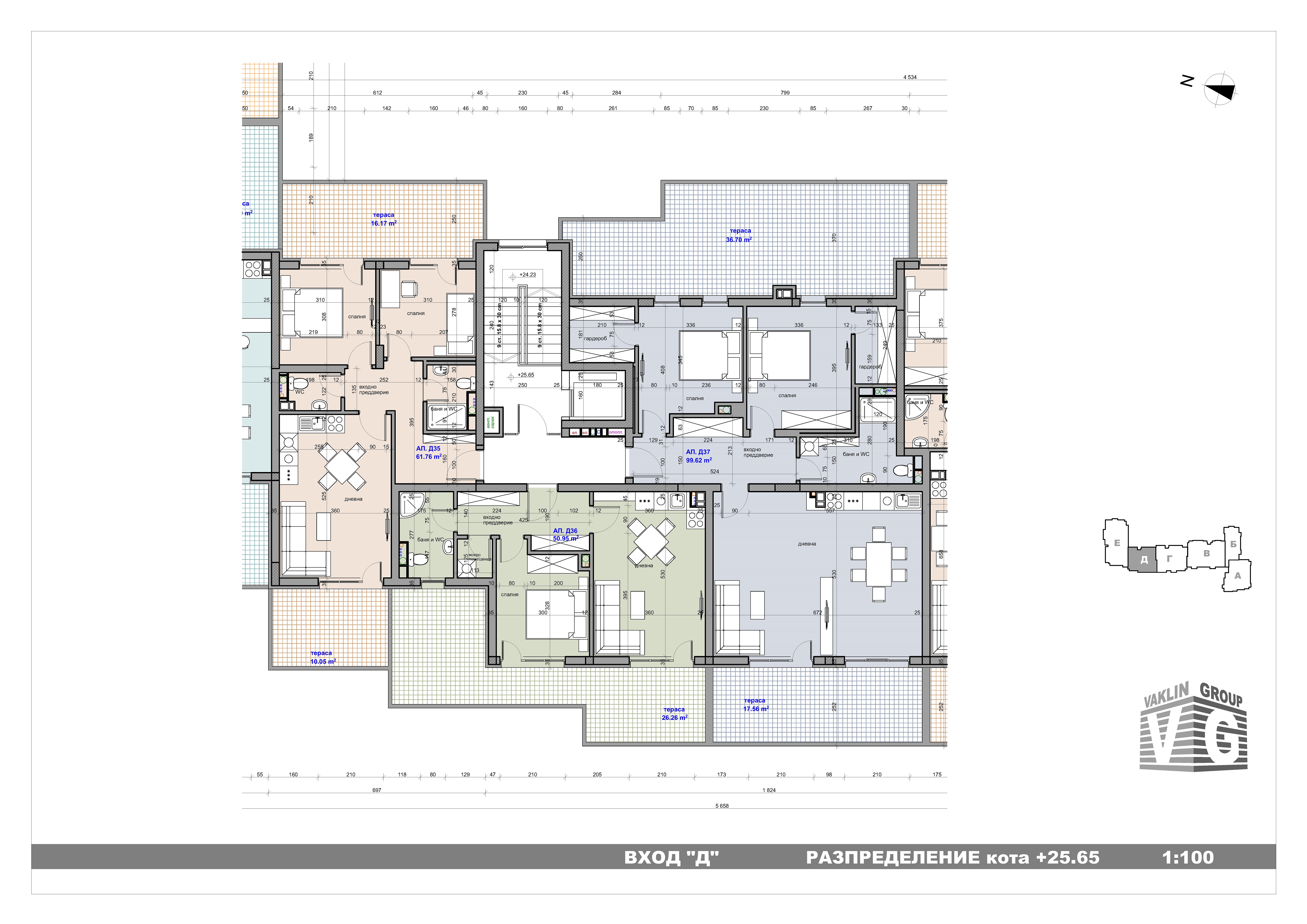
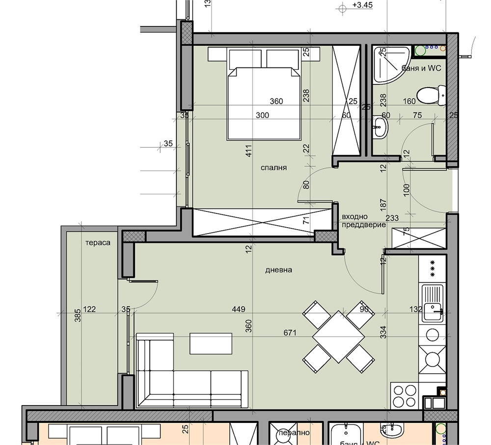
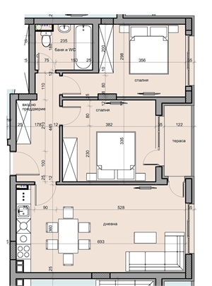
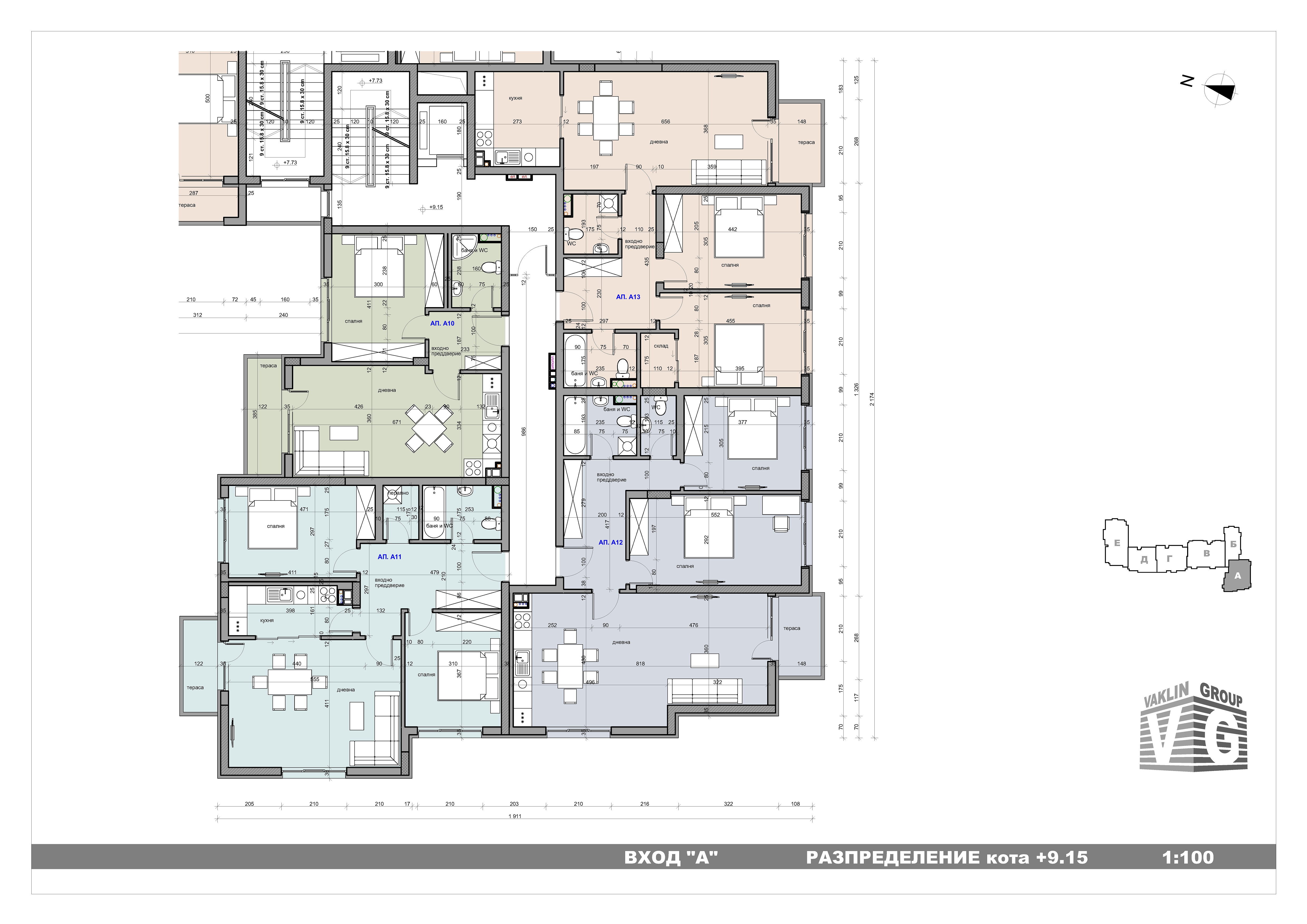
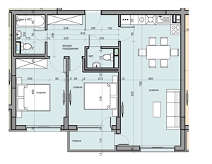
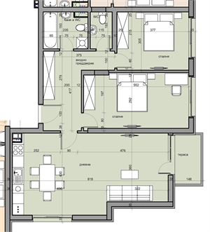
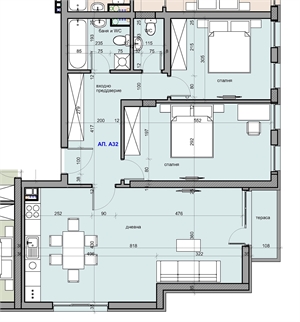
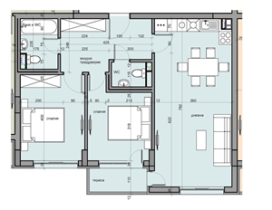
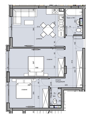
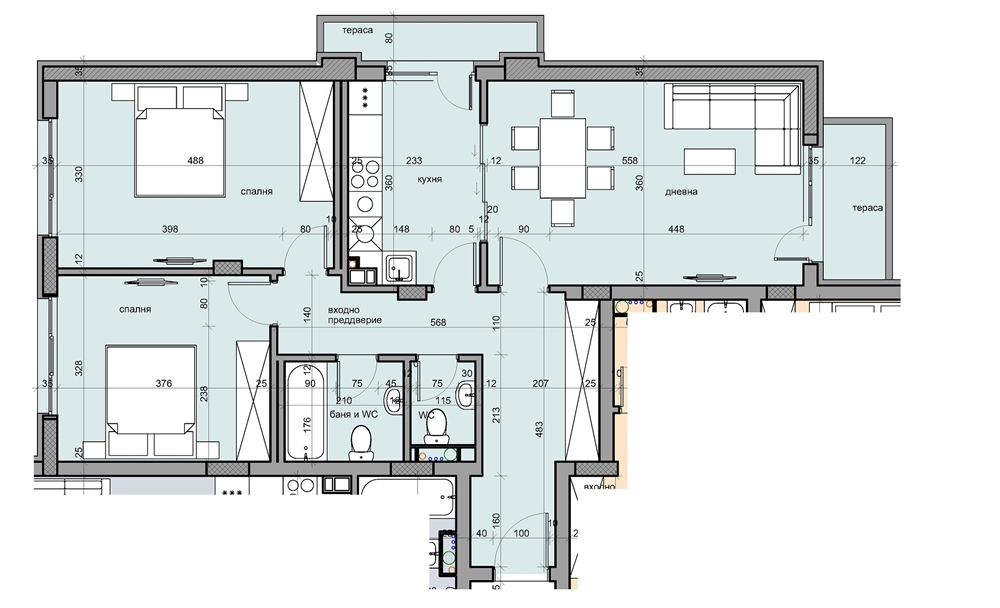
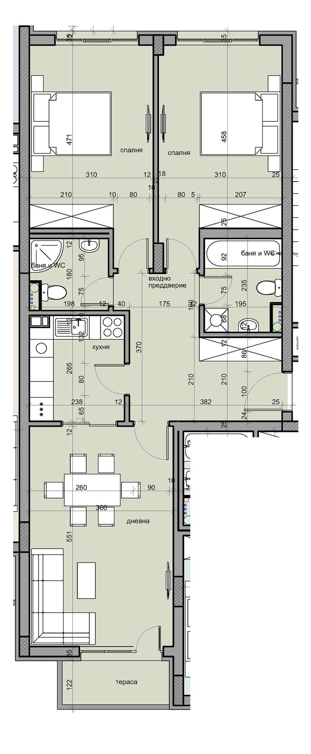
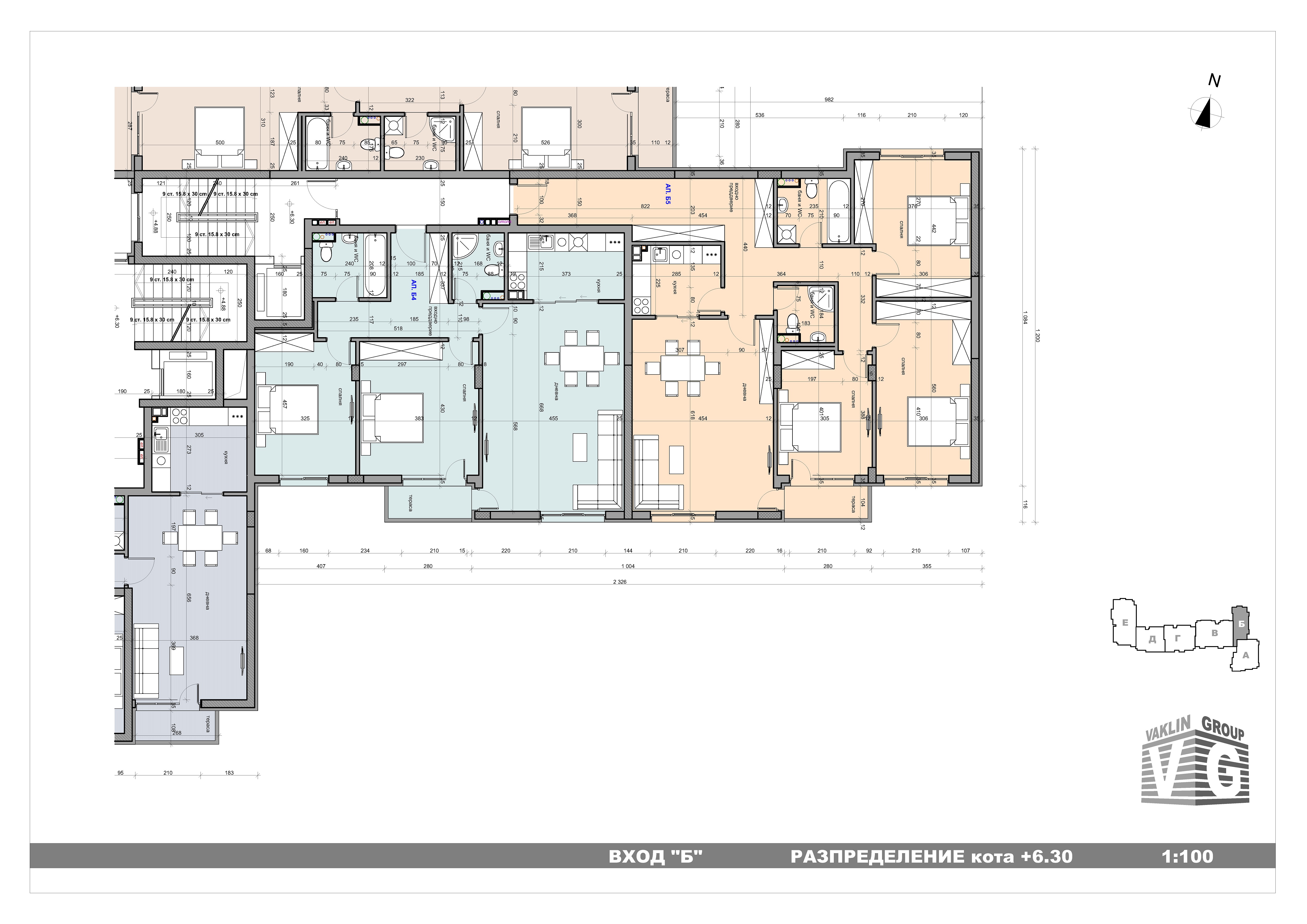
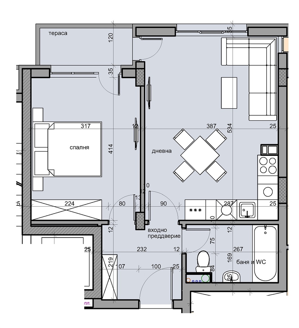
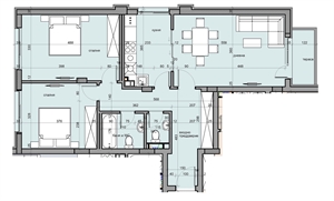
Един прекрасен проект само на 3км. от НДК, на ул. Христо Матов 29. Комплексът ще бъде разположен върху площ от десет декара, луксозно изпълнен с материали от най-висок клас, в духа на класическите архитектурни достижения от 40-те години. Сградата ще се състои от няколко секции, разположени в паркова среда - пред входовете ще можете да се насладите на 3 декара пешеходна зона и красива градина за отдих и игри.
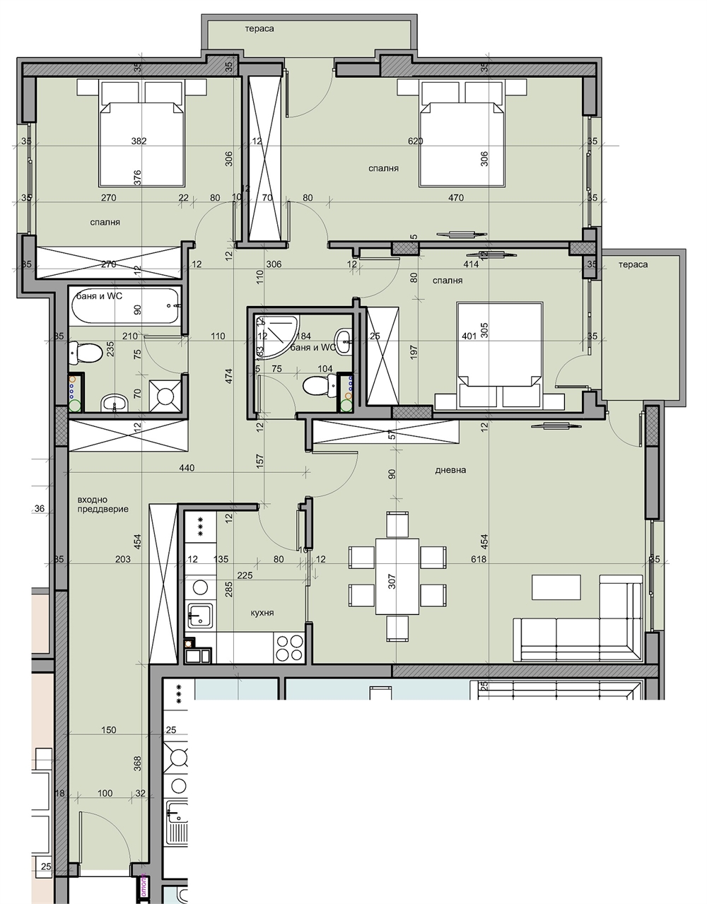
Добрата транспортна и комуникационна база на района ще бъде допълнена от достъп до метрото, което се изгражда в близост до комплекса. Съвършеният комфорт и високото качество на живот ще са обезпечени с максимални изолационни параметри на сградите - най-висок клас дограма, паропропусклива топлоизолация 12 см., червена тухла Winerberger и богата гама от естествени материали за декорация на фасадата и общите части на сградата.
Kомплексът се изпълнява цялостно и ще бъде готов през пролетта на 2021 г.
Цените на тристайните жилища и гаражите ще са валидни до 31.10.2020г., след което ще бъдат актуализирани. Считано от 15.09.2020г. цените на двустайните жилища в сградата се актуализират - за повече информация можете да се свържете с нас на телефоните от сайта.
100% продаден
Този сайт ползва само бисквитки от Google Analytics. Не проследяваме по никакъв начин вашите действия с рекламна или друга комерсиална цел. Политика за поверителност. Предотвратете използването на вашите данни от Google Analytics