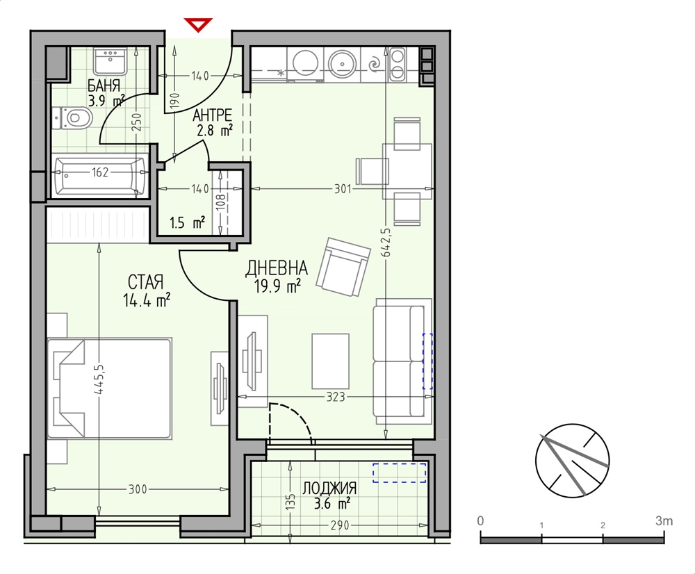
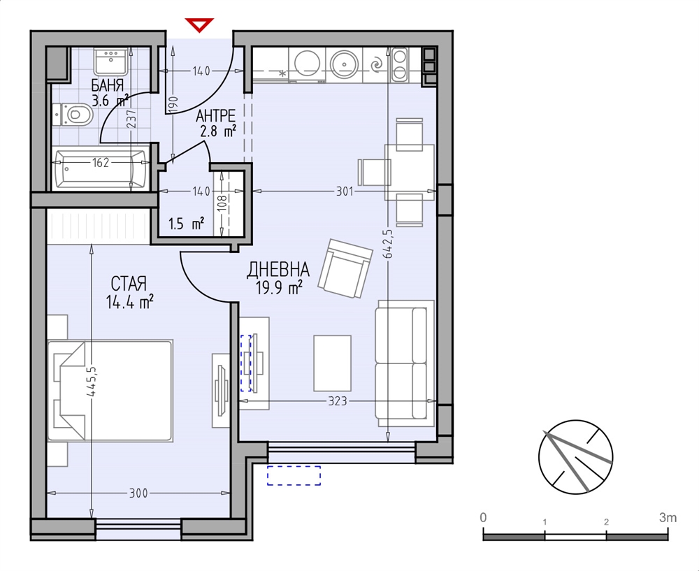
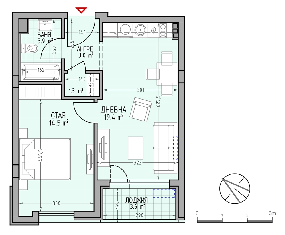
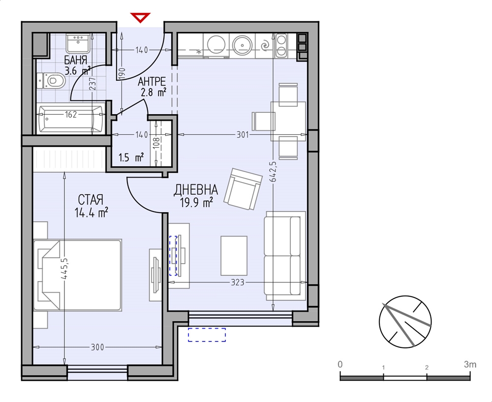
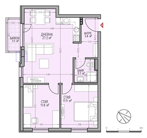
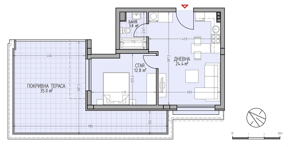
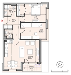
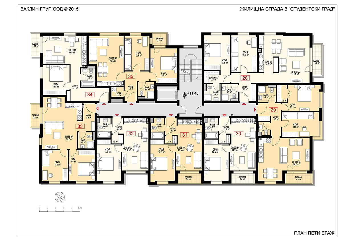
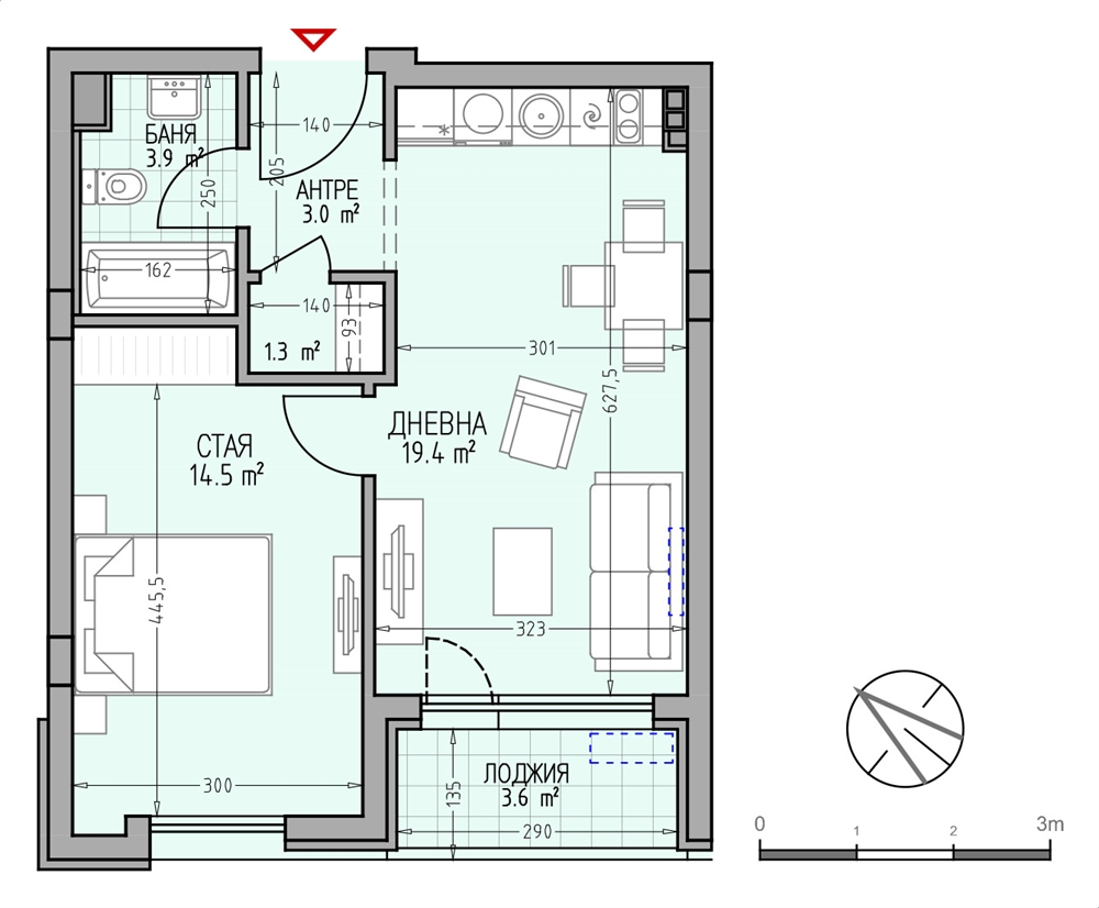
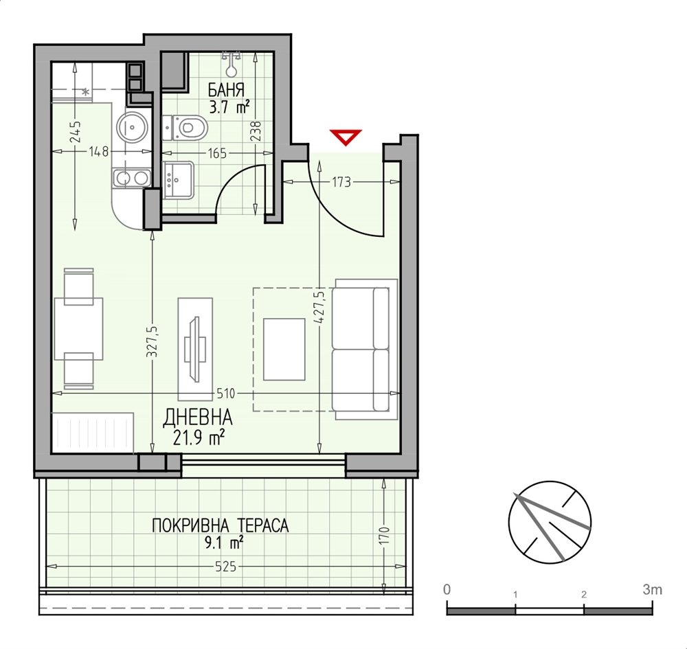
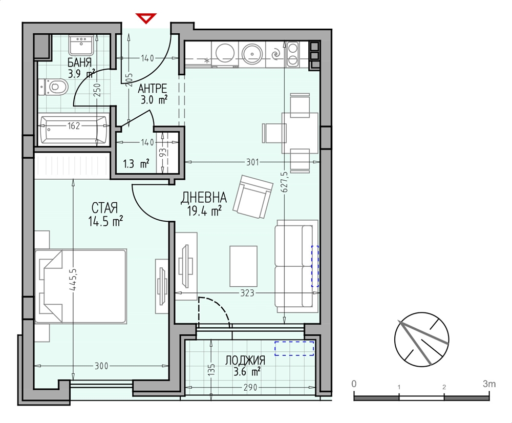
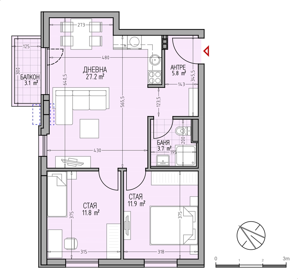
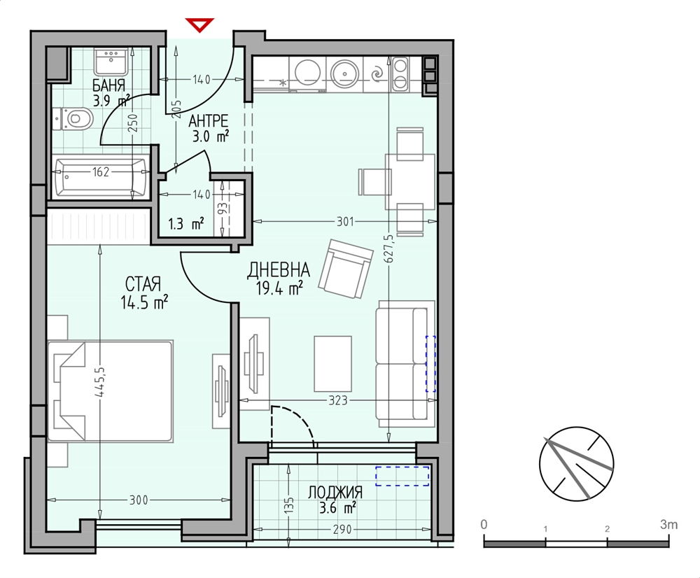
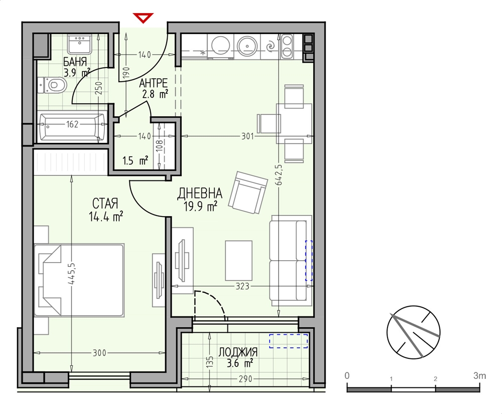
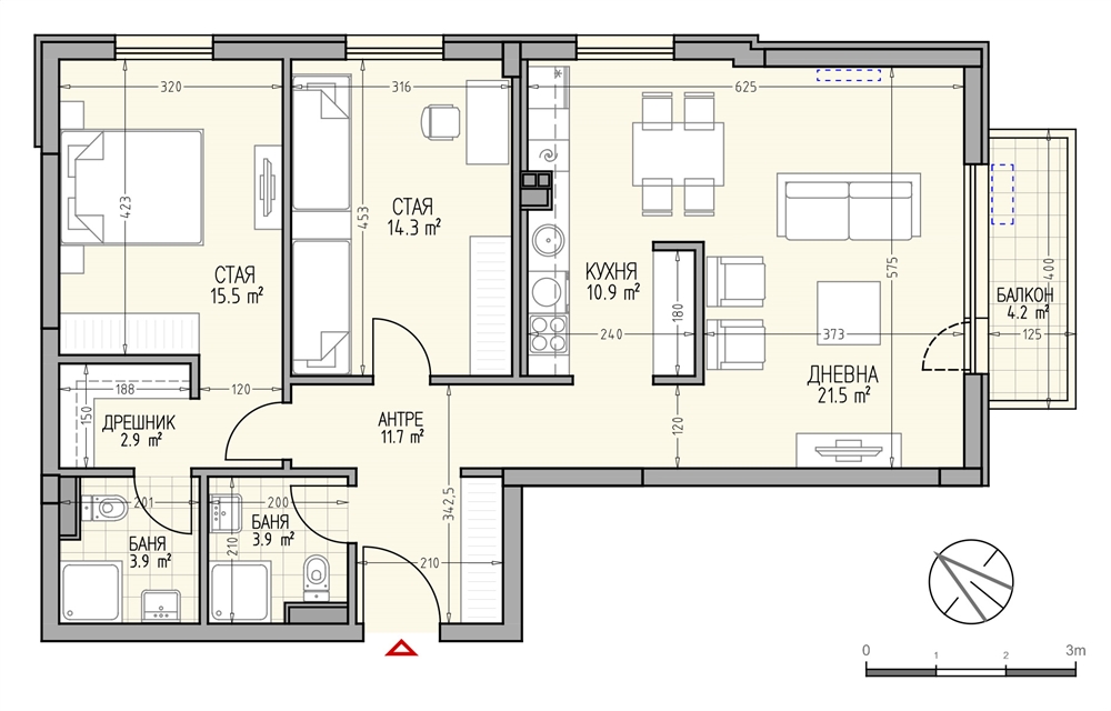
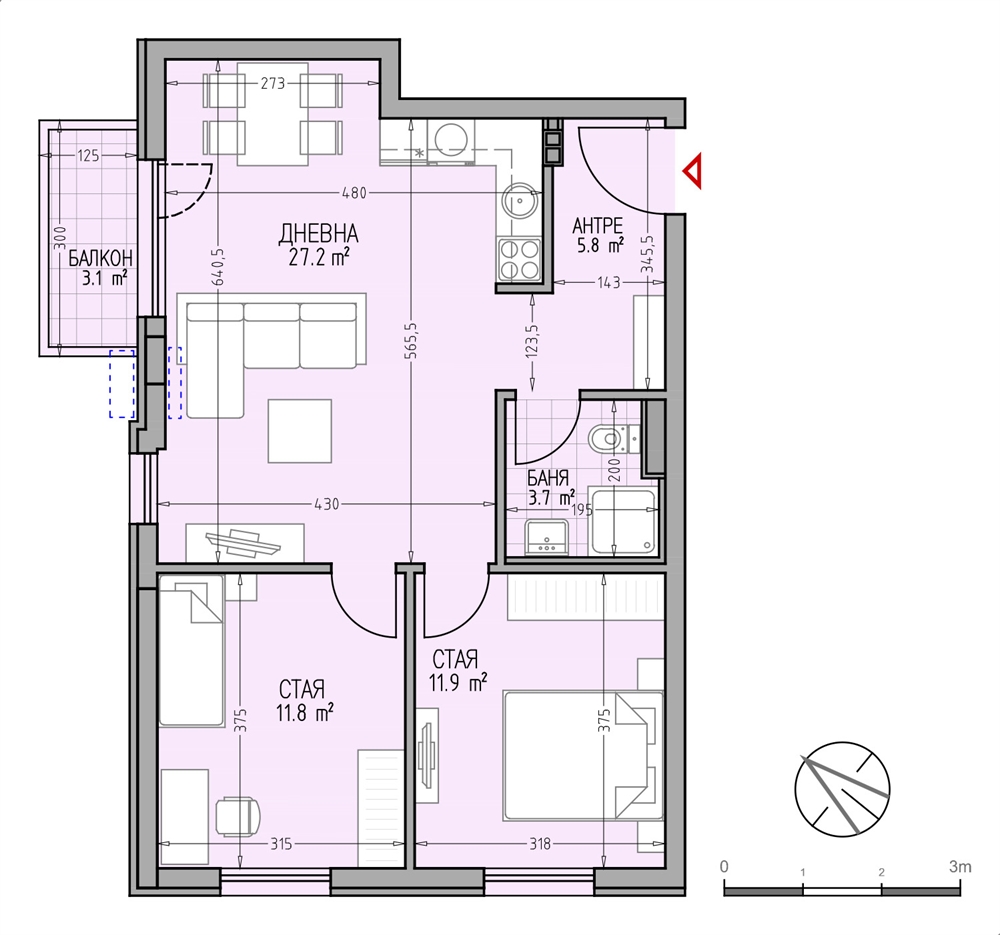
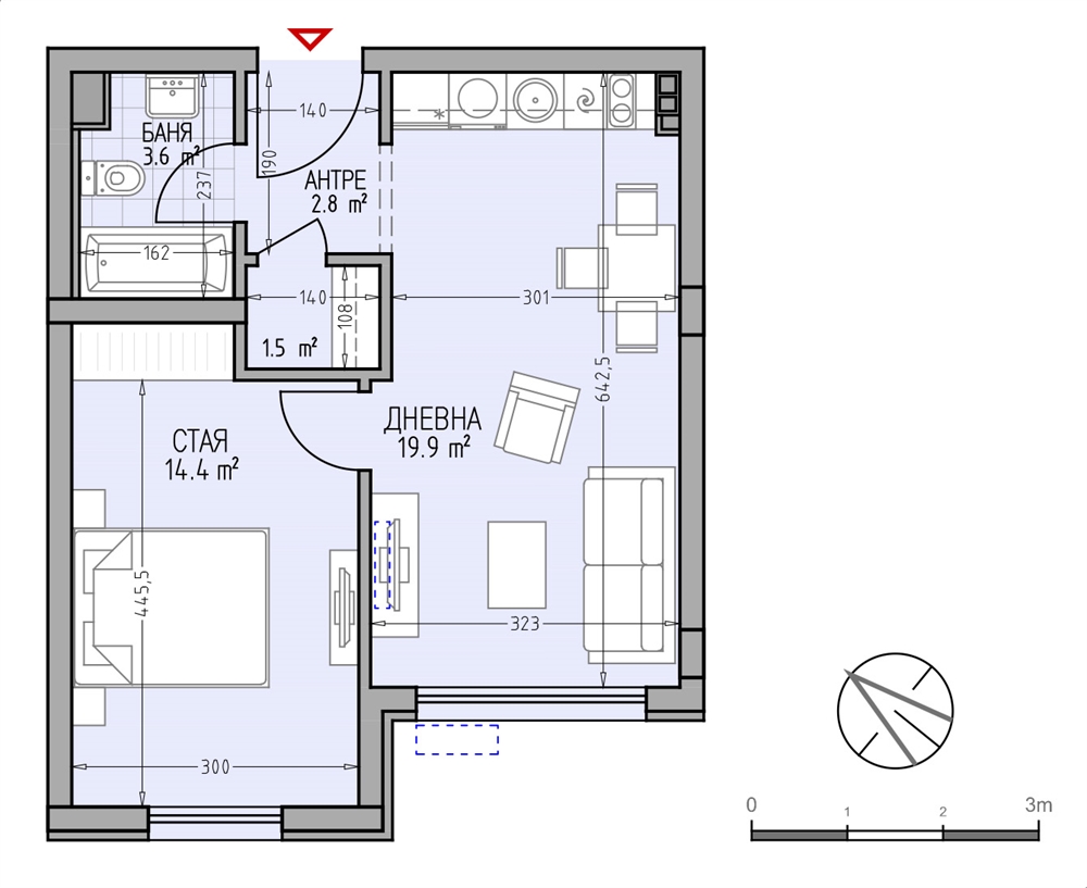
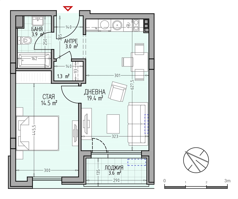
Студентски град
Освен локацията в южната част на столицата, която е предпочитана от много наши клиенти, при избора на този парцел отчетохме и отличната обезпеченост на района с комуникации и транспорт - строителният ни обект се намира на границата между Студентски град и кв. Дианабад.
Уникалната локация прави проекта подходящ както за семейства, за които е от съществена роля близостта до парка, места за пазаруване и спорт, наличието на детски градини и училища, така и за млади хора, които желаят да се ползват от близостта на местата за забавление и отдих.
Сградата е с разрешение за ползване от 03.11.2017г.
Този сайт ползва само бисквитки от Google Analytics. Не проследяваме по никакъв начин вашите действия с рекламна или друга комерсиална цел. Политика за поверителност. Предотвратете използването на вашите данни от Google Analytics